Verkocht

Enkweg 3 7021 KD Zelhem

128m2
Wonen
5
Kamers
4555m2
Perceel
1936
Bouwjaar
Op fraaie locatie in het buitengebied met vrij uitzicht gelegen AUTHENTIKE WOONBOERDERIJ MET SCHUUR EN WEILANDEN. Rustig maar centraal gelegen op circa 1,5 kilometer van het centrum van Zelhem, slechts 4 kilometer van stad Doetinchem en ca. 10 autominuten vanaf de snelweg A18.
Deze nagenoeg in originele staat verkerende woonboerderij heeft nog veel authentieke kenmerken waardoor de sfeer van vroeger nog goed voelbaar is. Het onderhoud is wat achterwege gebleven de laatste jaren en de boerderij verdient de nodige aandacht.

Met een inhoud van ca. 900 m3 biedt deze boerderij veel mogelijkheden en is er voldoende ruimte om er een comfortabele en ruime woning van te maken met behoud van het fraaie karakter en uitstraling.

Ideaal object voor de liefhebber van het vrije buitenleven niet te ver van de (dorpse en stadse) voorzieningen en met voldoende ruimte voor het houden van hobbydieren en/of het creëren van zelfvoorziening middels eigen groentetuin, boomgaard en voedselbos.
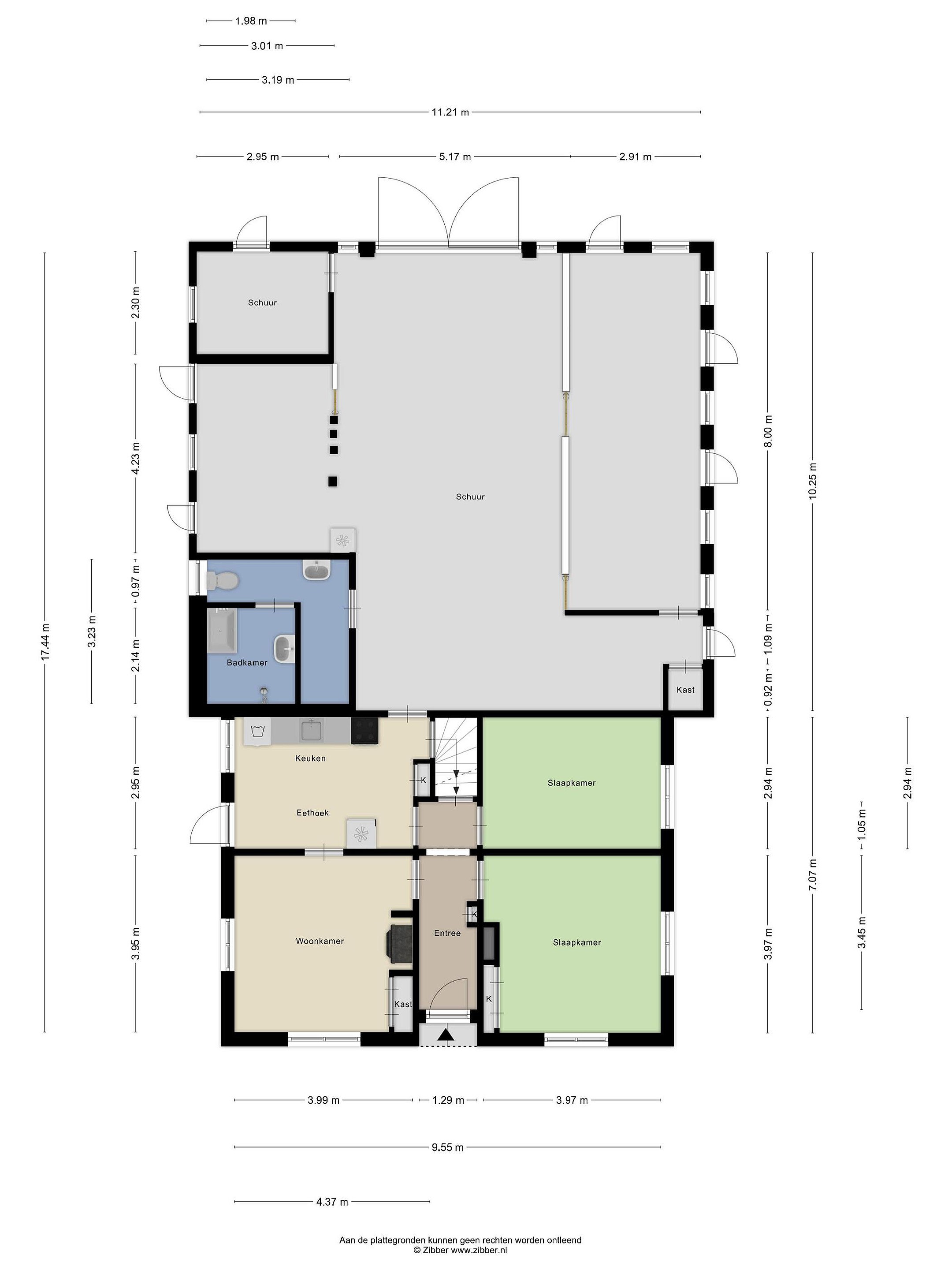
Begane grond
Kelder: Provisiekelder

Begane grond: entree, hal met meterkast. Woonkamer. Eetkamer, keuken. Slaapkamer. Binnendoorgang naar deel met badkamer en toiletruimte.

1e Verdieping: overloop, 2 slaapkamers, zolderberging.

Details
Bouwjaar 1936
Inhoud ca. 907 m3
Woonoppervlakte ca. 128 m2, overige inpandige ruimte ca. 116 m2, totale oppervlakte ca. 244 m2
Met uitbereiding van de 1e verdieping kan er nog meer woonoppervlakte gerealiseerd worden.

Totale perceeloppervlakte 4.555 m2

Verwarming middels gaskachels
Energielabel G

Grote stenen schuur van ca. 90 m2 met paardenstallen en zolder. Deels voorzien van nieuw dak.
Oude houten kippenschuur ca. 50 m2


Aanvaarding in overleg.

Lees meer

Verkoopgeschiedenis

Aangeboden sinds
10 februari 2026
Verkoopdatum
14 mei 2026
Looptijd
3 maanden

Kenmerken

Overdracht

Prijs per m2
€ 4.648
Aangeboden sinds
10 februari 2026
Status
Verkocht
Aanvaarding
In overleg

Bouw

Soort woonhuis
Woonboerderij, vrijstaande woning
Soort bouw
Bestaande bouw
Bouwjaar
1936
Soort dak
Zadeldak
Staat van onderhouden binnen
Redelijk
Staat van onderhouden buiten
Redelijk

Oppervlakte en inhoud

Perceeloppervlakte
4555 m2
Inhoud van de woning
907 m3
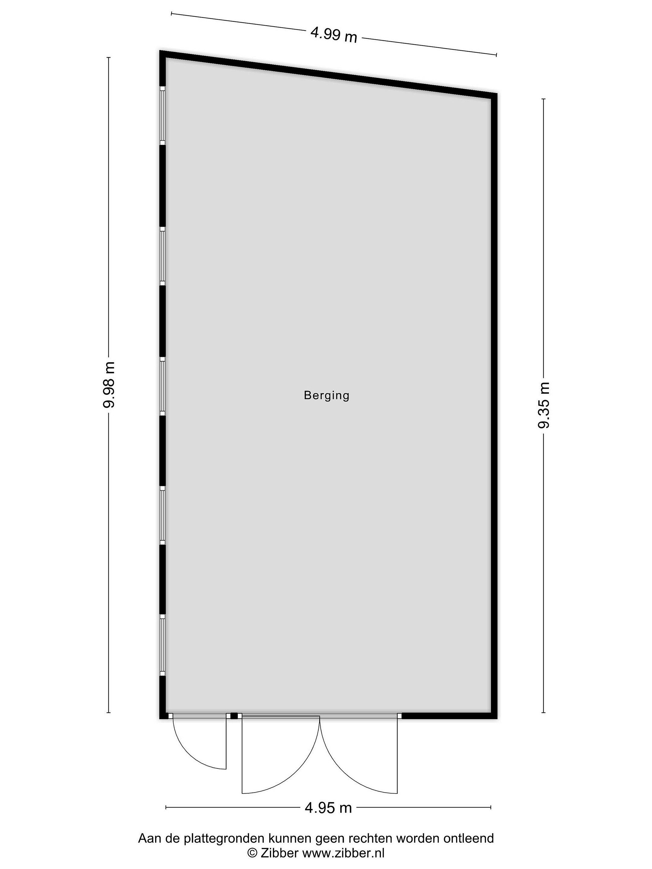
Oppervlakte externe bergruimte
159 m2
Oppervlakte overige inpandige ruimten
116 m2

Indeling

Aantal kamers
5
Aantal slaapkamers
4
Aantal woonlagen
2
Voorzieningen
Tuin, schuur/berging

Buitenruimte

Balkon
Nee
Schuur/berging
Ja

Maandlasten berekenen

De maandlasten voor je woning bestaan uit meer dan alleen de hypotheeklasten. Hieronder vind je een overzicht van de bijkomende kosten en lasten. Zo weet je precies wat je huis per maand gaat kosten. En met de handige vergelijkers kun je ook nog eens snel de beste deals sluiten!

  • Kaart
  • Streetview