Verkocht

Elst 3 5386 KB Geffen

300m2
Wonen
5
Kamers
4655m2
Perceel
1920
Bouwjaar
Sfeervolle riant woonboerderij met gastenverblijf en schuur op een mooi perceel gesitueerd aan de rand van Geffen.

Unieke kans voor de paarden- cq. dierenliefhebber dan wel iemand met beroep aan huis!
Begane grond
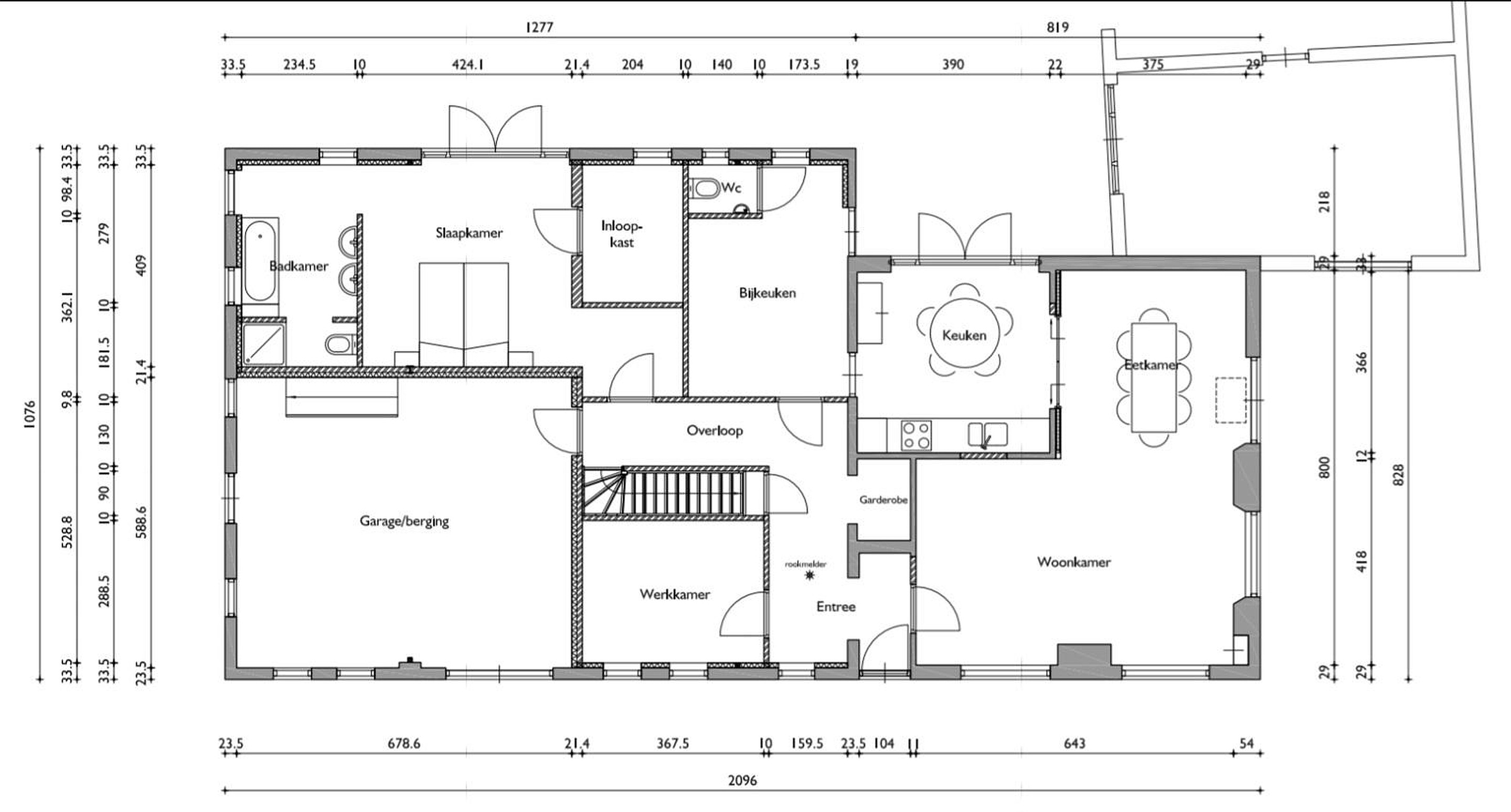
Entreehal met garderobe en bergruimte (trapkast). Werkkamer.
Slaapkamer met inloopkast en aangrenzende complete badkamer met ligbad, wastafelmeubel, toilet en douche. Openslaande deuren met zicht op het achterperceel.
Bijkeuken met keukenblok en toilet.
Gezellige woonkeuken met zicht op de achtergelegen grond (tuindeuren).
Riante sfeervolle woonkamer met gashaard en tuindeuren naar de zijtuin.
Inpandige garage/berging.

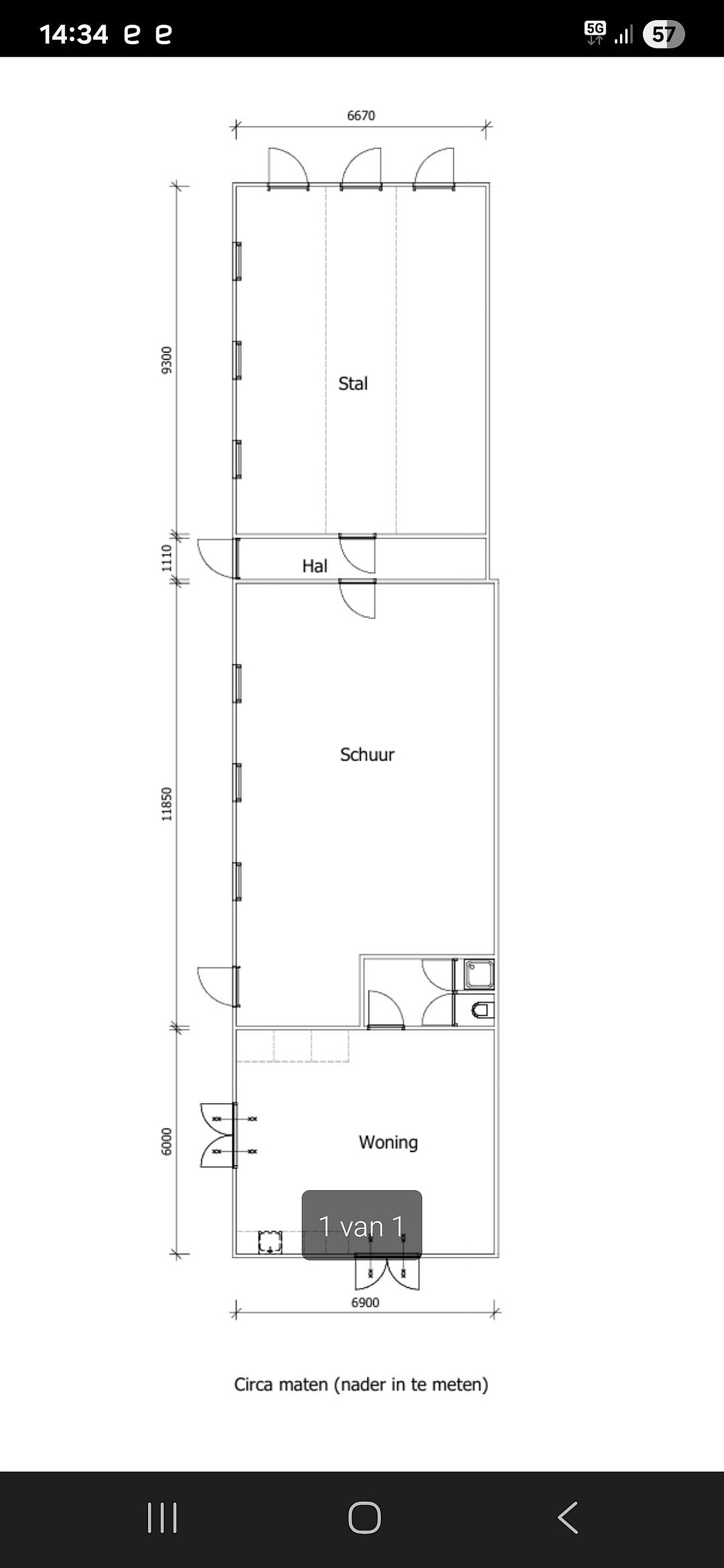
Gastenverblijf met verblijfruimte, douche en toilet.

Grote schuur, bergruimte in voormalige stal.


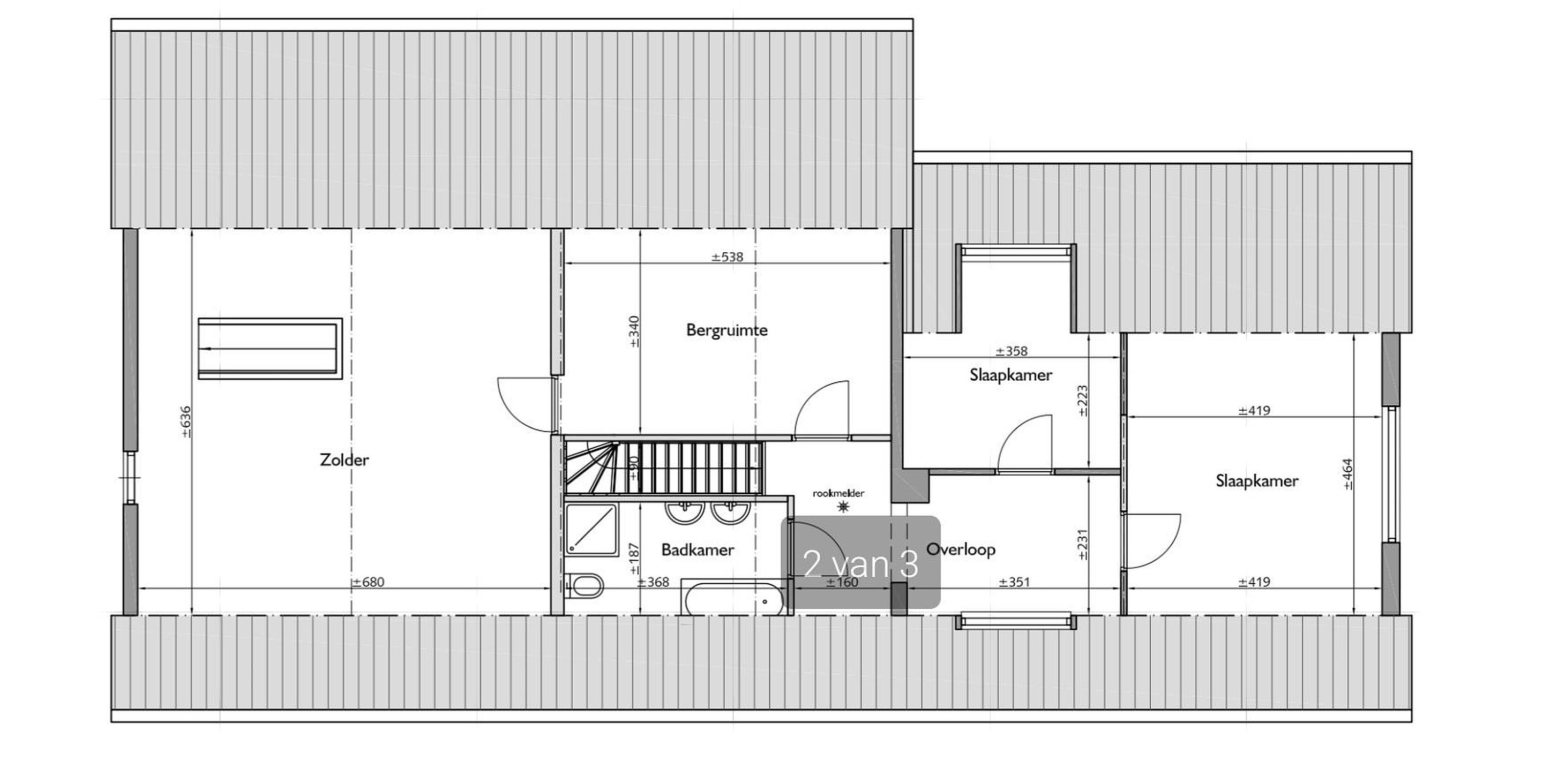
Eerste verdieping
Overloop.
Drie riante slaapkamers.
Bergruimte (eventueel in te richten als badkamer).
Grote zolder/bergruimte. CV combiketel Nefit 2010.

Tuin
Gezellige beschutte zijtuin aangrenzend aan de woonkamer (tuindeuren).
Achtertuin met zicht op het aangenzende weiland.

Details
- Uitstekende locatie tegen het dorp Geffen aan gesitueerd;
- Sfeervolle omstreeks 2010 van binnen geheel gerenoveerde woonboerderij;
- Prachtig perceel gelegen aan de achterzijde en bereikbaar via de poort gelegen aan de zijkant van de boerderij;
- Gastenverblijf met eigen sanitaire voorzieningen;
- Riante schuur met mogelijkheden;

Lees meer

Verkoopgeschiedenis

Aangeboden sinds
27 september 2025
Verkoopdatum
30 november 2025
Looptijd
2 maanden

Kenmerken

Overdracht

Prijs per m2
€ 3.250
Aangeboden sinds
27 september 2025
Status
Verkocht
Aanvaarding
In overleg

Bouw

Soort woonhuis
Woonboerderij, vrijstaande woning
Soort bouw
Bestaande bouw
Bouwjaar
1920
Soort dak
Zadeldak
Staat van onderhouden binnen
Goed
Staat van onderhouden buiten
Goed

Oppervlakte en inhoud

Perceeloppervlakte
4655 m2
Inhoud van de woning
950 m3
Oppervlakte externe bergruimte
190 m2

Indeling

Aantal kamers
5
Aantal slaapkamers
4
Aantal woonlagen
2
Voorzieningen
Tuin, schuur/berging, kabel-tv, glasvezel, buitenzonwering, rookkanaal, schuifpui, dakraam

Buitenruimte

Balkon
Nee
Schuur/berging
Ja

Maandlasten berekenen

De maandlasten voor je woning bestaan uit meer dan alleen de hypotheeklasten. Hieronder vind je een overzicht van de bijkomende kosten en lasten. Zo weet je precies wat je huis per maand gaat kosten. En met de handige vergelijkers kun je ook nog eens snel de beste deals sluiten!

  • Kaart
  • Streetview