Hôfsleane 40 9041 AS Berltsum

221m2
Wonen
4
Kamers
1520m2
Perceel
1909
Bouwjaar
Sfeervolle woonboerderij met aangebouwde praktijkruimte, fantastische tuinbeleving en eindeloos veel mogelijkheden!

Op een prachtige en rustige plek in Berltsum staat deze karaktervolle vrijstaande woonboerderij met aangebouwde praktijkruimte. Een woning waar historie, sfeer en comfort op een unieke manier samenkomen. De boerderij is volledig gerenoveerd, waarbij authentieke details liefdevol zijn behouden: balkenplafonds, paneeldeuren, glas-in-loodramen, sierlijsten. Tegelijkertijd is het wooncomfort helemaal van nu, met een prachtige leefkeuken, fijne zitruimtes en een heerlijke tuin rondom.

Het perceel is royaal en schitterend ingericht: fruitbomen, een walnoot, een (geo)dome, moestuin, kippenverblijf en een vijver met vaste bewoners (loopeenden). Achterop het terrein staan een grote houten schuur/garage met overkapping en volop ruimte voor een werkplaats of het stallen van een auto. De aangebouwde praktijkruimte uit 1995 is een enorme plus, met veel mogelijkheden voor werk, zorg, gastenverblijf of zelfs dubbele bewoning. Kortom; een woonplek met rust, groen, charme én mogelijkheden – veel mogelijkheden.

BEGANE GROND - SFEER EN HISTORIE
Je komt binnen in de hal, waar je direct merkt dat dit een bijzonder huis is. Aan de rechterzijde bevindt zich de huidige garderobekamer. Leuk detail: dit was vroeger de leefruimte van de huishoudster (de 'faam'), een mooi verhaal dat de rijke historie van de woning onderstreept. De woonkamer is een echte eye-catcher. Dankzij de glas-in-lood ramen, sierlijsten, hoge plafonds met balken en de vele ramen rondom voelt de ruimte licht en stijlvol. Vroeger zaten hier bedstedes; nu vormt het geheel één sfeervolle, open leefruimte. De Tigchelkachel zorgt voor heerlijke warmte en een fijne ambiance. Aan de achterzijde is de woning tijdens de renovatie vergroot, waardoor een prachtige en ruime leefkeuken is ontstaan. De keuken is compleet vernieuwd en uitgevoerd met eiken fronten, een fraai werkblad en een luxe fornuis en inbouwapparatuur. De karakteristieke middenkolom geeft de ruimte extra charme. Dankzij de diverse zitopstellingen en de openslaande deuren naar de tuin is dit echt het hart van het huis. Verder vind je op de begane grond nog het toilet, vaste kastruimte, een berging en toegang tot de kelder.

AANGEBOUWDE PRAKTIJKRUIMTE
In 1995 is de grote praktijkruimte aangebouwd, voorheen in gebruik als tandartspraktijk en later als yogastudio. Deze vleugel heeft een eigen entree én een interne verbinding met de hoofdwoning. De entree beschikt over twee infrarood plafondpanelen.

De praktijkruimte bestaat uit:
- Een royale multifunctionele ruimte met grote raampartijen
- Een pantry/keukenopstelling
- Toiletruimte
- Bergruimte
- Een Finoverkachel voor behaaglijke warmte

Hier kun je gemakkelijk een praktijk aan huis, atelier, salon, kantoor, gastenverblijf of zelfs een kangoeroewoning realiseren. Ook dubbele bewoning behoort tot de mogelijkheden.

EERSTE VERDIEPING & ZOLDER
Op de verdieping zijn twee ruime slaapkamers, praktische bergruimtes en de badkamer te vinden. De kamers hebben een prettige lichtinval en veel sfeer dankzij de schuine kap en het zicht op de houten gebinten.
De zolder boven de aangebouwde praktijkruimte is via een vaste trap bereikbaar en biedt nog meer mogelijkheden. Nu in gebruik als creatieve ruimte en opslag, maar uitstekend geschikt als extra slaapkamer, hobbyruimte of zelfs voor (zakelijke) meetings.

BUITENLEVEN OP Z'N MOOIST
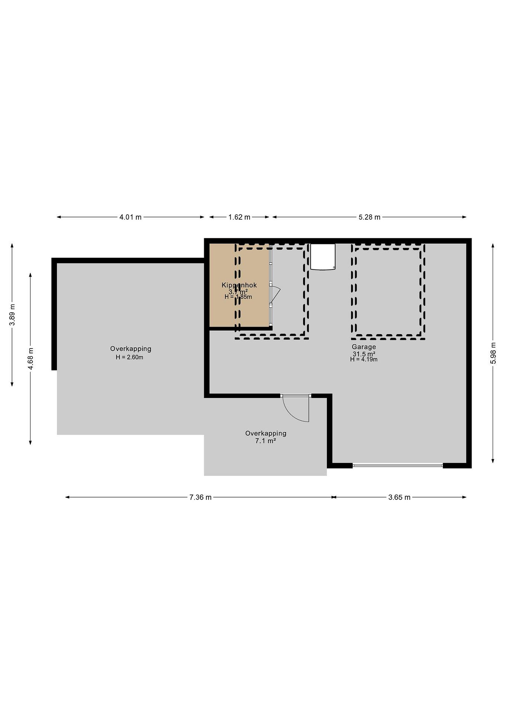
De tuin rondom is een paradijs voor liefhebbers van groen, dieren en rust. De diepe achtertuin is ongeveer vier jaar geleden volledig opnieuw aangelegd, waarbij de bestaande bomen zijn behouden. Je vindt hier diverse fruitbomen, walnootbomen, een moestuin met compostplek, een kippenverblijf (binnen en buiten) die zorgen voor een voedzame bodem, een vijver met vaste bewoners (loopeenden), een (geo)dome (nu gebruikt als houtopslag, maar perfect als unieke buitenzitplek). Door de groene omheining geniet je in de achtertuin van optimale privacy en rust. Achterop het perceel staat de ruime houten schuur met overkapping, ideaal als werkplaats én voor het stallen van een auto. De oprijlaan is breed en biedt volop parkeergelegenheid.

LIGGING
Berltsum is een levendig en vriendelijk dorp met een uitgebreid voorzieningenniveau. Je vindt er o.a. een supermarkt, basisscholen, sportverenigingen, diverse winkels, horeca en een actief verenigingsleven. De ligging is bovendien ideaal: binnen 10 minuten rijd je naar Franeker en in ongeveer 20 minuten sta je in hartje Leeuwarden. Zo woon je heerlijk rustig en landelijk, maar heb je de stedelijke voorzieningen altijd binnen handbereik.

PLUSPUNTEN
+ Vrijstaande woonboerderij met karakter én renovatiecomfort
+ Grote aangebouwde praktijkruimte (1995) met keukenopstelling en Finoverkachel
+ Authentieke details: balkenplafonds, paneeldeuren, glas-in-lood, sierlijsten
+ Prachtige leefkeuken met diverse zithoeken
+ Riante aangelegde achtertuin met fruitbomen, moestuin en vijverpartij
+ Grote houten garage/schuur met overkapping
+ Mogelijkheid tot kangoeroewonen, dubbele bewoning of praktijk aan huis
+ Sfeervol, warm en instapklaar

Deze informatie is door ons met de nodige zorgvuldigheid samengesteld, veelal aan de hand van de door verkoper aan ons ter hand gestelde gegevens en tekeningen. Onzerzijds wordt echter geen enkele aansprakelijkheid aanvaard voor enige onvolledigheid, onjuistheid of anderszins, dan wel de gevolgen daarvan. Dit geldt voor onder meer de opgegeven maten, oppervlakten, isolatie en ouderdom van technische installaties.
Lees meer

Kenmerken

Overdracht

Prijs per m2
€ 3.597
Aangeboden sinds
25 november 2025
Status
Beschikbaar
Aanvaarding
In overleg

Bouw

Soort woonhuis
Woonboerderij, vrijstaande woning, bedrijfsdienst woning
Soort bouw
Bestaande bouw
Bouwjaar
1909
Soort dak
Schilddak
Staat van onderhouden binnen
Goed
Staat van onderhouden buiten
Goed

Oppervlakte en inhoud

Perceeloppervlakte
1520 m2
Inhoud van de woning
847 m3
Oppervlakte externe bergruimte
49 m2
Oppervlakte gebouwgebonden buitenruimten
0 m2
Oppervlakte overige inpandige ruimten
10 m2

Indeling

Aantal kamers
4
Aantal slaapkamers
3
Aantal woonlagen
2
Voorzieningen
Tuin, schuur/berging, ventilatie, buitenzonwering, dakraam

Buitenruimte

Balkon
Nee
Schuur/berging
Ja

Maandlasten berekenen

De maandlasten voor je woning bestaan uit meer dan alleen de hypotheeklasten. Hieronder vind je een overzicht van de bijkomende kosten en lasten. Zo weet je precies wat je huis per maand gaat kosten. En met de handige vergelijkers kun je ook nog eens snel de beste deals sluiten!

  • Kaart
  • Streetview