Skanserwei 22 9133 DV Anjum

190m2
Wonen
5
Kamers
31905m2
Perceel
1700
Bouwjaar
De in onze brochure vermelde gegevens zijn met nauwkeurigheid samengesteld. Desondanks kunnen er onjuistheden vermeld zijn. Hieraan kunnen geen rechten worden ontleend.


1. ALGEMEEN

Deze vrijstaande woonboerderij met veel authentieke kenmerken is gesticht tussen 1700 en
1800 als een klassieke kop hals romp. Met haar diverse bijgebouwen was het tot voor kort in
gebruik als melkveehouderij.
Het geheel is prachtig gesitueerd dicht bij de Waddenzee en biedt een unieke combinatie
van 2 werelden: enerzijds de rust en weidsheid van het Friese platteland en het Lauwersmeergebied recht achter de dijk en anderzijds Dokkum met haar karakteristieke uitstraling en voorzieningen.

Met een totale oppervlakte van 03.19.05 hectare, inclusief de ondergrond van de gebouwen, biedt dit object volop mogelijkheden voor uiteenlopende invullingen zoals paardenhouderij, horeca (aanduiding horeca 1 of horeca 2, maatschappelijk en agrarische dienstverlening. Het geheel bestaat daarnaast uit een perceel grasland van 00.54.05 hectare en een dijkperceel van 01.02.55 hectare.
Op het geheel rust een erfdienstbaarheid zijnde een recht van weg ten behoeve van de percelen Anjum, Sectie F nummers 739, 735 en 738.



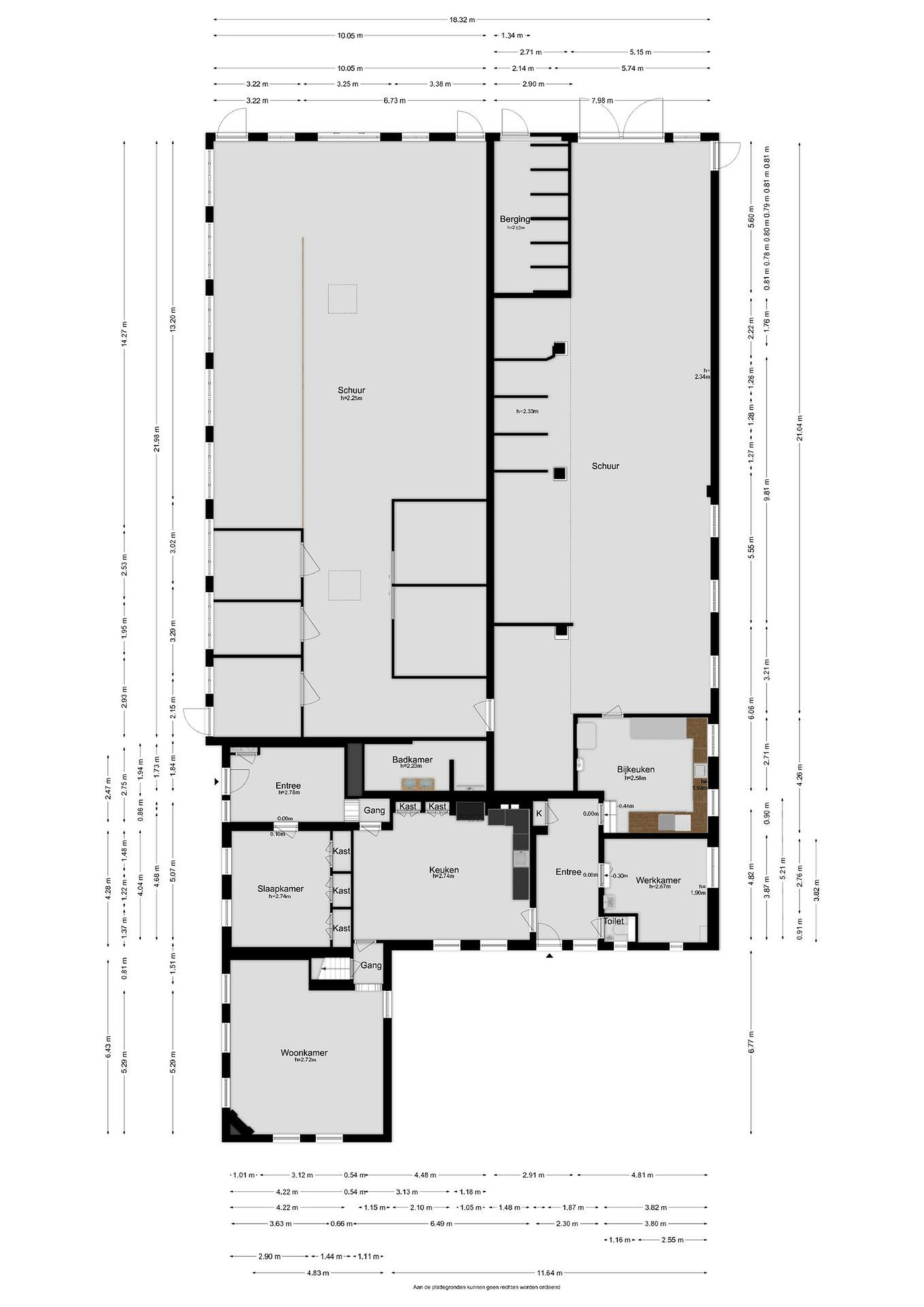
Begane grond

Begane grond:
hal/entree, slaapkamer, een comfortabele badkamer (2023) met elektrische vloerverwarming, voorzien van een douche en 2 wastafels. De ruime keuken, gesitueerd in de romp ligt centraal in de woning. De keuken heeft een landelijke stijl en is voorzien van een AGA cooker. De keuken is sfeervol ingericht met een balken plafond en een houten vloer (op beton), een bijkeuken, toilet (2013), een woonkamer met een parketvloer, een pelletkachel (2018) geplaatst voor een prachtige authentieke schouw.


Eerste verdieping
Overloop met 3 slaapkamers.

Details
Achterhuis (Romp)
Dit deel van de woonboerderij is het oudste voormalige bedrijfsgedeelte van het object en is opgetrokken met houten gebinten de houten kapconstructie is gedekt met riet onderschoten asbestvrije golfplaten en is grotendeels voorzien van betonnen vloeren biedt nu plaats aan vijf paardenboxen en stalling voor jongvee waarnaast er nog veel inpandige ruimte over is.

Ligboxenstal: 
De stal is van het bouwjaar 1973 en is op dit moment in gebruik als opslag en stalling van machines. De stal is opgetrokken uit stalen spanten met gemetselde muren en asbest houdende golfplaten. De zijkanten zijn voorzien van windbreekgaas. Er was ruimte voor 120 stuks melkvee. Onder de roostervloer is 400 m3 mestopslag. De stal was voorzien van een 2 keer 12 stands zij-aan-zij melkstal en een melktank van 12.500 kilo. Tevens waren er in deze stal een tweetal strohokken aanwezig.



Aanvullende informatie:
Op het geheel rust een agrarische bestemming. Dit is van invloed op de overdrachtsbelasting. Als de koper ervoor kiest de ligboxenstal en overige bedrijfsgebouwen te slopen in het kader van de “ruimte voor ruimte regeling” kan er 1 nieuwe bouwkavel worden gecreëerd.
Er is glasvezel aanwezig.
De aanwezige mestsilo heeft een inhoud van 2000 m3. Er zijn enkele investeringen nodig om deze goedgekeurd te krijgen.



EIGENDOM

Kadastrale gegevens:
Gemeente  Sectie Nummer Grootte
Anjum  F  1118   01.62.45
Anjum  F  1027  01.02.55
Anjum  F  1056 00.54.05
totaal    03.19.05
   

Lees meer

Kenmerken

Overdracht

Prijs per m2
€ 5.263
Aangeboden sinds
22 april 2026
Status
Beschikbaar
Aanvaarding
In overleg

Bouw

Soort woonhuis
Woonboerderij, vrijstaande woning, bedrijfsdienst woning
Soort bouw
Bestaande bouw
Bouwjaar
1700
Staat van onderhouden binnen
Goed
Staat van onderhouden buiten
Goed

Oppervlakte en inhoud

Perceeloppervlakte
31905 m2
Inhoud van de woning
4655 m3
Oppervlakte gebouwgebonden buitenruimten
1000 m2
Oppervlakte overige inpandige ruimten
960 m2

Indeling

Aantal kamers
5
Aantal slaapkamers
4
Aantal woonlagen
2
Voorzieningen
Tuin

Buitenruimte

Balkon
Nee
Schuur/berging
Nee

Maandlasten berekenen

De maandlasten voor je woning bestaan uit meer dan alleen de hypotheeklasten. Hieronder vind je een overzicht van de bijkomende kosten en lasten. Zo weet je precies wat je huis per maand gaat kosten. En met de handige vergelijkers kun je ook nog eens snel de beste deals sluiten!

  • Kaart
  • Streetview