Veneweg 1893 7946 LN Wanneperveen

83m2
Wonen
4
Kamers
556m2
Perceel
2006
Bouwjaar
Op een mooie locatie aan vaarwater gelegen vrijstaande recreatiewoning op het Waterpark Belterwiede. De recreatiewoning beschikt over een woonkamer, keuken, bijkeuken, 3 slaapkamers en 2 badkamers. De tuin, grenzend aan het water, is voorzien van diverse terrassen, een insteekhaven en parkeergelegenheid. De recreatiewoning staat op een perceel van 556m2 en heeft een woonoppervlakte van ca.83m2.
Begane grond
Entree/hal met toilet. De woonkamer beschikt over veel lichtinval, openslaande deuren naar het overdekte terras, trapopgang en de keukenopstelling met diverse inbouwapparatuur, o.a. koelkast, vaatwasmachine, gaskookplaat, afzuigkap en een combimagnetron. De bijkeuken is voorzien van een tuindeur. De slaapkamer, bereikbaar via de woonkamer, beschikt over een eigen badkamer met een douchehoek en een wastafel in meubel.

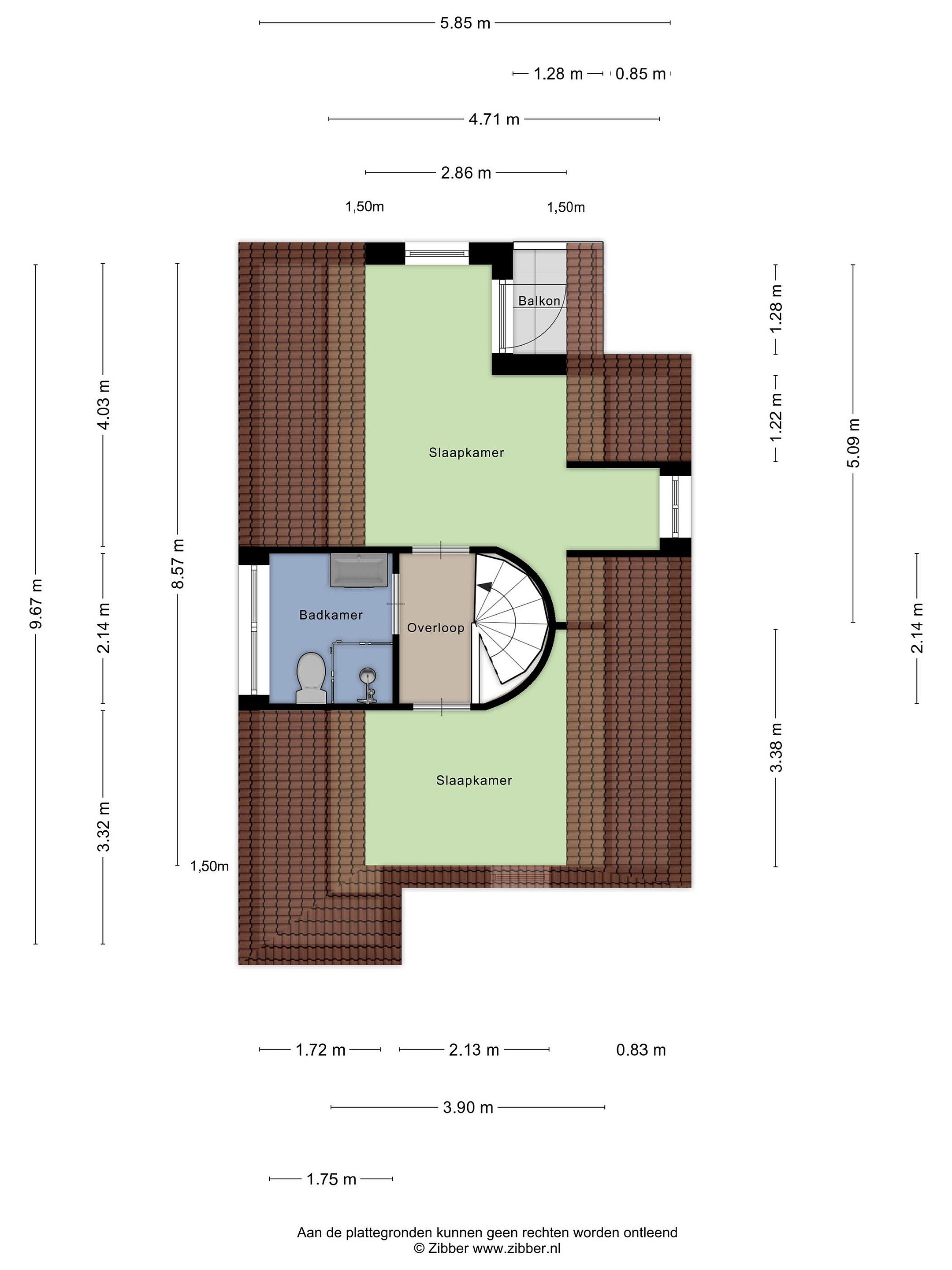
Eerste verdieping
Overloop met 2 slaapkamers en de tweede badkamer voorzien van een toilet, douchehoek en een wastafel in meubel.

Tuin
De tuin rondom de recreatiewoning grenst aan vaarwater en beschikt over diverse terrassen, een insteekhaven en parkeergelegenheid.

Details
Bijzonderheden / resumé:
- de recreatiewoning is gelegen aan vaarwater op Waterpark Belterwiede;
- de recreatiewoning is ideaal gelegen voor o.a. de watersporter, visser, fietser en wandelaar;
- de recreatiewoning is voorzien van een eigen insteekhaven in de tuin;
- de recreatiewoning is voorzien een lichte woonkamer met openslaande terrasdeuren;
- de recreatiewoning is voorzien van een slaapkamer met eigen badkamer op de begane grond;
- de recreatiewoning is totaal voorzien van 3 slaapkamers en 2 badkamers;
- wilt u geheel of gedeeltelijk verhuren? Er zijn diverse verhuurmogelijkheden.

Wanneperveen

Wanneperveen (Nedersaksisch: Wannepervene) is een dorp in het noordwesten van de in de Nederlandse provincie Overijssel, dat ongeveer 7 kilometer ten westen van Meppel ligt en onderdeel is van de gemeente Steenwijkerland.

Wanneperveen was tot 1973 een zelfstandige gemeente. Wanneperveen ging toen samen met Giethoorn, Blokzijl en Vollenhove deel uitmaken van de gemeente Brederwiede. Per 1 januari 2001 is Brederwiede samen met voormalige gemeenten Steenwijk en IJsselham opgegaan in de nieuwe gemeente Steenwijkerland.

Wanneperveen is een gezellige plaats met diverse voorzieningen. Wanneperveen ligt bij het natuurgebied “Weerribben-Wieden” en biedt tal van mogelijkheden om te ontspannen. Wannperveen is centraal gelegen op 10 autominuten verwijderd van de A32 richting Leeuwarden/Zwolle/Meppel en slechts ca. 10 minuten van Steenwijk, 30 minuten van Zwolle en ca. 60 autominuten van de randstad.

Lees meer

Kenmerken

Overdracht

Prijs per m2
€ 5.892
Aangeboden sinds
29 september 2025
Status
Beschikbaar
Aanvaarding
In overleg
Bijzonderheden
Gemeubileerd

Bouw

Soort woonhuis
Villa, vrijstaande woning
Soort bouw
Bestaande bouw
Bouwjaar
2006
Staat van onderhouden binnen
Goed
Staat van onderhouden buiten
Goed

Oppervlakte en inhoud

Perceeloppervlakte
556 m2
Inhoud van de woning
307 m3
Oppervlakte gebouwgebonden buitenruimten
7 m2

Indeling

Aantal kamers
4
Aantal slaapkamers
3
Aantal woonlagen
2
Voorzieningen
Tuin, balkon

Buitenruimte

Balkon
Ja
Schuur/berging
Nee

Maandlasten berekenen

De maandlasten voor je woning bestaan uit meer dan alleen de hypotheeklasten. Hieronder vind je een overzicht van de bijkomende kosten en lasten. Zo weet je precies wat je huis per maand gaat kosten. En met de handige vergelijkers kun je ook nog eens snel de beste deals sluiten!

  • Kaart
  • Streetview