Baas de Zoetenlaan 1 3903 DM Veenendaal

238m2
Wonen
7
Kamers
603m2
Perceel
2026
Bouwjaar
Grijp deze unieke kans om uw vrijstaande nieuwbouwwoning naar wens in te richten op een prachtige locatie!

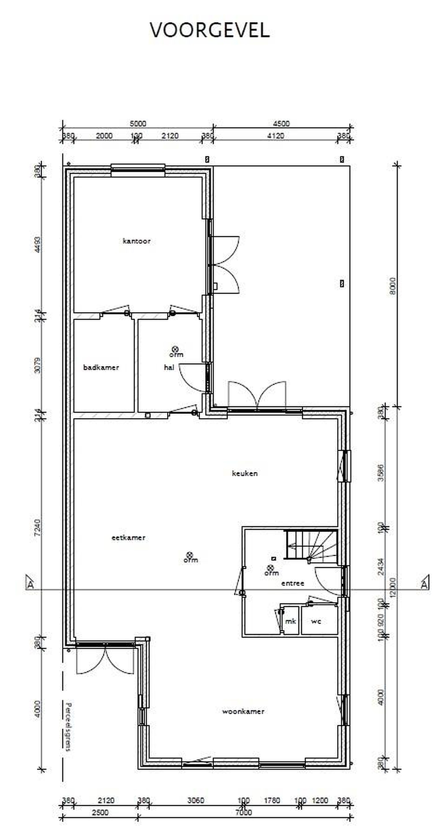
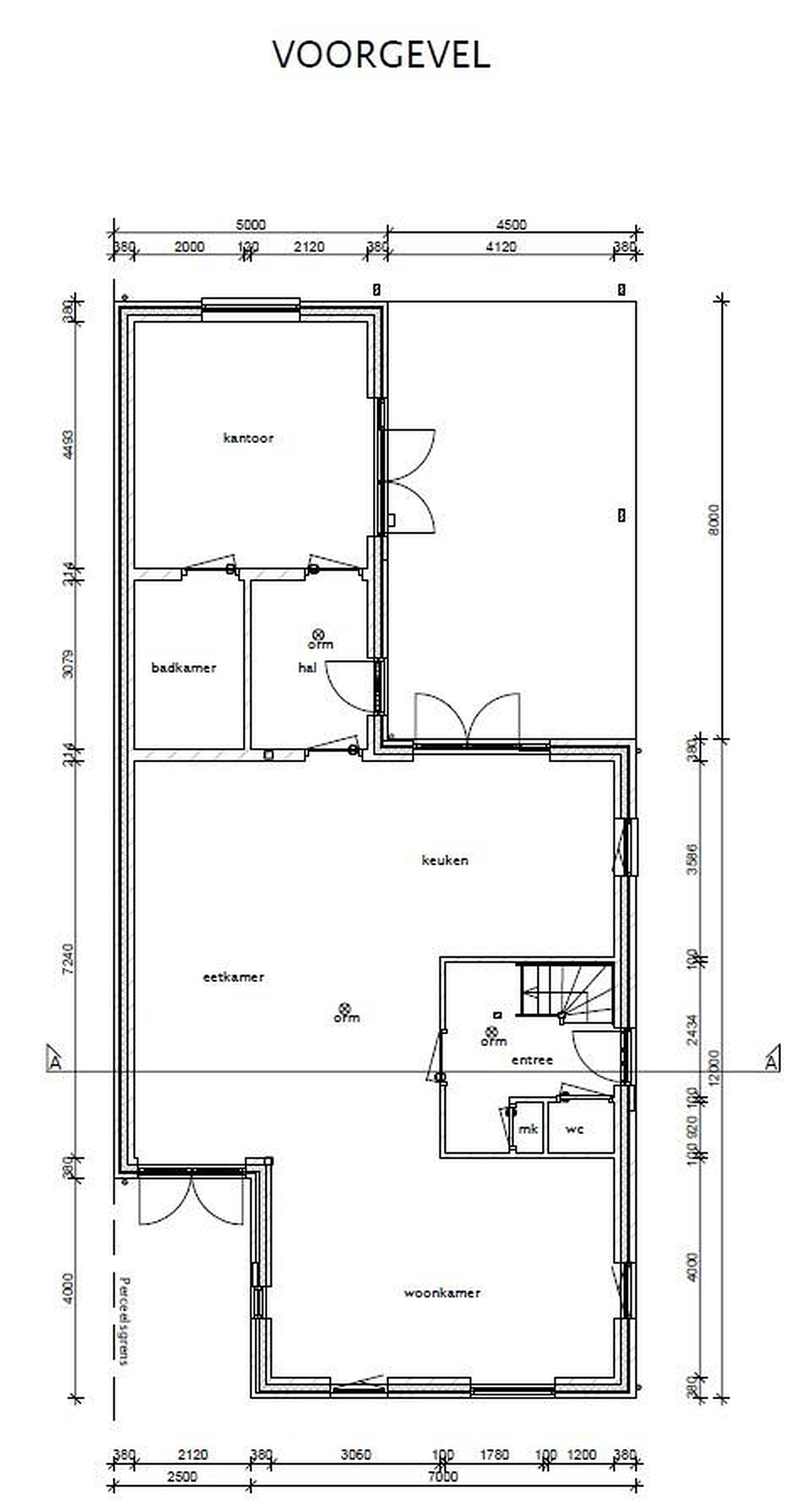
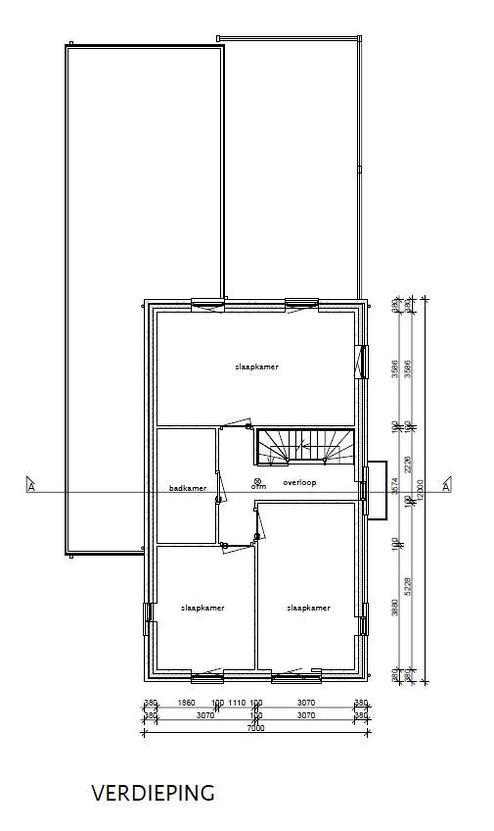
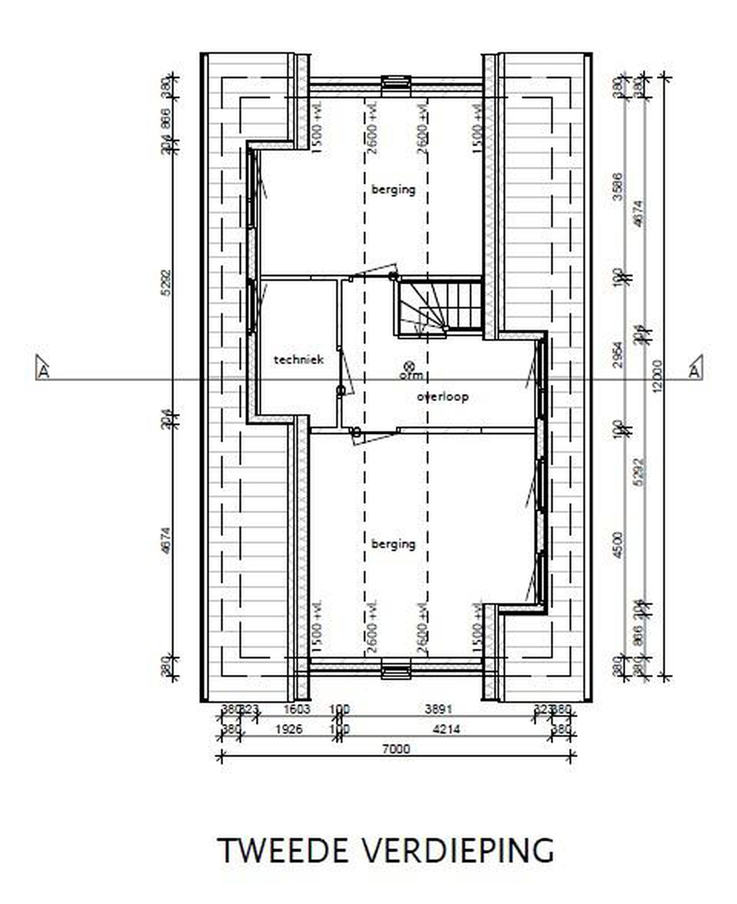
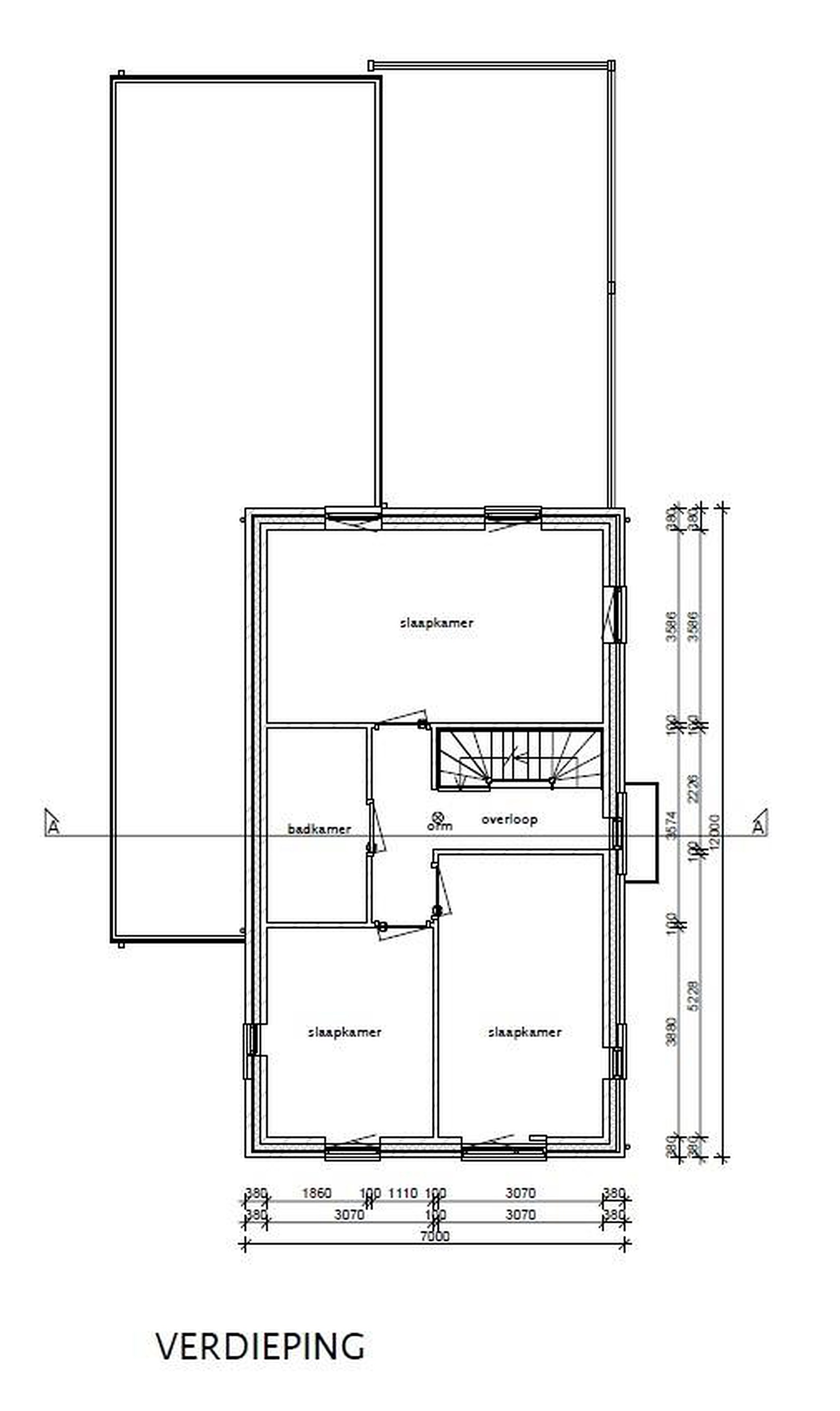
Dit is uw kans om een woning af te bouwen op een royaal perceel van 603 m2 in de geliefde, bosrijke woonwijk Petenbos. De woning ligt op een steenworp afstand van het bos en de Blauwendraadweide, een recent gebouwde nieuwbouwwijk waar veel jonge gezinnen gehuisvest zijn. Dit is de laatste woning in de rij van een kleinschalig nieuwbouwplan in de wijk Petenbos. De verwachte opleverdatum is juli 2026, de woning wordt casco opgeleverd. De woning beschikt over 6 slaapkamers, waarvan de slaapkamer op de begane grond als aanleunwoning of kantoor kan worden gebruikt. Tevens beschikt het over twee badkamerruimtes. De afbouw in overleg met aannemer (en onderaannemers). Casco wil zeggen:

- zonder keuken
- zonder afgemonteerde badkamers (aansluitingen wél voorbereid)
- zonder zonnepanelen op het dak en dus zonder PV-systeem
- zonder gerealiseerde garage
- met binnendeuren (naar wens)
- met strak afgewerkte cementdekvloer
- met trappen
- volledig sausklaar gestuct
- wind en waterdicht

Veenendaal heeft een levendig centrum met gezellige horeca en tal van toonaangevende winkels, allemaal op slechts enkele minuten fietsen van Petenbos. Vlakbij de woningen bevinden zich buurtwinkels, scholen en het NS-station. Dit deel van Petenbos grenst aan het Prattenburgse bos, een heerlijk wandelgebied met prachtige fietsroutes. Op steenworp afstand ligt ook Kwintelooijen, een schitterend natuurgebied met uitdagende mountainbikeroutes.

Voor sportliefhebbers zijn er tennis- en hockeyclubs, evenals meerdere voetbalclubs. Na een sportieve activiteit kunt u ontspannen in het prachtige theater De Lampegiet. Dankzij de centrale ligging en goede bereikbaarheid van Veenendaal bent u binnen een half uur in Utrecht, Arnhem of Nijmegen via de A12 en A50. Bovendien zijn treinstations Veenendaal-Centrum en De Klomp dichtbij, waardoor u binnen 20 minuten in Utrecht of Arnhem bent.

Kenmerken:
- Woninginhoud 899 m3
- Netto gebruiksoppervlak wonen (GBO) 238 m2
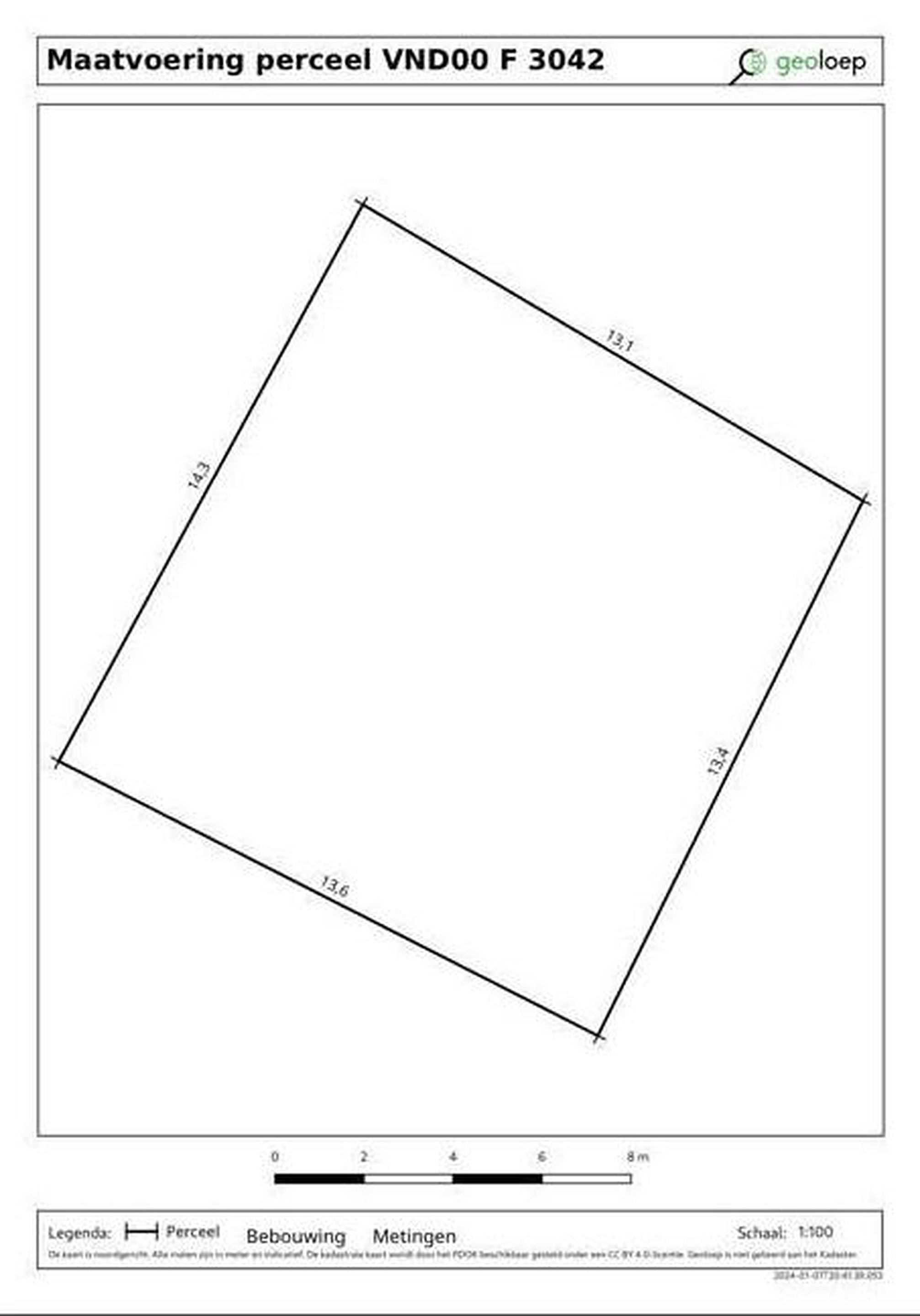
- Maten perceel (in totaal 603 m2): vanaf de weg breedte perceel 13,6m, lengte linkerzijde 48,8m, rechterzijde 47,9m, breedte perceel achter is 11,4m
- Groenstrook rechts van het perceel blijft groenstrook, blijft onbebouwd
- Er liggen offertes klaar voor een lava-gietvloer, een mooie keuken en een volledig maatwerk interieur (inbouwkasten)
- Het te verwachten energielabel zal zijn A ++++.

Voor meer informatie omtrent deze woning, kunt u contact opnemen met ons kantoor in Veenendaal.

U bent van harte welkom! De beste indruk van deze woning krijgt u natuurlijk tijdens een bezichtiging. Wij proberen onze bezichtigingen altijd in samenspraak met verkoper en koper te plannen en nemen ruim de tijd, zodat u op uw gemak de woning kan bekijken en ervaren.

N.B. Aan de samenstelling van deze gegevens is maximale zorg besteed. Aan onvolkomenheden in de vermelde gegevens en tekeningen kunnen geen rechten en aanspraken worden ontleend.
Lees meer

Kenmerken

Overdracht

Prijs per m2
€ 5.454
Aangeboden sinds
3 april 2026
Status
Beschikbaar
Aanvaarding
In overleg

Bouw

Soort woonhuis
Villa, vrijstaande woning
Soort bouw
Bestaande bouw
Bouwjaar
2026
Soort dak
Zadeldak
Staat van onderhouden binnen
Goed
Staat van onderhouden buiten
Goed

Oppervlakte en inhoud

Perceeloppervlakte
603 m2
Inhoud van de woning
899 m3

Indeling

Aantal kamers
7
Aantal slaapkamers
6
Aantal woonlagen
3
Voorzieningen
Tuin, ventilatie

Buitenruimte

Balkon
Nee
Schuur/berging
Nee

Maandlasten berekenen

De maandlasten voor je woning bestaan uit meer dan alleen de hypotheeklasten. Hieronder vind je een overzicht van de bijkomende kosten en lasten. Zo weet je precies wat je huis per maand gaat kosten. En met de handige vergelijkers kun je ook nog eens snel de beste deals sluiten!

  • Kaart
  • Streetview