Binnenweg 1270 8378 JJ Paasloo

88m2
Wonen
5
Kamers
524m2
Perceel
1999
Bouwjaar
Een grotendeels gerenoveerde vrijstaande recreatievilla met 2 badkamers gelegen in villapark “De Weerribben”, zeer geschikt voor verhuur en of eigen gebruik. De recreatiewoning beschikt verder over een woonkamer, keuken, bijkeuken en 4 slaapkamers. De tuin is gelegen rondom de recreatiewoning en voorzien van veel groen, een terras en parkeergelegenheid. De recreatiewoning staat op een perceel van 524m2 en heeft een woonoppervlakte van ca.88m2.
Begane grond
Entree/hal met trapopgang en een bijkeuken/berging voorzien van een deur naar de tuin. De gezellige woonkamer beschikt over openslaande tuindeuren en een keukenblok met diverse inbouwapparatuur, o.a. een gaskookplaat, afzuigkap, vaatwasser, combimagnetron en een koelkast. Via de hal bereikt u ook de slaapkamer en een badkamer voorzien van een douchehoek, toilet en een wastafel met meubel. Aan de buitenzijde van de villa is de meterkast bereikbaar.

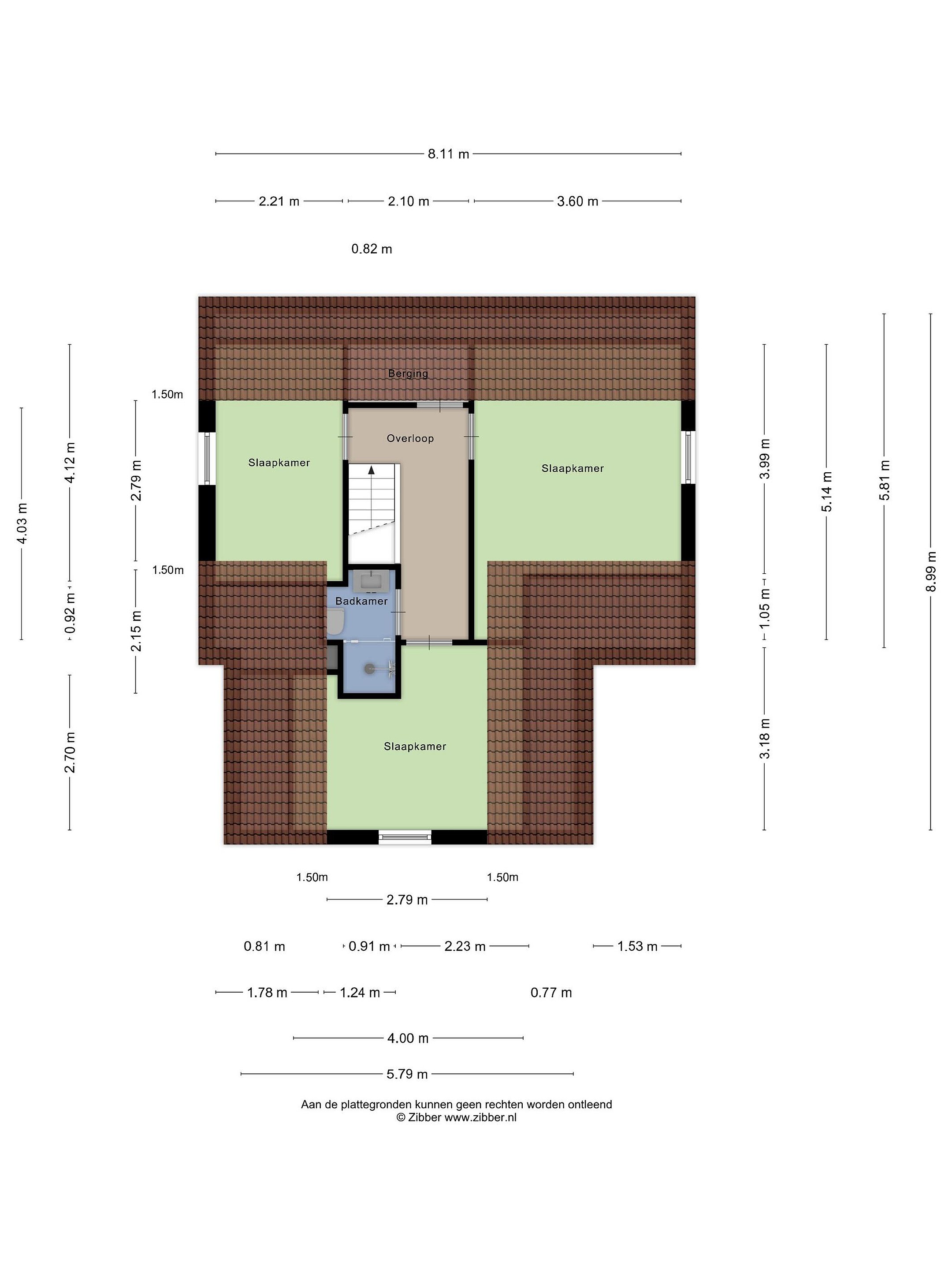
Eerste verdieping
Overloop met bergruimte, 3 slaapkamers en de tweede badkamer voorzien van een douchehoek, toilet en een wastafel in meubel.

Tuin
De tuin is gelegen rondom de woning en beschikt over veel groen, een terras en veel privacy. Aan de voorzijde is er parkeergelegenheid voor een auto.

Details
Bijzonderheden / resumé:
- de recreatievilla is grotendeels gerenoveerd en gemoderniseerd;
- de recreatievilla beschikt over een woonkamer met openslaande tuindeuren en keuken;
- de recreatievilla beschikt over een slaap- en badkamer op de begane grond;
- de recreatievilla beschikt totaal over 2 badkamers en 4 slaapkamers;
- de recreatievilla beschikt over een groene tuin rondom met terras en parkeergelegenheid;
- op het recreatiepark zijn o.a. een zwembad en een restaurant aanwezig;
- wilt u verhuren? Het park beschikt over diverse verhuurmogelijkheden.


Paasloo

Paasloo ligt in de Kop van Overijssel, een rijk natuurgebied met onder meer het "Kraggenlandschap" waarin een groot aantal meren en plassen ligt. Er zijn ontzettend veel wandel- fiets- en vaarmogelijkheden en er zijn tal van bewegwijzerde routes. Rond Paasloo vindt men houtwallenlandschappen, ten noorden van Steenwijk liggen bossen en landgoederen, grenzend aan heidevelden.

Direct aan het recreatiepark grenst het natuurgebied “Weerribben-Wieden", waar water, bies en moerasbos de sfeer bepalen. Dit gebied is één van de mooiste plekjes van Nederland. Men kan fietsen en wandelen langs de rietkragen, uitgestrekte weilanden en over historische polderdijkjes.

Lees meer

Kenmerken

Overdracht

Prijs per m2
€ 3.403
Aangeboden sinds
30 september 2025
Status
Beschikbaar
Aanvaarding
In overleg
Bijzonderheden
Gemeubileerd

Bouw

Soort woonhuis
Villa, vrijstaande woning
Soort bouw
Bestaande bouw
Bouwjaar
1999
Soort dak
Zadeldak
Staat van onderhouden binnen
Goed
Staat van onderhouden buiten
Goed

Oppervlakte en inhoud

Perceeloppervlakte
524 m2
Inhoud van de woning
328 m3

Indeling

Aantal kamers
5
Aantal slaapkamers
4
Aantal woonlagen
2
Voorzieningen
Tuin

Buitenruimte

Balkon
Nee
Schuur/berging
Nee

Maandlasten berekenen

De maandlasten voor je woning bestaan uit meer dan alleen de hypotheeklasten. Hieronder vind je een overzicht van de bijkomende kosten en lasten. Zo weet je precies wat je huis per maand gaat kosten. En met de handige vergelijkers kun je ook nog eens snel de beste deals sluiten!

  • Kaart
  • Streetview