De Duinen 512 3253 MR Ouddorp

90m2
Wonen
4
Kamers
666m2
Perceel
2016
Bouwjaar
Namens de eigenaren mogen wij u deze prachtig gelegen recreatievilla aanbieden. Deze zespersoons woning van het type luxe is gelegen op een royaal duinperceel van ruim 666 vierkante meter. De ligging is ideaal met een korte afstand tot de voorzieningen en de strandopgang. Daarnaast heeft deze villa nog veel extra’s zoals zonnepanelen, een laadpaal en een extra luxe buitenterras van hardhout met pergola.

Deze villa is gelegen binnen Landal Strand Resort Ouddorp Duin. Dit perfect geoutilleerde duinpark ligt pal aan het prachtige zandstrand. Binnen de woning en het park ervaart u het ideale onthaasten op een prachtige locatie. Door de diverse voorzieningen is er voor iedere leeftijdsgroep wat wils. U kunt hierbij denken aan winkels, horeca, het binnenzwembad, een theater en de duinspeeltuin, pumptrack en vele andere activiteiten die uw verblijf zullen optimaliseren. De meeste eigenaren van woningen binnen Ouddorp Duin genieten zowel van eigen gebruik van de woning als het financiële rendement.
Begane grond
Middels de duinpaden komt u bij de woning aan. Er is ruime parkeergelegenheid op eigen terrein aanwezig (dubbele parkeerplaats). De woning zelf is hoogwaardig afgewerkt met degelijke materialen. In de hal treft u de trapopgang, de garderobe, de ruime betegelde toiletruimte. Via de hal heeft u toegang tot de op de begane grond gesitueerde slaapkamer met een badkamer en-suite, voorzien van een sunshower. Anderzijds geeft de hal toegang tot de ruime en op het terras gerichte living. In de living treft u de open keuken aan, voorzien van alle benodigde luxe inbouwapparatuur. Via de brede schuifpui kunt u direct het privé gelegen hardhouten terras betreden.

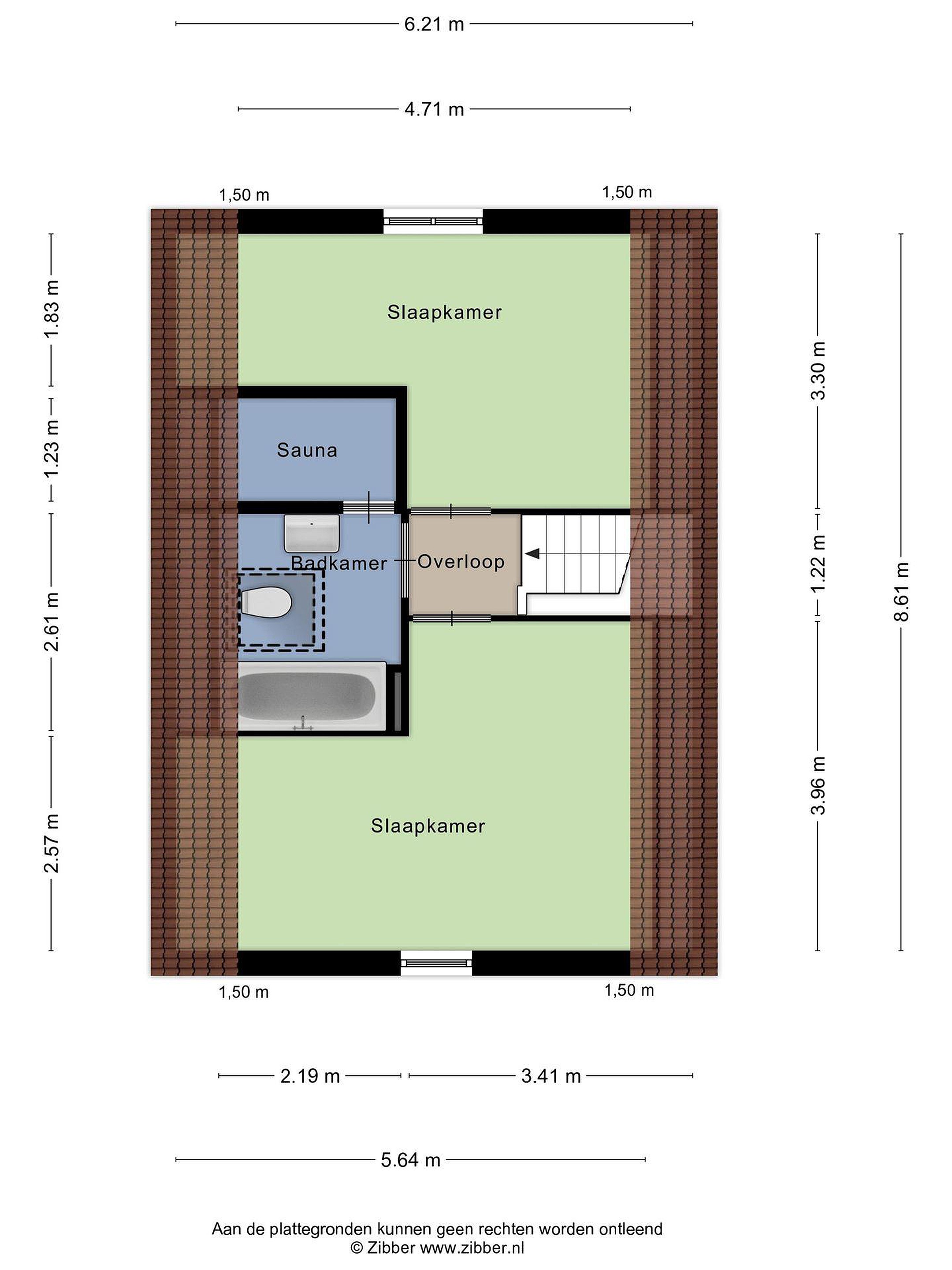
Eerste verdieping
Op de eerste verdieping heeft u vanaf de overloop toegang tot de twee ruime slaapkamers. Te midden van de slaapkamers treft u de complete badkamer aan. De badkamer is voorzien van een ligbad, toilet en wastafelmeubel, verder geeft de badkamer toegang tot de ruime sauna.

Tuin
Het duin rondom de woning is begroeid met helmgras en duindoorn, waardoor u veel privacy heeft op uw zuidelijk gelegen terras. De inpandige berging is buitenom te bereiken, hier is de opstelplaats van de cv-ketel en er is een eigenarenkast aanwezig voor het opslaan van uw privé-eigendommen. Verder is de berging voorzien van een was-/droogcombinatie.

Details
- Langdurig erfpachtcontract (2090) met vastgoedvergoeding
- Perfect geoutilleerd Landal park
- Er is een exclusief zwembad op het park aanwezig
- Luxe strandvilla met hoogwaardige afwerking, energielabel A, zonnepanelen en laadpaal
- Koopsom inclusief inventaris
- De woning wordt aangeboden met een koopsom kosten koper, exclusief btw, wij informeren u graag over de verrekening van de btw bij verhuur
- Oplevering in overleg

Lees meer

Kenmerken

Overdracht

Prijs per m2
€ 4.878
Aangeboden sinds
10 september 2025
Status
Beschikbaar
Aanvaarding
In overleg
Bijzonderheden
Gemeubileerd

Bouw

Soort woonhuis
Villa, vrijstaande woning
Soort bouw
Bestaande bouw
Bouwjaar
2016
Soort dak
Zadeldak
Staat van onderhouden binnen
Goed
Staat van onderhouden buiten
Goed

Oppervlakte en inhoud

Perceeloppervlakte
666 m2
Inhoud van de woning
335 m3
Oppervlakte overige inpandige ruimten
3 m2

Indeling

Aantal kamers
4
Aantal slaapkamers
3
Aantal woonlagen
2
Voorzieningen
Tuin, schuur/berging, ventilatie, schuifpui, sauna

Buitenruimte

Balkon
Nee
Schuur/berging
Ja

Maandlasten berekenen

De maandlasten voor je woning bestaan uit meer dan alleen de hypotheeklasten. Hieronder vind je een overzicht van de bijkomende kosten en lasten. Zo weet je precies wat je huis per maand gaat kosten. En met de handige vergelijkers kun je ook nog eens snel de beste deals sluiten!

  • Kaart
  • Streetview