De Duinen 439 3253 MR Ouddorp

90m2
Wonen
4
Kamers
531m2
Perceel
2016
Bouwjaar
Welkom op Landal Strand Resort Ouddorp Duin: een uniek gelegen park waar rust, ruimte en recreatie samenkomen tussen de duinen en het strand. Deze luxe 6-persoons recreatiewoning is centraal gelegen op het park en biedt alles voor een comfortabel verblijf. Met drie royale slaapkamers, een ruime living en zelfs een eigen sauna is deze woning de perfecte uitvalsbasis voor ontspanning en plezier.

Het perfect uitgeruste park Ouddorp Duin ligt aan het zandstrand van Ouddorp aan Zee, u ervaart hier het ultieme vakantiegevoel op een prachtige locatie. De meeste eigenaren van de woningen binnen Ouddorp Duin genieten van de mix van zowel het eigen gebruik als het financiële rendement. Het einde van de verplichte verhuurtermijn komt echter in zicht, wat betekent dat u de woning indien gewenst uit de verhuur kunt halen (per 01-01-2027) om de woning volledig zelf te kunnen gebruiken.
Begane grond
Bij binnenkomst komt u in een lichte hal die toegang geeft tot een moderne toiletruimte en de royale woonkamer. De living is sfeervol ingericht met een comfortabele zithoek, een eethoek en een grote raampartij met veel lichtinval. Via de openslaande deuren loopt u zo het terras op. De tegen de wand geplaatste keuken is voorzien van diverse inbouwapparatuur, waaronder een vaatwasser, combimagnetron en gasfornuis.

Op de begane grond bevindt zich tevens een slaapkamer met eigen badkamer, voorzien van een douche, sunshower en wastafel, ideaal voor extra comfort en privacy.

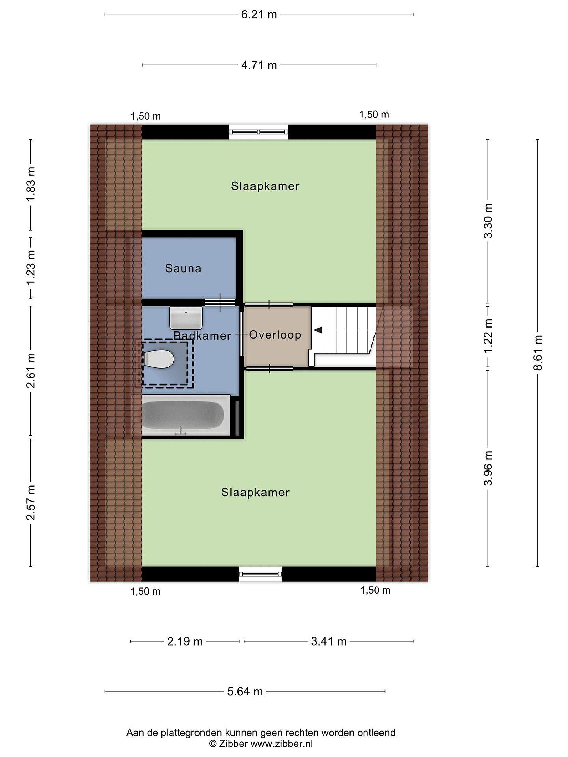
Eerste verdieping
Op de eerste verdieping bevinden zich twee ruime slaapkamers, elk ingericht met comfortabele boxspringbedden en voldoende kastruimte. De moderne badkamer op deze verdieping is voorzien van een ligbad, tweede toilet en een sauna, wat deze woning een extra luxe tintje geeft.

Tuin
Via de openslaande deuren in de woonkamer bereikt u het zonnige terras, perfect voor lange zomeravonden omringd door rust en natuur. De duinen rondom de woning zijn begroeid met helmgras. Door de begroeiing ervaart u op het zonnige vlonderterras, een enorm gevoel van privacy. Dit gevoel wordt nog eens extra versterkt door de tuinmuur en de pergola, welke uw verblijf optimaliseren.

Een externe berging, bereikbaar via de buitenzijde, biedt plaats voor fietsen, de was-droogcombinatie en de cv-installatie. Ook is er een eigenarenkast aanwezig voor het opbergen van persoonlijke spullen.

De woning ligt op loopafstand van het strand en nabij de gezellige dorpskern van Ouddorp. Het park zelf beschikt over uitstekende voorzieningen, waaronder een centrumgebouw met horeca, indoorspeelplaats, winkels, surfschool, supermarkt een zwembad en fietsverhuur. Het recreatiepark kenmerkt zich door een speelse opstelling van de verschillende woningen. Dit draagt bij aan de ontspannen en gastvrije sfeer op het park.

Details
- Luxe 6-persoons strandvilla
- Volledig gemeubileerd en instapklaar
- Voorzien van 8 zonnepanelen en een laadpaal op eigen terrein
- Permanente bewoning niet toegestaan
- In erfpacht uitgegeven perceel, het contract loopt tot eind 2090
- Eigen parkeergelegenheid bij de woning
- Goede verhuurmogelijkheden via Landal GreenParks
- Gelegen nabij strand, duinen en natuurgebieden
- Voorzien van energielabel A
- Oplevering kan snel

Lees meer

Kenmerken

Overdracht

Prijs per m2
€ 4.722
Aangeboden sinds
3 april 2026
Status
Beschikbaar
Aanvaarding
In overleg
Bijzonderheden
Gemeubileerd

Bouw

Soort woonhuis
Villa, vrijstaande woning
Soort bouw
Bestaande bouw
Bouwjaar
2016
Soort dak
Zadeldak
Staat van onderhouden binnen
Goed
Staat van onderhouden buiten
Goed

Oppervlakte en inhoud

Perceeloppervlakte
531 m2
Inhoud van de woning
335 m3
Oppervlakte overige inpandige ruimten
5 m2

Indeling

Aantal kamers
4
Aantal slaapkamers
3
Aantal woonlagen
2
Voorzieningen
Tuin, schuur/berging, ventilatie

Buitenruimte

Balkon
Nee
Schuur/berging
Ja

Maandlasten berekenen

De maandlasten voor je woning bestaan uit meer dan alleen de hypotheeklasten. Hieronder vind je een overzicht van de bijkomende kosten en lasten. Zo weet je precies wat je huis per maand gaat kosten. En met de handige vergelijkers kun je ook nog eens snel de beste deals sluiten!

  • Kaart
  • Streetview