Frederik Hendriklaan 14 2012 SH Haarlem

237m2
Wonen
8
Kamers
631m2
Perceel
1935
Bouwjaar
Zeer ruime (inhoud 953m3 / netto woonoppervlakte 237m2 / 631m2 eigen grond) en zeer rustig gelegen, goed onderhouden vrijstaande villa nabij de Haarlemmerhout met grote garage, geweldige achtertuin (ca. 27m diep / 14-10m breed) op het zuidwesten met heel veel privacy direct grenzend aan idyllische water (in de tuin huist vaak een ijsvogelfamilie).

De woning heeft een droge provisie-wijnkelder (4x2.6m + 4.55x2.6m), op de b.g.g. een grote en brede woonkamer met aansluitend een grote kantoor-werk-slaapkamer alsmede een moderne en uitgebouwde gezellige woon-eetkeuken (ca.7x3m). De (multifunctionele) vrijstaande stenen garage (ca.5.20x4m) met hoog puntdak en betonvloer beschikt over een ruime, bevloerde 2e etage (door het hoge plafond en uitstekende maatvoering is deze garage voor meerdere doeleinden geschikt). Door de grote hoeveelheid aan kamers (7 slaapkamers / 3 badkamers) en ramen rondom is dit een heel erg fijn familiehuis.

Deze statige, bijna majestueuze, energiezuinige villa (16 zonnepanelen - C label) is gelegen op de best denkbare locatie in Haarlem-Zuid; vlak bij de Haarlemmerhout, winkels Jan van Goyenstraat op ca. 250m, Haarlem Centrum en station Heemstede Aerdenhout op slechts een paar minuten fietsen, nabij het Spaarne. Aan de voorzijde een uitermate rustige straat met prachtige hoge bomen. De oprit van ca.30m biedt plaats aan meerdere auto's. Kortom, dit huis heeft echt alles om zeer comfortabel te wonen. Netto woonoppervlakte: 237m2. Inhoud: 953m3. Perceel: 631m2. Bouwjaar: 1937.
Prachtig metselwerk met verdiepte voegen.

Indeling:

Begane grond:
Entree, vestibule, trap naar grote droge provisie-wijnkelder (4x2.6m + 4.55x2.6m) met aansluiting t.b.v. diverse apparatuur; wasmachine / droger en close-in boiler. Ruime hal, toilet met fonteintje, garderobe, zeer fraai trappenhuis, deur naar grote (4m) brede woonkamer met deur naar (aansluitend) een grote werk-kantoor-(slaap)-zijkamer (ca.4x3.5m) met openslaande deuren naar / toegang tot de voortuin. Woonkamer (13m lang) met heel veel zijramen, open haard (aangesloten op CV systeem) en een schuifpui naar de prachtige zonnige achtertuin. De direct naast de woonkamer gelegen grote zijkamer kan eventueel ook bij de woonkamer betrokken worden. De moderne, ruime, lichte (uitgebouwde) eet-woonkeuken (ca.7x3m) met vloerverwarming heeft via 3 ramen en een achterdeur direct zicht op de achtertuin en beschikt over inbouw apparatuur.

Achtertuin: Gelegen aan water met uitloop naar een vijver met bebost eilandje.
Gelegen op het zuidwesten (ca.27m diep en ca. 14-10m breed).
Heel veel privacy en optimaal genieten van de zon!

Voortuin ca. 7m diep en 14m breed en zijtuin.

Eerste verdieping:
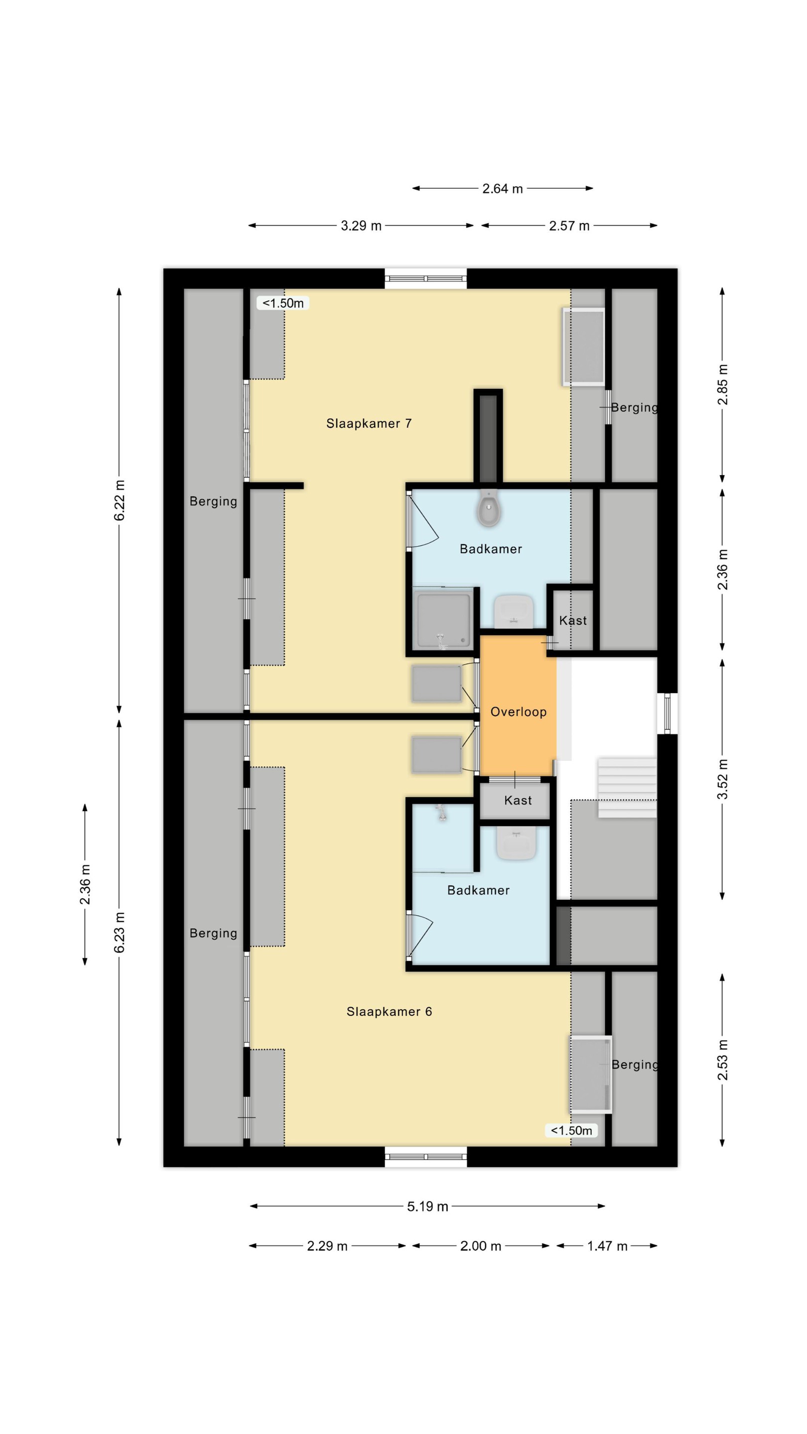
Via fraai trappenhuis en luie trap toegang tot de overloop met toilet, aparte inbouwkast met CV installatie. 4 ruime en lichte slaapkamers met diverse inbouwkasten en heel veel ramen. De achterste slaapkamer heeft openslaande deuren naar het balkon met zicht op de gehele achtertuin. Ruime badkamer met douche, separaat ligbad en wastafelmeubel.

Tweede verdieping:
Overloop met inbouwkast, 2 zeer ruime slaapkamers en 2 badkamers voorzien van douche, vaste wastafel en 1 badkamer heeft een sanibroyeur toilet.

Derde etage: vliering

Garage: zeer grote en brede (multifunctionele) vrijstaande stenen garage (ca.5.20x4m) met betonvloer, afvoer, aansluitingen t.b.v. verwarming en een ruime, bevloerde 2e etage (stahoogte / door het hoge plafond is deze ruimte voor meerde doeleinden geschikt).

Algemeen:
Het water direct grenzend aan de achtertuin is geen doorvaarroute voor boten (privacy voor de bewoners blijft hierdoor gewaarborgd).
Gebouwd in de kenmerkende ‘30-er jaren bouwstijl met verdiepte voegen.
Gelegen aan een uitermate rustige laan met veel hoge bomen die een bijna parkachtige sfeer geven.
7 slaapkamers, 3 badkamers, woonkeuken, kelder en garage .
Uitgebouwde woon-eetkeuken (ca.7x3m) met vloerverwarming.
Professionele alarminstallatie aanwezig, aangesloten op de meldkamer.
Veel vaarwater in de nabije omgeving (Spaarne en Crayenestervaart).
Nieuwe groepenkast (vernieuwd 2023) 12 groepen / 3-fasen (optie autoladen pal naast de woning).
Energiezuinige woning; 16 zonnepanelen. Optimale ligging, totaal 6.720 Wattpiek met 16 omvormers (hoge eigen energie opbrengst / rapporten te overleggen).
Grote provisie-wijnkelder (4x2.6m + 4.55x2.6m) waterdicht.

Oprijlaan van ca. 30m naar grote vrijstaande garage (parkeren op eigen terrein).
Achtertuin (ca. 27m diep / 14-10m breed) met heel veel privacy, direct grenzend aan idyllische water via duikers verbonden met de Crayenestervaart.
Veel originele stijlkenmerken zoals glas-in-loodramen, paneeldeuren en een prachtig trappenhuis.
Schilderwerk westgevel uitgevoerd 2025.
Fantastische achtertuin met ijsvogeltjesfamilie.
Vrijwel de gehele woning is voorzien van dubbel glas.
Gelegen nabij scholen, sportfaciliteiten en ideaal t.o.v. uitvalswegen (A`dam / Utrecht / Den Haag),
ca.15 minuten met de auto naar Schiphol
Op loopafstand van de Haarlemmerhout, winkelstraat Jan van Goyenstraat en de Binnenweg en slechts een paar minuten fietsen van station Heemstede Aerdenhout en het centrum van Haarlem.

Een unieke plek in Haarlem-Zuid waar comfort, ruimte en natuur samenkomen.
Aanvaarding in overleg.
Lees meer

Kenmerken

Overdracht

Prijs per m2
€ 7.571
Aangeboden sinds
18 september 2025
Status
Beschikbaar
Aanvaarding
In overleg

Bouw

Soort woonhuis
Villa, vrijstaande woning
Soort bouw
Bestaande bouw
Bouwjaar
1935
Soort dak
Zadeldak
Staat van onderhouden binnen
Goed
Staat van onderhouden buiten
Goed

Oppervlakte en inhoud

Perceeloppervlakte
631 m2
Inhoud van de woning
953 m3
Oppervlakte externe bergruimte
19 m2
Oppervlakte gebouwgebonden buitenruimten
2 m2
Oppervlakte overige inpandige ruimten
26 m2

Indeling

Aantal kamers
8
Aantal slaapkamers
7
Aantal woonlagen
4
Voorzieningen
Tuin, balkon, alarmsysteem, open haard, rookkanaal, schuifpui, dakraam

Buitenruimte

Balkon
Ja
Schuur/berging
Nee

Maandlasten berekenen

De maandlasten voor je woning bestaan uit meer dan alleen de hypotheeklasten. Hieronder vind je een overzicht van de bijkomende kosten en lasten. Zo weet je precies wat je huis per maand gaat kosten. En met de handige vergelijkers kun je ook nog eens snel de beste deals sluiten!

  • Kaart
  • Streetview