Verkocht OV

Osdorperweg 886 1067 TD Amsterdam

175m2
Wonen
6
Kamers
503m2
Perceel
1999
Bouwjaar
Prachtig gelegen vrijstaande villa met een grote tuin (eigen grond), oprit voor meerdere auto´s en volop privacy met vrij uitzicht over water en natuurgebied.
** English below **

Wat mogen wij u aanbieden. Een royale en goed onderhouden vrijstaande villa met een vloeroppervlakte van 189 m2, serre, carport, berging en parkeergelegenheid voor meerdere auto’s op eigen terrein. Naast de tuin aan de voorzijde is er een zijtuin en heerlijke achtertuin. De woning, gebouwd in 1999, maakt onderdeel uit van een kleinschalig hofje met enkele vrijstaande woningen.

U heeft ongetwijfeld iets meegekregen over de discussie rond erfpacht en vooral de daarmee gemoeide kosten. Daar hoeft u zich in dit geval geen zorgen over te maken, de woning is namelijk op eigen grond gelegen.

Locatie en bereikbaarheid
Vrijstaand wonen in Amsterdam is bijzonder en helemaal met dit vrije uitzicht.
De woning ligt in Amsterdam, maar Halfweg is ook op korte afstand. Dus naast alle voorzieningen in Amsterdam zijn ook het centrum van Halfweg en Zwanenburg vlakbij. Winkels, restaurants, sportfaciliteiten en recreëren is allemaal in de buurt. Alle voorzieningen die u wenst liggen onder handbereik.

Met eigen Vervoer bent u snel in Amsterdam en ook de uitvalswegen zijn eenvoudig bereikbaar. Vanaf Osdorp of Halfweg zijn er diverse buslijnen. Liever met de trein? NS-station Halfweg-Zwanenburg ligt op korte afstand.

**

Beautifully located detached villa on a spacious plot of private land, with plenty of privacy and unobstructed views over water and a nature reserve.

What may we offer you.
A spacious and well-maintained detached villa with a floor area of 189 m2, conservatory, carport, storage room and parking for several cars on site. In addition to the garden at the front, there is a side garden and delightful rear garden. The house, built in 1999, is part of a small courtyard of 10 detached houses.

You have undoubtedly heard something about the discussion surrounding ground lease and especially the costs involved. There is no need to worry about that in this case, as the house is located on its own land.

Location and accessibility
Detached living in Amsterdam is special and especially with this unobstructed view.
The property is located in Amsterdam, but Halfweg is also a short distance away. So besides all the amenities in Amsterdam, the centre of Halfweg and Zwanenburg are also nearby. Shops, restaurants, sports facilities and recreation is all nearby. All the amenities you want are at your fingertips.

You can quickly reach Amsterdam with your own transport and the arterial roads are also easily accessible. There are various bus lines from Osdorp or Halfweg. Prefer to take the train? NS railway station Halfweg-Zwanenburg is a short distance away.





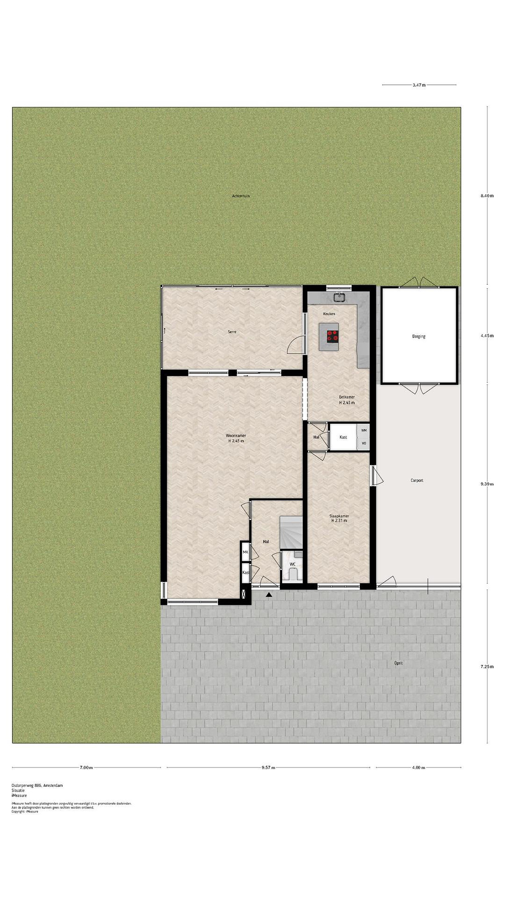
Begane grond
Entrée van de woning aan de voorzijde. Via de ruimte hal met toilet en garderobe komt u in de woonkamer. Vanuit de woonkamer komt u in de half open keuken en serre. Tot slot is er nog een werkkamer.
1e verdieping; Vier slaapkamers en de badkamer.
2e verdieping; Zolderverdieping, slaapkamer en berging.

De begane grond is v.v. een fraaie plavuizen vloer en in de woonkamer treft u onder meer een gezellige (gas) haard met marmeren schouw aan. De keuken is v.v. diverse inbouwapparatuur. Op de 1e verdieping ligt, m.u.v. de ruime badkamer een vrijwel nieuwe pvc vloer. De markiezen aan de voorzijde zijn van 2023.

Aan de voorzijde en onder de (afsluitbare) carport is er ruime parkeergelegenheid op eigen terrein. Daarnaast is er nog een berging van ruim 15 m2, bereikaar vanuit zowel de tuin als de carport.

Tuin
Naast de tuin aan de voorzijde, deels ingericht t.b.v. parkeren, is er een zijtuin en heerlijke achtertuin.

Details
De foto´s geven uiteraard een goed beeld van de woning weer, maar om echt een indruk van deze woning te krijgen zijn wij van mening dat u het beste kunt komen kijken. Nieuwsgierig of meer informatie? Maak snel een afspraak, wij leiden u met plezier rond en informeren u graag.

Lees meer

Kenmerken

Overdracht

Prijs per m2
€ 6.143
Aangeboden sinds
19 mei 2025
Status
Verkocht onder voorbehoud
Aanvaarding
In overleg

Bouw

Soort woonhuis
Villa, vrijstaande woning
Soort bouw
Bestaande bouw
Bouwjaar
1999
Soort dak
Samengesteld dak
Staat van onderhouden binnen
Goed
Staat van onderhouden buiten
Goed

Oppervlakte en inhoud

Perceeloppervlakte
503 m2
Inhoud van de woning
624 m3
Oppervlakte externe bergruimte
41 m2
Oppervlakte gebouwgebonden buitenruimten
38 m2
Oppervlakte overige inpandige ruimten
14 m2

Indeling

Aantal kamers
6
Aantal slaapkamers
5
Aantal woonlagen
3
Voorzieningen
Tuin, schuur/berging, alarmsysteem, buitenzonwering

Buitenruimte

Balkon
Nee
Schuur/berging
Ja

Maandlasten berekenen

De maandlasten voor je woning bestaan uit meer dan alleen de hypotheeklasten. Hieronder vind je een overzicht van de bijkomende kosten en lasten. Zo weet je precies wat je huis per maand gaat kosten. En met de handige vergelijkers kun je ook nog eens snel de beste deals sluiten!

  • Kaart
  • Streetview