Kieftveen 18192 3781 PP Voorthuizen

30m2
Wonen
2
Kamers
154m2
Perceel
2022
Bouwjaar
Welkom op een heerlijke plek waar ontspanning en comfort samenkomen. Op de prachtige Veluwe vind je deze moderne, sfeervolle recreatiewoning uit 2022, gelegen op Recreatiepark De IJsvogel in Voorthuizen. Een fijne uitvalsbasis voor wie wil genieten van rust, natuur én goede voorzieningen, zonder in te leveren op gemak.

Ligging:
De ligging is ideaal. Het park is goed bereikbaar met zowel de auto als het openbaar vervoer en ligt centraal in Nederland, vlak bij uitvalswegen richting Amersfoort, Apeldoorn en Barneveld. Je zit hier midden op de Veluwe, een van de mooiste natuurgebieden van het land. In de directe omgeving kun je eindeloos wandelen en fietsen door bossen en heide, maar ook leuke uitstapjes maken naar gezellige dorpen, dierentuinen, musea en attracties voor jong en oud.

Woning:
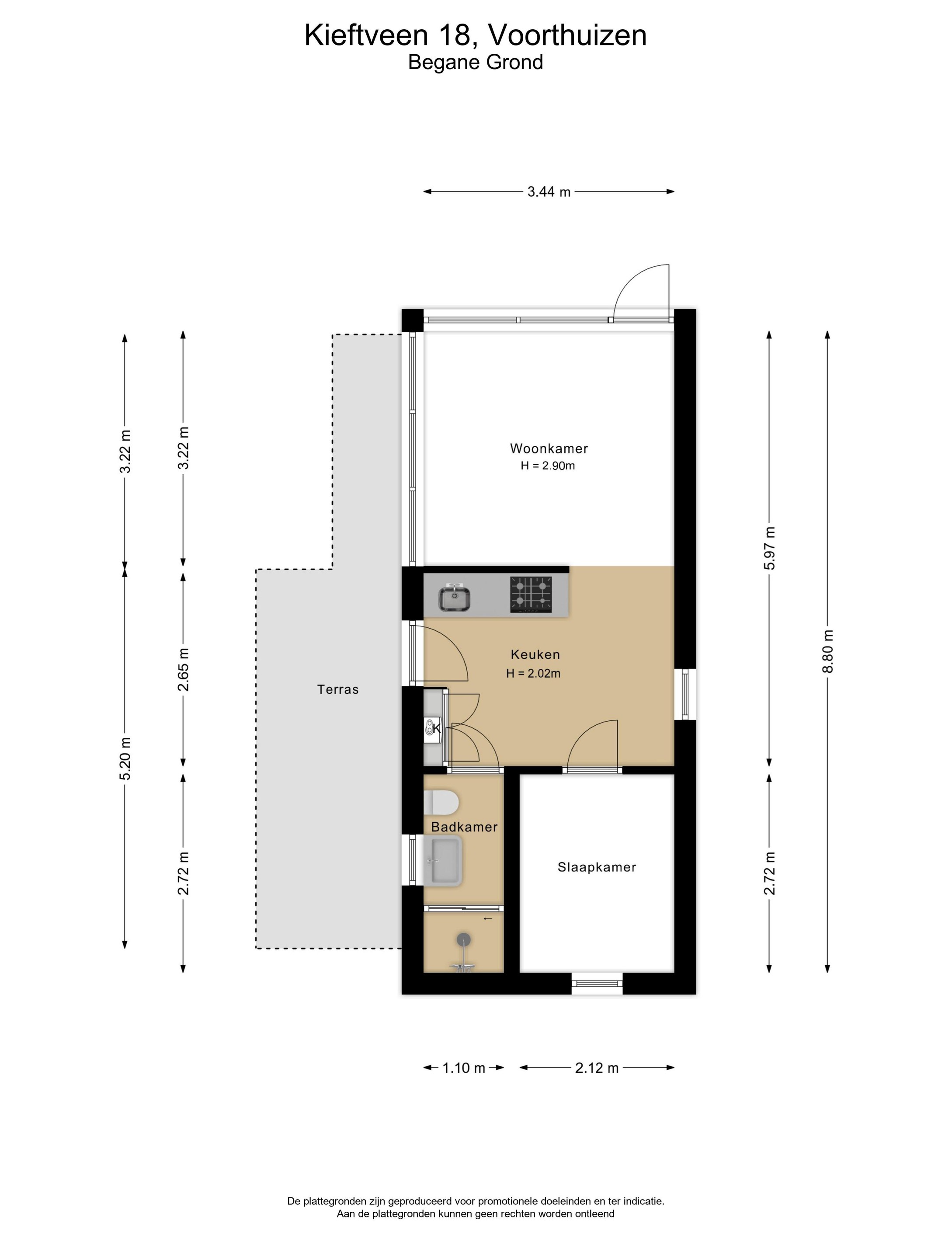
Je komt binnen in de keuken met doorloop naar de lichte woonkamer, waar grote ramen zorgen voor een prettige sfeer en een vrij uitzicht over een ruim speelveld. Een fijne plek om tot rust te komen of gezellig samen te zijn. De keuken is compleet ingericht en van alle gemakken voorzien. De woning beschikt over één comfortabele slaapkamer en een nette, volledige badkamer met douche, wastafel en toilet. Alles is modern afgewerkt en instapklaar, zodat je direct kunt genieten.

Tuin:
Rondom de woning ligt een ruime tuin met grasgazon en een terras. Het geheel is gelegen op een perceel van maar liefst 154 m2 eigen grond.

Park:
Op het park hoef je je geen moment te vervelen. Recreatiepark De IJsvogel biedt uitgebreide voorzieningen zoals een restaurant, snackbar, supermarkt, zwembad (binnen en buitenbad), wellnessfaciliteiten, sport- en speelvoorzieningen en een gevarieerd animatieprogramma. Alles is aanwezig om je verblijf zo comfortabel en ontspannen mogelijk te maken.

Goed om te weten is dat permanente bewoning niet is toegestaan. Er is een parkreglement beschikbaar en de jaarlijkse parkkosten bedragen € 1.779,-. Ben je op zoek naar een moderne recreatiewoning op een toplocatie waar je elk weekend of elke vakantie het ultieme Veluwegevoel ervaart? Dan zou dit zomaar jouw plek kunnen zijn.


Aanvaarding/oplevering in overleg.

Deze informatie is door ons met de nodige zorgvuldigheid samengesteld. Onzerzijds wordt echter geen enkele aansprakelijkheid aanvaard voor enige onvolledigheid, onjuistheid of anderszins, dan wel de gevolgen daarvan. Alle opgegeven maten en oppervlakten zijn indicatief.




Lees meer

Kenmerken

Overdracht

Prijs per m2
€ 4.125
Aangeboden sinds
2 maart 2026
Status
Beschikbaar
Aanvaarding
In overleg

Bouw

Soort woonhuis
Stacaravan, vrijstaande woning
Soort bouw
Bestaande bouw
Bouwjaar
2022
Soort dak
Samengesteld dak
Staat van onderhouden binnen
Uitstekend
Staat van onderhouden buiten
Uitstekend

Oppervlakte en inhoud

Perceeloppervlakte
154 m2
Inhoud van de woning
156 m3

Indeling

Aantal kamers
2
Aantal slaapkamers
1
Aantal woonlagen
1
Voorzieningen
Tuin

Buitenruimte

Balkon
Nee
Schuur/berging
Nee

Maandlasten berekenen

De maandlasten voor je woning bestaan uit meer dan alleen de hypotheeklasten. Hieronder vind je een overzicht van de bijkomende kosten en lasten. Zo weet je precies wat je huis per maand gaat kosten. En met de handige vergelijkers kun je ook nog eens snel de beste deals sluiten!

  • Kaart
  • Streetview