Genenberg 19 5872 AL Broekhuizen

36m2
Wonen
2
Kamers
2891m2
Perceel
2025
Bouwjaar
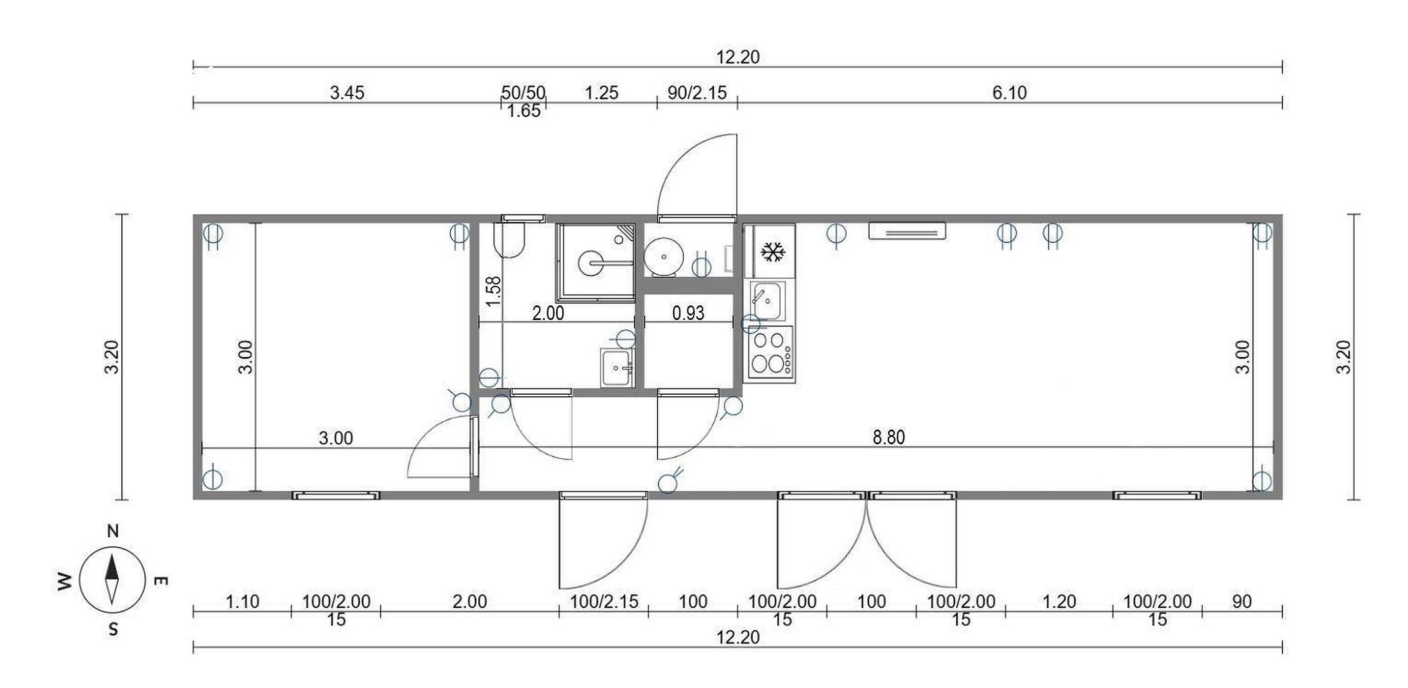
TE Koop : Mobiele woning ,bestaande uit woonkamer met tuindeuren ,inbouwkeuken met vaatwasser ,koelkast , kookplaat, afzuigkap ,een slaapkamer ,badkamer met douche ,toilet en wastafel totaal in perfecte staat prijs is inclusieve B.T.W. (Verkoper wil voor 1500 euro inclusief BTW de mobiele wagen brengen op een adres in Nederland .
Lees meer

Kenmerken

Overdracht

Prijs per m2
€ 1.260
Aangeboden sinds
13 januari 2026
Status
Beschikbaar
Aanvaarding
Direct

Bouw

Soort woonhuis
Stacaravan, vrijstaande woning
Soort bouw
Bestaande bouw
Bouwjaar
2025
Staat van onderhouden binnen
Uitstekend
Staat van onderhouden buiten
Uitstekend

Oppervlakte en inhoud

Perceeloppervlakte
2891 m2
Inhoud van de woning
94 m3

Indeling

Aantal kamers
2
Aantal slaapkamers
1
Aantal woonlagen
1
Voorzieningen
Airconditioning

Buitenruimte

Balkon
Nee
Schuur/berging
Nee

Maandlasten berekenen

De maandlasten voor je woning bestaan uit meer dan alleen de hypotheeklasten. Hieronder vind je een overzicht van de bijkomende kosten en lasten. Zo weet je precies wat je huis per maand gaat kosten. En met de handige vergelijkers kun je ook nog eens snel de beste deals sluiten!