Verkocht

Tasmanië 124 2721 GB Zoetermeer

153m2
Wonen
5
Kamers
220m2
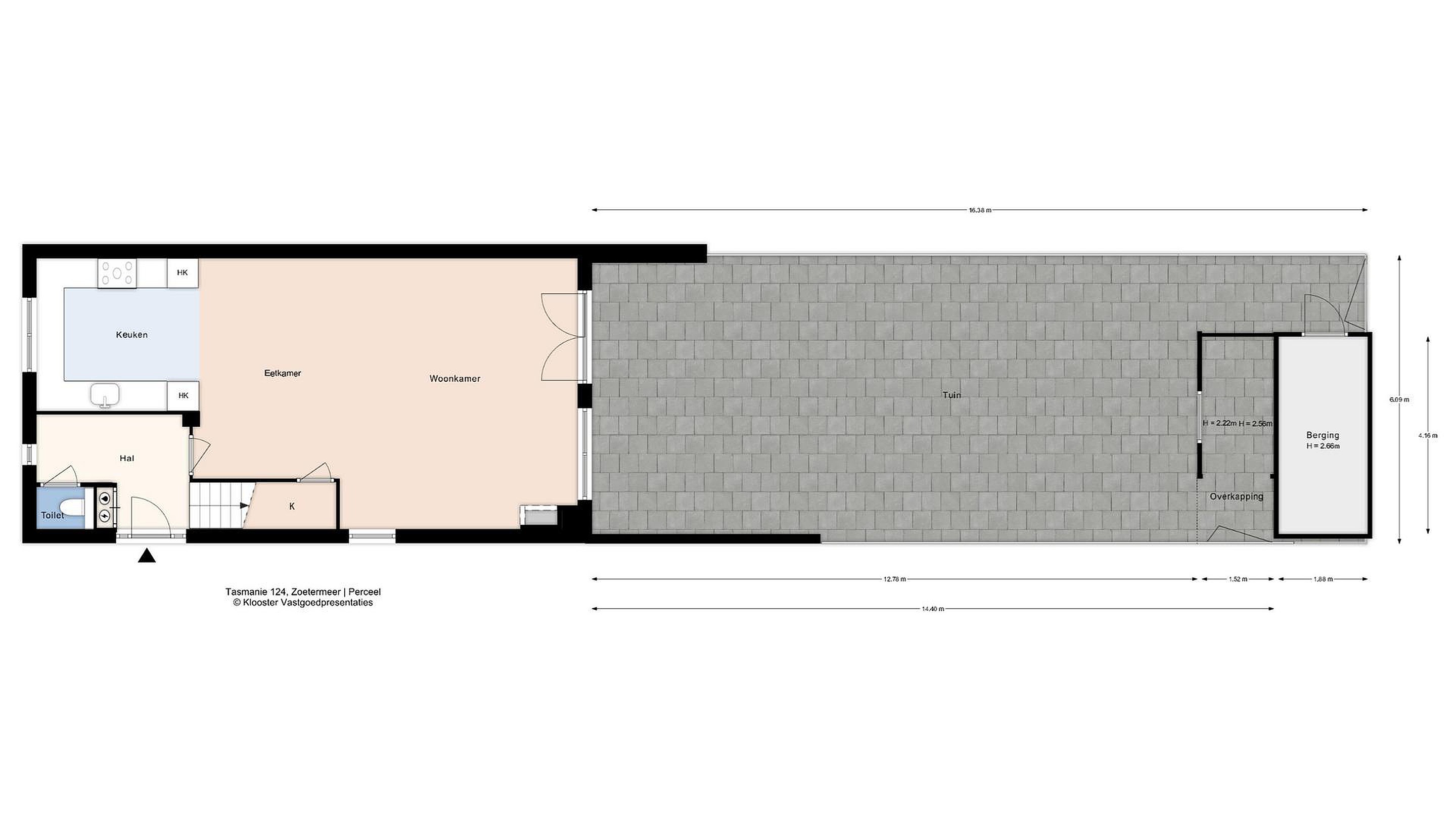
Perceel
2007
Bouwjaar
Gezinnen opgelet!
Bent u op zoek naar een zeer kindvriendelijke wijk met de leukste speelmogelijkheden voor de deur? Dan bent u hier aan het juiste adres! Deze riante (ca. 154 m2) 5 kamer hoek eengezinswoning is v.v. een ruime woonkamer, open keuken, riante achtertuin, nette badkamer en voldoende slaapkamers en beschikt over energielabel A+++.

De woning is gelegen aan het Heempark en Heemkanaal waar de kinderen alle vrijheid hebben om heerlijk te spelen. Voor de ouders is het ideaal om te sporten of gewoonweg ’s avonds een blokje om te lopen. Met het winkelcentrum Oosterheem op loopafstand v.v. diverse winkels en eetgelegenheden, tal van scholen en openbaar vervoer mogelijkheden binnen handbereik maakt het een ideale ligging.

Kortom een woning welke zeker een bezichtiging waard is!
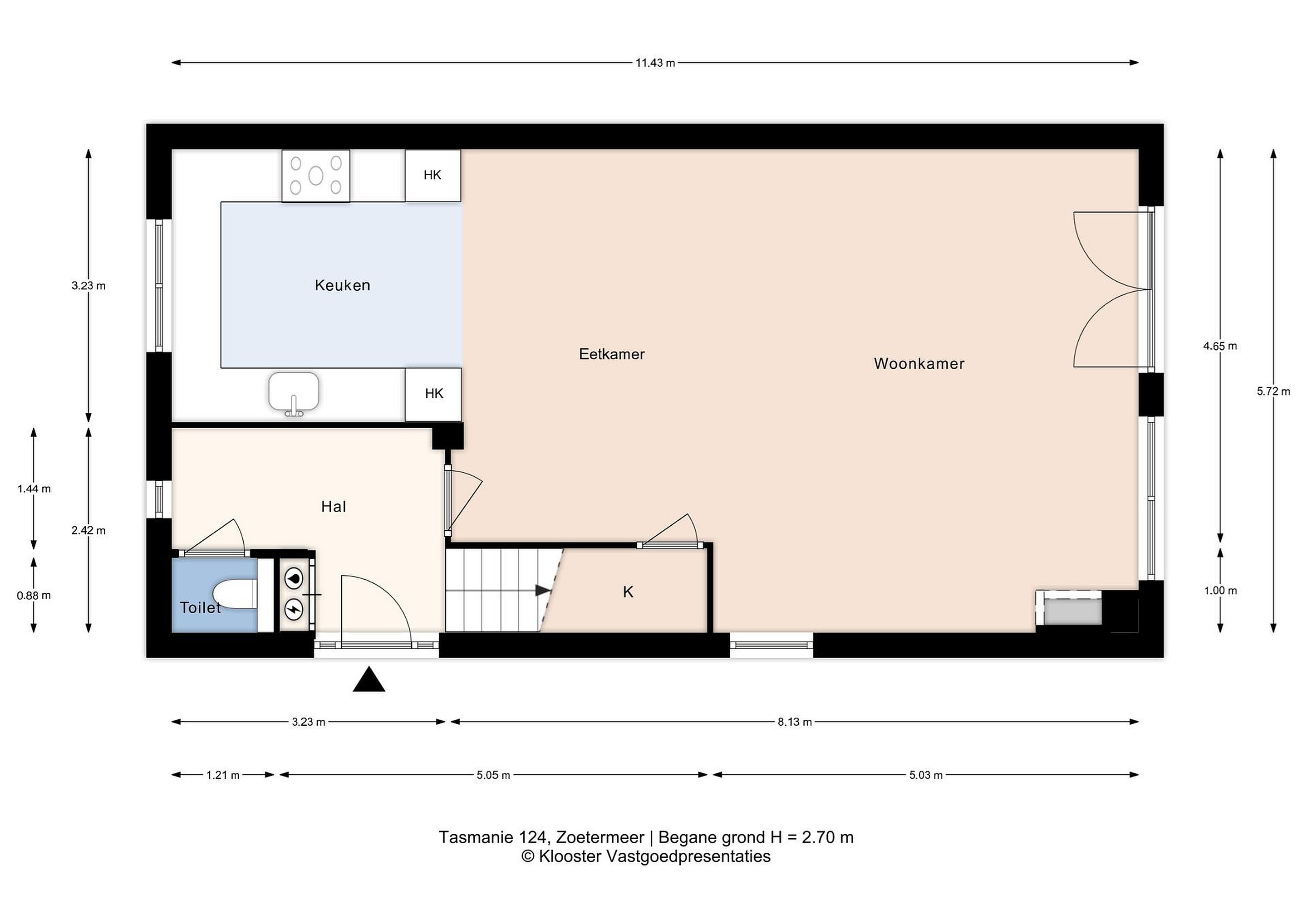
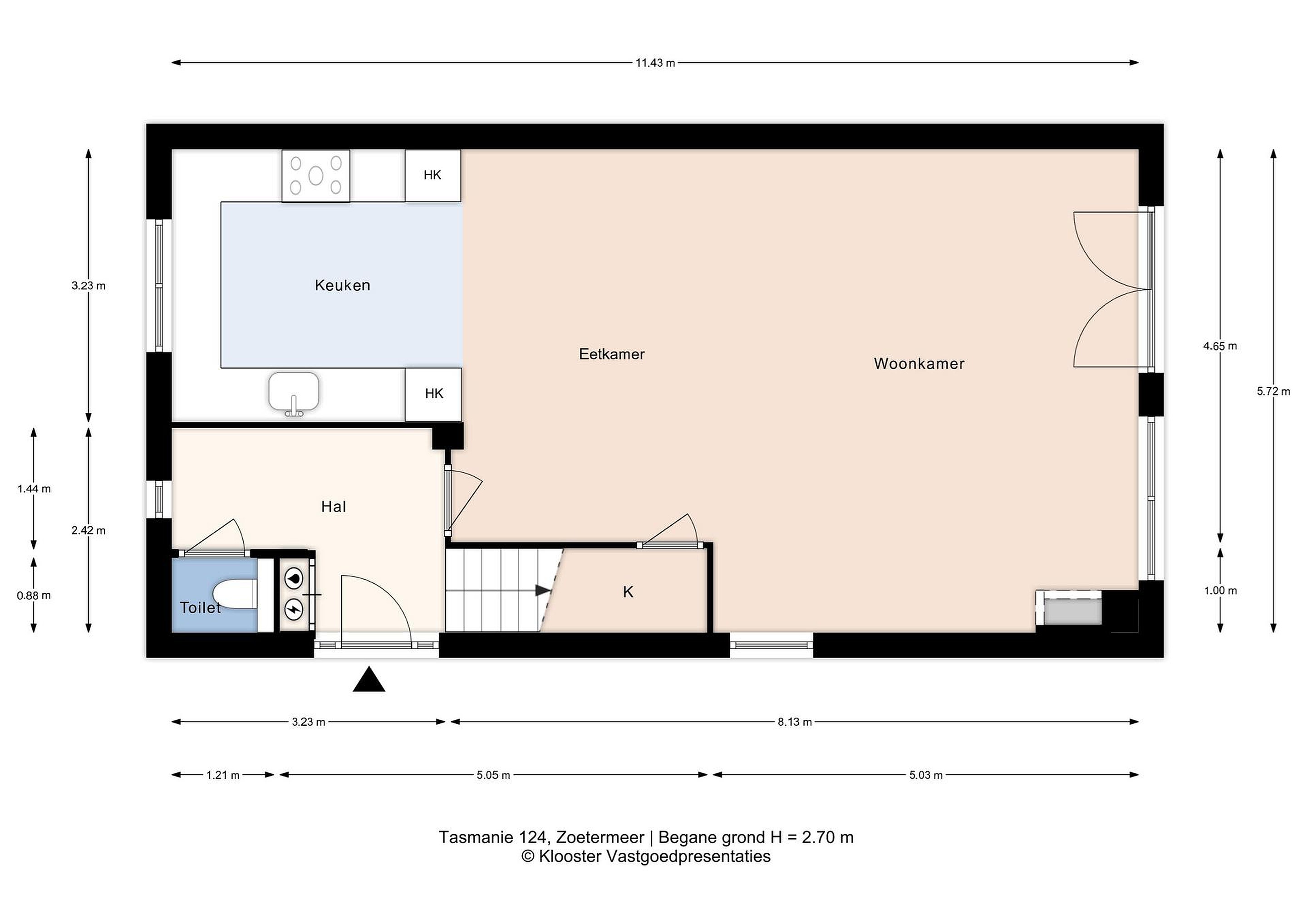
Begane grond
Entree woning, ruime hal v.v. meterkast (11 groepen + 4x ALS en 3 fasestroom) en keurig toilet. De woonkamer is van riante afmeting, heeft een goede lichtinval en is v.v. een ruime trapkast, gashaard en open keuken. De moderne keuken (geplaatst in 2021) is v.v. 1 ½ spoelbak, 5 pits inductie kookplaat, afzuigkap, vaatwasser, aparte koelkast en vriezer. De achtertuin is fraai aangelegd en keurig verzorgd met een zijdeur direct naar de openbare weg. De extra schuur met rolluik, achterom en zonligging (Z/O) geven u alle comfort welke u van een tuin mag verwachten. De twee achtergelegen afgesloten parkeerplaatsen zijn eveneens een ideale toevoeging. 1e verdieping: aan de achterzijde treft u een ideale kastenkamer aan, de naastgelegen ouderslaapkamer is v.v. airco en is van prima formaat. De badkamer is keurig verzorgd en v.v. dubbel wastafelmeubel, dubbele douche en volledig betegeld. Separate toilet op de overloop en een zeer riante slaapkamer aan de voorzijde van de woning. 2e verdieping: technische ruimte alwaar opstelplaats wasmachine-/droger, omvormer zonnepanelen, zonneboiler (400L), warmtepomp en cv-combi ketel. De slaapkamer aan de voorzijde is thans in gebruik als logeer/studeerkamer.

Kortom een ruim instap klaar huis op een zeer fijne locatie gelegen!


Details
- Type woning: hoekwoning
- Bouwjaar 2007
- Woonoppervlak ca. 154 m2
- De woning is gelegen op eigen grond
- De woning is geheel v.v. dubbel glas en volledig geïsoleerd
- De begane grond is v.v. vloerverwarming
- De woning beschikt over energielabel A+++
- In 2019 is er een warmtepomp geplaatst
- In 2018 is er een zonneboiler geplaatst
- De woning is voorzien van 28 zonnepanelen
- Er is een extra berging bijgebouwd in de tuin
- De woning is v.v. alarminstallatie
- De woning is v.v. 5 camera’s
- Oplevering in overleg

Lees meer

Verkoopgeschiedenis

Aangeboden sinds
25 augustus 2025
Verkoopdatum
27 oktober 2025
Looptijd
2 maanden

Kenmerken

Overdracht

Prijs per m2
€ 4.451
Aangeboden sinds
25 augustus 2025
Status
Verkocht
Aanvaarding
In overleg

Bouw

Soort woonhuis
Herenhuis, hoek woning
Soort bouw
Bestaande bouw
Bouwjaar
2007
Staat van onderhouden binnen
Goed
Staat van onderhouden buiten
Goed

Oppervlakte en inhoud

Perceeloppervlakte
220 m2
Inhoud van de woning
560 m3
Oppervlakte externe bergruimte
7 m2

Indeling

Aantal kamers
5
Aantal slaapkamers
4
Aantal woonlagen
3
Voorzieningen
Tuin, schuur/berging, ventilatie, alarmsysteem

Buitenruimte

Balkon
Nee
Schuur/berging
Ja

Maandlasten berekenen

De maandlasten voor je woning bestaan uit meer dan alleen de hypotheeklasten. Hieronder vind je een overzicht van de bijkomende kosten en lasten. Zo weet je precies wat je huis per maand gaat kosten. En met de handige vergelijkers kun je ook nog eens snel de beste deals sluiten!

  • Kaart
  • Streetview