Deken van Oppensingel 29 5911 AA Venlo

203m2
Wonen
7
Kamers
205m2
Perceel
1936
Bouwjaar
Fantastische kans in hartje Venlo: karakteristiek herenhuis met stijl en ruimte!

Welkom bij dit prachtige woonhuis gelegen aan de Deken van Oppensingel 29 in Venlo-Centrum. Dit charmante twee-onder-een-kap herenhuis uit 1936 is in 2004 prachtig verbouwd en biedt alles wat je zoekt in een droomwoning.

Licht en ruimte komen samen in deze woning met zijn royale en sfeervolle woonkamer van maar liefst 66 vierkante meter, compleet met niet één, maar twee gezellige gashaarden. De moderne keuken, voorzien van een eiland, nodigt uit tot culinaire hoogstandjes en gezellig samenzijn.

Met maar liefst vijf slaapkamers is er ruimte genoeg voor iedereen, of het nu gaat om een gezin, een samengesteld gezelschap of gasten die je wilt verwelkomen. De moderne badkamer beschikt over een inloopdouche, wastafel en een tweede toilet voor optimaal comfort.

Geniet van het buitenleven in de stadstuin en een trap die leidt naar een dakterras, waar je kunt ontspannen en genieten van het uitzicht op de levendige omgeving.

Dit herenhuis ademt karakter en biedt alle comfort die je nodig hebt. Met een ruime zolder kelders voor was, cv en bergruimtes, is er ook voldoende opslagruimte aanwezig.

Deze 2 onder 1 kap woning is ideaal gelegen in het centrum van Venlo, direct aan het Julianapark, een toplocatie die zeer gewild is vanwege al het moois dat de omgeving te bieden heeft.

Mis deze unieke kans niet om te wonen in een van de meest geliefde wijken van Venlo!

Ben jij klaar om de volgende stap te zetten en jezelf een thuis te geven dat alles is wat je ooit gehoopt had? Dan is dit herenhuis aan de Deken van Oppensingel 29, met al zijn charme en moderne gemakken, precies wat je zoekt. Maak snel een afspraak voor een bezichtiging en laat je betoveren door alles wat deze woning te bieden heeft.
Begane grond
- Entree/hal met eiken vloer.
- Toilet met fonteintje.
- Gesloten keuken (2004) met eiken vloer en moderne inrichting inclusief kookeiland. De keuken is voorzien van een keramische kookplaat, grillplaat, afzuigkap, vaatwasser, koelkast en vrieskast.
- Zeer royale en bijzonder fraaie woonkamer (ca. 66m2) met erker, moderne laminaatvloer, stucwanden en 2 sfeervolle gashaarden.
- Royale kelderruimtes (ca. 26m2) o.a. provisie-/was-/c.v.- en bergruimte.

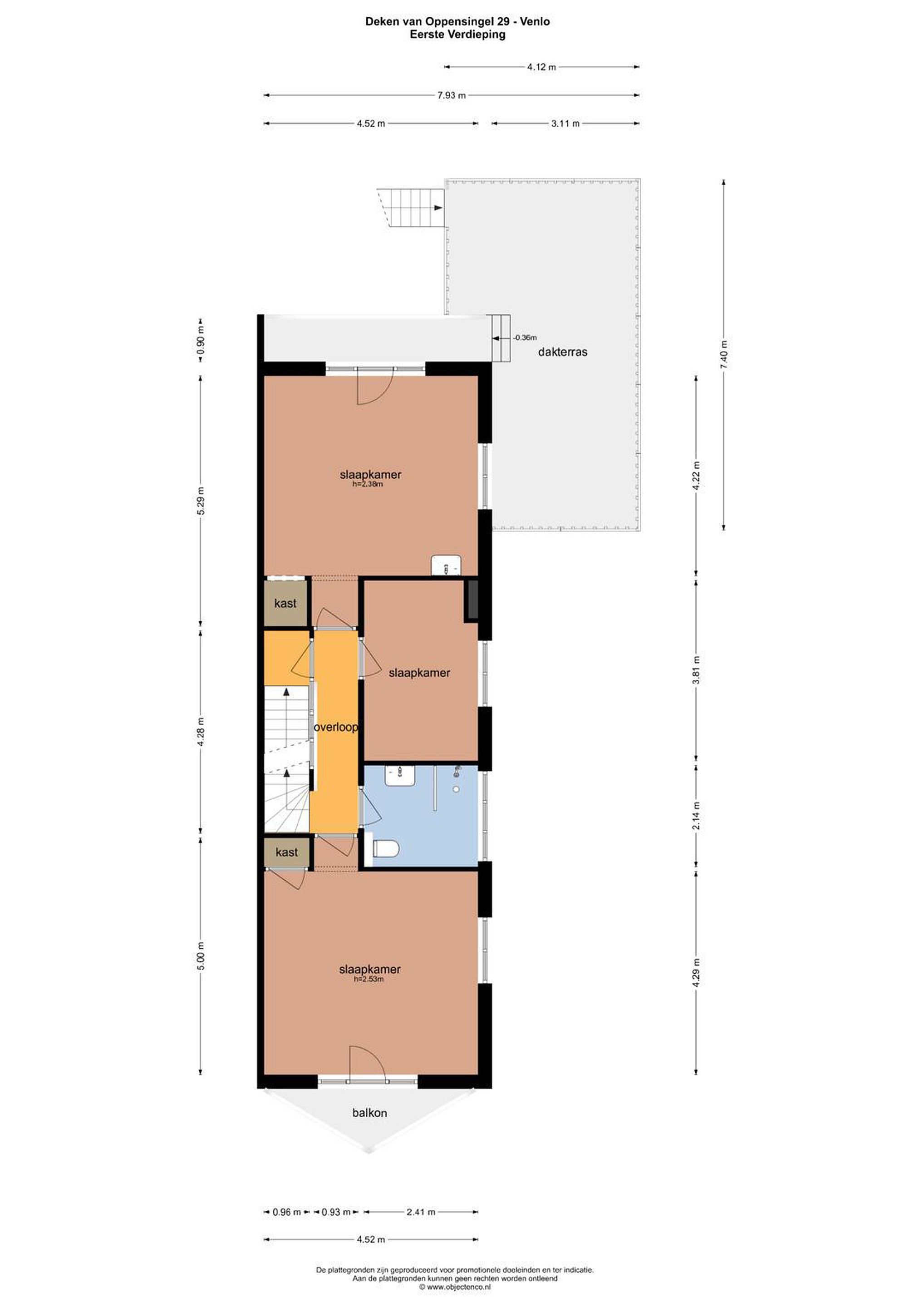
Eerste verdieping
- Overloop.
- Slaapkamer 1 (4.22 x 4.52m) met houten vloer, muurkast, airco, wastafel en deur naar royaal dakterras (ca. 26m2).
- Slaapkamer 2 (4.29 x 4.52m) met houten vloer, muurkast, airco en deur naar balkon.
- Slaapkamer 3 (2.41 x 3.81m).
- Moderne badkamer (2004) met inloopdouche, wastafel en 2e toilet.

Tweede verdieping
- Overloop met muurkast.
- Slaapkamer 1 (ca. 3.85 x 3.79m) met muurkast en houten vloer.
- Slaapkamer 2 (ca. 4.28 x 1.70m) met houten vloer.
- Slaapkamer 3 (ca. 4.79 x 3,79m)met houten vloer en vaste trap naar de zolder/vliering.

Tuin
Kleine patio- c.q. stadstuin met trap naar het dakterras.

Details
- Deels kunststof kozijnen met HR++ beglazing en deels houten kozijnen.
- C.V.-ketel Nefit HR 2004.
- Elektrische boiler.
- Zonnepanelen (13).
- Energielabel E.

Lees meer

Kenmerken

Overdracht

Prijs per m2
€ 3.289
Aangeboden sinds
6 februari 2026
Status
Beschikbaar
Aanvaarding
In overleg

Bouw

Soort woonhuis
Herenhuis, twee-onder-een-kap woning
Soort bouw
Bestaande bouw
Bouwjaar
1936
Soort dak
Samengesteld dak
Staat van onderhouden binnen
Goed
Staat van onderhouden buiten
Goed

Oppervlakte en inhoud

Perceeloppervlakte
205 m2
Inhoud van de woning
829 m3
Oppervlakte gebouwgebonden buitenruimten
36 m2
Oppervlakte overige inpandige ruimten
33 m2

Indeling

Aantal kamers
7
Aantal slaapkamers
6
Aantal woonlagen
5
Voorzieningen
Tuin, balkon, airconditioning

Buitenruimte

Balkon
Ja
Schuur/berging
Nee

Maandlasten berekenen

De maandlasten voor je woning bestaan uit meer dan alleen de hypotheeklasten. Hieronder vind je een overzicht van de bijkomende kosten en lasten. Zo weet je precies wat je huis per maand gaat kosten. En met de handige vergelijkers kun je ook nog eens snel de beste deals sluiten!

  • Kaart
  • Streetview