Het Buitenwater 73 2235 TB Valkenburg

217m2
Wonen
6
Kamers
218m2
Perceel
2011
Bouwjaar
Te Koop! Het Buitenwater 73 – Valkenburg (ZH)

Vraagprijs: € 998.000,- k.k.
Woonoppervlakte: ca. 218 m2 | Perceel: 218 m2 | Garage + oprit | Energielabel: A++
Inhoud: ca. 779 m3 | Bouwjaar: 2011 | Oplevering: in overleg

Bijzonder ruim en duurzaam wonen aan het water
Welkom aan Het Buitenwater 73 – een royaal herenhuis met een ongekend wooncomfort en een topligging aan het water, in de geliefde wijk ’t Duyfrak. Deze moderne woning telt maar liefst vijf slaapkamers, twee badkamers, een riante garage, een oprit voor één auto én een zonnige tuin met veranda op het westen. Binnen geniet u van een energiezuinig leefklimaat dankzij het A++ label, 18 zonnepanelen, vloerverwarming en een uitstekend afwerkingsniveau.

Indeling: ruimte en functionaliteit op elke verdieping

Begane grond:
Binnenkomst in een ruime hal met garderobe, uitgebreide meterkast, modern toilet en trapopgang.
De sfeervolle woonkamer is tuingericht en heeft veel lichtinval door de grote raampartijen. Openslaande deuren geven toegang tot de fraai aangelegde tuin, compleet met aangebouwde veranda.
De keuken aan de voorzijde is voorzien van alle moderne inbouwapparatuur en biedt prachtig vrij zicht over het water.

Garage + oprit:
De grote garage van ca. 21 m2 is via de tuin bereikbaar en biedt volop ruimte. De oprit biedt plek voor één auto. Altijd uw eigen parkeerplek. .

1e verdieping:
Twee ruime slaapkamers, waarvan één met Frans balkon en waterzicht. Luxe badkamer met inloopdouche, dubbel wastafelmeubel en separaat toilet op de overloop.

2e verdieping:
Wederom twee ruime slaapkamers met inbouwkasten, een tweede badkamer met douche en wastafel, derde toilet én een royale wasruimte met cv-opstelling. Ook hier: veel licht, praktische indeling en hoogwaardige afwerking.

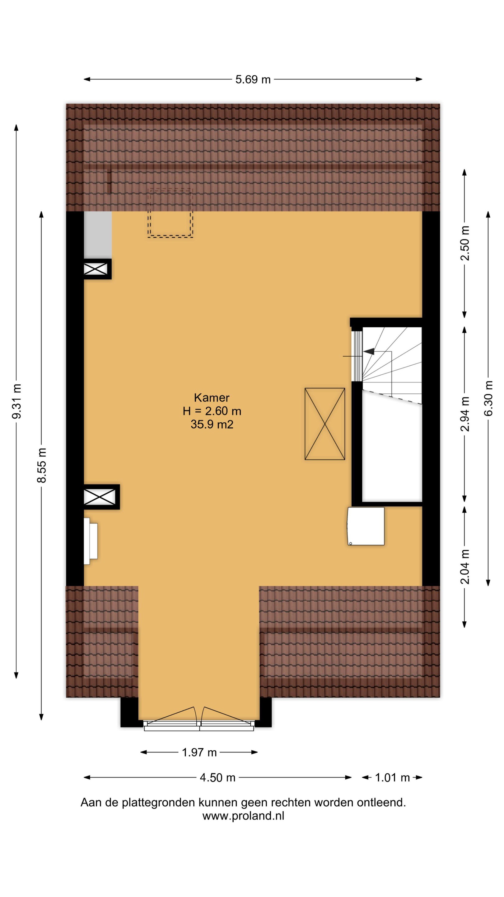
3e verdieping (ca. 36 m2):
Multifunctionele ruimte, nu in gebruik als bioscoopkamer met pooltafel. Hier kunt u eenvoudig een extra slaapkamer, werkplek, hobbyruimte of studio realiseren.

Zolder:
Via een vlizotrap bereikt u de praktische bergzolder – perfect voor koffers, seizoensspullen en meer.

Locatie: ’t Duyfrak – ruim, groen en perfect gelegen

Wonen in de moderne wijk ’t Duyfrak betekent genieten van rust én bereikbaarheid. Alles is binnen handbereik:
- Winkels, supermarkten en scholen op loopafstand
- Kindvriendelijke buurt met speeltuinen en veel groen
- Snelle verbindingen naar Leiden, Katwijk aan Zee, Den Haag en Amsterdam (via N206 en A44)
- Goede OV-verbindingen
- Nabij recreatiegebied Valkenburgse Meer en het strand van Katwijk aan Zee
- Op fietsafstand van Bio Science Park Leiden / Oegstgeest

Bijzonderheden in het kort:

- Bouwjaar 2011
- Energielabel A++
- 218 m2 woonoppervlakte | 779 m3 inhoud
- Groot perceel van 218 m2
- 5 slaapkamers | 2 badkamers | 3 toiletten
- Grote garage (ca. 21 m2) + eigen oprit
- Vloerverwarming op alle verdiepingen
- 18 zonnepanelen
- Achtertuin op het westen met veranda
- Rolluiken en horren aanwezig
- Uitstekend onderhouden
- Zonnige ligging & prachtig uitzicht over het water
- Wonen op een rustige plek met alle voorzieningen in de buurt

Heeft u interesse?

Makelaar Ronald Kooitje nodigt u van harte uit om deze uitzonderlijk ruime woning zelf te komen bekijken. Hij laat u met plezier zien waarom dit huis zoveel meer is dan een standaard tussenwoning.

Bezoek ook de woningwebsite: hetbuitenwater73.nl
Hier vindt u alle info overzichtelijk: foto’s, plattegronden, video, documenten en meer.

Deze verkoopinformatie is met zorg samengesteld. Er kunnen echter geen rechten aan worden ontleend.
Lees meer

Kenmerken

Overdracht

Prijs per m2
€ 4.582
Aangeboden sinds
17 oktober 2025
Status
Beschikbaar
Aanvaarding
In overleg

Bouw

Soort woonhuis
Herenhuis, tussen woning
Soort bouw
Bestaande bouw
Bouwjaar
2011
Soort dak
Dwarskap
Staat van onderhouden binnen
Uitstekend
Staat van onderhouden buiten
Uitstekend

Oppervlakte en inhoud

Perceeloppervlakte
218 m2
Inhoud van de woning
778 m3
Oppervlakte externe bergruimte
21 m2
Oppervlakte gebouwgebonden buitenruimten
21 m2
Oppervlakte overige inpandige ruimten
3 m2

Indeling

Aantal kamers
6
Aantal slaapkamers
5
Aantal woonlagen
5
Voorzieningen
Tuin, ventilatie, kabel-tv, glasvezel, rookkanaal, fransbalkon, dakraam

Buitenruimte

Balkon
Nee
Schuur/berging
Nee

Maandlasten berekenen

De maandlasten voor je woning bestaan uit meer dan alleen de hypotheeklasten. Hieronder vind je een overzicht van de bijkomende kosten en lasten. Zo weet je precies wat je huis per maand gaat kosten. En met de handige vergelijkers kun je ook nog eens snel de beste deals sluiten!

  • Kaart
  • Streetview