Oosteinde 10 9079 LC St.-Jacobiparochie

374m2
Wonen
9
Kamers
1221m2
Perceel
1920
Bouwjaar
Bent u op zoek naar een veelzijdige en ruime woning? Deze grote vrijstaande woning biedt talloze mogelijkheden! Met meerdere kamers en aparte appartementen is deze woning perfect voor een combinatie van wonen en werken, verhuur appartementen of Bed & Breakfast. Ook kan de benedenverdieping als bedrijfsruimte worden ingericht.
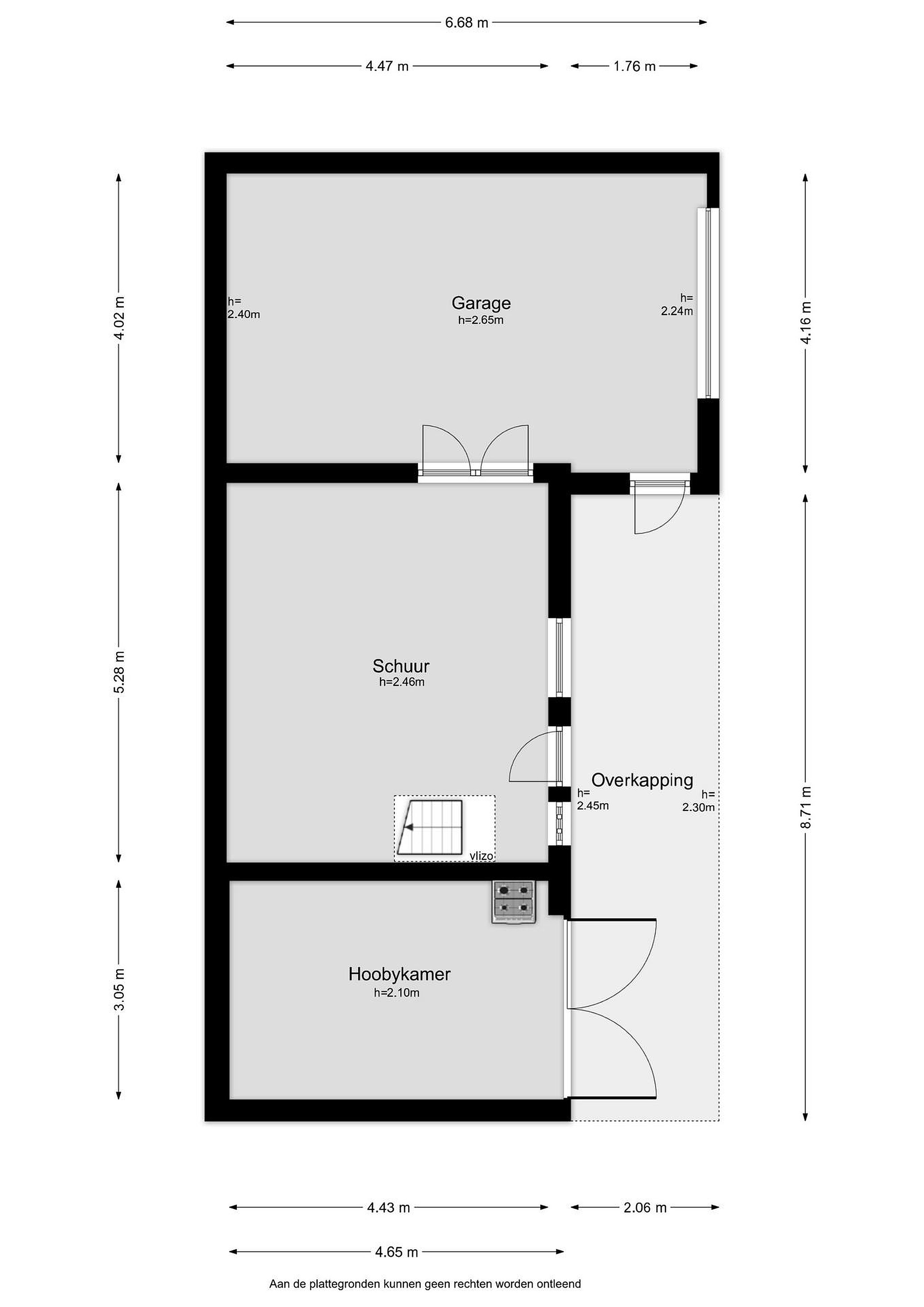
De woning beschikt aan de achterzijde over een groot terrein, inclusief een vrijstaande garage en aparte schuur voor berging. Er is volop ruimte voor diverse toepassingen, dus de mogelijkheden zijn eindeloos.
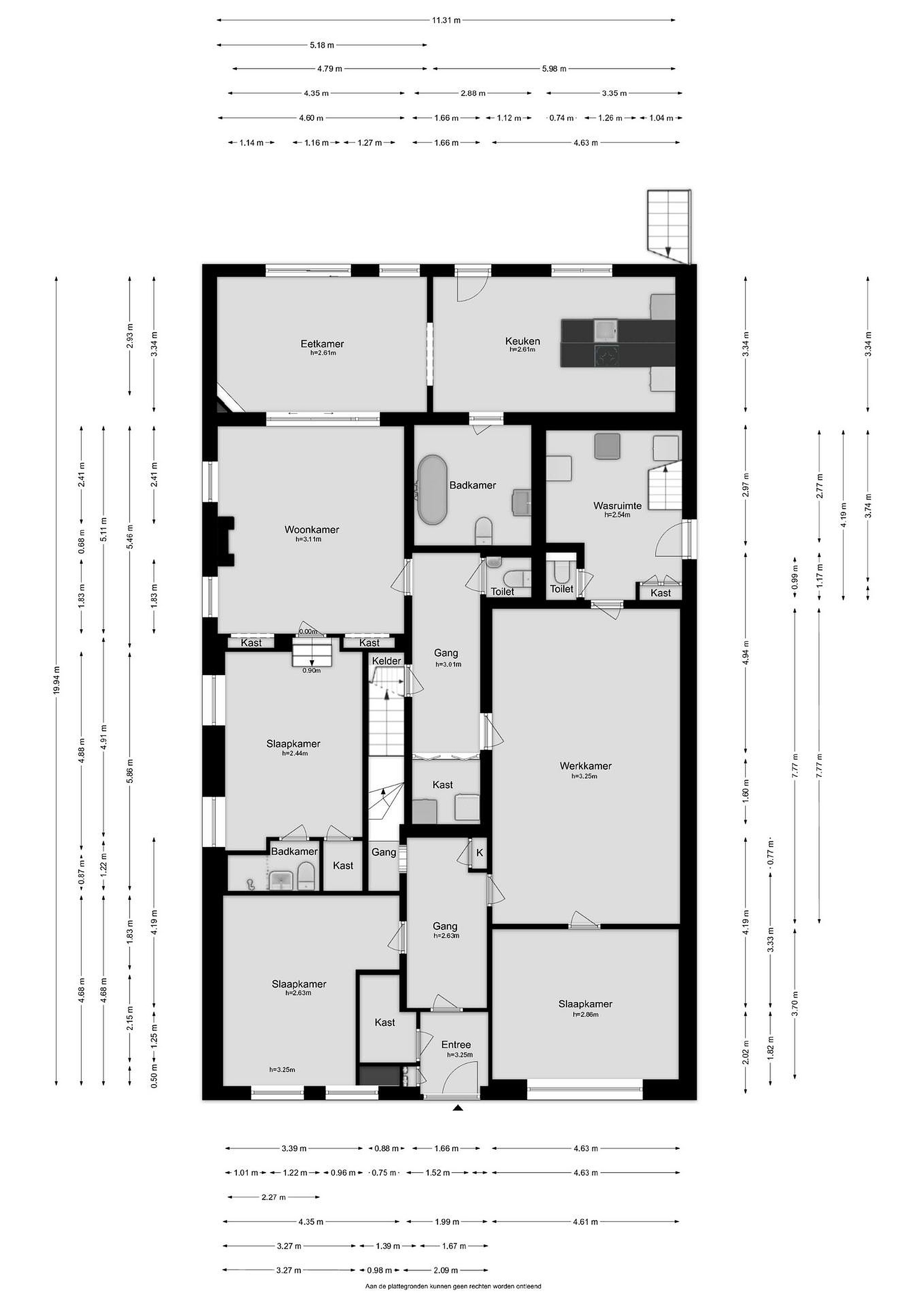
Indeling:
Begane grond: Entree, hal met meterkast, gezelschap of hobbyruimte, twee slaapkamers, toilet, witgoedruimte, cv-ruimte. woonkamer, luxe open keuken voorzien van inductie, afzuigkap, vaatwasser, oven, koelkast, nieuwe badkamer, slaapkamer.
Eerste verdieping: zes slaapkamers en een paar appartementen met eigen keuken en badkamer, en toegang dakterras.

* Veelzijdige woonopties - Riant wonen of combineren met praktijk kantoorruimte, B&B of Kangoeroewoning!
* Splitsbaar in meerdere wooneenheden.
* Ideaal voor gemengd gebruik - Geschikt voor grote gezinnen, mantelzorg met zelfstandige bewoning op begane grond.
* Ruime en luxe afwerking - Moderne woonkeuken, meerdere badkamers, dakterras en groot terrein




Voor meer informatie of een bezichtiging, neem gerust contact met ons op!
Details
Totaal zijn er 9 slaapkamers

Lees meer

Kenmerken

Overdracht

Prijs per m2
€ 1.832
Aangeboden sinds
12 maart 2026
Status
Beschikbaar
Aanvaarding
In overleg

Bouw

Soort woonhuis
Herenhuis, vrijstaande woning
Soort bouw
Bestaande bouw
Bouwjaar
1920
Soort dak
Samengesteld dak
Staat van onderhouden binnen
Goed
Staat van onderhouden buiten
Goed

Oppervlakte en inhoud

Perceeloppervlakte
1221 m2
Inhoud van de woning
1535 m3
Oppervlakte externe bergruimte
88 m2
Oppervlakte gebouwgebonden buitenruimten
23 m2
Oppervlakte overige inpandige ruimten
22 m2

Indeling

Aantal kamers
9
Aantal slaapkamers
7
Aantal woonlagen
2
Voorzieningen

Buitenruimte

Balkon
Nee
Schuur/berging
Nee

Maandlasten berekenen

De maandlasten voor je woning bestaan uit meer dan alleen de hypotheeklasten. Hieronder vind je een overzicht van de bijkomende kosten en lasten. Zo weet je precies wat je huis per maand gaat kosten. En met de handige vergelijkers kun je ook nog eens snel de beste deals sluiten!

  • Kaart
  • Streetview