Verkocht

Sibergstraat 22 2593 SM 's-Gravenhage

464m2
Wonen
10
Kamers
342m2
Perceel
1926
Bouwjaar
Sibergstraat 16, 20 en 22 – Den Haag / Bezuidenhout

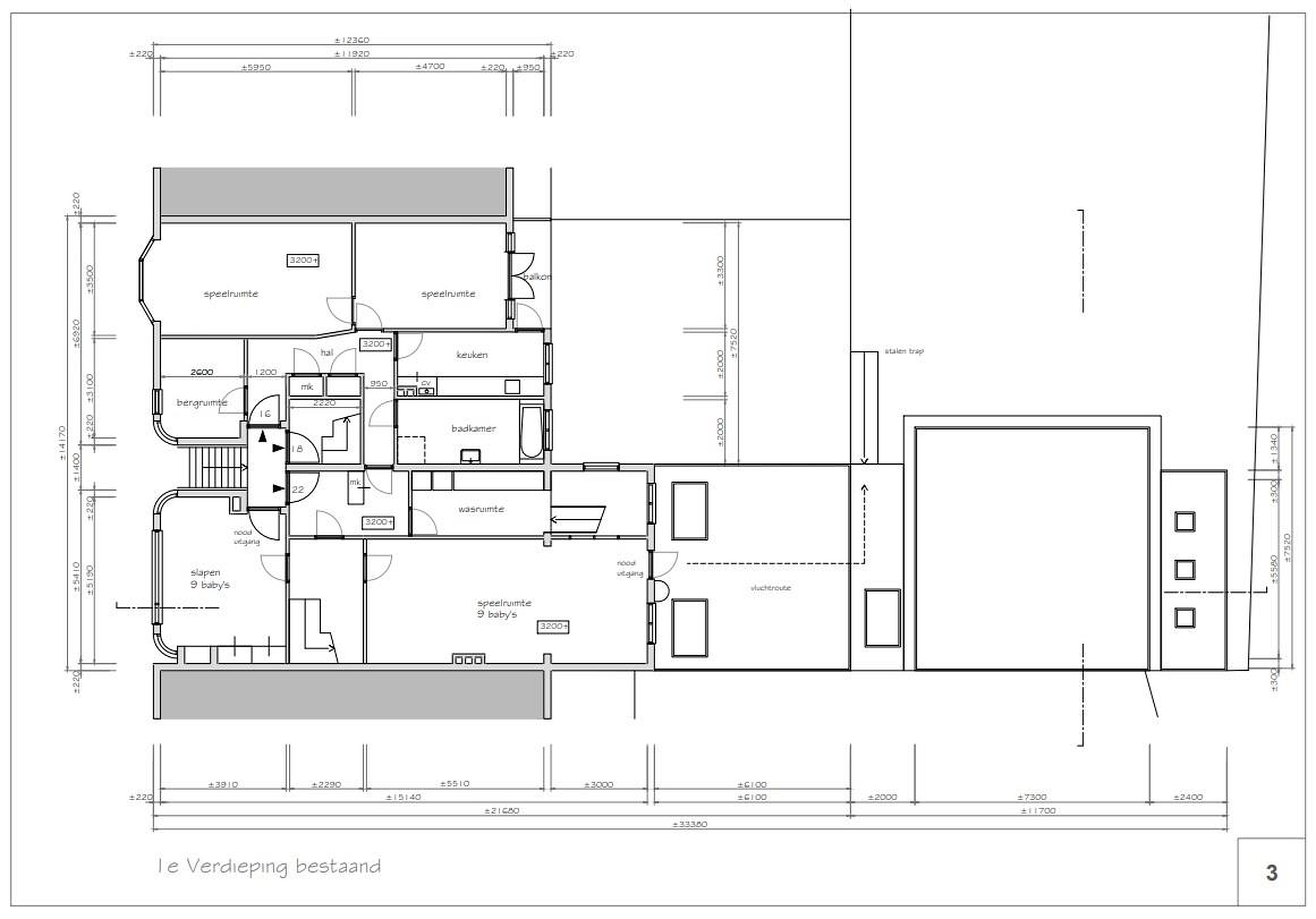
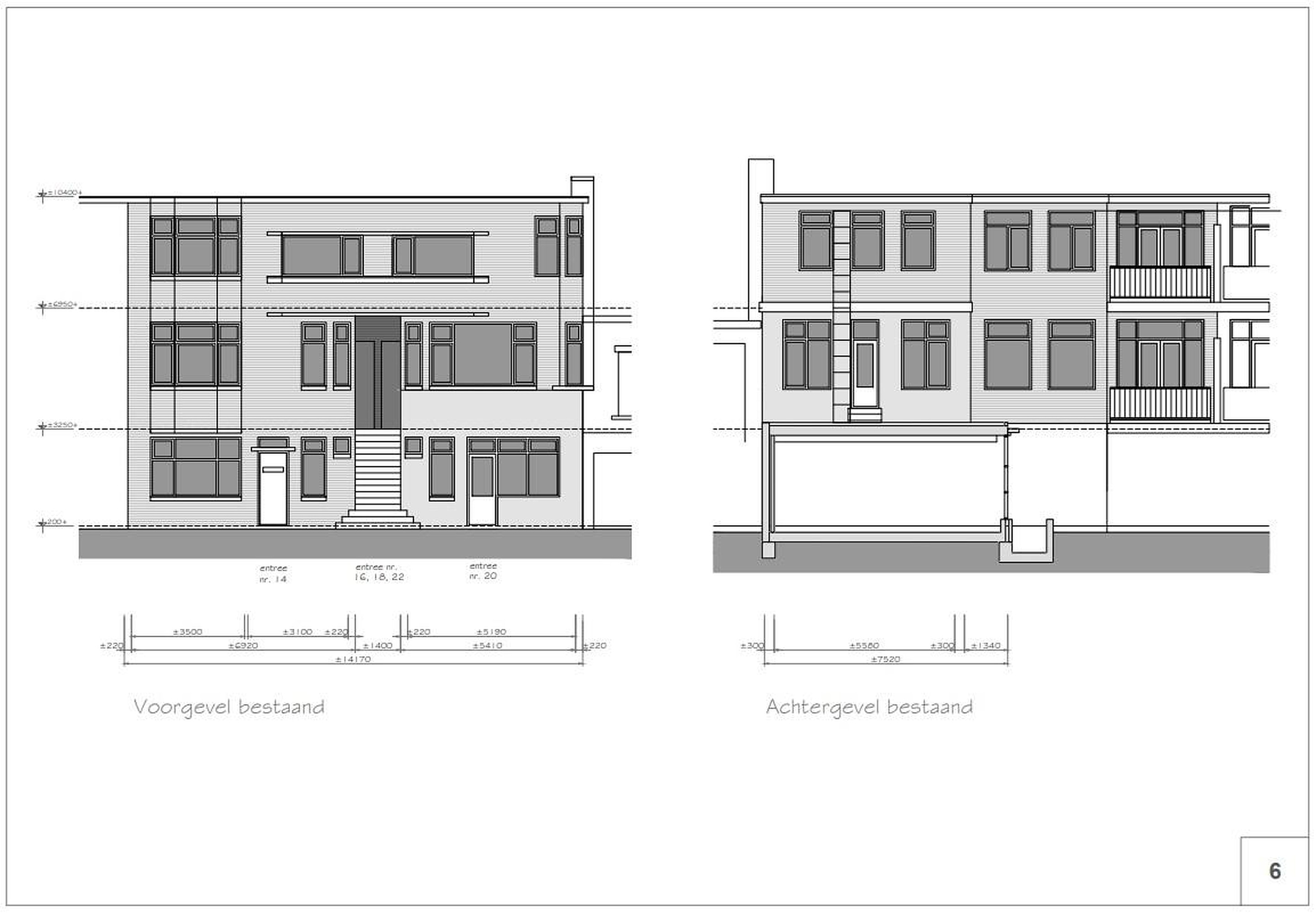
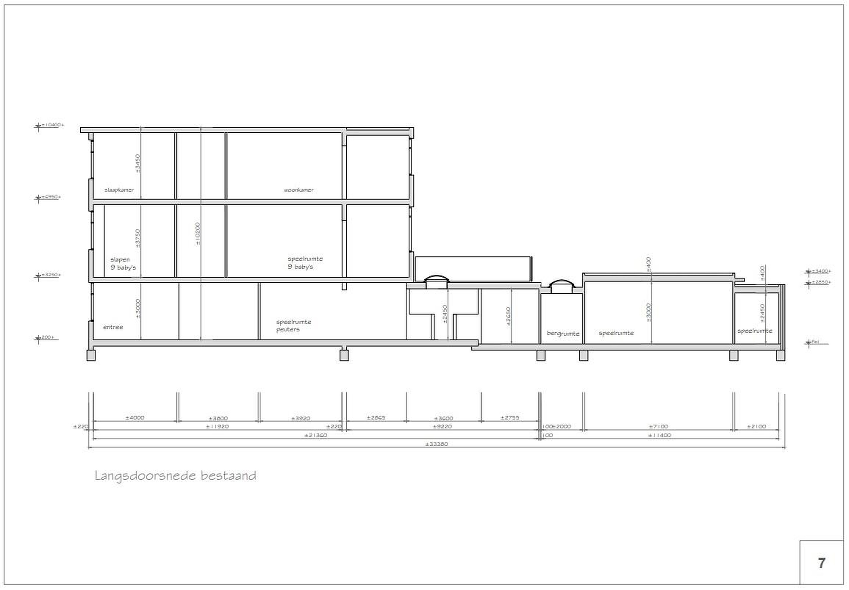
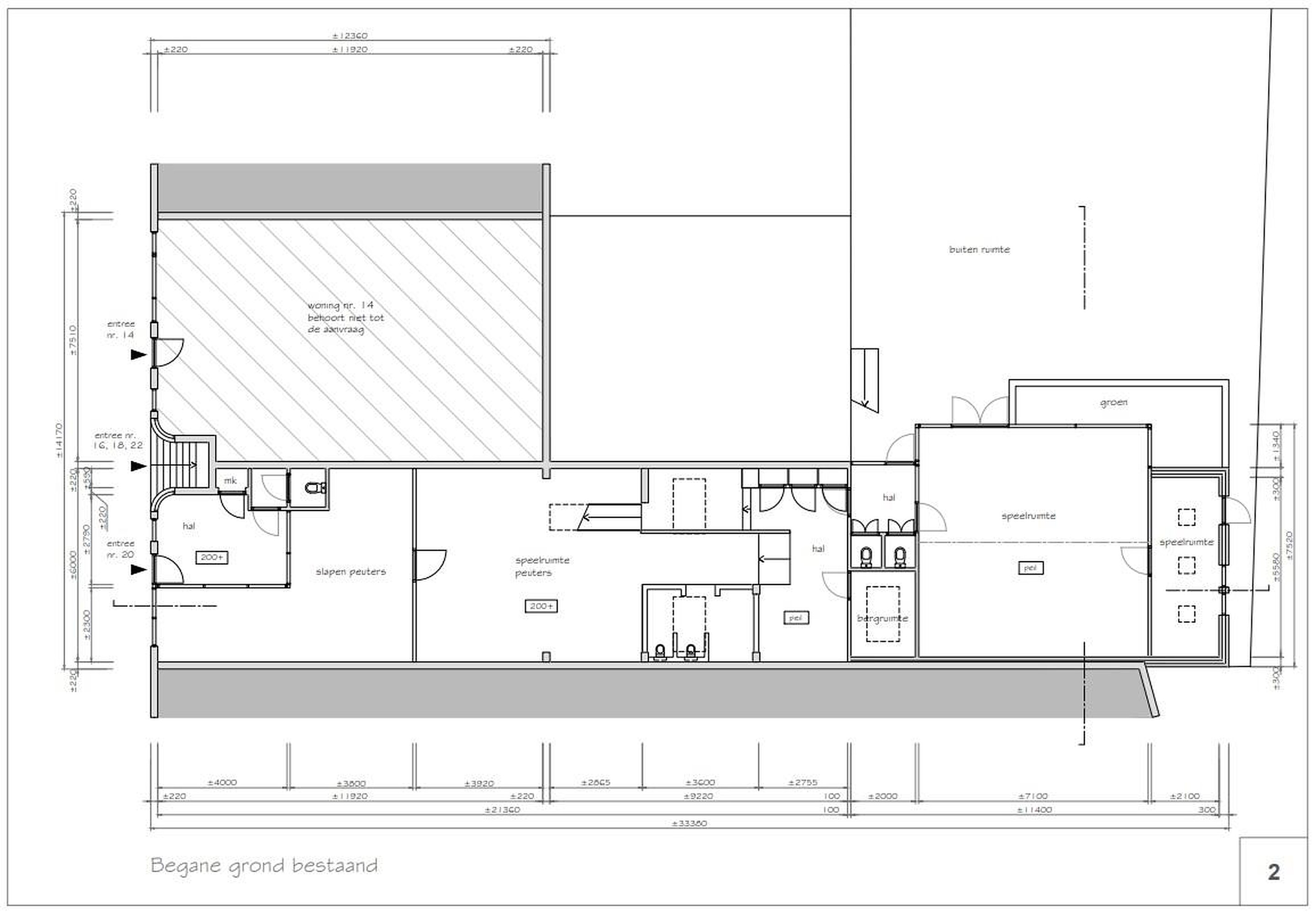
In de gewilde jaren ’30-wijk Bezuidenhout bieden wij u een volledig verhuurd beleggingsobject aan. Het geheel omvat een parterrewoning, een dubbel bovenhuis en een portiekwoning op de eerste verdieping, met een totale oppervlakte van bijna 500 m2 en een netto woonoppervlakte van 464 m2. Het object beschikt reeds over de woonbestemming en biedt uitstekende mogelijkheden voor splitsing in meerdere woningen en/of als goed onderhouden beleggingspand met een aantrekkelijk rendement.

Koopsom vanaf € 1.250.000,-

Het geheel is rustig gelegen op een perceel van 342 m2, beschikt over een dakterras op de eerste verdieping en een besloten, zonnige tuin van meer dan 100 m2 op het zuidwesten. Het pand is goed onderhouden; de meest recente renovatie dateert uit 2021. De huuropbrengst bedraagt momenteel circa € 85.000 per jaar en de huidige huurovereenkomsten lopen tot maart 2028.

Mogelijkheid tot ontwikkeling/transformatie
In het huidige bestemmingsplan heeft het object de bestemming Wonen. Op een recent ingediend principeverzoek heeft de gemeente Den Haag positief gereageerd op de realisatie/transformatie naar vijf appartementen. Tekeningen voor deze ontwikkeling, opgesteld door MR-Studio, zijn beschikbaar. Daarnaast is een uitbreiding van circa 60 m2 middels een opbouw binnen het bestemmingsplan mogelijk.

Ligging:
In het gewilde stadsdeel 'Haagse Hout' is de rustige jaren '30 wijk Bezuidenhout gelegen. Vanuit de wijk steek je via het Centraal station direct door naar de binnenstad. Wil je liever even ontsnappen aan de hectiek van de stad? Dan loop je zo het prachtige Haagse Bos in. Hier vind je ook Huis Ten Bosch, de toekomstige residentie van de Koninklijke familie. Bezuidenhout is dus een wijk met koninklijke allure!

Je dagelijkse boodschappen in Bezuidenhout doe je in de Theresiastraat. Je vindt er diverse winkels en plekken voor een hapje en een drankje. Of je gaat naar het winkelcentrum New Babylon vlakbij het Centraal Station. In de wijk zijn ook Hogeschool 'In Holland' en de Campus Den Haag van de Universiteit Leiden gevestigd en mede daarom vind je er ook leuke horecagelegenheden en zijn alle voorzieningen in de directe nabijheid.
Tuin
Rustig gelegen besloten tuin op het zonnige zuidwesten en een groot dakterras op de 1e verdieping met directe toegang tot de tuin aan de achterzijde.

Details
- Bouwjaar: 1926
- Goed onderhouden / in 2021 gerenoveerd.
- Geheel verhuurd aan goede partij voor circa €85.000,-- per jaar exclusief energie en lasten.
- Totale gebruiksoppervlakte 499m2 / Woonoppervlakte 464m2.
- Mogelijkheid tot transformatie/ontwikkeling naar 5 tot 6 woningen/appartementen.
- Rustige ligging in de gewilde wijk 'Bezuidenhout'.
- Zonnige tuin van meer dan 100m2 op het zuidwesten.
- Oplevering in overleg.

Koopsom vanaf € 1.250.000,- / Vraagprijs € 1.495.000,-
Alle biedingen vanaf € 1.250.000,-- worden in overweging genomen.

Lees meer

Verkoopgeschiedenis

Aangeboden sinds
10 oktober 2025
Verkoopdatum
9 februari 2026
Looptijd
4 maanden

Kenmerken

Overdracht

Prijs per m2
€ 2.694
Aangeboden sinds
10 oktober 2025
Status
Verkocht
Aanvaarding
In overleg

Bouw

Soort woonhuis
Herenhuis, hoek woning
Soort bouw
Bestaande bouw
Bouwjaar
1926
Soort dak
Plat dak
Staat van onderhouden binnen
Goed
Staat van onderhouden buiten
Goed

Oppervlakte en inhoud

Perceeloppervlakte
342 m2
Inhoud van de woning
1622 m3
Oppervlakte gebouwgebonden buitenruimten
36 m2

Indeling

Aantal kamers
10
Aantal slaapkamers
9
Aantal woonlagen
3
Voorzieningen
Tuin, airconditioning

Buitenruimte

Balkon
Nee
Schuur/berging
Nee

Maandlasten berekenen

De maandlasten voor je woning bestaan uit meer dan alleen de hypotheeklasten. Hieronder vind je een overzicht van de bijkomende kosten en lasten. Zo weet je precies wat je huis per maand gaat kosten. En met de handige vergelijkers kun je ook nog eens snel de beste deals sluiten!

  • Kaart
  • Streetview