Verkocht OV

Olgaland 26 2591 JB 's-Gravenhage

153m2
Wonen
7
Kamers
396m2
Perceel
1970
Bouwjaar
English below.

Zeer royale hoek split level woning met 5 slaapkamers, 2 badkamers, een walk-in closet, grote inpandige garage, eigen oprit en mooi aangelegde voor-, zij- en achtertuin, gelegen op één van de grootste kavels van de wijk.
Centraal gelegen in een ruim opgezette groene wijk in het geliefde Mariahoeve met parken, speeltuinen, scholen, sportfaciliteiten en winkels in de nabijheid.
Het Haagsche Bos, Park Marlot, The British School en de uitvalswegen naar het centrum van Den Haag, Amsterdam, Utrecht en Rotterdam zijn eveneens dichtbij.

Voor de exacte indeling en/of maatvoering verwijzen wij u graag door naar de plattegronden.

Indeling:

Souterrain:
Grote garage met elektrisch bedienbare deuren, met ruimte voor 2 auto’s. Door de extra breedte aan de voorzijde is er ook voldoende plaats voor de fietsen en voor een wasmachine/droger.
Aan de achterzijde bevindt zich een deur naar de ruime zeer verzorgde achtertuin.

Begane grond:
Voortuin, entree, hal, hangend toilet met fontein, gang met provisiekast/bergruimte, ruime (woon)keuken met kookeiland een inductiekookplaat inclusief ingebouwde afzuiging, koel-vriescombinatie, vaatwasser en oven. Visgraat PVC vloer.
Tevens is vanuit de keuken toegang naar de ruime sfeervolle en speelse achtertuin met vlonders, tegels en (buiten) trap naar de woonkamer.

Level 1:
Enkele treden hoger bevindt zich de ruime woon- eetkamer met prachtige PVC visgraat vloer en open haard.

Level 2:
Overloop, gastenbadkamer met inloopdouche en wc, voorslaapkamer, slaapkamer aan de achterzijde (tuinzijde).

Level 3:
Overloop, ruime ouderslaapkamer, badkamer voorzien van ligbad, douche, wc en vaste wastafel, slaapkamer aan de achterzijde met toegang tot het achterbalkon.

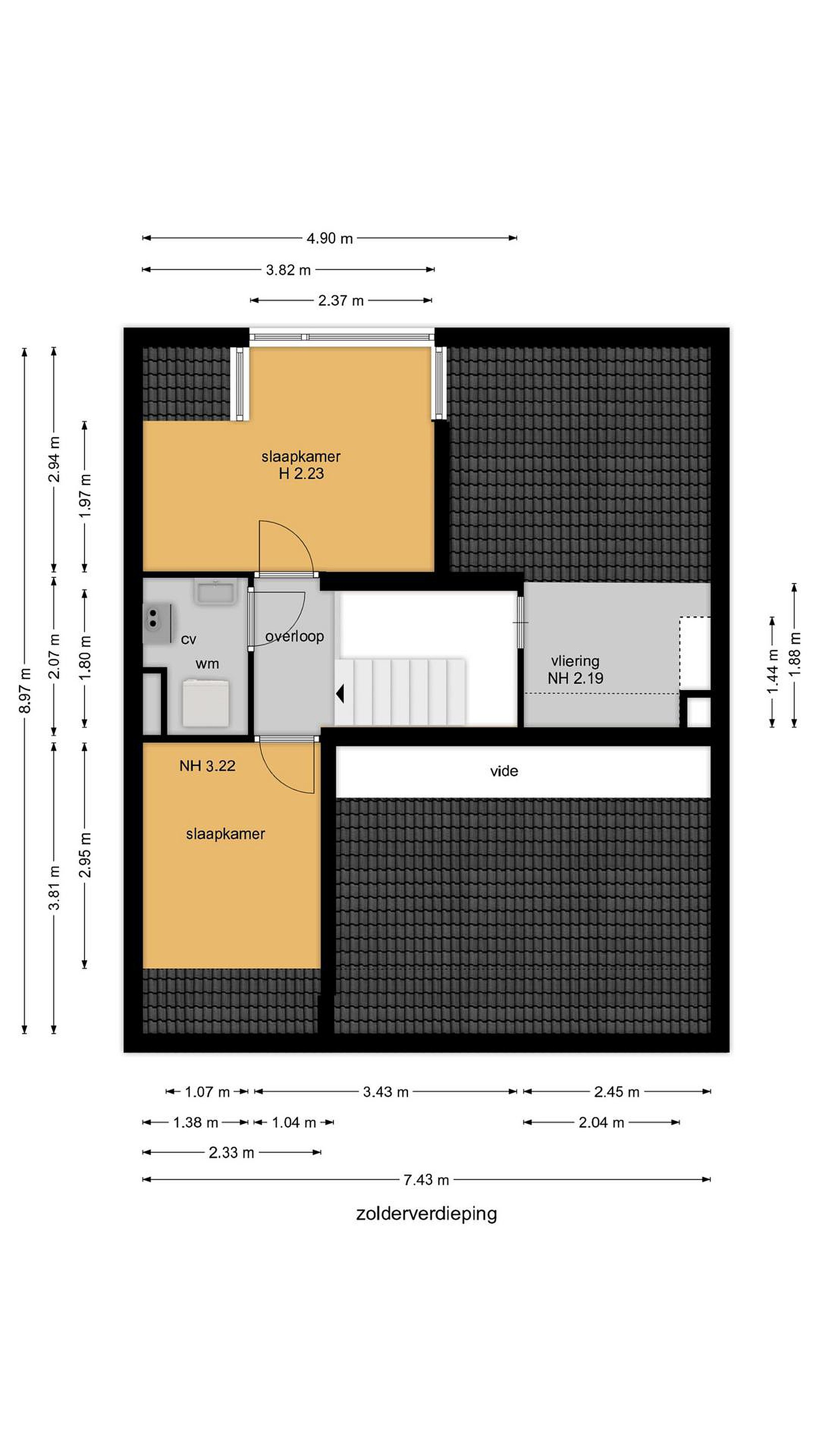
Level 4 (kap verdieping):
Overloop, achter gesitueerde slaapkamer met dakkapel, walk-in closet aan de voorzijde, technische ruimte met C.V.-combiketel en een fonteintje.

Bijzonderheden:

- Eigen grond
- Woonoppervlakte 153.8 m2 exclusief grote garage ( 39.6 m2)
- Geheel voorzien van dubbel glas
- Energielabel A
- Parkeren op eigen terrein
- Elektrische zonwering voorzijde
- Spouwmuren en dak zijn geïsoleerd
- Vernieuwde groepenkast
- 9 zonnepanelen aanwezig ( eigendom )
- Koper dient akkoord te gaan met aanvullende clausules in de objectinformatie.
- Oplevering mei 2026

Kortom:
Een comfortabel, goed onderhouden 6-kamer woning met directe toegang tot een rustige groene tuin, ideaal voor wie wil genieten van zowel binnen- als buitenruimte. Dankzij de centrale ligging, goede bereikbaarheid en nabijheid van alle voorzieningen is dit een woning waar u met veel plezier kunt wonen.
U kunt een bezichtiging aanvragen door op funda het contactformulier in te vullen. Er wordt dan contact met u opgenomen om de afspraak te maken.

De vermelde informatie is van algemene aard en is niet meer dan een uitnodiging om de woning te bezichtigen of om in onderhandeling te treden. Hoewel deze tekst en plattegrond met zorg zijn samengesteld zijn wij niet aansprakelijk voor eventuele onjuistheden. De toegepaste Meetinstructie sluit verschillen in meetuitkomsten niet volledig uit, door bijvoorbeeld interpretatieverschillen, afrondingen of beperkingen bij het uitvoeren van de meting. Aan de inhoud van deze informatie kunnen geen rechten worden ontleend.

De foto's en plattegronden zijn eigendom van De Huizenbemiddelaar Haaglanden.


English;

Very spacious corner split-level house with 5 bedrooms, 2 bathrooms, a walk-in closet, large integral garage, private driveway, and beautifully landscaped front, side, and back gardens, situated on one of the largest lots in the neighborhood.
Centrally located in a spacious, green neighborhood in the popular Mariahoeve neighborhood with parks, playgrounds, schools, sports facilities, and shops nearby.
The Haagsche Bos, Park Marlot, The British School, and the highways to the city centers of The Hague, Amsterdam, Utrecht, and Rotterdam are also nearby.

For the exact layout and/or dimensions, please refer to the floor plans behind the photo report.

Layout:

Basement:
Large garage with electric doors, with space for 2 cars. The extra width at the front also provides ample space for bicycles and a washer/dryer.
At the rear, a door leads to the spacious, well-maintained back garden.

Ground floor:
Front garden, entrance, hall, wall-hung toilet with hand basin, hallway with pantry/storage space, spacious kitchen/diner with a cooking island, an induction cooktop including a built-in extractor hood, fridge-freezer, dishwasher, and oven. Herringbone PVC flooring.
The kitchen also provides access to the spacious, charming, and playful back garden with decking, tiles, and (outdoor) stairs to the living room.

Level 1:
A few steps up is the spacious living/dining room with a beautiful PVC herringbone flooring and fireplace.

Level 2:
Landing, guest bathroom with a walk-in shower and toilet, front bedroom, and rear bedroom (garden side).

Level 3:
Landing, spacious master bedroom, bathroom with a bathtub, shower, toilet, and washbasin, rear bedroom with access to the rear balcony.

Level 4 (top floor):
Landing, rear bedroom with dormer window, walk-in closet at the front, utility room with central heating boiler and a small sink.

Features:
- Freehold land
- Living area 153.8 m2 excluding the large garage (39.6 m2)
- Fully double-glazed
- Energy label A
- Parking on the property
- Electric sun blinds at the front
- Cavity walls and roof are insulated
- Renovated fuse box
- 9 solar panels present (owned)
- Buyer must agree to additional clauses in the property information.
- Completion May 2026

In short:
A comfortable, well-maintained 6-room house with direct access to a peaceful green garden, ideal for those who want to enjoy both indoor and outdoor space. Thanks to its central location, easy accessibility, and proximity to all amenities, this is a home you will enjoy living in.
You can request a viewing by filling out the contact form on funda. You will then be contacted to schedule an appointment.

The information provided is of a general nature and is merely an invitation to view the property or to enter into negotiations. While this text and floor plan have been compiled with care, we are not liable for any inaccuracies. The measurement instructions used do not completely eliminate differences in measurement results, for example, due to differences in interpretation, rounding, or limitations in the measurement process. No rights can be derived from the content of this information.

The photos and floor plans are the property of De Huizenbemiddelaar Haaglanden.

Lees meer

Kenmerken

Overdracht

Prijs per m2
€ 5.228
Aangeboden sinds
5 november 2025
Status
Verkocht onder voorbehoud
Aanvaarding
In overleg

Bouw

Soort woonhuis
Herenhuis, hoek woning, drive-in woning
Soort bouw
Bestaande bouw
Bouwjaar
1970
Soort dak
Zadeldak
Staat van onderhouden binnen
Uitstekend
Staat van onderhouden buiten
Goed

Oppervlakte en inhoud

Perceeloppervlakte
396 m2
Inhoud van de woning
727 m3
Oppervlakte overige inpandige ruimten
38 m2

Indeling

Aantal kamers
7
Aantal slaapkamers
6
Aantal woonlagen
7
Voorzieningen
Tuin, balkon, open haard, airconditioning

Buitenruimte

Balkon
Ja
Schuur/berging
Nee

Maandlasten berekenen

De maandlasten voor je woning bestaan uit meer dan alleen de hypotheeklasten. Hieronder vind je een overzicht van de bijkomende kosten en lasten. Zo weet je precies wat je huis per maand gaat kosten. En met de handige vergelijkers kun je ook nog eens snel de beste deals sluiten!

  • Kaart
  • Streetview