Verkocht

Boekelermeerstraat 10 2493 XH 's-Gravenhage

189m2
Wonen
6
Kamers
253m2
Perceel
2010
Bouwjaar
** For translation, see English Funda page**

Uitgebouwde twee-onder-een-kapwoning met 5 slaapkamers, gelegen aan groen, water en speelveld

Ruimte, ruimte en nog eens ruimte! Dat vindt u in deze zeer royaal uitgebouwde 2 onder-1-kapwoning met maar liefst vijf slaapkamers, gelegen op een groene hoek én met een heerlijke tuin aan het water.

Zeer grote living, moderne open keuken

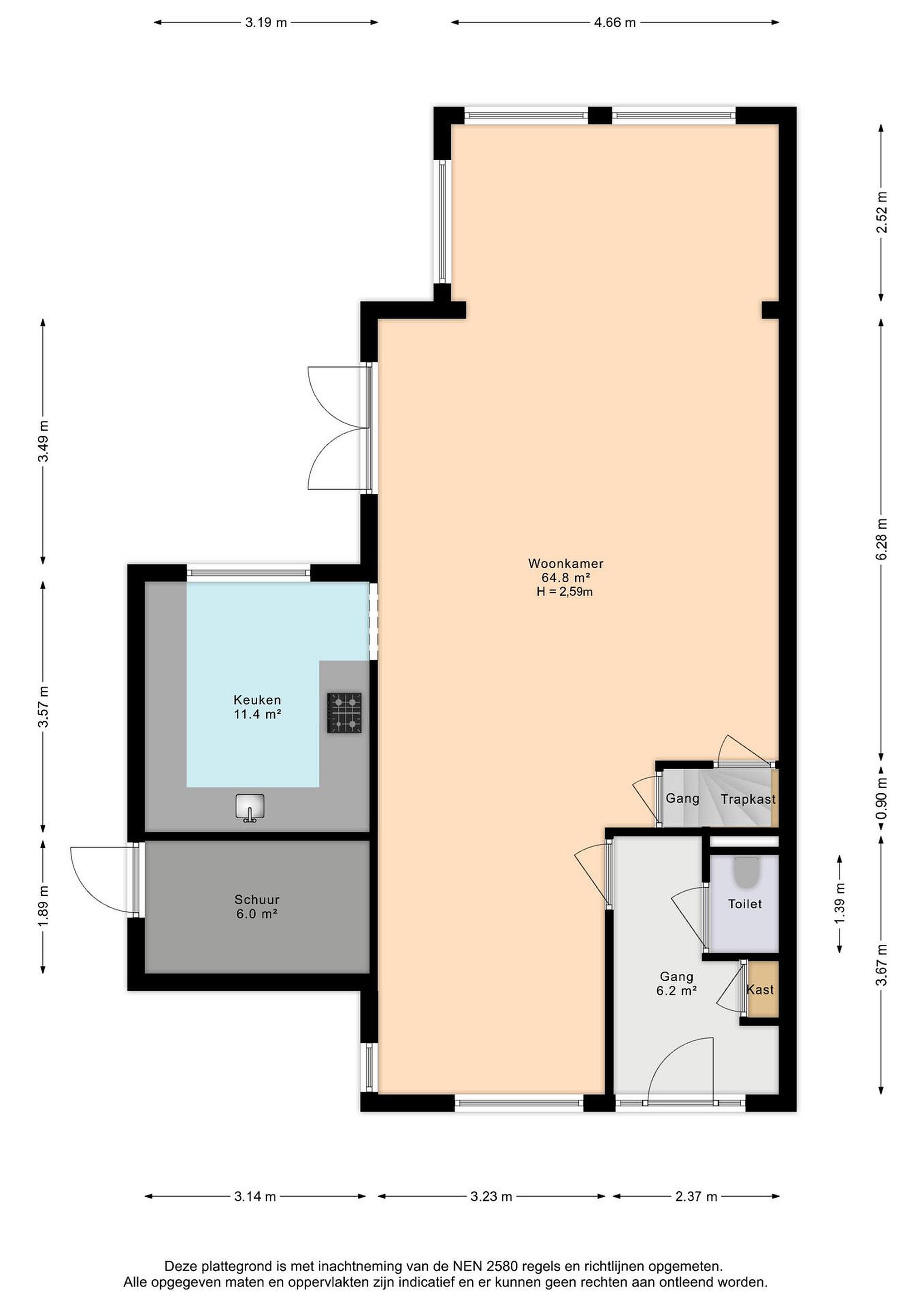
U komt de woning binnen in een hal met een fraaie visgraat PVC-vloer. Deze loopt door over de gehele begane grond en is voorzien van vloerverwarming.(onder de PVC vloer liggen plavuizen) Als u de volgende deur opent, ontvouwt zich een zee van ruimte. Grote raampartijen aan zowel de voorzijde als de uitgebouwde achterzijde zorgen voor veel lichtinval. Er zijn allerlei mogelijkheden om zitplekken te creëren, waardoor elk gezinslid zijn eigen plek kan opzoeken en je tegelijkertijd toch de verbinding met elkaar blijft voelen.
De open keuken springt als het ware opzij in de ruimte, met heerlijk uitzicht op de tuin. Het fraaie schiereiland is voorzien van een luxe granieten werkblad met een geïntegreerd 5-pits gasfornuis. De keuken loopt door in een U-vorm en is verder uitgerust met brede laden, veel kastruimte en diverse inbouwapparatuur.
Tussen de keuken en de achterzijde van de living vindt u de openslaande deuren naar de tuin.

Vier slaapkamers en een badkamer op de eerste verdieping

Via de trap – die is afgesloten met een deur, zodat de warmte en uw energierekening niet omhoog vliegen - bereikt u de eerste verdieping. Hier telt u vier slaapkamers. De grootste is gelegen aan de voorzijde van de woning en is een samenvoeging van twee slaapkamers. Heerlijk voor wie van zo’n ruimte geniet. En wie liever een extra slaapkamer heeft, kan deze wens eenvoudig realiseren.
Een nagenoeg even grote slaapkamer kijkt uit op de zijkant van het huis. Deze uitbouw boven de keuken is een grote plus en hier profiteert u van zonlicht van maar liefst drie kanten. Aan de achterkant vindt u nog eens twee slaapkamers. Een ervan heeft een eigen balkon, op de uitbouw van de eetkamer, dat u via openslaande deuren kunt betreden. U kijkt hier uit over het water. De andere slaapkamer is op dit moment in gebruik als gemeenschappelijke walk-in closet. Ideaal, als u de ruimte in de slaapkamers optimaal wilt houden. Toch een extra (kinder/werk)kamer nodig, dat kan, er zit een raam achter de kastenwand!
Alle slaapkamers en de overloop zijn voorzien van parketvloeren. In drie slaapkamers hebben de ramen horren.

Centraal tussen de slaapkamers in vindt u de badkamer, die is uitgevoerd in een combinatie van donkerbruine en witte tegels. U beschikt hier over een douche-/ligbadcombinatie, inloopdouche met rain shower en een breed wastafelmeubel met dubbele wastafel en brede spiegel.
Het tweede toilet vindt u in een aparte ruimte, die u bereikt via de overloop. Parallel hieraan is er een aparte ruimte voor de witgoedopstelling en de cv-ketel.

Grote vijfde slaapkamer op de tweede verdieping

Op de tweede verdieping vindt u de grote afgesloten vijfde slaapkamer. Schuine vlakken geven deze kamer een speels karakter en de grote ruimte inspireert wellicht tot allerlei ideeën over de invulling. Achter de knieschotten is tevens nog voldoende bergruimte voor de spullen die u niet dagelijks nodig hebt.
Op deze verdieping bevindt zich in een afgesloten kast, ook de omvormer voor de 21 zonnepanelen die op het dak liggen.

Heerlijke tuin, gelegen aan groen en water

Terug op de begane grond laten we u graag tuin zien, die gunstig gelegen is op het zuidwesten. Grote en kleinere tegels en een houten vlonder bedekken de bodem; aan de zijkant groeit klimop tegen de houten frames die tussen stenen ‘pilaren’ zijn geplaatst.
Al bij de eerste voorjaarszon kunt u hier genieten van het buiten zijn. In de warmere maanden nodigt de schommelbank uit om heerlijk te mijmeren met een boek, terwijl u vanuit uw ooghoek eenden voorbij ziet zwemmen. En als het echt warm wordt, zorgt het schaduwdoek voor verkoeling.
Net als binnen kunt u ook buiten op allerlei plekken zitjes creëren, zowel aan de achterkant als aan de zijkant van het huis. De rietkraag en de boompjes zorgen voor sfeer en privacy.

Oprit en stenen berging

Aan de voorzijde van de woning beschikt u over een ruime oprit voor uw auto. Direct door de poort rechts ziet u de deur die toegang biedt tot een stenen schuur waar u uw fietsen, gereedschap en andere zaken kunt stallen.

Centraal en rustig gelegen in kindvriendelijke omgeving

De ligging is zowel rustig als prettig centraal. Winkels, kinderopvang en scholen zijn nabij; de British school is zelfs om de hoek. Speeltuintjes en kinderboerderij vindt u op loopafstand – en uw kinderen kunnen zich naar hartenlust uitleven op het speelveld direct naast de woning. Het openbaar vervoer is vlakbij en de uitvalswegen A4, A12 en A13 liggen op een paar autominuten. Met de fiets bent u in korte tijd in de stad of in het groene buitengebied, waaronder het Westerpark Zoetermeer en de Nieuwe Driemanspolder (slechts een kwartiertje lopen of vijf minuten fietsen).

Samengevat:
- Royale, fors uitgebouwde 2-onder-1-kapwoning, gelegen tussen groen en water
- Woonoppervlak 189 m2, inhoud woning 655 m3, gemeten volgens NEN2580
- Perceelgrootte 253 m2, erfpacht eeuwigdurend afgekocht (geen extra kosten)
- Ruime hal met toilet; PVC-vloer met vloerverwarming over de hele BG
- Bijzonder ruime woonkamer met veel lichtinval en openslaande deuren naar de tuin
- U-vormige open keuken met schiereiland en 5-pits gasfornuis; luxe granieten werkbladen, veel bergruimte en diverse inbouwapparatuur (deels vervangen)
- Vier ruime slaapkamers op de eerste verdieping; een met toegang tot eigen balkon
- Badkamer voorzien van inloopdouche met rain shower, ligbad, dubbele wastafel en brede spiegel
- Separaat tweede toilet; aparte ruimte voor de witgoedopstelling, cv-ketel (Intergas, 2010)& MV-box
- Tweede verdieping met een grote vijfde slaapkamer
- 21 zonnepanelen op het dak (SolarFrontier SF170-S All black, 3.570WP)
- Grote tuin met veel privacy en diverse terrassen aan de zij- en achterkant van de woning
- Ruime oprit aan de voorzijde
- Stenen berging, ook bereikbaar via de voorzijde van de woning
- Buitenverlichting van Philips HUE
- Centraal gelegen nabij alle faciliteiten en openbaar vervoer
- Opgang naar diverse uitvalswegen A4/A12/A13 in een paar minuten rijden
- Oplevering in overleg

Is uw interesse gewekt?
Wacht niet te lang en bel Makelaarscentrum Leidschenveen om een afspraak te maken.

Deze informatie is met zorg samengesteld, aan de juistheid kunnen echter geen rechten worden ontleend. Alle opgegeven maten en oppervlakten zijn indicatief. De woning is gemeten met gebruikmaking van de Meetinstructie, die is gebaseerd op de normen zoals vastgelegd in NEN 2580. De algemene verkoopvoorwaarden staan vermeld op onze website, wij werken conform de Algemene Consumentenvoorwaarden van Vastgoed Nederland. Heeft u vragen over dit object of over onze dienstverlening, neemt u dan gerust contact met ons op.
Kortom, bel ons voor het maken van een afspraak of schakel direct uw eigen VBO/NVM aankoopmakelaar in. Uw aankoopmakelaar komt op voor uw belang en bespaart u veel tijd, geld en zorgen.



Lees meer

Verkoopgeschiedenis

Aangeboden sinds
28 oktober 2025
Verkoopdatum
2 januari 2026
Looptijd
2 maanden

Kenmerken

Overdracht

Prijs per m2
€ 5.230
Aangeboden sinds
28 oktober 2025
Status
Verkocht
Aanvaarding
In overleg

Bouw

Soort woonhuis
Herenhuis, twee-onder-een-kap woning
Soort bouw
Bestaande bouw
Bouwjaar
2010
Soort dak
Zadeldak
Staat van onderhouden binnen
Uitstekend
Staat van onderhouden buiten
Uitstekend

Oppervlakte en inhoud

Perceeloppervlakte
253 m2
Inhoud van de woning
655 m3
Oppervlakte externe bergruimte
6 m2
Oppervlakte gebouwgebonden buitenruimten
11 m2

Indeling

Aantal kamers
6
Aantal slaapkamers
5
Aantal woonlagen
3
Voorzieningen
Tuin, schuur/berging, ventilatie, kabel-tv, glasvezel, dakraam

Buitenruimte

Balkon
Nee
Schuur/berging
Ja

Maandlasten berekenen

De maandlasten voor je woning bestaan uit meer dan alleen de hypotheeklasten. Hieronder vind je een overzicht van de bijkomende kosten en lasten. Zo weet je precies wat je huis per maand gaat kosten. En met de handige vergelijkers kun je ook nog eens snel de beste deals sluiten!

  • Kaart
  • Streetview