Bilderdijkstraat 62 2513 CR 's-Gravenhage

186m2
Wonen
6
Kamers
106m2
Perceel
1900
Bouwjaar
Herenhuis met optioneel 2 parkeerplaatsen
Dit karakteristieke, gemoderniseerde herenhuis met vele authentieke details biedt een unieke kans in het Zeeheldenkwartier. Optioneel kunnen twee betaalbare, gehuurde parkeerplaatsen in nabijgelegen garages worden overgenomen.

Dit klassieke herenhuis van vier lagen, gelegen op eigen grond, is zorgvuldig gerestaureerd en gerenoveerd met behoud van originele details, zoals ornamenten, paneeldeuren, luiken, glas-in-loodramen, een drieslagseparatie en een monumentaal, origineel trappenhuis. Binnenshuis zijn nieuwe paneeldeuren en luiken naar oud voorbeeld nagemaakt, voorzien van klassiek messing hang- en sluitwerk.

U woont hier in alle rust op een zeer gewilde locatie, vlak bij de ingang van de Paleistuinen van Paleis Noordeinde en op een steenworp afstand van het centrum van Den Haag. In de directe omgeving vindt u een ruim aanbod aan restaurants, uitgaansgelegenheden, het Vredespaleis, het Binnenhof, Noordeinde en de Denneweg. Ook supermarkten, fitnesscentra, huisartsen, musea, kinderopvang, theaters, bioscopen en openbaar vervoer (tram, bus en NS-station) bevinden zich op zeer korte afstand.

Twee gehuurde parkeerplaatsen in twee stallingsgarages op loopafstand kunnen worden overgenomen. Het herenhuis beschikt over een woonkeuken, drie toiletten (waarvan twee in de badkamers) en een separaat toilet. Een extra keuken of badkamer kan eenvoudig worden gerealiseerd, aangezien gas-, warm- en koud water aansluitingen, afvoeren en meerdere elektriciteitsgroepen al aanwezig zijn.

De voorgevel heeft een monumentale uitstraling met originele, gerestaureerde schuiframen en een prachtige erker met balkon. Aan de achterzijde beschikt het herenhuis over een beschermde binnentuin op het zuidwesten en een dubbele uitbouw met dakterras. Het dakterras op de tweede verdieping ligt beschut en biedt bij zonnig weer de mogelijkheid om vanaf 10 uur ’s ochtends tot zonsondergang van de zon te genieten. In de achtertuin bevinden zich een ruime tuinkast voor tuingereedschap en een schuur met de opstelplaats voor de cv-ketel en de 256 liter elektrische boiler, die wordt opgewarmd met zonnestroom.

INDELING:
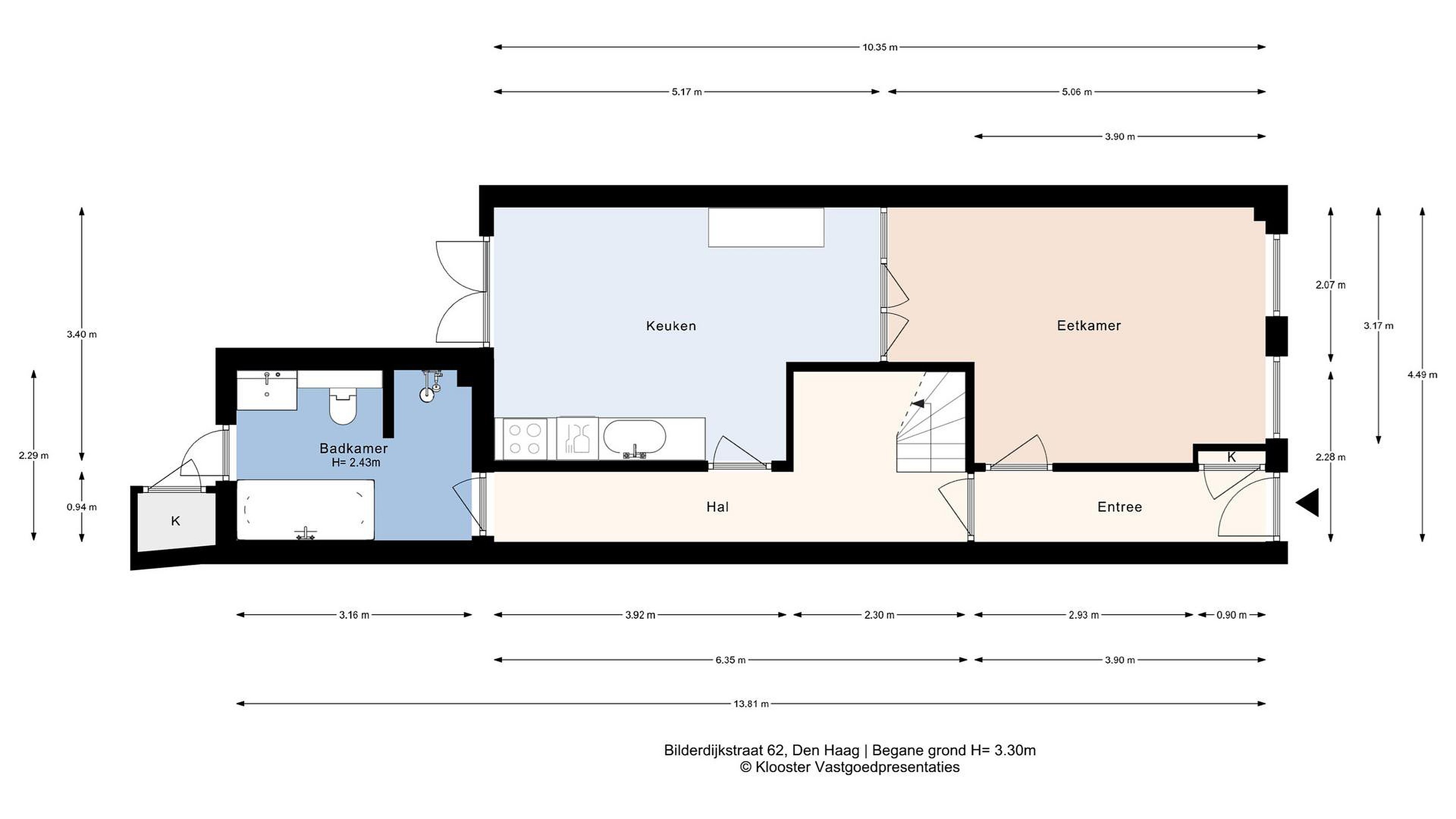
Begane grond:
Entree, hal en voorkamer/eetkamer, die middels een tochtdeur is afgescheiden van de garderobe, het trappenhuis en de achtergang. Verder bevinden zich hier de woonkeuken en een badkamer. De voorkamer is momenteel ingericht als eetkamer, maar kan ook dienen als kantoorruimte of extra slaapkamer.
De achterkamer/woonkeuken is voorzien van een moderne keuken met (inbouw)apparatuur van SMEG en een afzuigkap met extra grote afzuigcapaciteit. Onder het keukenblok is een Itho Daalderop-cooker geplaatst, waardoor vrijwel direct bijna kokend water uit de kraan beschikbaar is. Openslaande deuren geven direct toegang tot de achtertuin.
De badkamer beschikt over een extra ruime douche, een bad, een toilet, een wastafel, vloerverwarming en eveneens toegang tot de achtertuin. De fraai aangelegde achtertuin biedt een heerlijk terras, een royale tuinkast voor tuingereedschap en een schuur. In de schuur bevinden zich de opstelplaats van de cv-ketel en de elektrische boiler, die wordt opgewarmd met zonnestroom. Deze boiler kan tevens indirect worden verhit via de 45 kW Remeha Quinta. Daarnaast zijn hier twee groepen aanwezig met aansluitingen voor een wasmachine en een wasdroger.

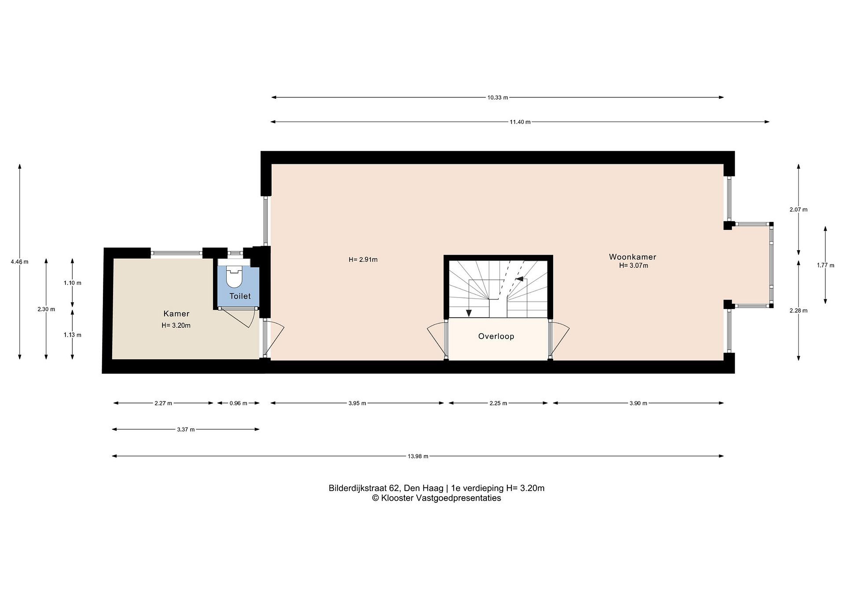
Eerste verdieping:
Overloop met toegang via de monumentale trap naar de bel-etage met stijlvolle erker. De voorkamer met erker en de achterkamer vormen samen één royale woonkamer. Deze lichte ruimte biedt uitzicht op de binnentuin van het voormalige klooster.
De achterkamer geeft toegang tot de uitbouw met de mogelijkheid van een keuken (afgebeelde keuken is voorbeeld) en toilet. In zowel de slaapkamer als de uitbouw zijn draai-kiepramen geplaatst. De keuken en het toilet zijn voorzien van een betonnen vloer en geschikt om als extra keuken of badkamer te gebruiken. Meerdere elektragroepen zijn hier aanwezig, evenals gas, warm en koud stromend water en diverse afvoerleidingen. In het toilet is bovendien een extra boiler geplaatst om de bovenverdieping direct van warm water te voorzien.

Tweede verdieping:
Overloop met toegang via de trap. De voorkamer is ingericht als master bedroom en beschikt over openslaande paneeldeuren naar het balkon boven de erker, gelegen op het noordoosten. De vloer is uitgevoerd in eiken vloerdelen.
De achterkamer kan dienen als garderobekamer of extra slaapkamer en beschikt over een vide naar de derde (zolder)verdieping, die via een trap vanuit deze kamer bereikbaar is. Vanuit de achterkamer is tevens toegang tot de tweede badkamer met douche, toilet en wastafel. Dankzij de boiler op deze verdieping is er direct warm water beschikbaar. In deze badkamer bevindt zich ook een aansluiting voor de wasmachine.
Via twee openslaande deuren in de garderobekamer bereikt u het royale, beschut gelegen dakterras op het zuidwesten.

Derde verdieping / zolder / vide:
De vide is bereikbaar via de trap vanuit de garderobekamer. Deze heerlijke, lichte ruimte biedt volop mogelijkheden als slaapkamer of studeerkamer. Vanuit de dakkapel heeft u een prachtig uitzicht op het Vredespaleis, de Koninklijke Stallen en het centrum van Den Haag

Een aantal impressie zijn bijgevoegd voor de kamer voorzijde begane grond (slaapkamer en kantoor) en kamer achterzijde (badkamer)

BIJZONDERHEDEN
- Woonoppervlakte: 188,1 m2
- Perceeloppervlakte: 106 m2
- Energielabel: C
- Bouwkundige keuring aanwezig
- Warm water en verwarming via een industriële Remeha Quinta 45 kW HR-ketel (eigendom), bouwjaar 2007
- Eldom Invest 256 liter boiler/buffervat met 3-, 6- en 9 kW aansluiting en twee spiralen voor verwarming via cv-ketel of warmtepomp
- Itho Daalderop plintboiler (2023) met 5 liter kokend water, 1500 Watt
- Eldom Invest (2024) 75 liter, 2000 Watt
- 4 slaapkamers
- SMEG inbouwapparatuur/fornuis en Boretti afzuigkap
- Volledig eigendom
- Centrale ligging op steenworp afstand van winkels
- Glasvezelaansluiting
- Betaald parkeren/vergunninghouders
- Diverse originele details, waaronder glas-in-loodramen en klassieke panelen met glas-in-lood
- Oplevering in overleg
- Veel aandacht besteed aan duurzame oplossingen en comfort
- Hoge plafonds
- 23 zonnepanelen
- Begane grond voorzien van massief houten vloeren; in de gang is Italiaans marmer toegepast
- Gelegen in beschermd stadsgezicht
- Diverse inbouwkasten
- Twee gehuurde parkeerplaatsen in twee stallingsgarages op loopafstand kunnen worden overgenomen
- 3 toiletten
- 2 badkamers
- In de koopovereenkomst worden een ouderdoms- en materialenclausule opgenomen
- Bieding via “Eerlijk Bieden”
Lees meer

Kenmerken

Overdracht

Prijs per m2
€ 5.767
Aangeboden sinds
5 maart 2026
Status
Beschikbaar
Aanvaarding
In overleg

Bouw

Soort woonhuis
Herenhuis, tussen woning
Soort bouw
Bestaande bouw
Bouwjaar
1900
Soort dak
Samengesteld dak
Staat van onderhouden binnen
Goed
Staat van onderhouden buiten
Goed

Oppervlakte en inhoud

Perceeloppervlakte
106 m2
Inhoud van de woning
720 m3
Oppervlakte externe bergruimte
5 m2
Oppervlakte gebouwgebonden buitenruimten
10 m2
Oppervlakte overige inpandige ruimten
0 m2

Indeling

Aantal kamers
6
Aantal slaapkamers
5
Aantal woonlagen
4
Voorzieningen
Tuin, schuur/berging, alarmsysteem, glasvezel

Buitenruimte

Balkon
Nee
Schuur/berging
Ja

Maandlasten berekenen

De maandlasten voor je woning bestaan uit meer dan alleen de hypotheeklasten. Hieronder vind je een overzicht van de bijkomende kosten en lasten. Zo weet je precies wat je huis per maand gaat kosten. En met de handige vergelijkers kun je ook nog eens snel de beste deals sluiten!

  • Kaart
  • Streetview