Sterreschans 112 2342 BN Oegstgeest

177m2
Wonen
5
Kamers
353m2
Perceel
2020
Bouwjaar
Even wegdromen.... dat mag, want degene die deze prachtige half vrijstaande villa koopt, heeft één van de ‘kroonjuwelen’ van Oegstgeest aan de Rijn in handen. Dankzij de oude Oegstgeester architectuur, geïnspireerd op villa's rond het Wilhelminapark, straalt de woning (gebouwd in 2020) charme uit.

Kosten noch moeite zijn gespaard om de luxe woonbeleving op een hoog niveau te brengen. Modern, ruim, licht, energiezuinig, achtertuin op het noordwesten aan vaarwater met eigen aanlegsteiger met botenlift op een ruim perceel van 353 m2. Deze fraaie woning heeft parkeergelegenheid (2 plaatsen) op eigen terrein, een garage, 4 ruime (slaap)kamers, een moderne badkamer, open keuken met kookeiland, 23 zonnepanelen en vloerverwarming op de begane grond en eerste verdieping.

Gelegen in een rustige straat in het hart van Nieuw-Rhijngeest in deze kindvriendelijke en nieuwe woonwijk van Oegstgeest (aan de Rijn). Nabij de woning is op loopafstand basisschool Het Dok met kinderopvang, park Landskroon, een winkelplein met o.a. een supermarkt, bakker, snackbar, kapper en drogisterij, maar ook het centrum van Oegstgeest, Leiden en de stranden en duinen van Katwijk, Noordwijk en Wassenaar zijn dichtbij. Dankzij de ideale ligging vlakbij de A44 ben je snel op weg naar Den Haag of Schiphol/Amsterdam.
Begane grond
Bij binnenkomst aan de zijkant van de woning komt u in de hal met aan de linkerzijde de meterkast en een kast voor de warmtepomp en aan de rechterzijde een modern toilet met fonteintje. De riante woonkamer heeft een handige trapkast en aan de voorzijde een sfeervolle erker met veel glas en aan de achterzijde is er de open keuken. Deze luxe keuken heeft een kookeiland en is van alle gemakken voorzien (o.a. koel-/vriescombinatie, inductie kookplaat, oven, wijnkoelkast en vaatwasser).

Ook zijn er aan de achterzijde openslaande deuren naar de tuin en een deur om van binnenuit naar de garage te gaan. De garage heeft aan de voorzijde openslaande deuren en aan de achterzijde is ook een deur. Verder is er een handige kastenwand met daarin verwerkt de aansluiting voor de wasmachine en droger.

De gehele begane grond heeft vloerverwarming en de woonkamer is voorzien van fraaie houten vloerdelen.

Eerste verdieping
Overloop met aparte modern toilet. Verder zijn er op deze verdieping drie goed formaat (slaap)kamers. Eén van de slaapkamers aan de voorzijde heeft nog een gezellig balkon. De luxe, moderne badkamer is fraai afgewerkt en heeft een ruime inloopdouche, een vrijstaand bad en een wastafel met meubel. Deze gehele verdieping is voorzien van houten vloerdelen en vloerverwarming.

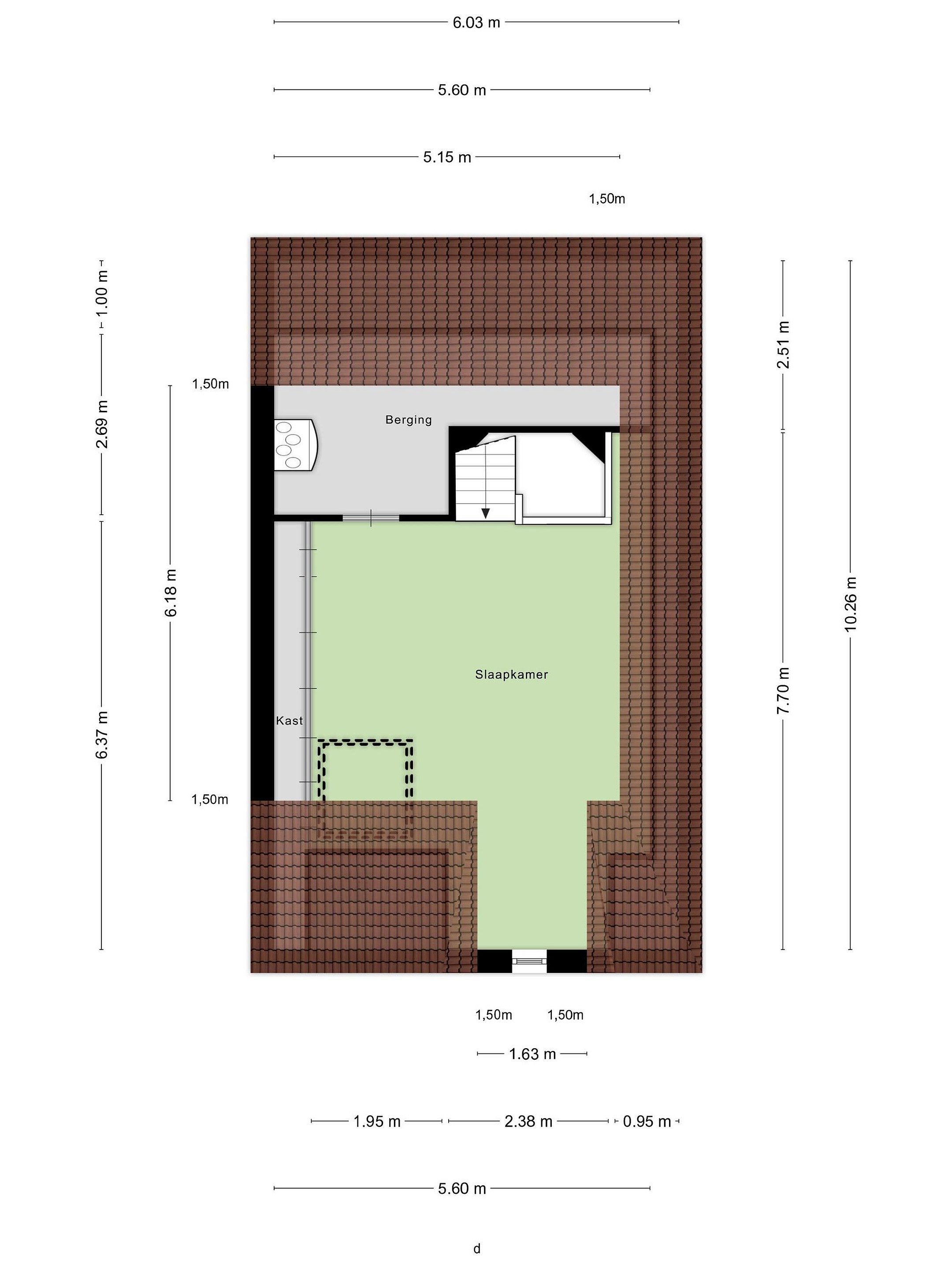
Tweede verdieping
De huidige bewoners hebben hier nu één grote open slaapkamer van gemaakt met een stijlvolle kastenwand. Verder is er een zeer ruime berging/technische ruimte waar een tweede aansluiting voor de wasmachine zit. Ook deze verdieping heeft weer houten vloerdelen.

Tuin
Aan de voorzijde is een knusse voortuin waar u gedurende dag heerlijk kunt genieten van het zonnetje. Aan de zijkant is er ruimte om twee auto’s te parkeren en dan is er ook nog genoeg plek voor (bak-)fietsen. Langs het huis gaat u via een poort naar de achtertuin.

De diepe en fleurige achtertuin heeft -aan het huis vast- over de gehele breedte een sfeervolle overkapping met buitenhaard. Achter in de tuin is ook een flink terras met eigen aanlegsteiger met botenlift. Vanaf hier vaart u heerlijk de Oude Rijn op... en verder. Het centrum van Leiden, de Kagerplassen of via het Oegstgeesterkanaal verder tot aan de Noordzeekust. Je raakt nooit uitgekeken onderweg met wisselende vergezichten en leuke restaurantjes die je 'pad' kruisen.

Details
- Gebruiksoppervlakte wonen 177 m2
- Overige inpandige ruimte 16 m2
- Gebouw gebonden buitenruimte 45 m2
- Externe bergruimte 0 m2
- Inhoud woning 685 m3
- Perceel 353 m2
- Bouwjaar 2020
- Moderne en hoogwaardige afwerking
- Volledig geïsoleerd
- 23 zonnepanelen
- Energielabel A
- Twee parkeerplaatsen op eigen terrein
- Diepe achtertuin (ca 25 m) met aanlegsteiger (inclusief botenlift) aan vaarwater
- Oplevering in overleg

Lees meer

Kenmerken

Overdracht

Prijs per m2
€ 7.881
Aangeboden sinds
1 september 2025
Status
Beschikbaar
Aanvaarding
In overleg

Bouw

Soort woonhuis
Herenhuis, twee-onder-een-kap woning
Soort bouw
Bestaande bouw
Bouwjaar
2020
Soort dak
Samengesteld dak
Staat van onderhouden binnen
Uitstekend
Staat van onderhouden buiten
Uitstekend

Oppervlakte en inhoud

Perceeloppervlakte
353 m2
Inhoud van de woning
685 m3
Oppervlakte gebouwgebonden buitenruimten
45 m2
Oppervlakte overige inpandige ruimten
16 m2

Indeling

Aantal kamers
5
Aantal slaapkamers
4
Aantal woonlagen
3
Voorzieningen
Tuin, balkon

Buitenruimte

Balkon
Ja
Schuur/berging
Nee

Maandlasten berekenen

De maandlasten voor je woning bestaan uit meer dan alleen de hypotheeklasten. Hieronder vind je een overzicht van de bijkomende kosten en lasten. Zo weet je precies wat je huis per maand gaat kosten. En met de handige vergelijkers kun je ook nog eens snel de beste deals sluiten!

  • Kaart
  • Streetview