Verkocht

Hoofdstraat 100 2351 AM Leiderdorp

138m2
Wonen
6
Kamers
101m2
Perceel
1900
Bouwjaar
Wie de Hoofdstraat in Leiderdorp kent, weet dat deze straat bol staat van historie, karakter en charme. Eeuwenoude gevels, statige panden en een bijna dorpse rust midden in de levendige dorpskern: hier voel je de sfeer van vroeger, terwijl het comfort van nu binnen handbereik is. De Hoofdstraat slingert parallel aan de Oude Rijn, die al sinds de middeleeuwen het hart vormt van de omgeving. Aan dit water, met een directe ligging aan de oever, staat dit gemeentelijk monumentale pand uit circa 1900 – een huis dat barst van de authentieke details, warme sfeer en ruimte. Totaal 4 slaapkamers, een grote woonkamer met openslaande deuren naar de tuin met uitzicht over de Oude Rijn, een nette badkamer met ligbad en douche, en een riante keuken die toegang heeft naar een bijkeuken. Wat te denken van de tuin, ca. 31m2, gelegen aan de Oude Rijn en heerlijk genieten van de bootjes en de eendjes. Een huis welke uniek is in zijn soort. Voorzien van 8 zonnepanelen en een thuisbatterij (5kw). Energie technisch toch behoorlijk up to date.

Van deze woning is ook een eigen website beschikbaar. Url van de website is straatnaam, dan het huisnummer en dan .nl. Behalve de foto’s op groot formaat zijn er ook allerlei handige tools. De relevante documentatie kan je hier vinden. Je kan ook zelf je afspraak maken via onze website of bv funda. Wel zo makkelijk.
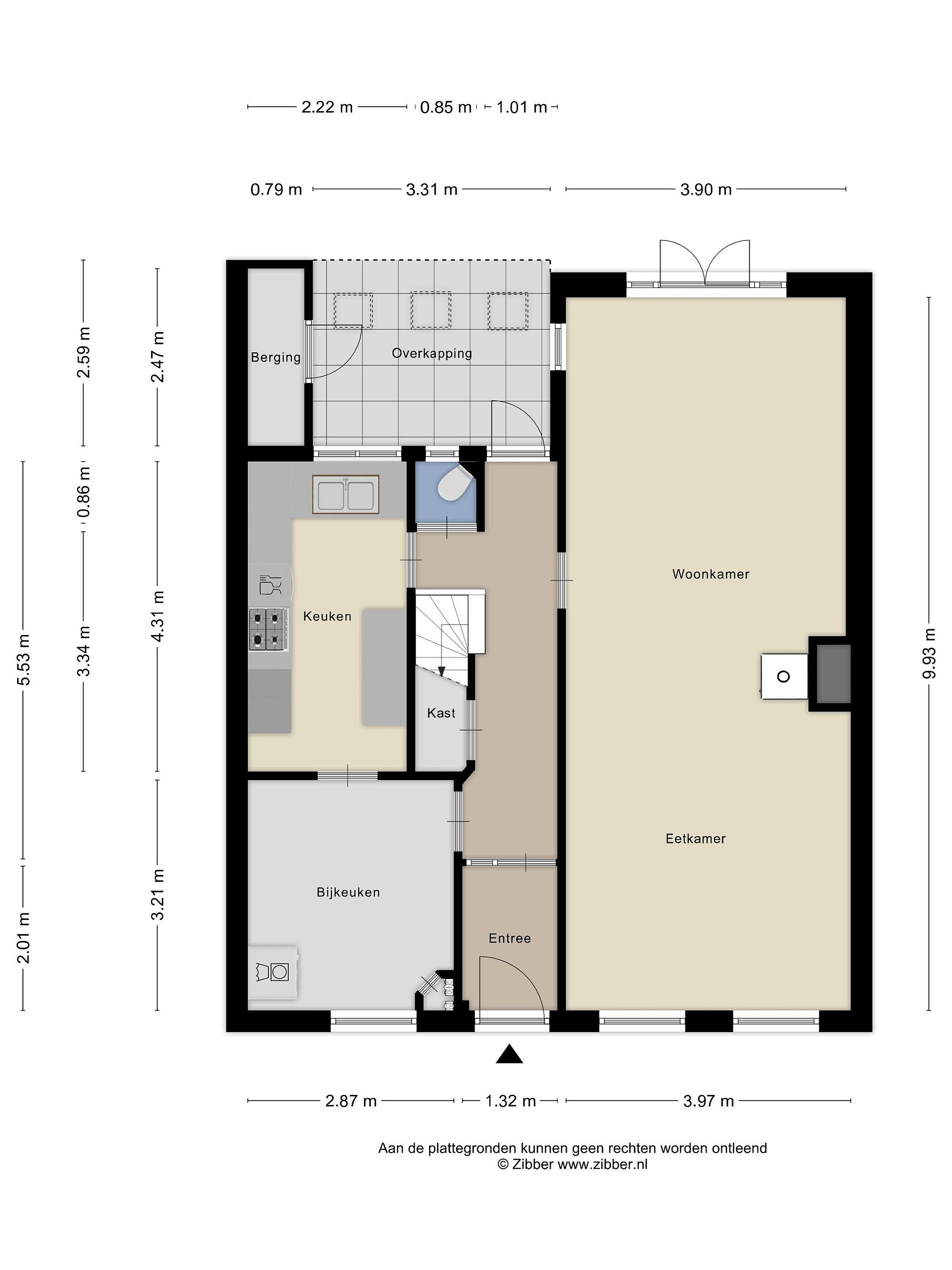
Begane grond
Via de fraaie vestibule betreed je de woning. De eerste indruk? Grootse hoogte, klassieke details en een gevoel van welkom. De oorspronkelijke paneeldeuren, sierlijke deurlijsten, hoge plafonds en karaktervolle trapleuningen verraden direct dat dit een bijzonder huis is. Vanuit de vestibule loop je door naar de centrale gang, waar je al een glimp opvangt van de Oude Rijn aan de achterzijde – een uitzicht dat nooit verveelt.

Aan de linkerzijde bevindt zich de "opkamer"/bijkeuken, een heerlijke ruimte met hoge ramen en een charmante doorkijk naar de keuken. In de gang vind je verder een trapkast, het eerste toilet en een tweede toegang tot de keuken.
De keuken is ruim opgezet in een hoekopstelling. Hoewel de inrichting niet meer helemaal van deze tijd is, biedt de ruimte volop mogelijkheden om een eigentijdse leefkeuken te creëren. Dankzij de grote raampartijen en de ligging aan de tuin geniet je hier van een schitterend uitzicht op de Oude Rijn.

De woonkamer is een ware blikvanger. Oorspronkelijk een en-suite woonkamer, nu één grote ruimte van bijna 40 m2 waar de sfeer van toen behouden is gebleven. Denk aan de hoge schuiframen aan de voorzijde, de haard, de prachtige lijstwerken en natuurlijk de openslaande deuren naar de tuin. Elke hoek ademt nostalgie en warmte – een plek waar je meteen tot rust komt.
Via de woonkamer of gang loop je zo de achtertuin in. Met een totale oppervlakte van circa 31 m2, verdeeld in twee delen, biedt deze tuin volop zon en privacy. Aan de rand van de Oude Rijn kun je heerlijk zitten, ontspannen of genieten van het kabbelende water. Je kunt hier zelfs tijdelijk een bootje aanleggen (let op: GEEN ligplaatsvergunning). Dankzij de overkapping is er altijd een plekje uit de wind – een idyllische plek om te onthaasten en de dag af te sluiten.

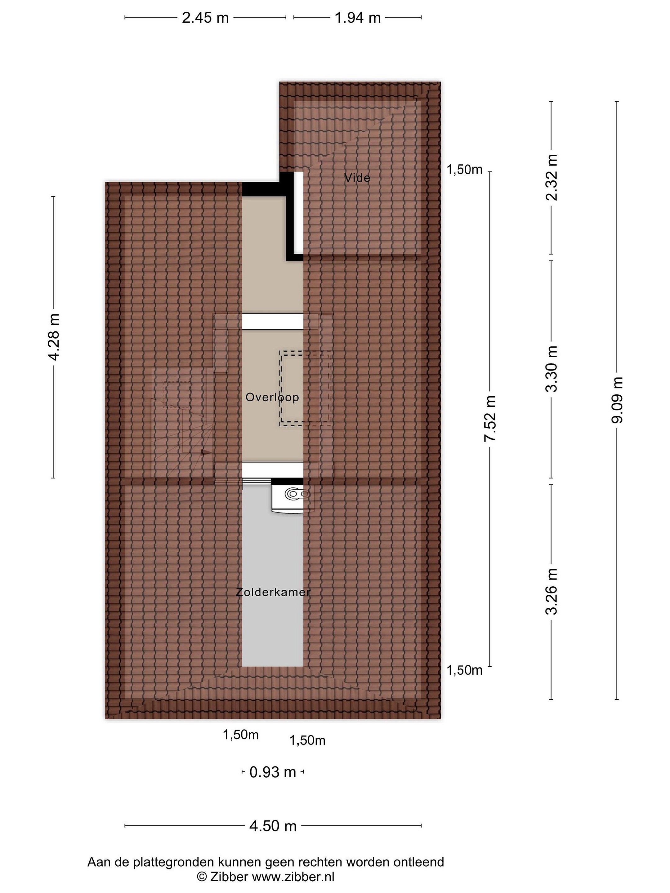
De trap naar de eerste verdieping is een kunstwerk op zich – met fraaie houten leuningen en originele stijlelementen. Boven aangekomen wacht een ruime overloop, die toegang biedt tot alle vertrekken. Aan de voorzijde bevinden zich twee grote slaapkamers, beide met hoge schuiframen, veel lichtinval en vaste kasten. De kamers zijn met elkaar verbonden via een charmante tussendeur.

Aan de achterzijde liggen nog twee slaapkamers. De kleinste – die nog altijd riant is – beschikt over een vaste kast en heeft toegang tot het achterbalkon met prachtig uitzicht over de Oude Rijn. De grootste slaapkamer biedt eveneens toegang tot het balkon, extra bergruimte onder de knieschotten en een wastafel. Hier word je wakker met een uitzicht dat elke dag bijzonder blijft.
De badkamer is centraal gelegen en voorzien van een douche, wastafel en een ligbad. Het toilet is separaat – beide klaar voor eventueel modernisering naar eigen smaak.

De tweede etage herbergt nog een soort van vijfde kamer die zich uitstekend leent als werkruimte of speelkamer. Daarnaast is er een grote zolderruimte met de cv-ketel (2025). Samenvoegen van deze ruimtes tot één grote verdieping behoort tot een van de mogelijkheden.

Wonen aan de Hoofdstraat is wonen met een verhaal. Dit is niet zomaar een huis; het is een plek met ziel, geschiedenis en uitzicht dat nooit verveelt. Een plek waar je elke dag even teruggaat in de tijd, zonder in te leveren op comfort of ruimte.

Details
- Oplevering in overleg. Uiterlijk 6 maanden na verkoop
- 8 Zonnepanelen aanwezig
- Veel authentieke details
- Gelegen aan vaarwater van de Oude Rijn

Lees meer

Verkoopgeschiedenis

Aangeboden sinds
7 november 2025
Verkoopdatum
11 februari 2026
Looptijd
3 maanden

Kenmerken

Overdracht

Prijs per m2
€ 5.036
Aangeboden sinds
7 november 2025
Status
Verkocht
Aanvaarding
In overleg

Bouw

Soort woonhuis
Herenhuis, tussen woning
Soort bouw
Bestaande bouw
Bouwjaar
1900
Soort dak
Zadeldak
Staat van onderhouden binnen
Redelijk
Staat van onderhouden buiten
Goed

Oppervlakte en inhoud

Perceeloppervlakte
101 m2
Inhoud van de woning
517 m3
Oppervlakte gebouwgebonden buitenruimten
15 m2
Oppervlakte overige inpandige ruimten
8 m2

Indeling

Aantal kamers
6
Aantal slaapkamers
5
Aantal woonlagen
3
Voorzieningen
Tuin, balkon, kabel-tv, rookkanaal, dakraam

Buitenruimte

Balkon
Ja
Schuur/berging
Nee

Maandlasten berekenen

De maandlasten voor je woning bestaan uit meer dan alleen de hypotheeklasten. Hieronder vind je een overzicht van de bijkomende kosten en lasten. Zo weet je precies wat je huis per maand gaat kosten. En met de handige vergelijkers kun je ook nog eens snel de beste deals sluiten!

  • Kaart
  • Streetview