Tesselschadestraat 16 2332 BJ Leiden

171m2
Wonen
7
Kamers
135m2
Perceel
1934
Bouwjaar
In de geliefde jaren ’30 wijk De Lage Mors in Leiden ligt deze verrassend ruime, samengevoegde boven- en benedenwoning. Door deze samenvoeging is een royale eengezinswoning ontstaan, compleet met twee badkamers, een dakterras en een achtertuin met achterom.

De woning ademt karakter en beschikt nog over vele originele details, zoals paneeldeuren, een erker aan de voorzijde, glas-in-loodramen en de kenmerkende hoge plafonds uit de jaren ’30.

De ligging is bijzonder gunstig: het centrum van Leiden, het Centraal Station, het LUMC en het Bio Science Park zijn binnen enkele minuten bereikbaar. Ook de A44 is eenvoudig aan te rijden.

Daarnaast biedt deze woning flexibiliteit: het is mogelijk om de woning relatief eenvoudig weer te splitsen in een beneden- en bovenwoning, wat interessante mogelijkheden biedt voor bijvoorbeeld dubbele bewoning of verhuur.
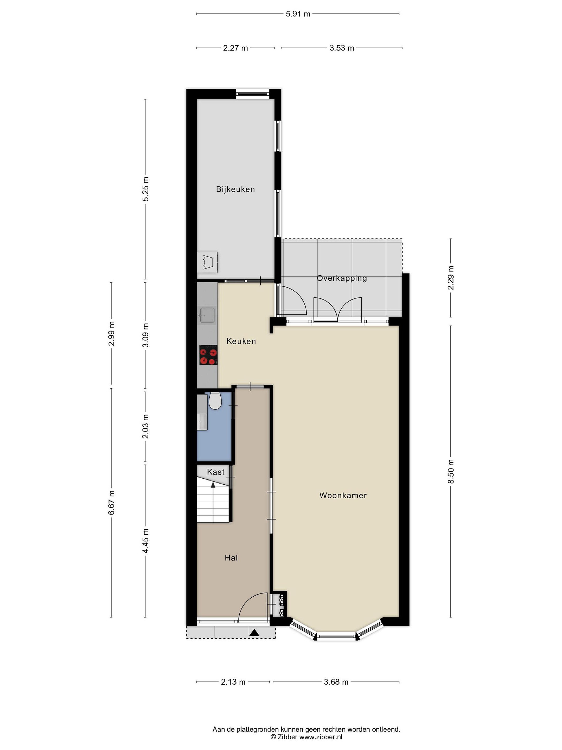
Begane grond
Via de entree komt u in de ruime, betegelde hal die overloopt in de gang. Hier bevindt zich tevens een moderne badkamer, voorzien van een douche, toilet en wastafel.

De woon-/slaapkamer -over de gehele lengte- is sfeervol afgewerkt met een houten parketvloer en beschikt aan de voorzijde over een karakteristieke erker. Aan de achterzijde zorgen openslaande deuren voor een directe verbinding met de tuin.

Aansluitend bevindt zich een praktische tussenruimte, eveneens met een deur naar de tuin. Hierachter ligt nog een lichte (slaap-/werk-/hobby)kamer, die ook toegang biedt tot de tuin. In deze ruimte is momenteel de opstelplaats voor de wasmachine gesitueerd.

Eerste verdieping
De overloop, voorzien van een toilet met fonteintje en originele tegels, geeft toegang tot alle vertrekken op deze verdieping.

Aan de voorzijde bevindt zich een charmante studeer- of kinderkamer, gekenmerkt door fraaie glas-in-loodramen. De woonkamer is sfeervol en licht, met een houten parketvloer, een moderne houtkachel en openslaande deuren naar het royale dakterras. Aan de voorzijde zorgt de erker met glas-in-loodramen voor extra karakter en lichtinval.

De open keuken is uitgevoerd en voorzien van diverse (inbouw)apparatuur, waaronder een koel-/vriescombinatie, vaatwasser, oven en afzuigkap.

Vanaf het dakterras leidt een buitentrap naar de achtertuin, waardoor binnen en buiten op een praktische manier met elkaar zijn verbonden.

Tweede verdieping
De overloop biedt toegang tot de twee slaapkamers op deze verdieping. De bijzonder royale hoofdslaapkamer strekt zich uit over de volledige lengte van de woning en kan, indien gewenst, eenvoudig worden opgesplitst in twee slaapkamers door het plaatsen van een tussenwand.

Aan de achterzijde bevindt zich de tweede badkamer, compleet uitgevoerd met een douche, ligbad, toilet en wastafel.

Tuin
Deze tussenwoning beschikt over zowel een voor- als achtertuin op de begane grond, waarbij de achtertuin is voorzien van een praktische achterom. Daarnaast biedt de woning een ruim dakterras op de eerste verdieping — een heerlijke extra buitenruimte om in alle rust van het buitenleven te genieten.

Details
- Bouwjaar 1934
- Gebruiksoppervlakte wonen 171 m2
- Overige inpandige ruimte 0 m2
- Gebouw gebonden buitenruimte 31 m2
- Externe bergruimte 0 m2
- Perceelgrootte 135 m2
- Energielabel F
- Centrale ligging nabij voorzieningen, groen en uitvalswegen
- Grotendeels dubbelglas
- 2 badkamers
- Ruim dakterras op de 1e verdieping
- Authentieke details zoals hoge plafonds, paneeldeuren, erkers en glas-in-loodramen
- Voorheen waren dit een beneden- en bovenwoning, weer eenvoudig terug te brengen
- Oplevering in overleg

Koopakte
- ouderdoms- en materiaalclausule is van toepassing
- asbestclausule is van toepassing
- niet-zelfbewoningsclausule van toepassing

Lees meer

Kenmerken

Overdracht

Prijs per m2
€ 5.263
Aangeboden sinds
20 maart 2026
Status
Beschikbaar
Aanvaarding
In overleg

Bouw

Soort woonhuis
Herenhuis, tussen woning
Soort bouw
Bestaande bouw
Bouwjaar
1934
Soort dak
Zadeldak
Staat van onderhouden binnen
Goed
Staat van onderhouden buiten
Goed

Oppervlakte en inhoud

Perceeloppervlakte
135 m2
Inhoud van de woning
638 m3
Oppervlakte gebouwgebonden buitenruimten
31 m2

Indeling

Aantal kamers
7
Aantal slaapkamers
5
Aantal woonlagen
4
Voorzieningen
Tuin

Buitenruimte

Balkon
Nee
Schuur/berging
Nee

Maandlasten berekenen

De maandlasten voor je woning bestaan uit meer dan alleen de hypotheeklasten. Hieronder vind je een overzicht van de bijkomende kosten en lasten. Zo weet je precies wat je huis per maand gaat kosten. En met de handige vergelijkers kun je ook nog eens snel de beste deals sluiten!

  • Kaart
  • Streetview