Verkocht

Kleine Noord 20 1621 JG Hoorn

164m2
Wonen
6
Kamers
92m2
Perceel
1794
Bouwjaar
Bieden vanaf € 650.000,- k.k.

Sfeervol wonen in dit Rijksmonument in de gezellige binnenstad van Hoorn is een belevenis! Veel karakteristieke elementen zijn gelukkig bewaard gebleven en naast veel leefruimte op de begane grond én de vide met een 2e living is er een gezellige woonkeuken, zijn er 3 slaapkamers en een knusse binnenstadtuin.
Winkels, restaurantjes, de schouwburg, het station en het stadsstrand zijn op een steenworp afstand. Echt een unieke woonkans!

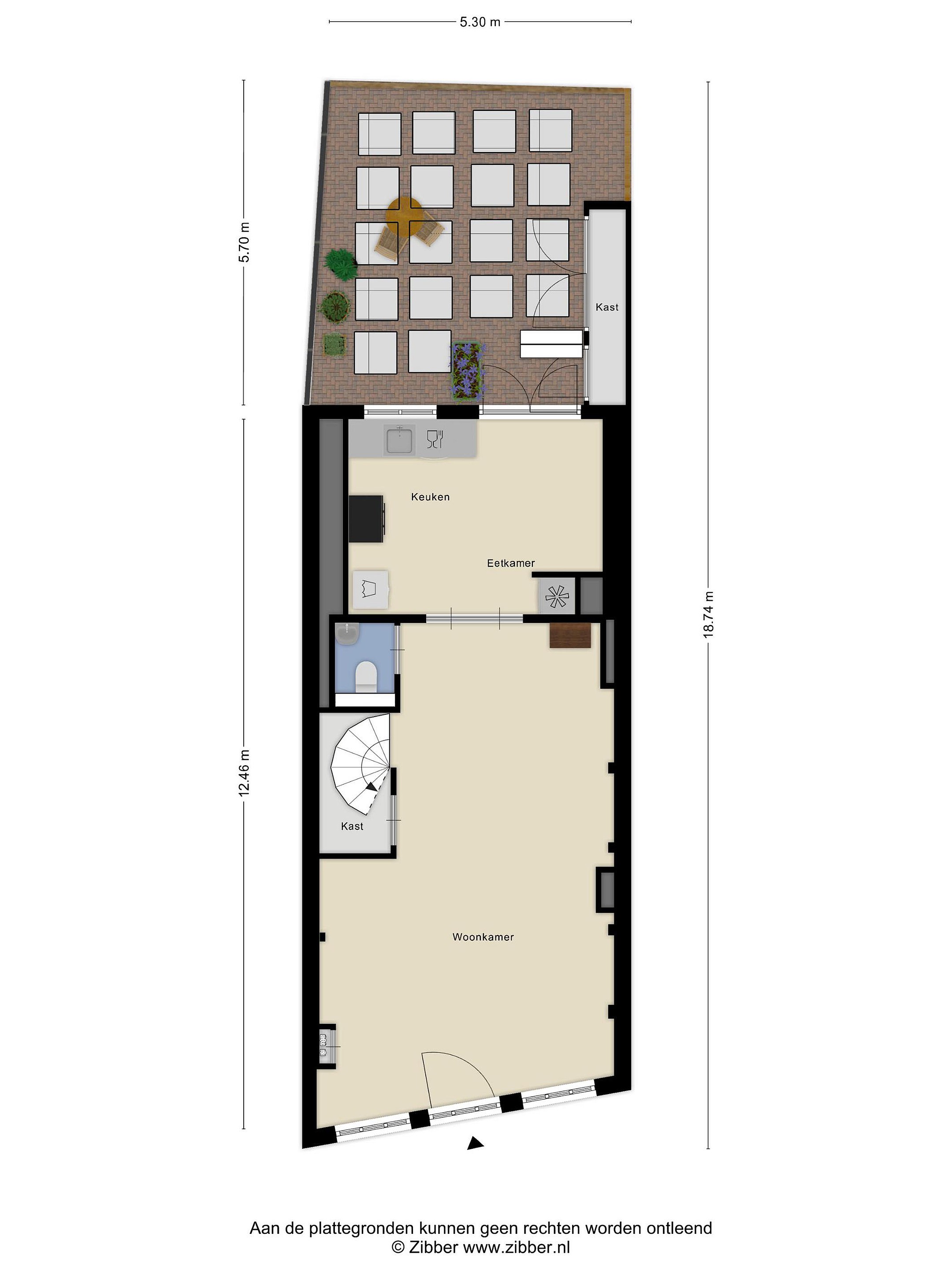
Entree en living op de begane grond
De gevel van dit bijzondere pand heeft een snijvoeg en bovenaan pronkt een fraaie klokgevel. Als u door de voordeur stapt wordt u verwelkomt door een prachtige leefruimte met hoog plafond met de vloerbalken in het zicht, alsmede de vide. Hoge roederamen met enkel glas geven veel lichtinval en in de zomer kunnen de elektrisch te bedienen markiezen worden uitgezet. Op de vloer ligt een massief eikenhouten vloer. Om de radiatoren zit een ombouw, vaste hoge kasten sieren de wanden en er zit een oude schouw met antieke tegeltjes die ook als drempels zijn geplaatst. Een lust voor het oog! In het vaste dressoir zit enorm veel bergruimte en en-suite deuren geven toegang tot de gezellige woonkeuken.
Een prachtige half ronde trap met hout beklede wand geeft toegang tot de vide.
Er is een diepe trapkast met daarnaast de toiletruimte met lichte wandtegels, een Belgisch hardstenen vloer, wandcloset en fonteintje.

Woonkeuken
Juist de eenvoud siert deze gezellige woonkeuken waar je bijna verwacht dat Swiebertje en Saartje aan tafel zitten! De massief houten vloer is hier doorgelegd, er is een keukenblok met diep houten werkblad, porseleinen spoelbak, met witjes betegelde wand, de vaatwasser is 2½ jaar oud, de koelkast staat los in een hoek en koken kunt u op het Bertazzoni inductiefornuis met 5 zones en brede oven, ook 2½ jaar oud. Er is een vaste kast voor de wasmachine. Bij de eettafel is een zitplateau over de radiator geplaatst en openslaande deuren met roederamen geven toegang tot de sfeervolle tuin.

Tuin
In de sfeervolle tuin heerst een oase van rust waar je helemaal niets van de binnenstadgeluiden hoort. Er liggen grote tegels, er zijn tuinkasten geplaatst, er is geen inkijk van directe achterburen en vanaf uw loungeset heeft u zicht op een prachtige achtergevel.

1e Verdieping met vide en zitkamer
Als u de prachtige trap op bent gelopen is er eerst de vide met zicht op de benedenverdieping. Er ligt een massief houten vloer, de wanden zijn afwisselend gestuukt en schoon metselwerk, de robuuste wand- en plafondbalken geven een warme uitstraling aan de ruime living. Aan de tuinzijde geeft een grote raampartij van plafond tot de vloer met roederamen in een hardhouten kozijn veel lichtinval.

2e Verdieping
Eenzelfde prachtige en unieke halfronde trap met houten wanden geeft toegang tot de slaapverdieping. Boven de trapopgang komt het directe daglicht binnen middels een Velux raam. Op de overloop liggen houten vloerdelen die zijn doorgelegd in de slaapkamers.
2 Slaapkamers aan de voorzijde – identieke kamers met vaste kasten, balken plafond, gespoten zijwanden, ombouw om de radiator en een raam met enkel glas waar in de winter een voorzetraam voor wordt geplaatst.
3e Slaapkamer achterzijde – royale slaapkamer met een vaste kastenwand met melkglazen schuifdeuren, een speels wandkastje met laden. Ook in deze kamer zijn de plafondbalken in het zicht, het plafond en de wanden zijn gespoten, inbouwspots verlichten de kamer en er zit een radiator. Ook in deze kamer is er een voorzetraam geplaatst die in het voorjaar wordt weggehaald.

Badkamer
In de badkamer zijn de wanden met “witjes” betegeld, er liggen Belgisch hardstenen vloertegels en de wastafel is eveneens uitgevoerd in Belgisch hardsteen met een spiegelkastje en stopcontact. Verder treft u hier een duo ligbad met thermostaatkraan, 2e wandcloset, een designradiator en een achter de glasblokken wand een inloopdouche met thermostaatkraan. Er is een kunststof Velux raam voor het directe lichtinval en de natuurlijke ventilatie.

3e Verdieping
Vaste trap naar een hele leuke zolderverdieping die met gemak als 4e slaapkamer in gebruik kan worden genomen. De balken zijn in zicht gehouden wat een knusse sfeer geeft aan deze ruimte. De voorruimte is van binnenuit geïsoleerd, aan de straatzijde is een roederaam met enkel glas en voorzetraam, er is een groot Velux dakraam, houten vloerdelen op de houten verdiepingsvloer en veel bergruimte achter de hoge knieschotten met schuifdeuren.
Een deur geeft toegang tot het achterste deel van de verdieping wat als bergruimte wordt gebruikt. Deze ruimte is niet geïsoleerd, de sparretjes zijn hier in het zicht waarachter een asbest dakbeschot zit wat eenvoudig geïsoleerd kan worden. In deze ruimte bevinden zich de cv installatie en een125 liter boiler die in 2022 is geplaatst.

Bijzonderheden:
- Rijksmonument
- Wonen in de gezellige binnenstad
- Fijne woonomgeving
- Parkeervergunningsgebied
- Steenworp afstand van station, winkels, restaurants, schouwburg, stadsstrand en de gezellige zaterdagmarkt
Lees meer

Verkoopgeschiedenis

Aangeboden sinds
28 oktober 2025
Verkoopdatum
27 januari 2026
Looptijd
3 maanden

Kenmerken

Overdracht

Prijs per m2
€ 3.963
Aangeboden sinds
28 oktober 2025
Status
Verkocht
Aanvaarding
In overleg

Bouw

Soort woonhuis
Herenhuis, tussen woning
Soort bouw
Bestaande bouw
Bouwjaar
1794
Staat van onderhouden binnen
Goed
Staat van onderhouden buiten
Goed

Oppervlakte en inhoud

Perceeloppervlakte
92 m2
Inhoud van de woning
589 m3
Oppervlakte overige inpandige ruimten
2 m2

Indeling

Aantal kamers
6
Aantal slaapkamers
4
Aantal woonlagen
5
Voorzieningen
Tuin, kabel-tv

Buitenruimte

Balkon
Nee
Schuur/berging
Nee

Maandlasten berekenen

De maandlasten voor je woning bestaan uit meer dan alleen de hypotheeklasten. Hieronder vind je een overzicht van de bijkomende kosten en lasten. Zo weet je precies wat je huis per maand gaat kosten. En met de handige vergelijkers kun je ook nog eens snel de beste deals sluiten!

  • Kaart
  • Streetview