Dijk 108 1721 AH Broek op Langedijk

176m2
Wonen
8
Kamers
415m2
Perceel
1912
Bouwjaar
Charmante woning met karakter aan de Dijk – Broek op Langedijk
Aan de pittoreske Dijk in Broek op Langedijk staat deze bijzondere woning te koop. Achter de klassieke voorgevel gaat een verrassend ruime woning schuil vol karakter, warmte en unieke details. Hier woont u in een sfeervol huis waar nostalgie en comfort hand in hand gaan – én met de mogelijkheid om wonen en werken moeiteloos te combineren.
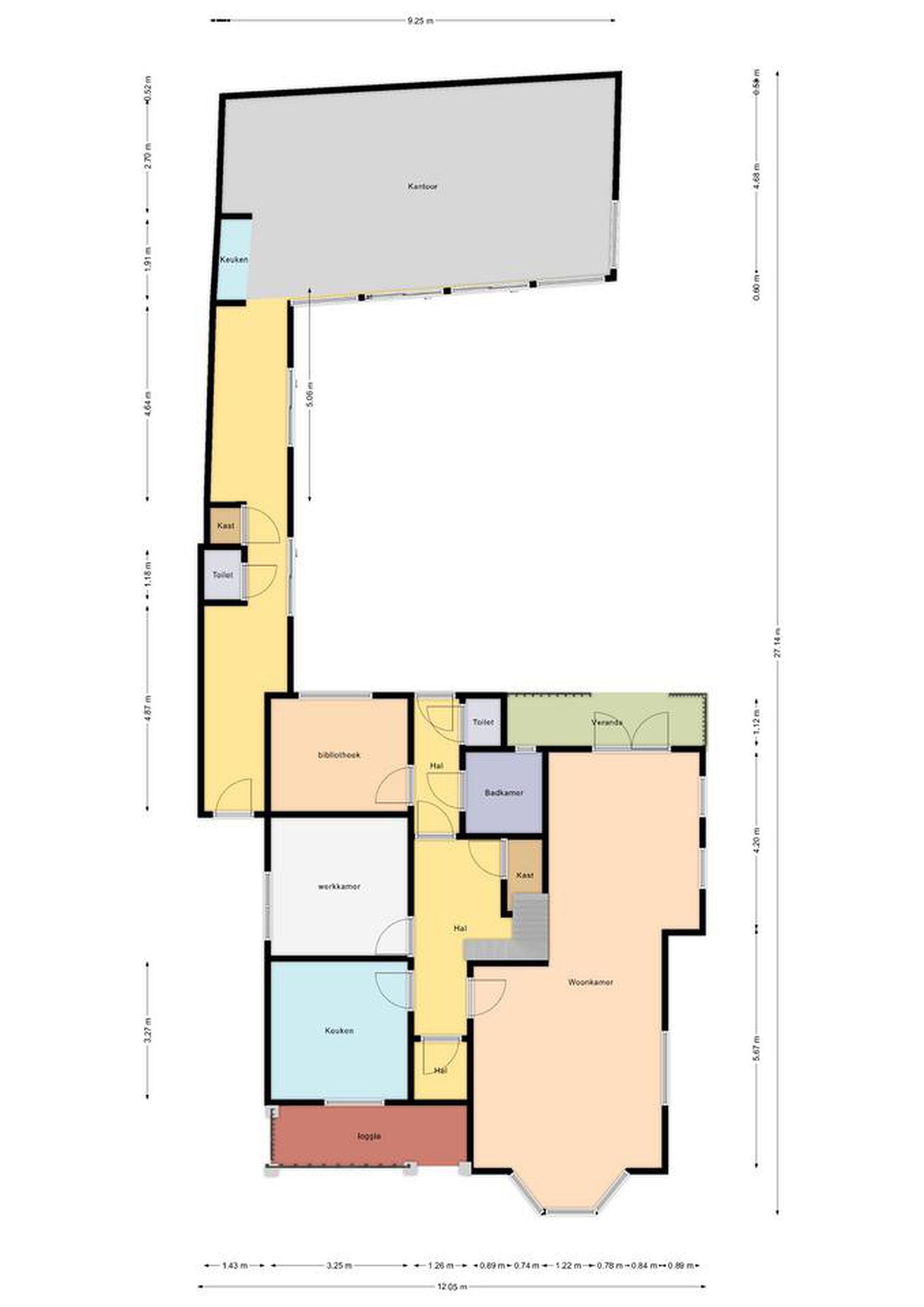
Achter de woning is in 2000 een modern kantoor/atelier/studio gerealiseerd. Deze ruimte is uitstekend geïsoleerd, voorzien van vloerverwarming en beschikt over een eigen ingang, pantry en toilet. Dankzij de grote raampartijen, schuifdeuren en hoge plafonds is het hier heerlijk licht en ruimtelijk.
Of u nu een praktijk aan huis wilt starten, een inspirerende werkplek zoekt of mogelijkheden voor kangoeroewonen overweegt – deze ruimte geeft u alle vrijheid.
Bent u klaar om deze unieke kans te ontdekken? Maak snel een afspraak voor een bezichtiging.

Begane grond
Een huis met een ziel:
Wanneer u binnenstapt, ervaart u direct de authentieke sfeer. De woning is gebouwd met hoogwaardige materialen en door de jaren heen met zorg en liefde onderhouden. Originele details en nostalgische elementen geven elke ruimte een warme uitstraling.
Het absolute pronkstuk? Het indrukwekkende trappenhuis: van beneden kijkt u wel 10 meter omhoog naar het houten geraamte van de woning. Een uniek en adembenemend aanzicht!

De royale woonkamer met erker en openslaande deuren naar de veranda vormt het hart van het huis. Hier geniet u van veel licht en een prachtig uitzicht op de tuin. De moderne keuken is praktisch ingericht en voorzien van inbouwapparatuur. Daarnaast beschikt de begane grond over meerdere (werk)kamers, een kelder met stahoogte, een toiletruimte en een aparte was-/doucheruimte .

Eerste verdieping
Op de eerste verdieping vindt u drie ruime slaapkamers – waarvan één met balkon en één met een speelse zolderverdieping – en een lichte, moderne badkamer met inloopdouche, wastafel, tweede toilet en vloerverwarming. De serre halverwege de trapopgang zorgt voor extra licht en speelsheid. Op de zolder biedt de vliering met veiligheidsglas een verrassende bron van indirect daglicht.

Details
Waarom dit huis bijzonder is
- Karaktervolle woning met authentieke details
- Royale, lichte woonruimtes en modern wooncomfort
- Fantastische kantoor-/praktijkruimte (bouwjaar 2000) met eigen voorzieningen
- Veel mogelijkheden: wonen, werken of dubbele bewoning
- Gelegen nabij scholen, winkels en openbaar vervoer
. In de woning zijn in de woonkamer en keuken glas in lood bovenlichten aan de buitenkant voorzien van voorzetramen.
In de woonkamer zijn t.p.v. de tuindeuren met bovenlichten en het zijraam achter-zetramen geplaatst.
Alle raamvlakken in het woonhuis zijn voorzien van isolatieglas
In de studio/kantoor zijn alle vaste ramen en schuifdeur- en schuiframen voorzien van isolatieglas, de toegangsdeur is voorzien van draadglas.

Deze woning aan de Dijk in Broek op Langedijk is niet zomaar een huis, maar een plek waar wonen en werken op een prachtige manier samenkomen. Een huis met karakter, historie én mogelijkheden.

Lees meer

Kenmerken

Overdracht

Prijs per m2
€ 4.517
Aangeboden sinds
6 februari 2026
Status
Beschikbaar
Aanvaarding
In overleg

Bouw

Soort woonhuis
Herenhuis, vrijstaande woning
Soort bouw
Bestaande bouw
Bouwjaar
1912
Soort dak
Samengesteld dak
Staat van onderhouden binnen
Goed
Staat van onderhouden buiten
Goed

Oppervlakte en inhoud

Perceeloppervlakte
415 m2
Inhoud van de woning
852 m3
Oppervlakte overige inpandige ruimten
95 m2

Indeling

Aantal kamers
8
Aantal slaapkamers
4
Aantal woonlagen
2
Voorzieningen
Tuin, schuifpui

Buitenruimte

Balkon
Nee
Schuur/berging
Nee

Maandlasten berekenen

De maandlasten voor je woning bestaan uit meer dan alleen de hypotheeklasten. Hieronder vind je een overzicht van de bijkomende kosten en lasten. Zo weet je precies wat je huis per maand gaat kosten. En met de handige vergelijkers kun je ook nog eens snel de beste deals sluiten!

  • Kaart
  • Streetview