Zijde 75 2771 EL Boskoop

157m2
Wonen
5
Kamers
840m2
Perceel
1925
Bouwjaar
Jaren ’30-woning met een prachtig vrijstaand bijgebouw

Soms kom je een woning tegen die alles heeft: karakter, luxe én een fijne ligging. Zijde 75 in Boskoop is precies zo’n huis. Deze vrijstaande woning uit 1922 is tot in de puntjes onderhouden en combineert de warme uitstraling van de jaren ’30 met hedendaags wooncomfort. Van de visgraatvloer en glas-in-loodramen tot de moderne keuken en de prachtige tuin met aanlegplaats voor de boot – hier klopt echt alles.
Extra “woning” in de tuin.

Alsof dat nog niet genoeg is, staat achterin de tuin een bijgebouw van circa 40 m2, dat regelmatig als woning is gebruikt door de kinderen. De ruimte is tevens zeer geschikt als kantoor of praktijk.
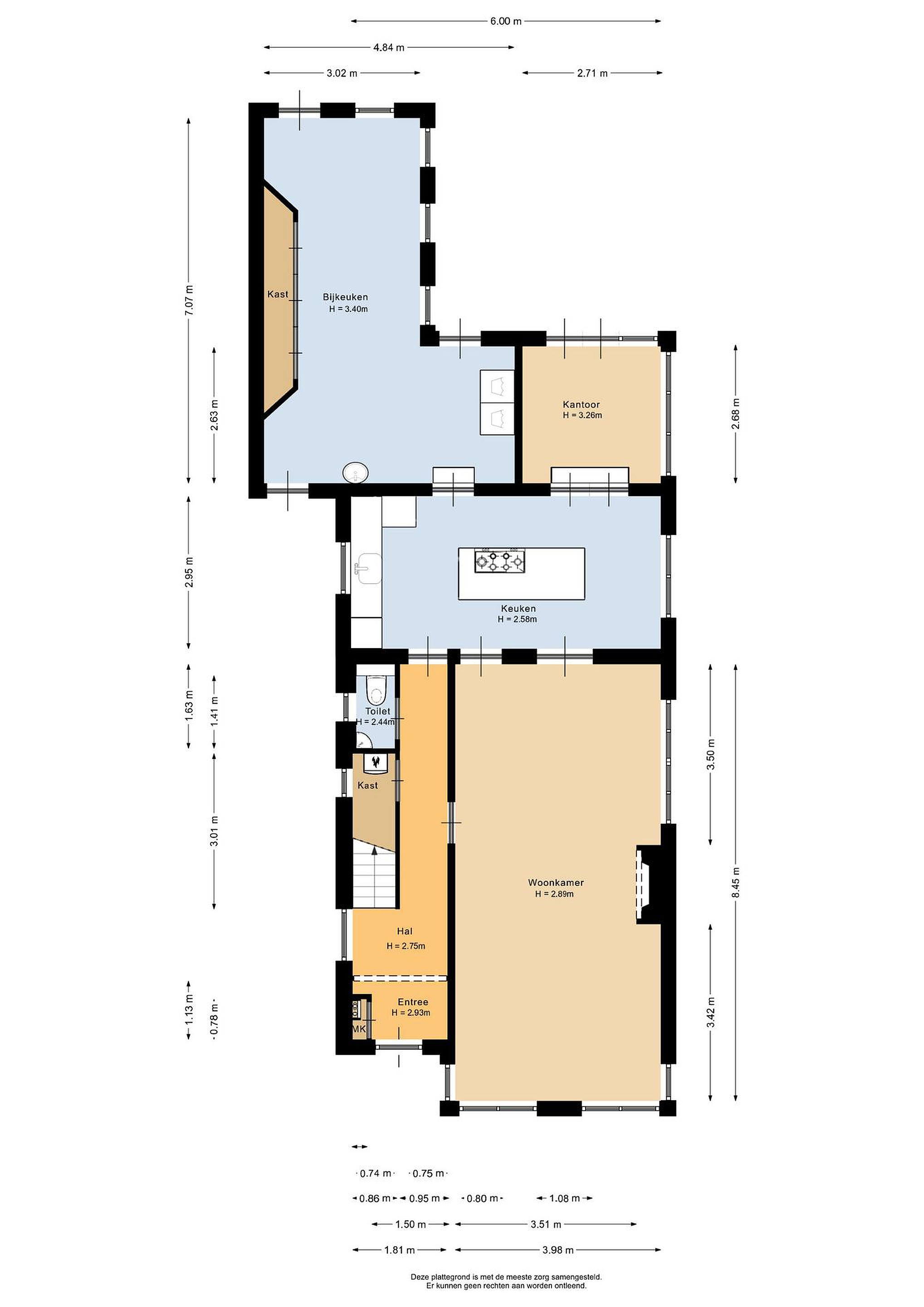
Begane grond
Globale indeling

De woning is bereikbaar via een brug die je naar het “eiland” brengt, waarop drie woningen zijn gebouwd: deze vrijstaande woning en daarnaast een twee-onder-een-kapwoning. Voor dit huis zijn 2 à 3 privéparkeerplaatsen beschikbaar op eigen grond. Als je uitstapt en naar het huis kijkt, valt direct de uitstekende staat van onderhoud op. De woning staat keurig recht en alles is perfect verzorgd. Via een klein bordestrapje kom je binnen.
De hal/entree bevat nog diverse originele details, zoals het kozijn van de vestibule en het glas-in-loodraam boven de voordeur. Vanuit de hal heb je toegang tot de eerste verdieping, de trapkast, de toiletruimte, de woonkamer en de keuken. De meterkast in de entree is volledig vernieuwd en voorzien van een ruim aantal groepen.

De sfeervolle woonkamer straalt warmte en elegantie uit. Authentieke details zoals ornamenten, een open haard en glas-in-loodramen zorgen voor een charmante jaren ’30-stijl. Verder zijn de wanden glad gestuukt en ligt er een klassieke visgraatvloer met bies.
Dankzij de raamerker aan de voorzijde en de extra raampartij van drie ramen in de zijgevel is de woonkamer heerlijk licht. Via een tussendeur of de toog bereik je de keuken.

De moderne SieMatic keuken is voorzien van luxe inbouwapparatuur, waaronder een gasfornuis met dubbele oven en zes gaspitten, een Novy-afzuigkap en een vaatwasser. Het lichte glazen werkblad geeft de keuken een moderne uitstraling. Vanuit de keuken heb je toegang tot het praktische kantoor en de grote bijkeuken. Het kantoor ligt een paar treden lager dan de keuken en heeft fijn contact met het woonhuis. Dit is net wat prettiger dan een kantoor op een verdieping. Vanuit hier stap je via openslaande tuindeuren de tuin in.
Achtertuin

De achtertuin is bereikbaar via de bijkeuken, het kantoor en via de afgesloten tuin aan de rechterzijde. Direct achter het huis is een robuuste gemetselde overkapping gebouwd: een fantastische plek om lange avonden te tafelen of gewoon te genieten van het buitenleven. In het midden van de tuin kun je volop van de zon genieten: ideaal om te barbecueën of een plek waar kinderen lekker kunnen ravotten.
De tuin is mooi groen dankzij de vele volwassen struiken in de borders en cortenstaalbakken, en er staan enkele fraaie bomen. Tussen de twee grasveldjes is een pergola gebouwd waar je knus onder kunt zitten of eten.

De zelfstandige woning achterop het perceel heeft een bruto vloeroppervlakte van ca. 41 m2. Dit fraaie pand is voorzien van een grote overkapping en een aanlegplaats voor de boot. Op het dak zijn drie kleine dakkapellen geplaatst. Binnen vinden we een gezellige woonkamer, een compleet ingerichte keuken met eetbar, een sauna, douche en toilet. De zolder, bereikbaar via een vaste trap, is ingericht als logeer- en studeerkamer.
Via de bijkeuken komen we terug in de woning. De bijkeuken van maar liefst 35 m2 heeft een belangrijke functie in het huis. Het is namelijk een verlengstuk van de keuken, de opstelplaats voor de wasmachine en droger en biedt volop ruimte voor hobby’s. Ook levensloopbestendig wonen zou hier eenvoudig te realiseren zijn. Daarnaast hebben de huidige eigenaren veel opslagruimte gecreëerd langs de wand en op de bergzolder. De bijkeuken is bereikbaar vanaf de poort aan de voorzijde, vanuit de keuken en vanuit de achtertuin.

Eerste verdieping
Via de vaste trap kom je op de overloop. Deze ruimte is met smaak afgewerkt en de dakconstructie is mooi in het zicht gebracht. De overloop geeft toegang tot het separate toilet, een grote kast, een luxe slaapkamer met airconditioning en dakterras, een fijne badkamer met ligbad en twee kinderkamers aan de voorzijde.

De afwerking van de overloop is doorgetrokken in de kamers. Er zijn shutters voor de ramen en deuren geplaatst en op de vloer ligt een laminaatvloer die doorloopt in alle kamers. De wanden zijn glad gestuukt. Boven het bed in de master zijn twee elektrische Veluxramen gemonteerd en er is veel bergruimte gecreëerd middels inbouwkasten met schuifdeuren.

De badkamer is modern en stijlvol afgewerkt en voorzien van vloerverwarming, een ligbad en een inloopdouche. De toiletruimte is gelijkwaardig afgewerkt. Via een vlizotrap bereik je de ruime bergvliering.

Details

- Vrijstaande woning uit 1925, in perfecte staat van onderhoud
- Twee à drie parkeerplaatsen op eigen terrein
- Prachtige jaren ’30-details: visgraatvloer, ornamenten, glas-in-lood en open haard
- Moderne SieMatic keuken, royale bijkeuken (35 m2) en kantoorruimte
- Dak van de woning is 2011 volledig gerenoveerd en geïsoleerd
- 3 slaapkamers, luxe badkamer met vloerverwarming, ligbad en inloopdouche
- Balkons/dakterras, berging en ruime vliering
- Zelfstandig bijgebouw van ca. 40 m2 met keuken, sauna en woonruimte
- Aangebouwde gemetselde overkapping aan zowel het huis als het bijgebouw
- Vloerverwarming in keuken, bijkeuken en badkamer
- Elektrische screens op de raamerker en keukenraam
- 21 zonnepanelen

De woning is gebouwd in 1925, staat op twee percelen met een totaal oppervlak van 840 m2 en heeft een woonoppervlakte van 157 m2 (exclusief het bijgebouw, gemeten conform NEN 2580). Oplevering: medio 1e kwartaal 2026.

De charme van Boskoop
Boskoop staat bekend om zijn groene karakter, waterwegen en boomkwekerijen. Een plek waar je heerlijk rustig woont, maar toch centraal: met Alphen aan den Rijn, Gouda en de Randstad binnen handbereik. Voorzieningen als winkels, scholen, treinstation en sportfaciliteiten liggen bovendien op korte afstand.

Deze vrijblijvende objectinformatie is met de grootste zorg samengesteld. Aan de juistheid ervan kunnen echter geen rechten worden ontleend. Alle informatie is uitsluitend bedoeld als presentatie van het object en geldt niet als aanbieding of overeenkomst. Eventueel bijgevoegde plattegronden zijn slechts indicatief.

Lees meer

Kenmerken

Overdracht

Prijs per m2
€ 5.510
Aangeboden sinds
5 september 2025
Status
Beschikbaar
Aanvaarding
In overleg

Bouw

Soort woonhuis
Herenhuis, vrijstaande woning
Soort bouw
Bestaande bouw
Bouwjaar
1925
Soort dak
Zadeldak
Staat van onderhouden binnen
Uitstekend
Staat van onderhouden buiten
Uitstekend

Oppervlakte en inhoud

Perceeloppervlakte
840 m2
Inhoud van de woning
603 m3
Oppervlakte externe bergruimte
41 m2
Oppervlakte gebouwgebonden buitenruimten
15 m2

Indeling

Aantal kamers
5
Aantal slaapkamers
3
Aantal woonlagen
3
Voorzieningen
Tuin, balkon, schuur/berging, ventilatie, open haard, glasvezel, buitenzonwering, airconditioning, rookkanaal, fransbalkon, dakraam, sauna

Buitenruimte

Balkon
Ja
Schuur/berging
Ja

Maandlasten berekenen

De maandlasten voor je woning bestaan uit meer dan alleen de hypotheeklasten. Hieronder vind je een overzicht van de bijkomende kosten en lasten. Zo weet je precies wat je huis per maand gaat kosten. En met de handige vergelijkers kun je ook nog eens snel de beste deals sluiten!

  • Kaart
  • Streetview