Burgemeester Weertsstraat 63 6814 HM Arnhem

225m2
Wonen
7
Kamers
208m2
Perceel
1905
Bouwjaar
Wonen met karakter in de Burgemeesterswijk – een herenhuis met ziel, stijl en historie

Wie wel eens door het Sonsbeekpark wandelt, kent dat gevoel: het ruisen van de oude bomen, het uitzicht over de glooiende heuvels, de monumentale villa’s die statig uitkijken over de stad. Aan de rand van dit park, in de geliefde Burgemeesterswijk van Arnhem, ligt een bijzonder herenhuis — een woning die de grandeur van 1906 combineert met het comfort en de luxe van nu.
Welkom aan de Burgemeester Weertsstraat — een plek waar wonen voelt als thuiskomen, elke dag opnieuw.

De Burgemeesterswijk – groen, charmant en vol karakter

De Burgemeesterswijk wordt beschouwd als één van de mooiste wijken van Arnhem. Hier woon je tussen het groen, omringd door historie en rust, maar met de levendigheid van de stad altijd dichtbij. De statige lanen, de karaktervolle herenhuizen en de directe nabijheid van de parken Sonsbeek en Zijpendaal geven de wijk een bijna dorpse allure. Toch is het centrum van Arnhem slechts een korte wandeling verwijderd, net als station Arnhem Centraal — ideaal voor wie de combinatie zoekt van rust, elegantie en bereikbaarheid.
Vanuit de wijk wandel je zó het Sonsbeekpark in, met zijn fonteinen, vijvers en idyllische wandelpaden en bij de Witte Villa is het heerlijk lunchen. Het naastgelegen landgoed Zijpendaal met zijn eeuwenoude bomen en romantische waterpartijen vormt een oase van rust. Hier beleef je de seizoenen op hun mooist — terwijl het bruisende stadsleven binnen handbereik blijft.

Een herenhuis met ziel

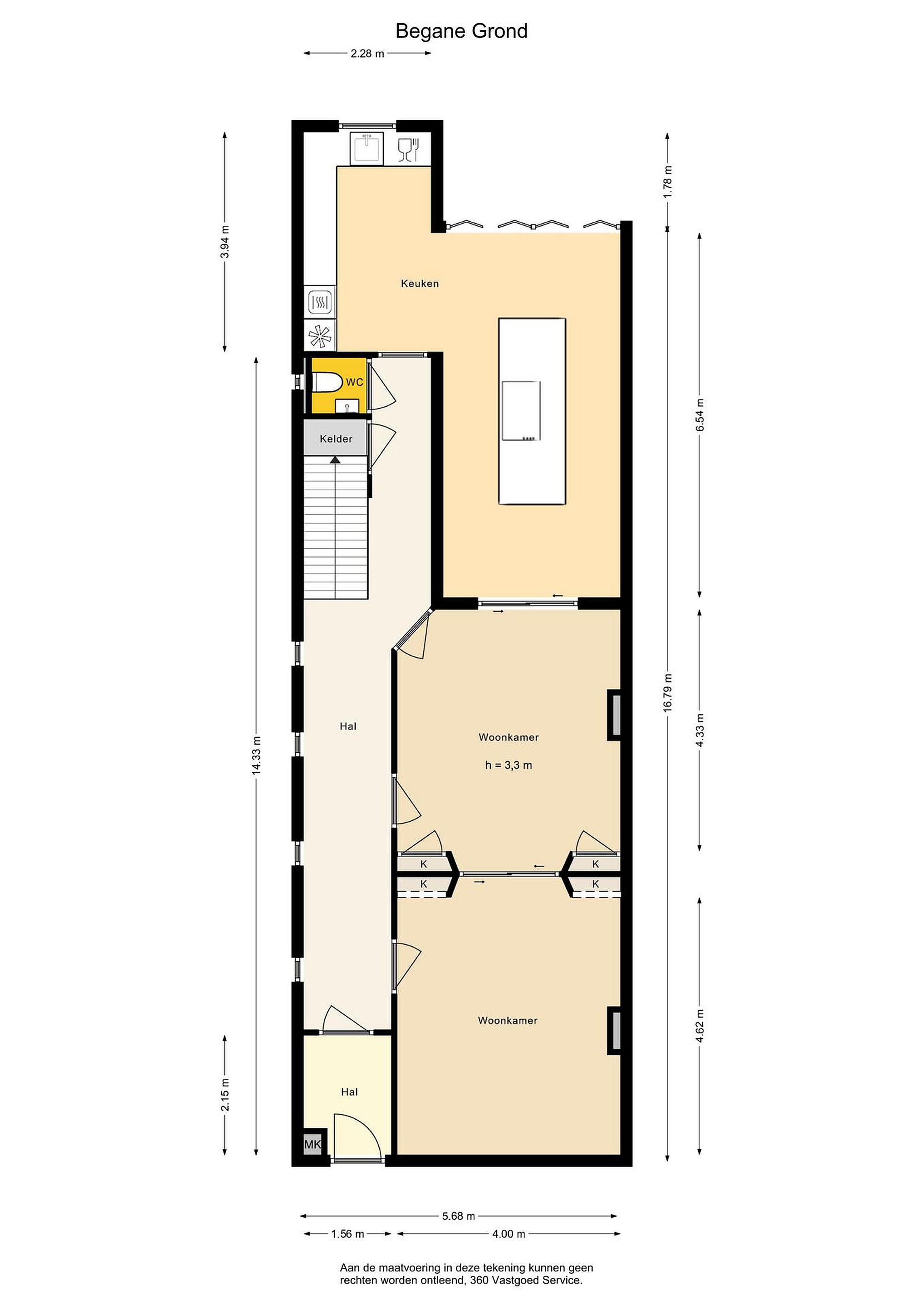
Achter de monumentale gevel schuilt een woning die direct indruk maakt. Alles ademt karakter, van de prachtige tegelvloer in de hal tot de hoge plafonds met sierlijke ornamenten. Hier is met zorg, liefde en vakmanschap gerenoveerd.
De ruime entree leidt naar een prachtige en suite woonkamer, waar de authentieke sfeer bewaard is gebleven. Grote raampartijen — deels voorzien van glas-in-lood — zorgen voor een overvloed aan daglicht. De hoge plafonds, de originele ornamenten en de fraaie houten vloer geven deze ruimte een warm, verfijnd karakter. De werkende houtkachel met prachtige natuurstenen schouw vormt een sfeervol middelpunt: een plek waar je met een goed glas wijn geniet van de stilte of het gezelschap van vrienden.
De aangrenzende eetkamer sluit hier naadloos op aan. Ook hier zijn de authentieke details met zorg behouden. De tweede houtkachel, de originele schouw en het spel van licht en ruimte zorgen voor een uitnodigende ambiance — perfect voor lange avonden tafelen.

Een keuken met een wow-factor

Achter de eetkamer bevindt zich de uitgebouwde leefkeuken — een absolute eyecatcher. Hier komen ambacht en design samen. Het grote kookeiland vormt het hart van de ruimte: een plek waar koken, borrelen en samenzijn vanzelf in elkaar overlopen.
De keuken is uitgerust met zeer hoogwaardige apparatuur, waaronder een Bora-inductiekookplaat met geïntegreerde downdraft, een geklimatiseerde wijnkast, twee Siemens Slimline combi-ovens met WiFi-bediening, een Siemens Slimline koffiemachine, een Quooker, een vaatwasser en zelfs een bordenwarmer. Alles is met oog voor detail ontworpen en afgewerkt — inclusief vloerverwarming en een groot dakraam met op afstand bedienbare zonwering.
Via de openslaande glazen pui stap je in de stadstuin: een knusse, beschutte buitenruimte met houten veranda. Deze veranda is volledig afsluitbaar met glazen panelen, zodat je er het hele jaar door kunt genieten — van een zomerse barbecue tot een winterse borrel bij kaarslicht. Achter de veranda bevindt zich een extra berging en de tuin is eveneens bereikbaar via een poortdeur.

Eerste verdieping – rust en elegantie

De statige houten trap leidt naar de eerste verdieping, waar een royale overloop toegang biedt tot de luxe badkamer, een separaat toilet, een thuiswerkruimte en de master bedroom.
De badkamer is een oase van rust en stijl: een vrijstaand ligbad, ruime inloopdouche, dubbel wastafelmeubel en elektrische vloerverwarming maken het geheel compleet. De materialen zijn zorgvuldig gekozen en de afwerking is tot in perfectie uitgevoerd en staat op eenzame hoogte.
De master bedroom aan de voorzijde is ruim, licht en elegant. De maatwerk kastenwand biedt volop bergruimte en is volledig in stijl met de woning ontworpen. Ook hier is de materiaalkeuze weer van bijzonder hoog niveau. Een bijzondere doorgang in deze kastenwand leidt naar een tweede kamer welke perfect gebruikt kan worden als walk-in closet, eveneens zeer hoogwaardig afgewerkt, met toegang tot een fraai dakterras. Hier is het ’s avonds heerlijk vertoeven - een zeldzaam stukje privé buitenruimte midden in de stad.
Aan de voorzijde bevindt zich een thuiswerk- of studeerkamer met uitzicht over de charmante Burgemeester Weertsstraat, welke meer dan voldoende ruimte biedt om in alle rust de nodige werkzaamheden te verrichten.

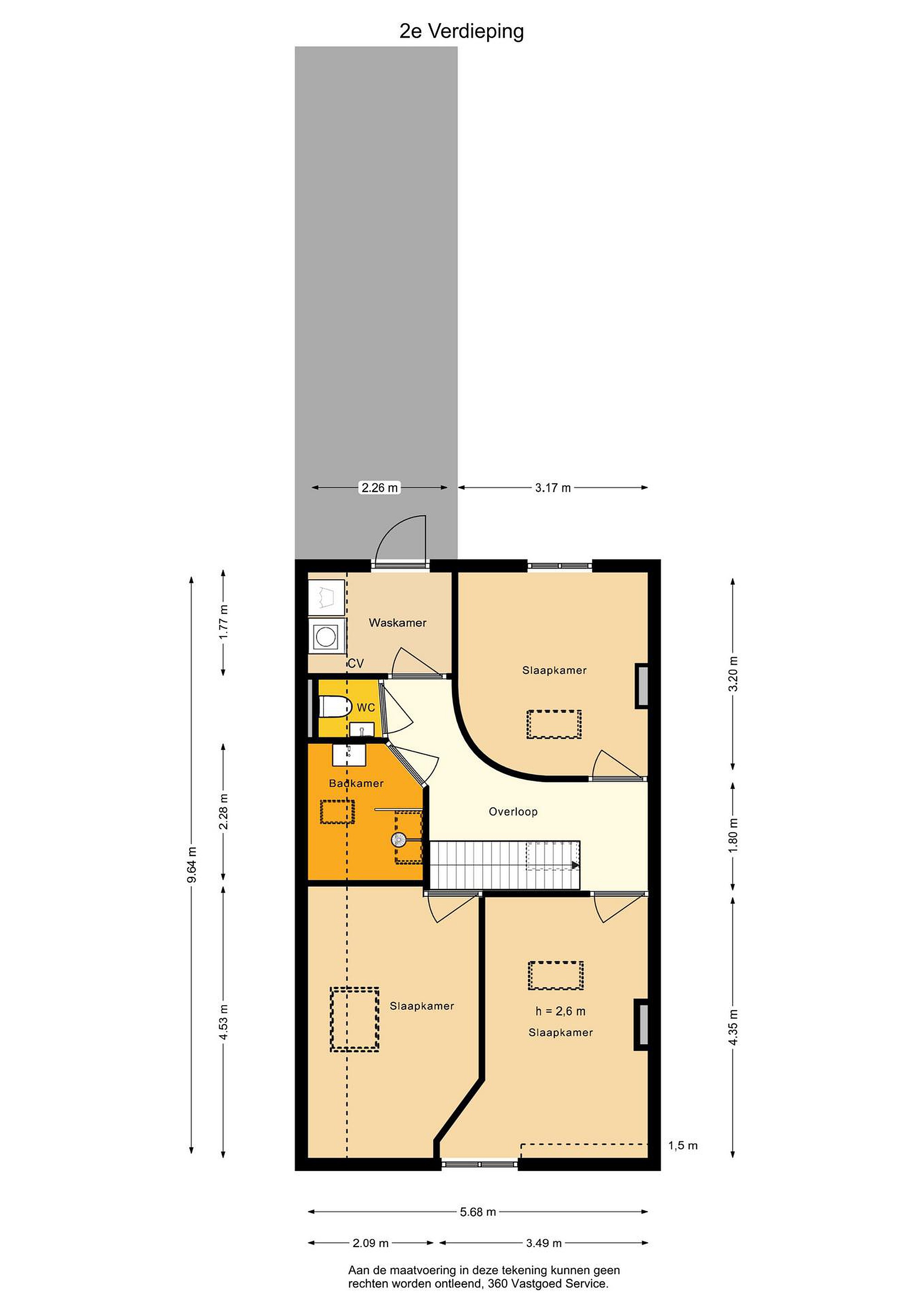
Bovenste verdieping – ruimte voor iedereen

De bovenste verdieping verrast opnieuw met haar ruimtelijkheid en karakter. Drie volwaardige slaapkamers bieden plaats aan gezin, gasten of hobby’s. Het zichtbare metselwerk, de houten spanten en de subtiele verlichting creëren een bijzondere, warme sfeer. De wanden zijn op de houten vloer geplaatst, zodat een eventuele aanpassing in de indeling binnen handomdraai gerealiseerd kan worden.
Ook hier is gedacht aan comfort: een tweede badkamer met inloopdouche en wastafel, een separaat toilet met onderhoudsvriendelijke vloerafwerking, én een praktische wasruimte waar witgoed netjes uit het zicht blijft. Vanuit deze verdieping is tevens toegang tot het platte dak — dat mogelijkheden biedt voor de aanleg van een tweede dakterras.

Een woning die alles heeft

Deze unieke woning is instapklaar, hoogwaardig gerenoveerd en met respect voor de historie vernieuwd. Overal waar je kijkt, proef je de aandacht voor detail — van de keuze van materialen tot de harmonie tussen oud en nieuw.
Wonen in de Burgemeesterswijk betekent wonen in een van de meest gewilde delen van Arnhem. Hier komen rust, karakter, natuur en stadsleven op een zeldzaam mooie manier samen. Binnen enkele minuten wandel je naar de stad, het station of de parken Sonsbeek en Zijpendaal.
Dit herenhuis is niet zomaar een woning.
Het is een levensstijl — een plek waar geschiedenis en comfort elkaar omarmen.

Kenmerken:

- Uitgebouwd, stijlvol herenhuis in Gulden Bodem
- Zes ruime slaapkamers
- Twee badkamers (waarvan één met vrijstaand ligbad en inloopdouche)
- Drie separate toiletten, één per verdieping
- Zeer royale keuken met kookeiland, bar, Bora inductie, Quooker, stoomoven, reguliere oven, koffiemachine en gekoelde wijnkast
- Veranda met glazen schuifpanelen en besloten stadstuin
- Luxe pui met vouwsysteem naar tuin
- Authentieke en-suite woonkamer met originele details
- Hoogwaardige afwerking en uitstekend onderhouden
- Rustige, groene ligging nabij Park Sonsbeek en Park Zijpendaal
- Achterzijde in 2024 geschilderd

Burgemeester Weertsstraat – Arnhem
Een uitzonderlijk herenhuis uit 1906, waar elk detail klopt.
Een huis om verliefd op te worden.
Een thuis om te blijven.

Koopovereenkomst:
Bij de verkoop wordt de standaard VBO koopovereenkomst gehanteerd. Indien nodig zal er een clausule worden opgenomen waaruit blijkt dat de verkoper niet de bewoner van de woning is geweest. Bij woningen welke ouder zijn dan 20 jaar, worden de asbestclausule en de ouderdomsclausule standaard opgenomen;

De bovengenoemde informatie hebben wij met de grootste zorg en de nodige zorgvuldigheid samengesteld. Onzerzijds wordt er echter geen enkele aansprakelijkheid aanvaard voor enige onvolledigheid, onjuistheid, omissie of anderszins, alsook voor de eventuele gevolgen daarvan. Alle opgegeven maten zijn zorgvuldig en professioneel opgenomen, maar wel indicatief.

Wanneer u geinteresseerd bent in deze woning, dan kunt u zich aanmelden via de site www.blinqmakelaars.nl of telefonisch contact opnemen met ons kantoor met telefoonnummer 026-7114555.



Lees meer

Kenmerken

Overdracht

Prijs per m2
€ 5.556
Aangeboden sinds
25 november 2025
Status
Beschikbaar
Aanvaarding
In overleg

Bouw

Soort woonhuis
Herenhuis, hoek woning
Soort bouw
Bestaande bouw
Bouwjaar
1905
Soort dak
(KAPMETPLAT) Kap met plat
Staat van onderhouden binnen
Uitstekend
Staat van onderhouden buiten
Uitstekend

Oppervlakte en inhoud

Perceeloppervlakte
208 m2
Inhoud van de woning
864 m3
Oppervlakte externe bergruimte
14 m2
Oppervlakte overige inpandige ruimten
7 m2

Indeling

Aantal kamers
7
Aantal slaapkamers
6
Aantal woonlagen
3
Voorzieningen
Tuin, schuur/berging, rookkanaal, schuifpui, dakraam

Buitenruimte

Balkon
Nee
Schuur/berging
Ja

Maandlasten berekenen

De maandlasten voor je woning bestaan uit meer dan alleen de hypotheeklasten. Hieronder vind je een overzicht van de bijkomende kosten en lasten. Zo weet je precies wat je huis per maand gaat kosten. En met de handige vergelijkers kun je ook nog eens snel de beste deals sluiten!

  • Kaart
  • Streetview