Fluwelen Burgwal 3 1141 TX Monnickendam

130m2
Wonen
4
Kamers
104m2
Perceel
2004
Bouwjaar
Wonen aan een eeuwenoude gracht in historisch Monnickendam, maar dan wél in een relatief nieuwe woning? Dit woonhuis aan de Fluwelen Burgwal 3 is in 2004 gebouwd in traditionele stijl, met een fraaie trapgevel, ramen met roedeverdeling, kamer-en-suite deuren en hoge plafonds. De moderne woonkeuken is in 2025 vernieuwd en heeft veel daglicht toetreding wat voor veel woongenot zorgt. De woning is zeer hoogwaardig afgewerkt met gebruik van goede materialen. Dat betekent niet alleen fraai om naar te kijken, maar vooral om in te wonen. Wil je de kans niet voorbij laten gaan om te wonen aan deze rustig gelegen gracht? Neem dan snel contact op voor een vrijblijvende bezichtiging!

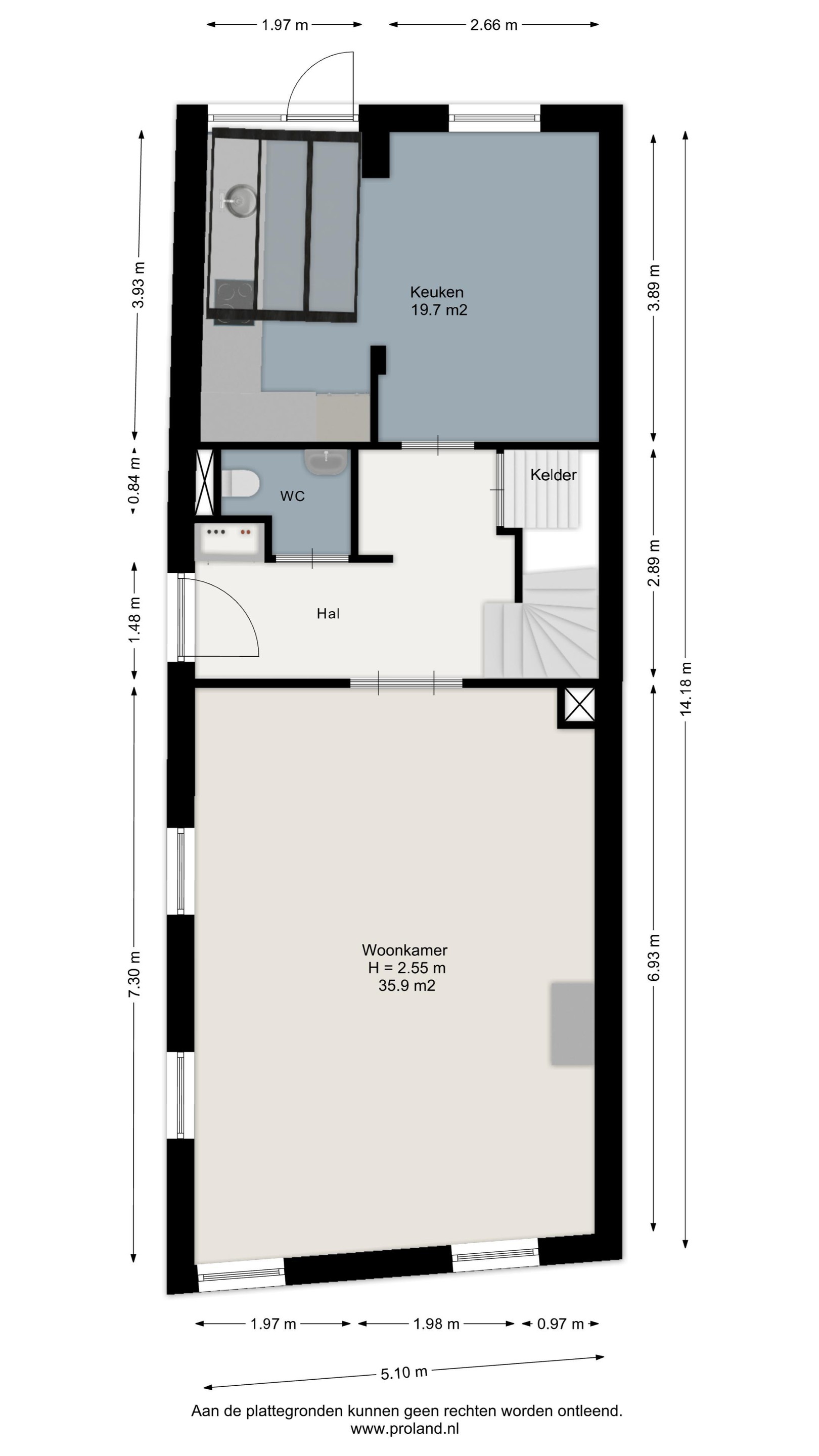
Indeling begane grond
Hoewel er in de voorgevel een voordeur zichtbaar is, bevindt de officiële voordeur zich in de zijgevel aan de Schoolstraat. Achter deze voordeur tref je de ruime hal, voorzien van meterkast, moderne toiletruimte met fonteintje, trapopgang en toegang tot de verrassend praktische kelder van 17,5m2 met daglichttoetreding. Aan de voorzijde van de woning ligt de woonkamer, die via de en-suite-deuren vanuit de hal te betreden is. Door de parketvloer in visgraatmotief, de ramen met roedeverdeling aan twee zijden van de woonkamer en het fraaie hoge plafond met sierlijst, is dit een heerlijk ruime en lichte kamer met uitzicht op de voorliggende gracht en hefbrug. De openhaard geeft de ruimte extra cachet.

Aan de achterzijde van de woning is de woonkeuken welke in 2025 is vernieuwd die is voorzien van airconditioning. Ook hier is prettig veel daglichttoetreding. De keuken is gebouwd in L-opstelling en beschikt over diverse inbouwapparatuur waaronder een oven, inductiekookplaat met geïntegreerde afzuiging, koelkast en vaatwasser. Vanuit de keuken bereik je de knusse stadstuintje die op het noordwesten gelegen is.

Eerste verdieping
Via de trap in de hal bereik je de vertrekken op de eerste etage. De grootste slaapkamer is aan de voorzijde gelegen. In deze slaapkamer zijn de nok en balken fraai in het zicht gelaten. Over een van de wanden is een flinke kastenwand gemaakt. Al met al een ruimtelijk ogend en prettig slaapverblijf met zicht op de gracht en brug aan de voorzijde. Aan de achterzijde zijn nog twee kamers te vinden. Centraal aan de overloop ligt de badkamer die met marmeren tegels is bekleed. Je vindt hier een wastafel met meubel, een ligbad, tweede toilet en een ruime inloopdouche met stort- en handdouche. Aan de overloop is tot slot nog een aparte ruimte voor wasmachine en droger te vinden. Middels de vlizotrap bereik je vanaf de overloop ook de bovenliggende zolder.

Buiten
De knusse stadstuin van deze woning is gelegen op het noordwesten en is bereikbaar via een eigen achterom. Het tuintje is grotendeels bestraat en voorzien van een groene border. Aan de achterzijde is een overkapping naast de berging (v.v. elektra) gemaakt, waar plek is voor een gezellig zitje.

Omgeving
Deze woning ligt aan een rustige gracht in het hart van Monnickendam. De gezellige en historische binnenhaven met cafés, restaurant en sfeervolle terrasjes ligt op steenworp afstand. Winkels liggen op loopafstand en de warenmarkt op zaterdag vindt om de hoek van deze woning plaats. Ook andere faciliteiten, als scholen, sportschool, zwembad, etc. zijn in de nabije omgeving te vinden. Niet ver van de woning stap je bovendien op de bus die je 15 minuten naar station Noord van de Amsterdamse Noord-Zuidlijn brengt.

Wil je modern wonen in historische setting? Maak dan snel een afspraak voor een vrijblijvende bezichtiging van dit unieke huis aan de Fluwelen Burgwal.

Bijzonderheden:
Relatief nieuwe woning (2004) aan één van de eeuwenoude grachten
Nieuwe woonkeuken (2025) en ruime kelder met daglichttoetreding
Gebouwd in oude stijl met fraaie details en een hoogwaardige afwerking
Energielabel A
Op loopafstand van alle faciliteiten en op 15 minuten van Amsterdam

Algemeen
Alle zich in deze aanbieding bevindende informatie is door ons met grote zorg samengesteld. Met betrekking tot deze informatie aanvaarden wij echter geen enkele aansprakelijkheid, noch kan aan deze informatie enig recht worden ontleend.
Lees meer

Kenmerken

Overdracht

Prijs per m2
€ 7.291
Aangeboden sinds
6 maart 2026
Status
Beschikbaar
Aanvaarding
In overleg

Bouw

Soort woonhuis
Grachtenpand, eind woning
Soort bouw
Bestaande bouw
Bouwjaar
2004
Soort dak
Zadeldak
Staat van onderhouden binnen
Uitstekend
Staat van onderhouden buiten
Uitstekend

Oppervlakte en inhoud

Perceeloppervlakte
104 m2
Inhoud van de woning
608 m3
Oppervlakte externe bergruimte
0 m2
Oppervlakte overige inpandige ruimten
24 m2

Indeling

Aantal kamers
4
Aantal slaapkamers
3
Aantal woonlagen
4
Voorzieningen
Tuin, schuur/berging, ventilatie, open haard, kabel-tv, buitenzonwering, airconditioning, rookkanaal, dakraam

Buitenruimte

Balkon
Nee
Schuur/berging
Ja

Maandlasten berekenen

De maandlasten voor je woning bestaan uit meer dan alleen de hypotheeklasten. Hieronder vind je een overzicht van de bijkomende kosten en lasten. Zo weet je precies wat je huis per maand gaat kosten. En met de handige vergelijkers kun je ook nog eens snel de beste deals sluiten!

  • Kaart
  • Streetview