Verkocht

Schoutweg 1 3331 KN Zwijndrecht

138m2
Wonen
5
Kamers
295m2
Perceel
1959
Bouwjaar
Ruim, modern en veelzijdig wonen aan de Schoutweg.

Ontdek deze verrassend ruime en instapklare hoekwoning met garage aan de Schoutweg 1 in Zwijndrecht! Met zo’n 137 m2 aan woonplezier en een riant perceel van 295 m2 heeft deze woning niet alleen véél te bieden, hij is ook nog eens super praktisch ingedeeld. Hier voel je je meteen thuis, of je nu met z’n tweetjes bent of met het hele gezin. Dankzij de slaapkamer/praktijkruimte op de begane grond én een royale tuin mét garage, zijn er eindeloos veel mogelijkheden om deze woning helemaal naar eigen wens in te richten.

Zodra je de woonkamer binnenstapt, valt direct het fijne licht op. De grote ramen laten de zon lekker binnen, waardoor het er altijd gezellig en uitnodigend aanvoelt—ideaal voor lange, ontspannen avonden met vrienden of quality time met het gezin. De moderne open keuken is helemaal van deze tijd: strak ingericht, compleet met hoogwaardige inbouwapparatuur, veel werkruimte en genoeg plek om samen te koken.

Een echt pluspunt van deze woning is de extra kamer op de begane grond. Deze ruimte is nu in gebruik als praktijkruimte maar leent zich ook perfect als slaapkamer; handig voor logees, een au pair, of gewoon als rustige werkplek dicht bij huis. Heb je altijd al een eigen praktijk, studio of kantoor gewild? Ook dan zijn de mogelijkheden eindeloos. Hier kun je alle kanten op! De ruimte is voorzien van een eigen entree met hal en toilet.

Op de eerste verdieping vind je meerdere slaapkamers die allemaal net zo licht en ruim zijn als je zou hopen. Iedere kamer is praktisch ingedeeld, zodat iedereen zijn eigen favoriete plekje in huis kan creëren. De moderne badkamer is uitgerust met alles wat je nodig hebt om relaxed te starten of je dag fijn af te sluiten. Denk aan een strakke inloopdouche, stijlvol wastafelmeubel, comfortabele kleurstellingen en slimme opbergmogelijkheden.

Met een riante tuin op het zuiden maak je hier optimaal gebruik van elke zonnestraal! Zet een loungeset neer, laat de (klein)kinderen veilig spelen of organiseer een gezellige barbecue met vrienden: in deze tuin kan het allemaal. Achterin vind je bovendien een ruime garage—aantrekkelijk voor knutselaars, hobbyisten of gewoon om je fietsen en spullen netjes op te bergen. Mogelijkheden voor het parkeren van je auto aan de voorzijde van de woning.

Qua locatie zit je helemaal goed op de Schoutweg. Het NS-station is op korte afstand, waardoor je zo in Dordrecht, Rotterdam of zelfs verder bent. Loop je liever? Het centrum van Zwijndrecht, met winkels, scholen, speeltuinen en horeca is eveneens dichtbij. Ideaal voor jonge gezinnen die alles graag dichtbij hebben.

Waarom is dit jouw nieuwe thuis?

- Instapklare hoekwoning met verrassend veel ruimte
- Slaapkamer/praktijkruimte in de aanbouw op de begane grond
- Moderne keuken en badkamer
- Ruime tuin op het zuiden én een garage
- Perceel van maar liefst 295 m2
- Dichtbij het centrum en het NS-station

Deze woning biedt niet alleen alle ruimte voor nu, maar ook volop mogelijkheden voor de toekomst. Ben jij op zoek naar een plek waar je meteen kunt intrekken, maar waar je nog wel al je woonwensen kwijt kunt? Kom dan zeker een kijkje nemen aan de Schoutweg 1 in Zwijndrecht. Wie weet ben jij binnenkort de gelukkige nieuwe eigenaar van dit fantastische huis!

Droom je ervan om een modern, ruim én flexibel huis te bewonen op een centrale locatie? Laat deze kans niet glippen—maak snel een afspraak voor een bezichtiging en laat je verrassen door alles wat deze fijne woning te bieden heeft!
Begane grond
Entree;
Hal met meterkast, toilet, toegang tot trapkast en trap naar de verdieping.

Modern toilet.

Woonkamer:
Lichte woonkamer met toegang tot de half open keuken en doorgang tot de naast gelegen praktijkruimte.

Keuken:
Moderne keuken v.v. stoomoven, Quooker, inductiekookplaat met Bora afzuigkap, koelkast met vriezer en wijnklimaatkast.

Praktijkruimte/ slaapkamer:
In 1998 is de woning voorzien van een aanbouw welke in eerste instantie als slaapkamer met eigen badkamer in gebruik is geweest. Op dit moment is de ruimte in gebruik als praktijkruimte met eigen entree en toilet.

Eerste verdieping
Overloop met inbouwkast en trap naar de 2e verdieping.

Slaapkamer 1:
Deze kamer is gelegen aan de voorzijde van de woning en geeft toegang tot het balkon.

Slaapkamer 2:
Ruime slaapkamer gelegen aan de achterzijde van de woning.

Badkamer:
Moderne badkamer v.v. inloopdouche, ligbad en wastafelmeubel.

Toilet/ wasruimte:
De voormalige badkamer is omgetoverd tot een toiletruimte met tevens de aansluitingen voor de was apparatuur.

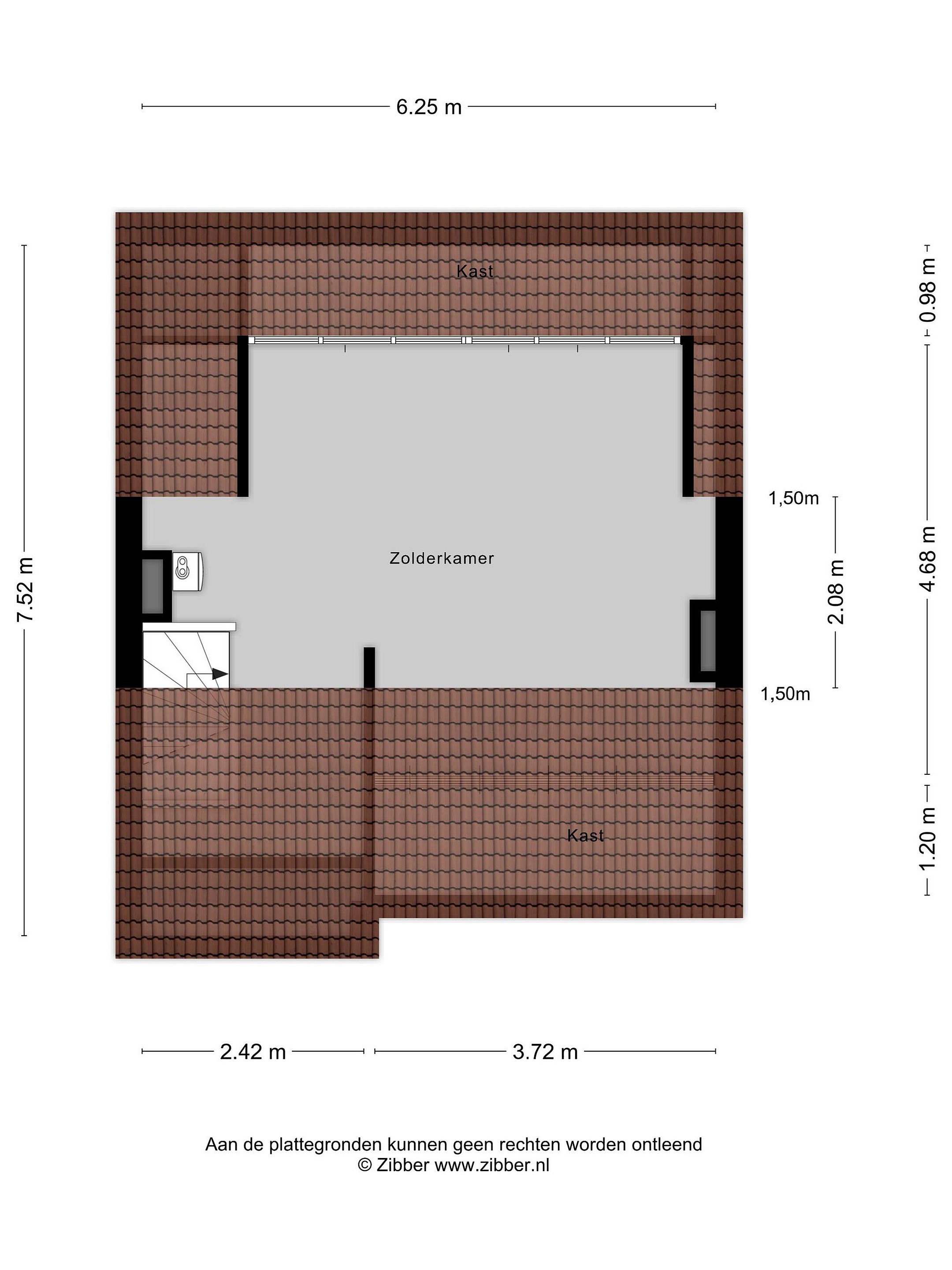
Tweede verdieping
Ruime zolderkamer v.v. kunststof dakkapel (2025). Tevens vindt u hier de opstalplaats voor de c.v. -combi ketel (2021).

Tuin
Gezellige voortuin en oprit met parkeergelegenheid voor meerdere auto's aan de voorzijde van de woning.

Achtertuin op het zuiden met achter in de tuin de vrijstaande garage.

Details
- Spouwmuurisolatie 2025 met EPS Superpearl HR ++ parels, dakisolatie en vloerisolatie woonhuis (Tonzon, 2022);
- C.V.-combi ketel 2021
- Badkamer 2022
- Keuken 2022 (keuken apparatuur heeft 5 jaar garantie (t/m 2027))

- De woning is opgemeten conform de branche brede meetinstructie. Deze meetinstructie is gebaseerd op de NEN2580. De meetinstructie is bedoeld om een meer eenduidiger manier van meten toe te passen voor het geven van een indicatie van de gebruiksoppervlakte. De meetinstructie sluit verschillen in meetuitkomsten niet volledig uit, door bijvoorbeeld interpretatieverschillen, afrondingen of beperkingen bij het uitvoeren van de meting.

- Bezichtigingen uitsluitend op afspraak met en via Bremmer Makelaars

- Oplevering: in overleg

- Voor de maatvoering verwijzen wij naar de plattegronden elders op de website of naar de brochure.

- De notariële eigendomsoverdracht zal plaatsvinden bij de notaris van de kopers keuze, mits deze is gelegen in een straal van 15km rondom de woning. Verkopers eventuele meerkosten (zoals reiskosten, notariële volmacht, e.d.) als gevolg van kopers notariskeuze buiten dit gebied komen volledig voor rekening van koper.

- Er zal een ouderdomsclausule worden opgenomen in de koopovereenkomst.

Lees meer

Verkoopgeschiedenis

Aangeboden sinds
11 september 2025
Verkoopdatum
26 november 2025
Looptijd
3 maanden

Kenmerken

Overdracht

Prijs per m2
€ 3.442
Aangeboden sinds
11 september 2025
Status
Verkocht
Aanvaarding
In overleg

Bouw

Soort woonhuis
Eengezinswoning, hoek woning
Soort bouw
Bestaande bouw
Bouwjaar
1959
Soort dak
Zadeldak
Staat van onderhouden binnen
Goed
Staat van onderhouden buiten
Goed

Oppervlakte en inhoud

Perceeloppervlakte
295 m2
Inhoud van de woning
487 m3
Oppervlakte externe bergruimte
19 m2
Oppervlakte gebouwgebonden buitenruimten
6 m2

Indeling

Aantal kamers
5
Aantal slaapkamers
4
Aantal woonlagen
3
Voorzieningen
Tuin

Buitenruimte

Balkon
Nee
Schuur/berging
Nee

Maandlasten berekenen

De maandlasten voor je woning bestaan uit meer dan alleen de hypotheeklasten. Hieronder vind je een overzicht van de bijkomende kosten en lasten. Zo weet je precies wat je huis per maand gaat kosten. En met de handige vergelijkers kun je ook nog eens snel de beste deals sluiten!

  • Kaart
  • Streetview