Gerrit Kögelerstraat 74 3333 BE Zwijndrecht

143m2
Wonen
5
Kamers
163m2
Perceel
2009
Bouwjaar
Gerrit Kögelerstraat 74 – Ruimte, kindvriendelijk en modern wonen in Zwijndrecht!

Welkom in deze royale en eigentijdse woning aan een heerlijk rustig woonerf. Met een woonoppervlakte van maar liefst 143,9 m2, vier ruime slaapkamers en een moderne open keuken, is dit precies zo’n plek welke uitstekend zou passen voor een gezin.

De woning voelt direct ruimtelijk aan dankzij de open indeling en het lichte afwerkingsniveau. De open keuken is een echte blikvanger: modern, strak en volledig ingericht voor de kookliefhebber. De ruime tuingerichte woonkamer heeft een heerlijke lichtinval en biedt toegang tot de brede achtertuin. Ideaal: de gehele begane grond is voorzien van vloerverwarming!

De vier slaapkamers bieden volop mogelijkheden: denk aan een thuiskantoor, een speelkamer of een luxe walk-in closet. Alles kan, dankzij de verrassende hoeveelheid ruimte.

Met energielabel A zit het ook met comfort en duurzaamheid helemaal goed. Fijn voor nu, prettig voor later.

De woning is gelegen in een kindvriendelijke omgeving, op een rustig woonerf waar alleen bestemmingsverkeer komt. Speelplekken, scholen en voorzieningen: alles is in de buurt. Het voelt hier elke dag een beetje ontspannen – precies zoals je het wilt.

Kortom: zoek je een modern, ruim en duurzaam huis op een kindvriendelijke locatie in Zwijndrecht? Dan is Gerrit Kögelerstraat 74 absoluut een bezichtiging waard.
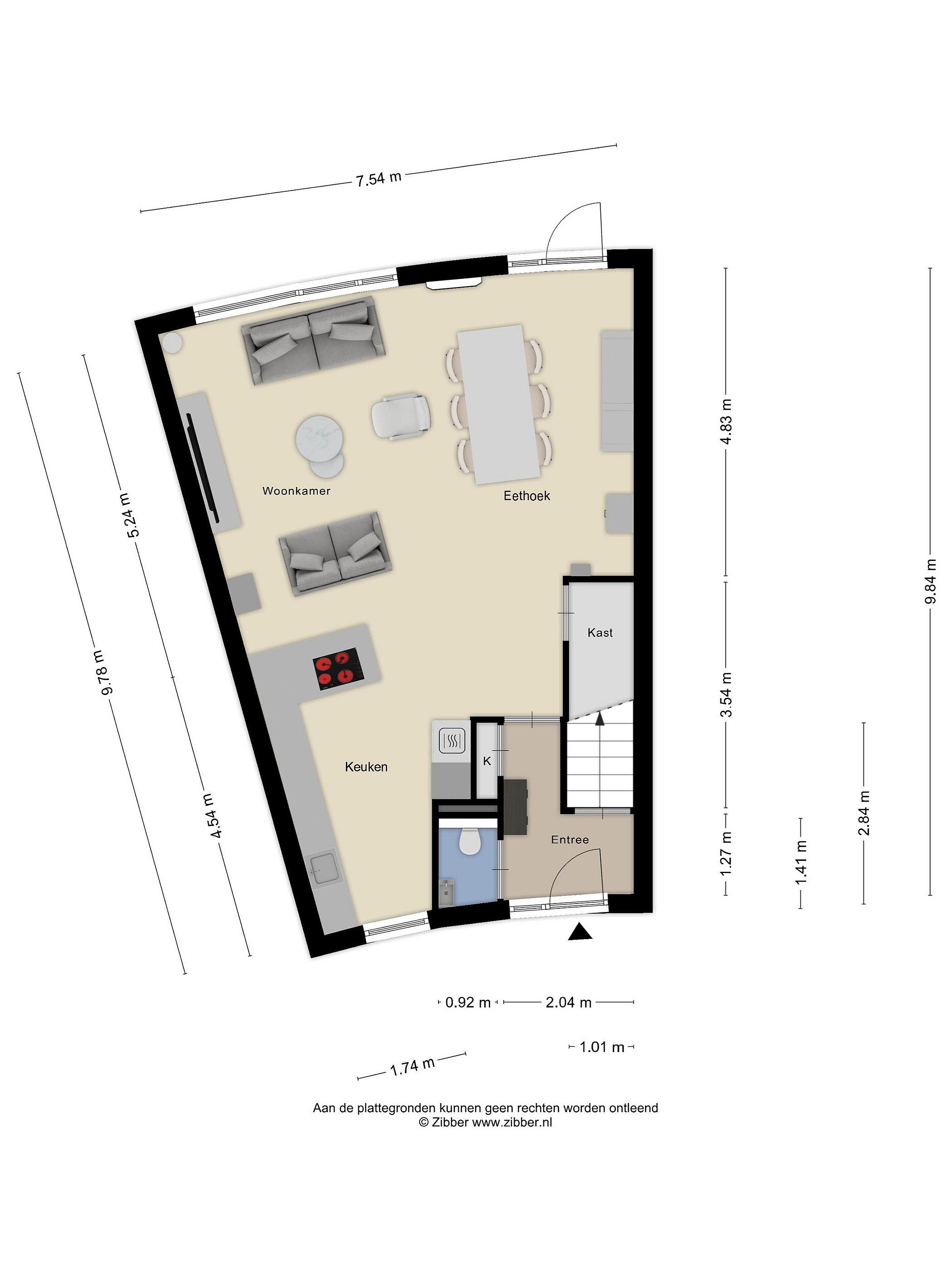
Begane grond
Begane grond in zijn geheel vv vloerverwarming.

HAL
Entree met toiletruimte, meterkast en toegang tot de vertrekken.

KEUKEN:
De keuken is voorzien de volgende inbouwapparatuur:
- vaatwasser
- inductiekookplaat
- afzuigkap
- koelkast
- vriezer
- combioven

WOONKAMER:
Ruime woonkamer met deur naar de tuin en trapkast.

Eerste verdieping
OVERLOOP
Met toegang tot de vertrekken en kast met opstelling nieuwe combiketel (Intergas - nov 2025).

SLAAPKAMER 1
Royale slaapkamer aan de achterzijde met laminaatvloer, airconditioning, kastenwand en elektrisch bedienbaar rolluik.

SLAAPKAMER 2
Ruime slaapkamer aan de voorzijde met laminaatvloer en rolluik

BADKAMER
Moderne badkamer met wastafelmeubel, inloopdouche en toilet.

SLAAPKAMER 3
Slaapkamer aan de achterzijde met laminaatvloer en rolluik

Tweede verdieping
SLAAPKAMER 4
Eventueel te splitsen in twee slaapkamers. De slaapkamer is voorzien van een laminaatvloer en airconditioning.

VOORZOLDER
Ruime voorzolder met aansluiting wasapparatuur

Details
- De woning is opgemeten conform de branchebrede meetinstructie. Deze meetinstructie is gebaseerd op de NEN2580. De meetinstructie is bedoeld om een meer eenduidiger manier van meten toe te passen voor het geven van een indicatie van de gebruiksoppervlakte. De meetinstructie sluit verschillen in meetuitkomsten niet volledig uit, door bijvoorbeeld interpretatieverschillen, afrondingen of beperkingen bij het uitvoeren van de meting.

- Bezichtigingen uitsluitend op afspraak met en via Bremmer Makelaars

- Oplevering: in overleg

- Voor de maatvoering verwijzen wij naar de plattegronden elders op de website of naar de brochure.

- De notariële eigendomsoverdracht zal plaatsvinden bij de notaris van de kopers keuze, mits deze is gelegen in een straal van 15km rondom de woning. Verkopers eventuele meerkosten (zoals reiskosten, notariële volmacht, e.d.) als gevolg van kopers notariskeuze buiten dit gebied komen volledig voor rekening van koper.


Lees meer

Kenmerken

Overdracht

Prijs per m2
€ 3.787
Aangeboden sinds
14 november 2025
Status
Beschikbaar
Aanvaarding
In overleg

Bouw

Soort woonhuis
Eengezinswoning, tussen woning
Soort bouw
Bestaande bouw
Bouwjaar
2009
Soort dak
Plat dak
Staat van onderhouden binnen
Goed
Staat van onderhouden buiten
Goed

Oppervlakte en inhoud

Perceeloppervlakte
163 m2
Inhoud van de woning
509 m3
Oppervlakte externe bergruimte
6 m2

Indeling

Aantal kamers
5
Aantal slaapkamers
4
Aantal woonlagen
3
Voorzieningen
Tuin, schuur/berging, ventilatie, airconditioning

Buitenruimte

Balkon
Nee
Schuur/berging
Ja

Maandlasten berekenen

De maandlasten voor je woning bestaan uit meer dan alleen de hypotheeklasten. Hieronder vind je een overzicht van de bijkomende kosten en lasten. Zo weet je precies wat je huis per maand gaat kosten. En met de handige vergelijkers kun je ook nog eens snel de beste deals sluiten!

  • Kaart
  • Streetview