Beethovenlaan 59 3335 BD Zwijndrecht

97m2
Wonen
5
Kamers
213m2
Perceel
1985
Bouwjaar
Ben je op zoek naar een plek waar ruimte, comfort en gezelligheid samenkomen? Deze moderne eengezinswoning aan de Beethovenlaan 59 in Zwijndrecht is gebouwd in 1985 en heeft alles in huis om jouw nieuwe thuis te worden. De lichte woonkamer vormt biedt de perfecte plek om samen te ontspannen of vrienden te ontvangen. De open keuken is strak en praktisch ingericht, waardoor koken niet alleen makkelijk, maar ook leuk wordt. Met drie ruime slaapkamers en een kastenkamer is er volop ruimte – ideaal voor gezinnen, thuiswerkers of logees. De ruime badkamer maakt het plaatje compleet.

De ligging? Die is net zo aantrekkelijk. In de geliefde en kindvriendelijke wijk Heer Oudelands Ambacht woon je dicht bij scholen, winkels, sportvoorzieningen en het groene Develpark. Ook de kinderboerderij, het zwembad en openbaar vervoer zijn om de hoek. Kortom: alles wat je nodig hebt!

Zie jij jezelf hier al wonen? Plan snel een bezichtiging en ervaar zelf de sfeer en mogelijkheden van Beethovenlaan 59!
Begane grond
Begane grond

ENTREE
Hal met meterkast en toegang tot de woonkamer.

WOONKAMER
Met trapkast en open keuken.

OPEN KEUKEN
Moderne open keuken welke is voorzien van de volgende inbouwapparatuur:
- koelkast met vriesvak
- vaatwasser
- inductiekookplaat
- afzuigkap
- combioven

HAL ACHTERZIJDE
Hal met toiletruimte, toegang tot de tuin en trap naar de verdieping.







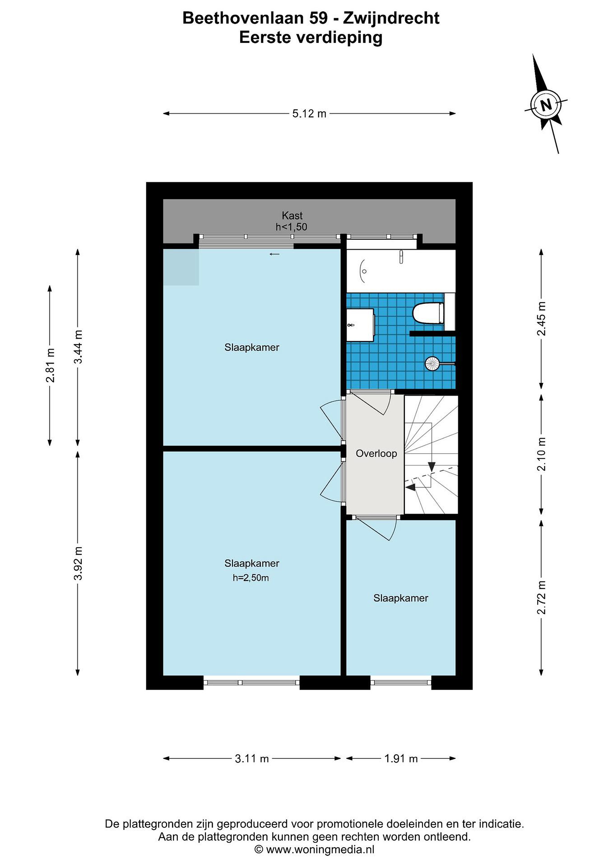
Eerste verdieping
OVERLOOP
Met toegang tot de vertrekken en vaste trap naar de verdieping

SLAAPKAMER 1
Ruime slaapkamer aan de voorzijde can de woning met laminaatvloer.

SLAAPKAMER 2
Slaapkamer aan de voorzijde van de woning in gebruik als kastenkamer

BADKAMER
Ruime keurig verzorgde badkamer met wastafelmeubel, 2e toilet, ligbad en douchecabine.
Ook hier loopt de dakkapel nog door.

SLAAPKAMER 3
Slaapkamer aan de achterzijde van de woning met kunststof dakkapel en laminaat vloerafwerking

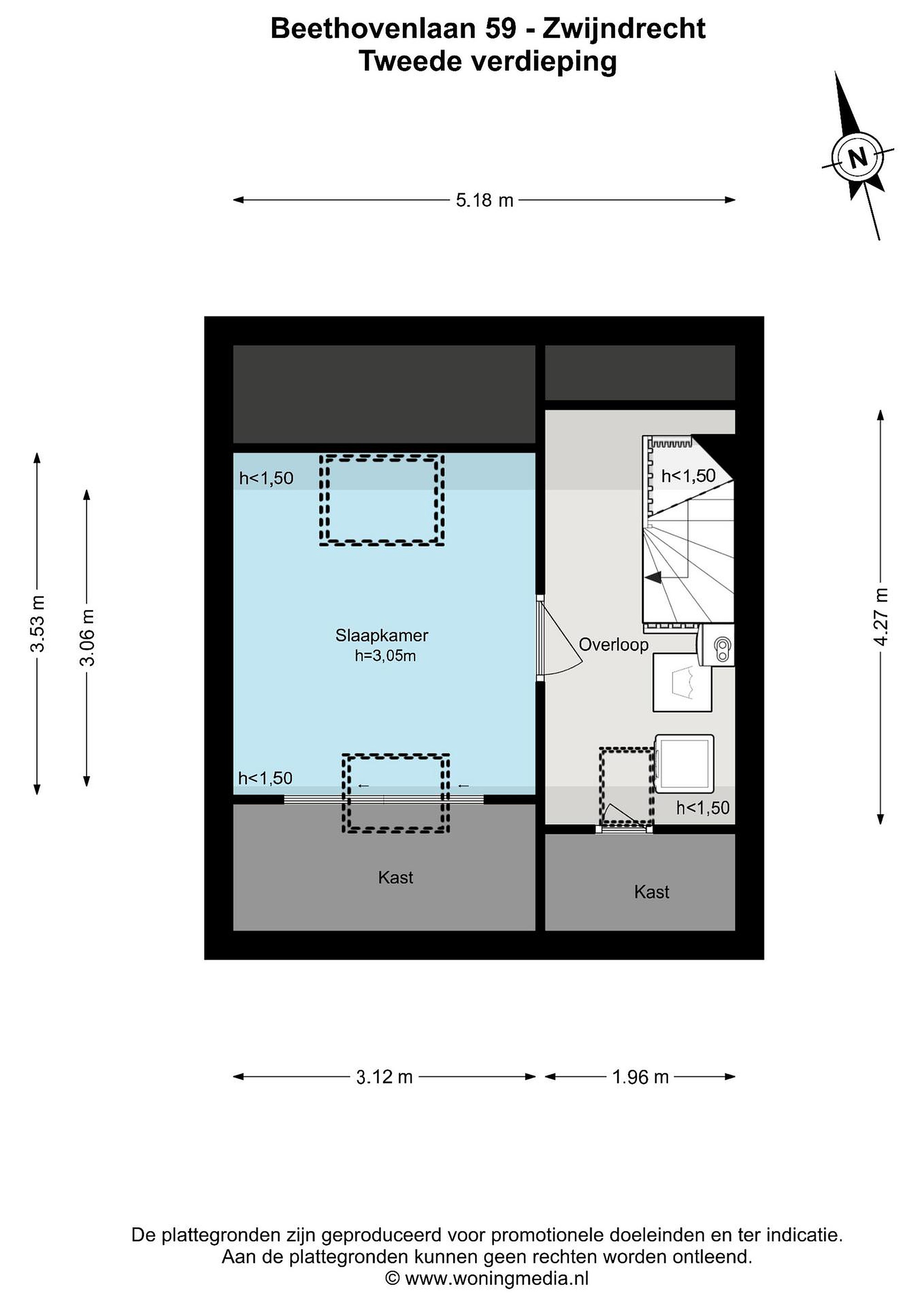
Tweede verdieping
VOORZOLDER
Met opstelling combiketel (2022) en aansluiting wasapparatuur.

SLAAPKAMER 4
Zolderkamer met kunststof velux dakvensters aan beide zijden en een laminaatvloer afwerking

Details
- De woning is opgemeten conform de branche brede meetinstructie. Deze meetinstructie is gebaseerd op de NEN2580. De meetinstructie is bedoeld om een meer eenduidiger manier van meten toe te passen voor het geven van een indicatie van de gebruiksoppervlakte. De meetinstructie sluit verschillen in meetuitkomsten niet volledig uit, door bijvoorbeeld interpretatieverschillen, afrondingen of beperkingen bij het uitvoeren van de meting.

- Bezichtigingen uitsluitend op afspraak met en via Bremmer Makelaars

- Oplevering: in overleg

- Voor de maatvoering verwijzen wij naar de plattegronden elders op de website of naar de brochure.

- De notariële eigendomsoverdracht zal plaatsvinden bij de notaris van de kopers keuze, mits deze is gelegen in een straal van 15km rondom de woning. Verkopers eventuele meerkosten (zoals reiskosten, notariële volmacht, e.d.) als gevolg van kopers notariskeuze buiten dit gebied komen volledig voor rekening van koper.

- Er zal een ouderdomsclausule worden opgenomen in de koopovereenkomst.

Lees meer

Kenmerken

Overdracht

Prijs per m2
€ 3.982
Aangeboden sinds
22 september 2025
Status
Beschikbaar
Aanvaarding
In overleg

Bouw

Soort woonhuis
Eengezinswoning, tussen woning
Soort bouw
Bestaande bouw
Bouwjaar
1985
Staat van onderhouden binnen
Goed
Staat van onderhouden buiten
Goed

Oppervlakte en inhoud

Perceeloppervlakte
213 m2
Inhoud van de woning
356 m3
Oppervlakte externe bergruimte
6 m2

Indeling

Aantal kamers
5
Aantal slaapkamers
4
Aantal woonlagen
3
Voorzieningen
Tuin, schuur/berging, dakraam

Buitenruimte

Balkon
Nee
Schuur/berging
Ja

Maandlasten berekenen

De maandlasten voor je woning bestaan uit meer dan alleen de hypotheeklasten. Hieronder vind je een overzicht van de bijkomende kosten en lasten. Zo weet je precies wat je huis per maand gaat kosten. En met de handige vergelijkers kun je ook nog eens snel de beste deals sluiten!

  • Kaart
  • Streetview