Verkocht

Beethovenlaan 54 3335 BA Zwijndrecht

107m2
Wonen
4
Kamers
133m2
Perceel
1986
Bouwjaar
Instapklaar wonen in Heer Oudelands Ambacht!

Aan de Beethovenlaan 54 staat deze modern afgewerkte eengezinswoning met een ruime tuingerichte woonkamer, luxe keuken, drie slaapkamers, een moderne badkamer én een zonnige tuin met overkapping. De woning is op de begane grond voorzien van vloerverwarming en het kozijnwerk is geheel uitgevoerd in kunststof met isolatieglas. Hier hoef je alleen nog maar je meubels neer te zetten.

Bij binnenkomst valt direct de verzorgde afwerking op. De woonkamer is ruim opgezet en heerlijk licht door de grote raampartijen en de schuifpui richting de tuin. De moderne afwerking, de strakke vloer en de sfeervolle haard zorgen voor een warme en eigentijdse uitstraling. De open keuken sluit hier naadloos op aan en is luxe uitgevoerd.

Op de eerste verdieping bevinden zich twee royale slaapkamers waarvan 1 met brede dakkapel en een moderne badkamer welke beschikt over een ligbad, een wastafelmeubel en een toilet. Op de zolder is er een ruime derde slaapkamer. Dankzij de dakramen aan zowel de voor- als achterzijde is ook deze verdieping aangenaam licht.

De achtertuin is zonnig en verzorgd aangelegd. De gezellige overkapping maakt het mogelijk om vrijwel het hele jaar door buiten te zitten. Een heerlijke plek om te ontspannen of om met vrienden en familie te genieten van lange zomeravonden.

Omgeving
De woning ligt in de geliefde wijk Heer Oudelands Ambacht in Zwijndrecht. Een rustige, groene woonomgeving met alle voorzieningen in de buurt. Scholen, winkels, sportvoorzieningen en openbaar vervoer zijn snel bereikbaar. Ook de uitvalswegen richting Rotterdam en Dordrecht liggen op korte afstand.

Kortom: een moderne en instapklare woning met diverse extra's en gelegen op een fijne plek waar je jarenlang met plezier kunt wonen! Zie jij jezelf hier al wonen? Plan dan snel een bezichtiging en ontdek zelf de ruimte, sfeer en het comfort van deze instapklare woning aan de Beethovenlaan 54.
Begane grond
HAL
Entree met meterkast, toiletruimte en trap naar de verdieping.

KEUKEN
Luxe uitgevoerde keuken voorzien van de volgende inbouwapparatuur:
- koelkast
- vriezer
- combioven
- inductie kookplaat met afzuiging
- vaatwasser

WOONKAMER
Ruime tuingerichte woonkamer met smaakvolle gietvloer met vloerverwarming. De woonkamer is voorzien van een schuifpui naar de tuin, een grote trapkast en een sfeervolle houtkachel.

PRAKTIJK
De voormalige berging is in gebruik als praktijkruimte en is voorzien van een airconditioning (koelen en verwarmen)

Eerste verdieping
OVERLOOP
Met toegang tot de vertrekken en vaste trap naar de verdieping.

SLAAPKAMER 1
Riante slaapkamer aan de achterzijde met grote dakkapel voorzien van elektrisch bedienbaar rolluik.

SLAAPKAMER 2
Ruime slaapkamer aan de voorzijde.

BADKAMER
Moderne badkamer met ligbad, wastafelmeubel en toilet.

Tweede verdieping
VOORZOLDER
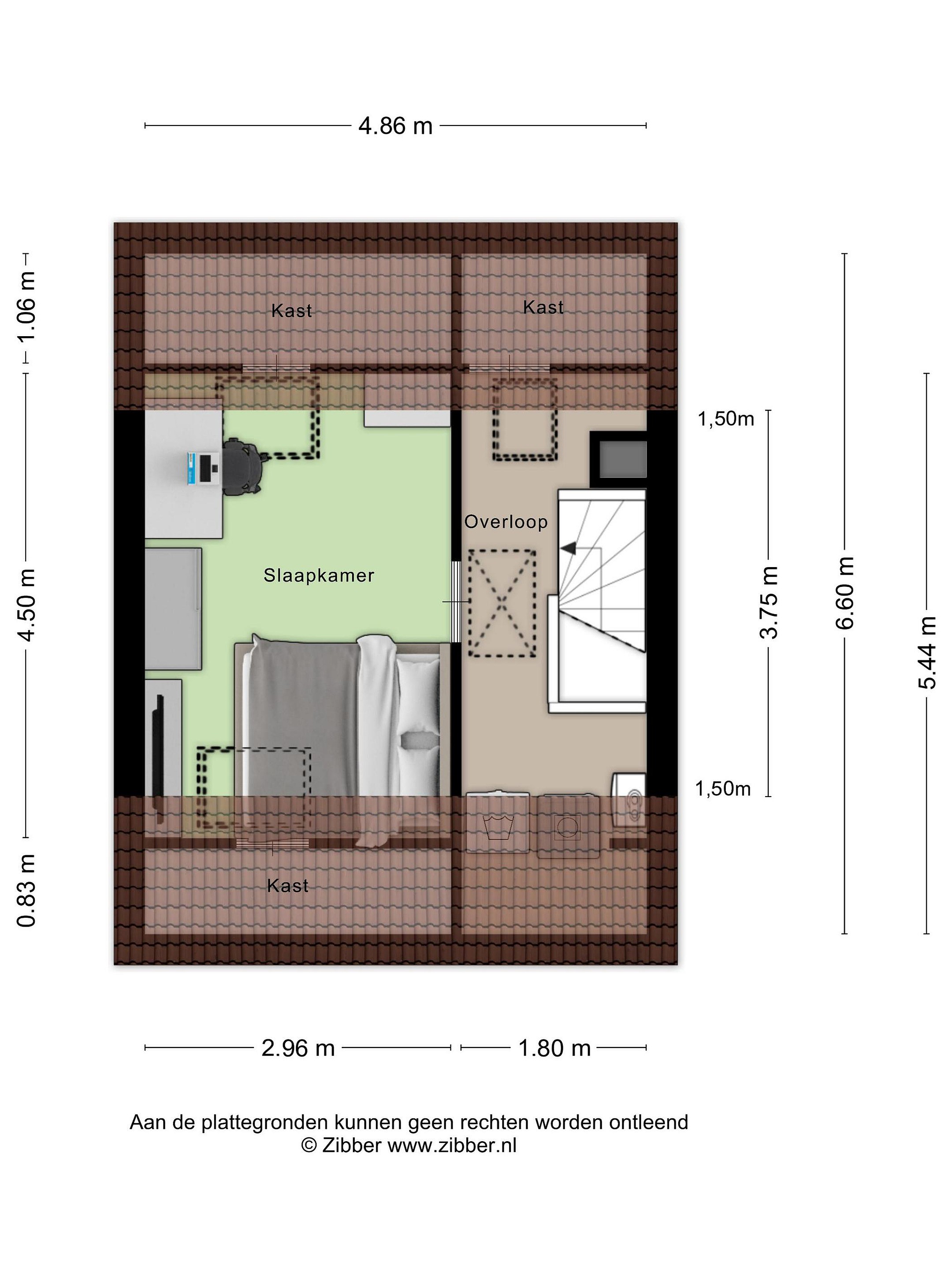
Met aansluitingen wasapparatuur, opstelling combiketel (2015). Luik naar bergvliering.

SLAAPKAMER 3
Ruime zolderkamer met aan beide zijde een dakvenster (vv elektrisch bedienbare rolluiken), bergruimte achter de knieschotten en een airconditioning (koelen en verwarmen)

Details
- De woning is opgemeten conform de branchebrede meetinstructie. Deze meetinstructie is gebaseerd op de NEN2580. De meetinstructie is bedoeld om een meer eenduidiger manier van meten toe te passen voor het geven van een indicatie van de gebruiksoppervlakte. De meetinstructie sluit verschillen in meetuitkomsten niet volledig uit, door bijvoorbeeld interpretatieverschillen, afrondingen of beperkingen bij het uitvoeren van de meting.

- Bezichtigingen uitsluitend op afspraak met en via Bremmer Makelaars

- Voor de maatvoering verwijzen wij naar de plattegronden elders op de website of naar de brochure.

- De notariële eigendomsoverdracht zal plaatsvinden bij de notaris van de kopers keuze, mits deze is gelegen in een straal van 15km rondom de woning. Verkopers eventuele meerkosten (zoals reiskosten, notariële volmacht, e.d.) als gevolg van kopers notariskeuze buiten dit gebied komen volledig voor rekening van koper.

- Oplevering: eind mei 2026

Lees meer

Verkoopgeschiedenis

Aangeboden sinds
6 maart 2026
Verkoopdatum
31 maart 2026
Looptijd
25 dagen

Kenmerken

Overdracht

Prijs per m2
€ 3.729
Aangeboden sinds
6 maart 2026
Status
Verkocht
Aanvaarding
In overleg

Bouw

Soort woonhuis
Eengezinswoning, tussen woning
Soort bouw
Bestaande bouw
Bouwjaar
1986
Soort dak
Zadeldak
Staat van onderhouden binnen
Goed
Staat van onderhouden buiten
Goed

Oppervlakte en inhoud

Perceeloppervlakte
133 m2
Inhoud van de woning
353 m3
Oppervlakte externe bergruimte
4 m2
Oppervlakte gebouwgebonden buitenruimten
14 m2

Indeling

Aantal kamers
4
Aantal slaapkamers
3
Aantal woonlagen
3
Voorzieningen
Tuin, schuur/berging, ventilatie, rolluiken, kabel-tv, glasvezel, airconditioning, schuifpui, dakraam

Buitenruimte

Balkon
Nee
Schuur/berging
Ja

Maandlasten berekenen

De maandlasten voor je woning bestaan uit meer dan alleen de hypotheeklasten. Hieronder vind je een overzicht van de bijkomende kosten en lasten. Zo weet je precies wat je huis per maand gaat kosten. En met de handige vergelijkers kun je ook nog eens snel de beste deals sluiten!

  • Kaart
  • Streetview