Verkocht OV

Mosveen 24 7894 CX Zwartemeer

126m2
Wonen
5
Kamers
150m2
Perceel
1975
Bouwjaar
Zoek je een instapklare woning met verrassend veel ruimte en oog voor duurzaamheid? Deze uitgebouwde tussenwoning aan de Mosveen in Zwartemeer biedt precies dat én meer. Met 126 m2 aan woonoppervlakte en een hoogwaardig afwerkingsniveau is dit de ideale gezinswoning, zeker met zijn 4 volwaardige slaapkamers. Achter de woning staat een stenen berging met grote aangebouwde overkapping.
Begane grond
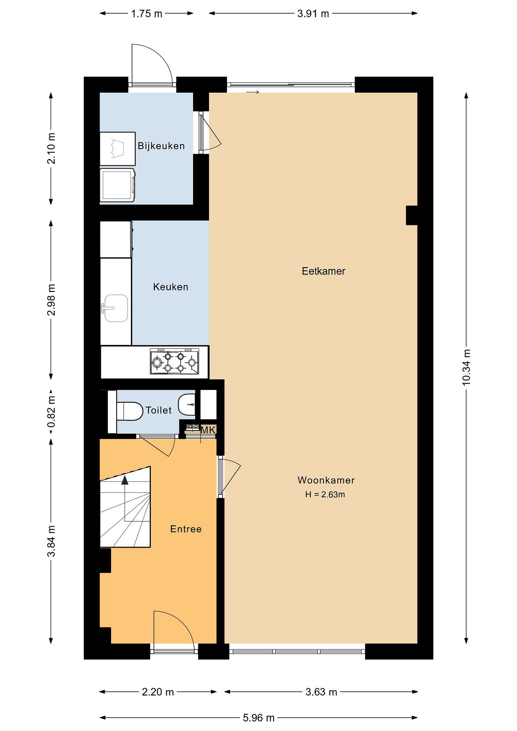
Hal met toilet, trapopgang en meterkast. Vergrote woonkamer met schuifpui, open keuken, bijkeuken.

Eerste verdieping
Overloop met toilet, 3 slaapkamers, badkamer.

Tweede verdieping
Bereikbaar via vaste trap. Overloop met cv-opstelling, 4e slaapkamer.

Details
Waarom dit jouw nieuwe thuis is:
- Ruimte & Licht: De vergrote woonkamer is een heerlijke plek om te ontspannen. Dankzij de grote schuifpui loopt binnen naadloos over in de tuin. De open keuken is voorzien van een keukenblok met alle benodigde inbouwapparatuur.
- Vier Slaapkamers: Op de eerste verdieping vind je drie prima slaapkamers. De tweede verdieping is bereikbaar via een vaste trap en beschikt over een volwaardige vierde slaapkamer.
- Lage Energielasten: De woning is toekomstbestendig met 12 zonnepanelen (2022), kunststof kozijnen met HR++ glas, elektrische rolluiken en een efficiënte cv-ketel uit 2017.
- Onderhoudsvriendelijk: Geen schilderwerk aan de buitenzijde! De voor- en achtergevel zijn bekleed met Keralit en de aanbouw is in 2024 voorzien van een nieuw plat dak.
- Buitenleven: Achter de woning geniet je van een stenen berging en een riante overkapping, perfect voor lange zomeravonden, ongeacht het weer en gelegen nabij scholen en het natuurgebied Bargerveen.
________________________________________
De feiten op een rij:
- Woonoppervlakte: 126 m2
- Duurzaamheid: 12 zonnepanelen, 2 airco's & volledig HR++ glas. Energielabel A.
- Onderhoud: Keralit gevels en nieuw dak aanbouw (2024)
- Extra’s: Vaste trap naar zolder, schuifpui en luxe overkapping
Kortom: Een ruime, degelijke en energiezuinige woning op een fijne locatie in Zwartemeer. Spullen pakken en verhuizen maar!

Lees meer

Kenmerken

Overdracht

Prijs per m2
€ 1.880
Aangeboden sinds
27 februari 2026
Status
Verkocht onder voorbehoud
Aanvaarding
In overleg

Bouw

Soort woonhuis
Eengezinswoning, tussen woning
Soort bouw
Bestaande bouw
Bouwjaar
1975
Soort dak
Zadeldak
Staat van onderhouden binnen
Goed
Staat van onderhouden buiten
Goed

Oppervlakte en inhoud

Perceeloppervlakte
150 m2
Inhoud van de woning
445 m3
Oppervlakte externe bergruimte
9 m2

Indeling

Aantal kamers
5
Aantal slaapkamers
4
Aantal woonlagen
3
Voorzieningen
Glasvezel

Buitenruimte

Balkon
Nee
Schuur/berging
Nee

Maandlasten berekenen

De maandlasten voor je woning bestaan uit meer dan alleen de hypotheeklasten. Hieronder vind je een overzicht van de bijkomende kosten en lasten. Zo weet je precies wat je huis per maand gaat kosten. En met de handige vergelijkers kun je ook nog eens snel de beste deals sluiten!

  • Kaart
  • Streetview