Bergroede 3 3214 EL Zuidland

106m2
Wonen
5
Kamers
155m2
Perceel
1988
Bouwjaar
Zeer sfeervolle en verzorgde hoekwoning, gelegen in een kindvriendelijk en autovrij hofje aan de rand van Zuidland.

Deze ideale gezinswoning beschikt o.a. over een gezellige woonkamer met open keuken, een praktische bijkeuken met aangrenzende berging/wasruimte en een fraai aangelegde achtertuin op het noordoosten.
Op de 1e verdieping tref je 3 slaapkamers van goed formaat en een nette badkamer met douche en tweede toilet. De zolderetage is toegankelijk middels een vaste trap en beschikt over een ruime 4e slaapkamer, handige bergvliering en bijzonder veel extra bergruimte.

Voor de exacte indeling en indicatieve maatvoering verwijzen wij je graag door naar de plattegronden achter de foto’s.

Indeling:

Toegang tot de voordeur middels de ruime en verzorgde voortuin.

Entree woning:
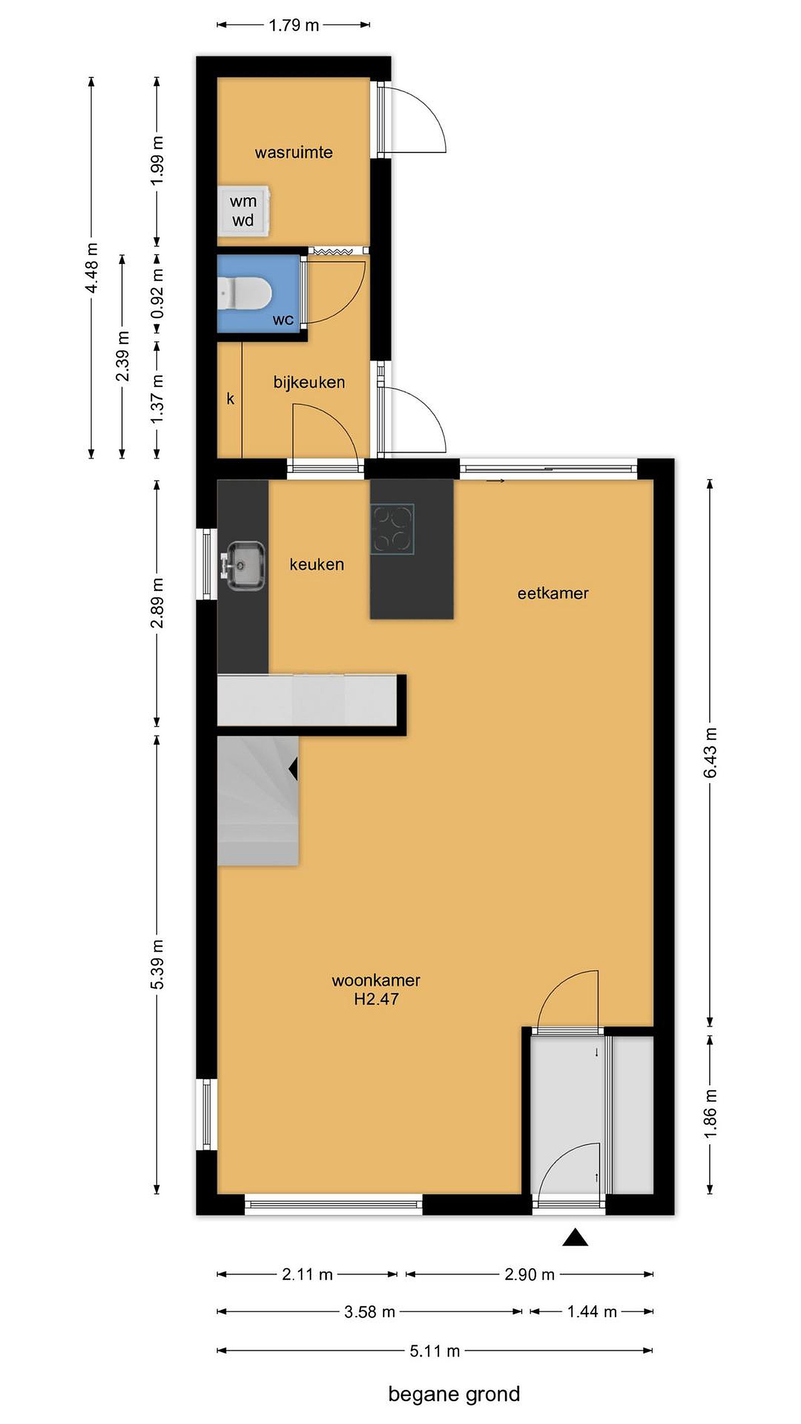
Hal met daarin een maatwerk garderobekast en deur naar de gezellige en ruim opgezette woon-/eetkamer. Alle wanden zijn neutraal uitgevoerd en de gehele benedenverdieping is voorzien van comfortabele vloerverwarming.
Het stijlvolle, verlaagde plafond is strak gestuct en beschikt over indirecte sfeerverlichting. Aan de achterzijde van de woning tref je de nette open keuken met kookeiland en inbouwapparatuur (inductiekookplaat, afzuigplaat, koel/vriescombinatie, oven en magnetron). De losgeplaatste vaatwasser blijft achter.

Vanuit de keuken kom je in de hal/bijkeuken aan de achterzijde van de woning. Hier bevindt zich de aansluiting t.b.v. de wasmachine, een volledig betegeld toilet en een doorloop naar de aangrenzende berging/wasruimte.

De ca. 10 meter diepe achtertuin is gesitueerd op het noordoosten en is onderhoudsvriendelijk aangelegd. Er is een buitenkraantje, achterom en tweede houten berging aanwezig. Een aan de woning grenzend gedeelte van de tuin in overkapt. Hier kun je een groot deel van het jaar heerlijk buiten leven.

1e verdieping:
Middels de overloop toegang tot 3 slaapkamers en de nette, volledig betegelde badkamer met natuurlijk lichtinval, hoekdouche, tweede toilet en een wastafelmeubel met spiegel. Slaapkamer I en slaapkamer II zijn gelegen aan de voorzijde van de woning. Slaapkamer III met groot dakraam bevindt zich aan de achterzijde.

2e verdieping:
Op deze verdieping vind je de ruime 4e slaapkamer en bijzonder veel extra bergruimte.


Bijzonderheden:
-Bouwjaar 1988
-Gebruiksoppervlakte wonen ca. 107 m2
-Gelegen op 155 m2 eigen grond
-Volledig v.v. dubbele beglazing
-Kunststof kozijnen (m.u.v. aluminium schuifpui)
-Vloerverwarming aanwezig op de begane grond
-3 airco’s aanwezig
-8 zonnepanelen met thuisbatterij
-Rolluiken op de BG
-Sunscreens aanwezig op de 1e verdieping
-Remeha cv combiketel uit 2017 (eigendom)
-Extra dakisolatie
-Vliering aanwezig
-Achtertuin ligging noordoost
-Rustige ligging, nabij de polder en op loopafstand van het recreatiegebied "De Bernisse”
-i.v.m. het bouwjaar van de woning zal, ongeacht de kwaliteit, de ouderdoms-/asbestclausule worden opgenomen in de koopakte
-Notariskeuze voorbehouden aan koper, echter binnen de regio
-Gewenste opleverdatum: eind juli 2026

Je kunt een bezichtiging aanvragen door op funda het contactformulier in te vullen.

De vermelde informatie is van algemene aard en is niet meer dan een uitnodiging om de woning te bezichtigen of om in onderhandeling te treden. Hoewel deze tekst en plattegrond met zorg zijn samengesteld zijn wij niet aansprakelijk voor eventuele onjuistheden. De toegepaste Meetinstructie sluit verschillen in meetuitkomsten niet volledig uit, door bijvoorbeeld interpretatieverschillen, afrondingen of beperkingen bij het uitvoeren van de meting. Aan de inhoud van deze informatie kunnen geen rechten worden ontleend.
Lees meer

Kenmerken

Overdracht

Prijs per m2
€ 3.639
Aangeboden sinds
4 maart 2026
Status
Beschikbaar
Aanvaarding
In overleg

Bouw

Soort woonhuis
Eengezinswoning, hoek woning
Soort bouw
Bestaande bouw
Bouwjaar
1988
Soort dak
Zadeldak
Staat van onderhouden binnen
Goed
Staat van onderhouden buiten
Goed

Oppervlakte en inhoud

Perceeloppervlakte
155 m2
Inhoud van de woning
342 m3
Oppervlakte externe bergruimte
4 m2

Indeling

Aantal kamers
5
Aantal slaapkamers
4
Aantal woonlagen
3
Voorzieningen
Tuin, schuur/berging, ventilatie, glasvezel, buitenzonwering, airconditioning, schuifpui, dakraam

Buitenruimte

Balkon
Nee
Schuur/berging
Ja

Maandlasten berekenen

De maandlasten voor je woning bestaan uit meer dan alleen de hypotheeklasten. Hieronder vind je een overzicht van de bijkomende kosten en lasten. Zo weet je precies wat je huis per maand gaat kosten. En met de handige vergelijkers kun je ook nog eens snel de beste deals sluiten!

  • Kaart
  • Streetview