Verkocht

Lijnbaan 61 2728 AB Zoetermeer

106m2
Wonen
5
Kamers
127m2
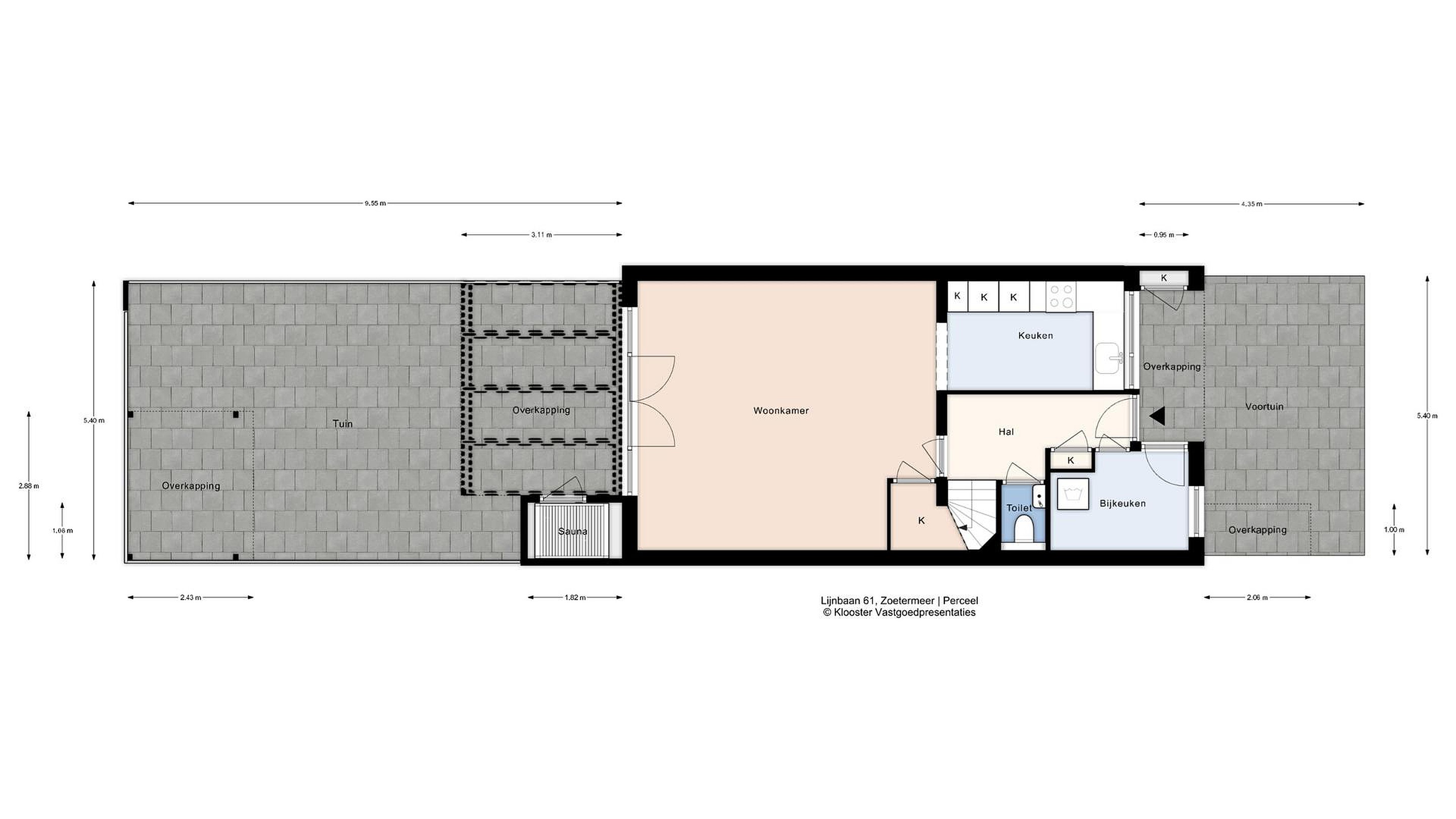
Perceel
1986
Bouwjaar
Kopers opgelet!
Bent u op zoek naar een betaalbare instapklare eengezinswoning, stop dan met zoeken, u heeft zojuist een parel gevonden.
Deze 5 kamer tussenwoning is zeer goed onderhouden en voorzien van moderne keuken (geplaatst in 2023), keurig nette badkamer, grote achtertuin en mogelijkheid tot het plaatsen van een opbouw
De woning is gelegen in de gewilde en zeer groene wijk Noordhove. ’s Avond zin in een blokje om? Binnen enkele minuten loopt u zo het Noord AA op, Boerderij ’t Geertje op fietsafstand maar ook het recreatie gebied in het algemeen vergroot enorm uw woongenot. Tevens heeft u de winkels, scholen en openbaar vervoersmogelijkheden binnen handbereik.

Kom gerust langs en ervaar het zelf!
Begane grond
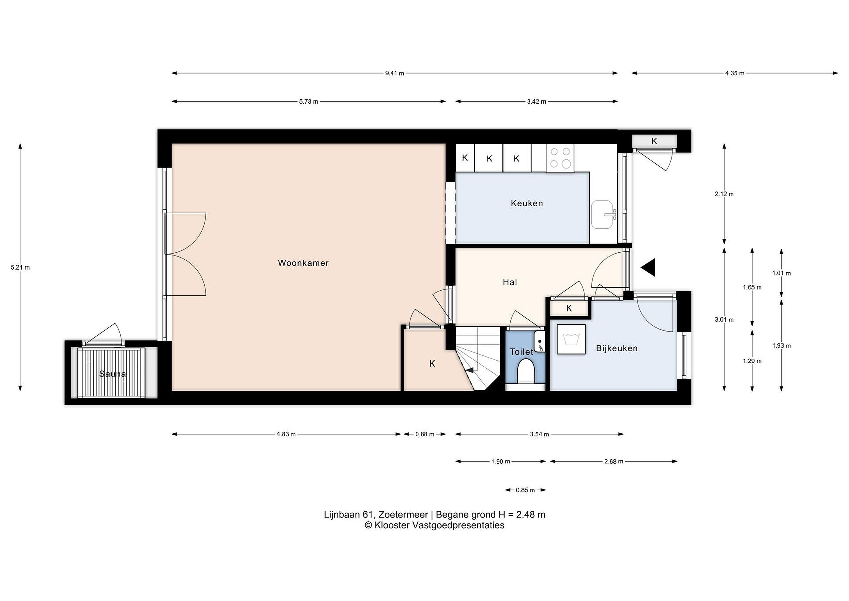
Middels voortuin (v.v. kleine opbergkast) toegang tot de woning, ruime hal v.v. modern toilet met fontein, meterkast en berging aan de voorzijde alwaar opstelplaats wasmachine-/droger en omvormer zonnepanelen. Vanuit de hal toegang tot de heerlijk en zeer goed verzorgde woonkamer met trapkast en open keuken. Vanuit de woonkamer toegang tot de zeer zonnige achtertuin met open serre (2013) , veranda (2021) en berging met sauna. De keuken is recent geplaats en v.v. inductie kookplaat, combi oven, gewone oven, koel-/vriescombinatie en vaatwasser.

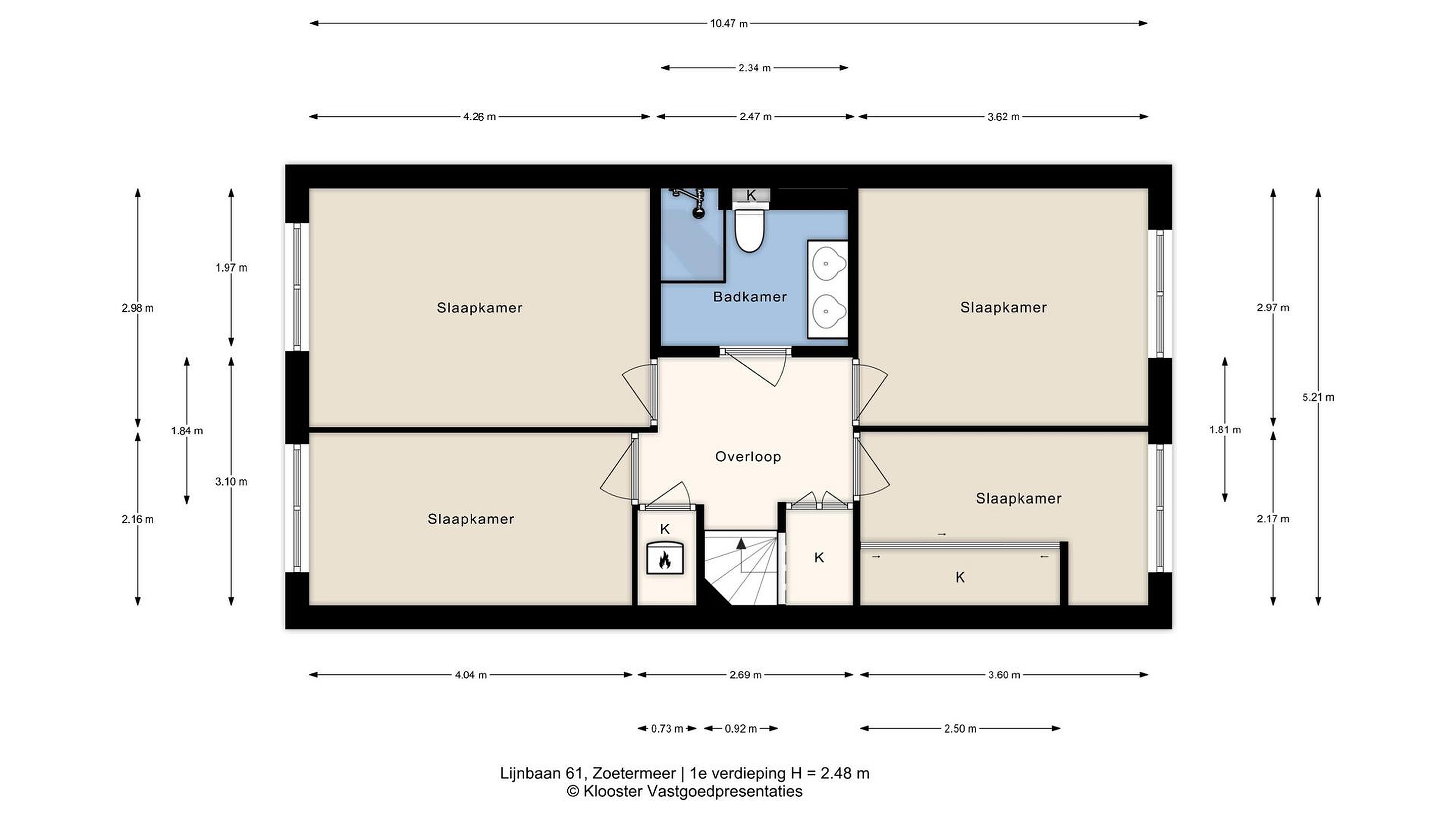
De eerste verdieping is zeer ruim opgezet met aan de voor-en achterzijde twee masterbedrooms maar ook de overige 2 kamers zijn prima formaat.de badkamer is eveneens keurig onderhouden en v.v. douche, toilet, dubbel wastafelmeubel, mechanische ventilatie en handdoekradiator. Op de overloop treft u een berging alwaar opstelplaats cv combi ketel en een tweede berging.

Het creëren van een tweede verdieping (optoppen) is erg in trek in de wijk momenteel en biedt ook grotere gezinnen tal van mogelijkheden. Kortom een woning met potentie in het groene hart van het fijne Zoetermeer gelegen.

Details
- Type woning: tussenwoning
- Bouwjaar 1986
- Woonoppervlak: ca. 107 m2
- Geheel v.v. dubbel glas
- Verwarming en warm water middels cv-combi ketel (Vaillant bouwjaar 2023)
- De keuken is in 2023 vernieuwd
- Het toilet is in 2021 vernieuwd
- De schuttingen zijn in 2024 vernieuwd
- De badkamer dateert van 2010 en is keurig netjes
- De woning beschikt over energielabel A+
- De woning is v.v. maar liefst 14 zonnepanelen
- Oplevering 6 weken na oplevering nieuwe woning tussen 1 december
2025 en 1 maart 2026 met een aanzegtermijn van 6 weken door verkoper,


Lees meer

Verkoopgeschiedenis

Aangeboden sinds
25 augustus 2025
Verkoopdatum
31 oktober 2025
Looptijd
2 maanden

Kenmerken

Overdracht

Prijs per m2
€ 4.225
Aangeboden sinds
25 augustus 2025
Status
Verkocht
Aanvaarding
In overleg

Bouw

Soort woonhuis
Eengezinswoning, tussen woning
Soort bouw
Bestaande bouw
Bouwjaar
1986
Soort dak
Plat dak
Staat van onderhouden binnen
Goed
Staat van onderhouden buiten
Goed

Oppervlakte en inhoud

Perceeloppervlakte
127 m2
Inhoud van de woning
365 m3
Oppervlakte gebouwgebonden buitenruimten
12 m2
Oppervlakte overige inpandige ruimten
2 m2

Indeling

Aantal kamers
5
Aantal slaapkamers
4
Aantal woonlagen
2
Voorzieningen
Tuin

Buitenruimte

Balkon
Nee
Schuur/berging
Nee

Maandlasten berekenen

De maandlasten voor je woning bestaan uit meer dan alleen de hypotheeklasten. Hieronder vind je een overzicht van de bijkomende kosten en lasten. Zo weet je precies wat je huis per maand gaat kosten. En met de handige vergelijkers kun je ook nog eens snel de beste deals sluiten!

  • Kaart
  • Streetview