Verkocht

Fivelingo 44 2716 BE Zoetermeer

178m2
Wonen
7
Kamers
140m2
Perceel
1971
Bouwjaar
Fivelingo 44 Zoetermeer

Royale woning met volop ruimte en mogelijkheden

In de groene en kindvriendelijke wijk Meerzicht in Zoetermeer, staat een bijzonder ruime woning met heel veel mogelijkheden. Met vier verdiepingen en een verrassend aantal kamers biedt dit huis volop plek om te wonen, te werken maar bovenal te genieten.

De begane grond biedt veel flexibiliteit en mogelijkheden. Ideaal voor mantelzorg, een praktijkruimte aan huis of een eigen verdieping voor een kind. Met een uitbouw aan de diepe achtertuin kan de woonruimte eenvoudig naar beneden worden verplaatst.

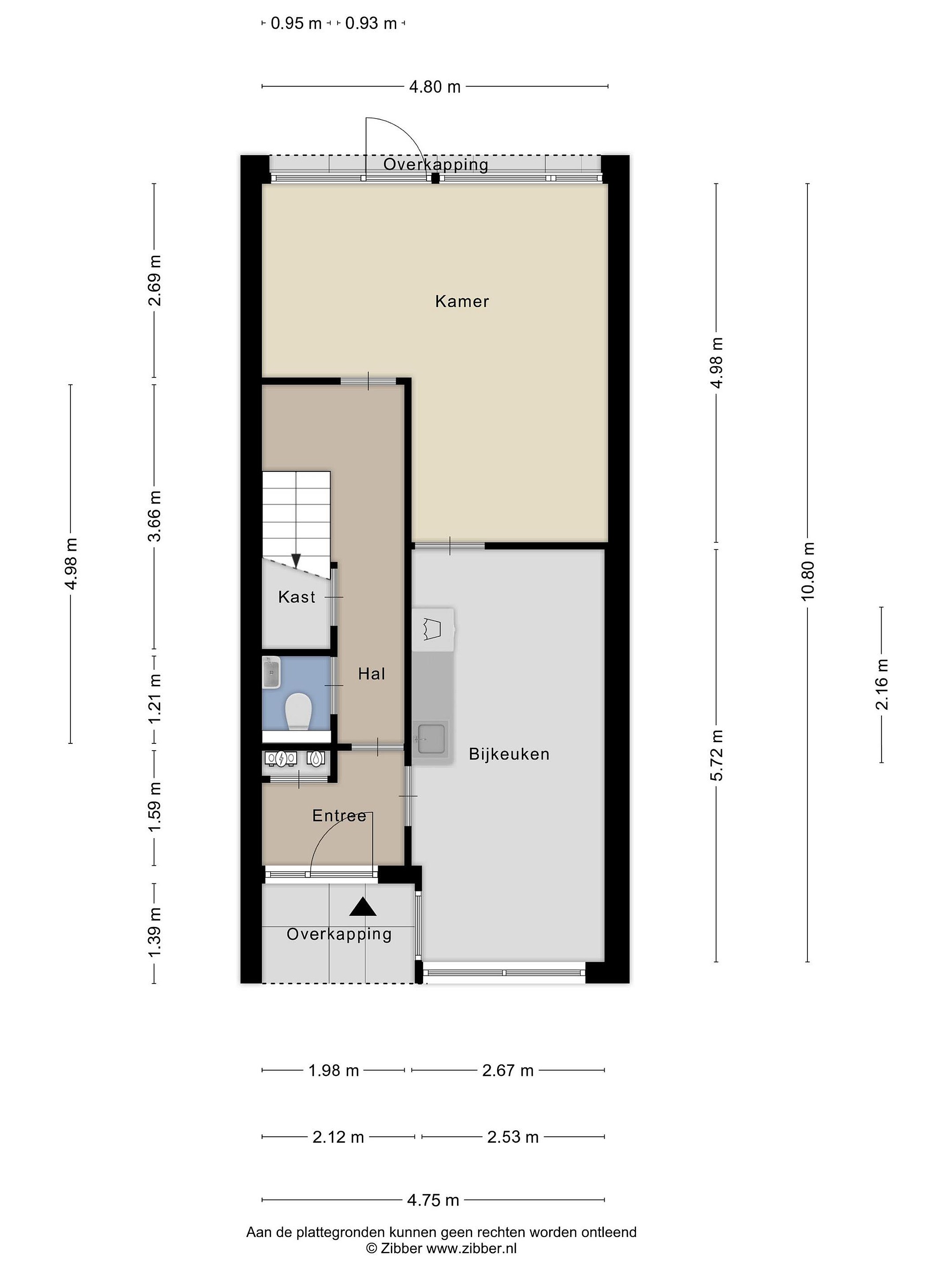
Bij het betreden van de woning kom je eerst in de voorhal met deur naar de zeer ruime bijkeuken. De hal daarna geeft toegang tot het toilet, de eerste kamer en de tuin. Via de trapopgang naar de eerste verdieping kom je in de woonkamer met eetkamergedeelte.

De muren zijn netjes gestuct en op de grond ligt heerlijk zacht tapijt. Naast het eetgedeelte bevindt zich de keuken. Deze is deels afgeschermd en bestaat uit strak afgewerkte witte kastjes en zwarte tegels. Toekomstige bewoners hebben geen werk meer aan de keuken, het is van alle moderne gemakken voorzien, inclusief vijfdelig fornuis. De keuken geeft ook toegang tot een balkon.

Via de trap vervolgt de weg zich naar het slaapgedeelte op de tweede verdieping. Aan de voorzijde bevindt zich de ruime masterbedroom. Via de grote raampartij heb je hier een prachtig uitzicht. Aan de tuin kant liggen twee kleinere slaapkamers, welke te gebruiken zijn als babykamer, werkplek of inloopkast. Ook kunnen de kamers makkelijk samengevoegd worden tot één grotere slaapkamer. De badkamer is eveneens modern afgewerkt met witte en zwarte tegels. De ruimte is voorzien van douchecabine, spiegel, wastafelmeubel met twee kranen en een toilet.

Op de derde verdieping liggen nog eens twee grote slaapkamers en een tweede badkamer. Een ware uitkomst tijdens drukke ochtenden. Ook deze badkamer is modern en instapklaar en voorzien van een wastafelmeubel, toilet en een douchebad.

De slaapkamer op de derde verdieping geeft toegang tot een balkon waarop je heerlijk van de zon kunt genieten. Via de kamer op de begane grond betreed je de beschutte tuin. Deze is momenteel volledig betegeld maar de lange vorm van de tuin biedt voldoende plek voor een eettafel, zitgedeelte, schuur en beplanting.

Aan de voorkant van het huis is plek voor twee auto’s op eigen terrein. De woning staat in een rustige buurt met meerdere kinderdagverblijven, een buitenspeeltuin en een overdekte speeltuin en een speelboerderij. Ook in het nabijgelegen Westerpark is voldoende te doen; van lekker wandelen in de natuur tot een bezoek aan de schapenweide. Boodschappen kunnen makkelijk gedaan worden in Winkelcentrum Meerzicht, dat op nog geen 400 meter van het huis vandaan ligt. Daar vertrekt ook tramlijn 3 richting station Zoetermeer. Met de auto ben je zo op de uitvalswegen A12 of A4.

Deze woning aan de Fivelingo 44 biedt alles wat een gezin zich kan wensen: ruimte, comfort en flexibiliteit, met alle voorzieningen binnen handbereik. Mis deze kans niet en ervaar zelf hoe prettig het wonen hier is.

Bijzonderheden :
- Bouwjaar: 1971| Woonoppervlakte: 178,60 m2 | Inhoud: 632,55 m3
- Royale eengezinswoning met 7 kamers en stijlvolle afwerking
- De woning biedt unieke mogelijkheden: de begane grond kan dienen voor mantelzorg, praktijkruimte of een eigen verdieping voor een kind, en met een uitbouw aan de diepe tuin is wonen op de begane grond eenvoudig te realiseren.
- Houten en kunststof kozijnen, voorzien van dubbel glas
- Moderne keuken met hoogwaardige apparatuur
- Twee luxe badkamers met dubbele wastafel en inloopdouche
- Privé oprit met ruimte voor twee auto’s
- Beschutte, onderhoudsvriendelijke tuin met diverse mogelijkheden
- Gelegen in een rustige en kindvriendelijke buurt met kinderdagverblijven en basisscholen, speeltuinen en speelboerderij
- Westerpark op loopafstand: natuur, wandelroutes en schapenweide
- Winkelcentrum Meerzicht op ca. 400 meter afstand
- Stadshart Zoetermeer dichtbij voor shoppen, restaurants en voorzieningen
- Tramlijn 3 richting station Zoetermeer nabij
- Goede bereikbaarheid via A12 en A4

Toelichtingsclausule BBMI/NEN2580
De meetinstructie is gebaseerd op de BBMI/NEN2580. De meetinstructie is bedoeld om een meer eenduidige manier van meten toe te passen voor het geven van een indicatie van de gebruiksoppervlakte. De meetinstructie sluit verschillen in meetuitkomsten niet volledig uit, door bijvoorbeeld interpretatieverschillen, afrondingen of beperkingen bij het uitvoeren van de meting.

Rechtsgeldige koopovereenkomst pas ná ondertekening
Een mondelinge overeenstemming tussen de particuliere verkoper en de particuliere koper is niet rechtsgeldig. Met andere woorden: er is geen koop. Er is pas sprake van een rechtsgeldige koop als de particuliere verkoper en de particuliere koper de koopovereenkomst hebben ondertekend. Dit vloeit voort uit artikel 7:2 Burgerlijk Wetboek. Een bevestiging van de mondelinge overeenstemming per e-mail of een toegestuurd concept van de koopovereenkomst wordt overigens niet gezien als een ‘ondertekende koopovereenkomst’.

Bovenstaande tekst is met de grootst mogelijke zorg samengesteld. Er kunnen geen rechten aan worden ontleend. De tekst is uitsluitend bedoeld om een goede indruk van het object te geven.

Lees meer

Verkoopgeschiedenis

Aangeboden sinds
5 januari 2026
Verkoopdatum
8 april 2026
Looptijd
3 maanden

Kenmerken

Overdracht

Prijs per m2
€ 2.940
Aangeboden sinds
5 januari 2026
Status
Verkocht
Aanvaarding
In overleg

Bouw

Soort woonhuis
Eengezinswoning, tussen woning
Soort bouw
Bestaande bouw
Bouwjaar
1971
Soort dak
Zadeldak
Staat van onderhouden binnen
Goed
Staat van onderhouden buiten
Goed

Oppervlakte en inhoud

Perceeloppervlakte
140 m2
Inhoud van de woning
632 m3
Oppervlakte gebouwgebonden buitenruimten
15 m2

Indeling

Aantal kamers
7
Aantal slaapkamers
6
Aantal woonlagen
4
Voorzieningen
Tuin, balkon

Buitenruimte

Balkon
Ja
Schuur/berging
Nee

Maandlasten berekenen

De maandlasten voor je woning bestaan uit meer dan alleen de hypotheeklasten. Hieronder vind je een overzicht van de bijkomende kosten en lasten. Zo weet je precies wat je huis per maand gaat kosten. En met de handige vergelijkers kun je ook nog eens snel de beste deals sluiten!

  • Kaart
  • Streetview