Dorpsstraat 216 2761 AP Zevenhuizen

191m2
Wonen
5
Kamers
380m2
Perceel
1920
Bouwjaar
Aan de levendige Dorpsstraat, midden in het centrum van Zevenhuizen, staat deze bijzondere vrijstaande woning uit 1920. Achter de charmante gevel schuilt een volledig vernieuwde en toekomstbestendige woning die tot in detail is afgewerkt. Alles is aangepakt, van dak tot leidingen, met oog voor kwaliteit, duurzaamheid en wooncomfort. Het resultaat is een karakteristieke woning met de uitstraling van toen en de prestaties van nu, met energielabel A+++. Door de aanbouw en dakkapellen is de woonoppervlakte ruim 190m2 en ligt op een mooi perceel van 380m2.
Begane grond
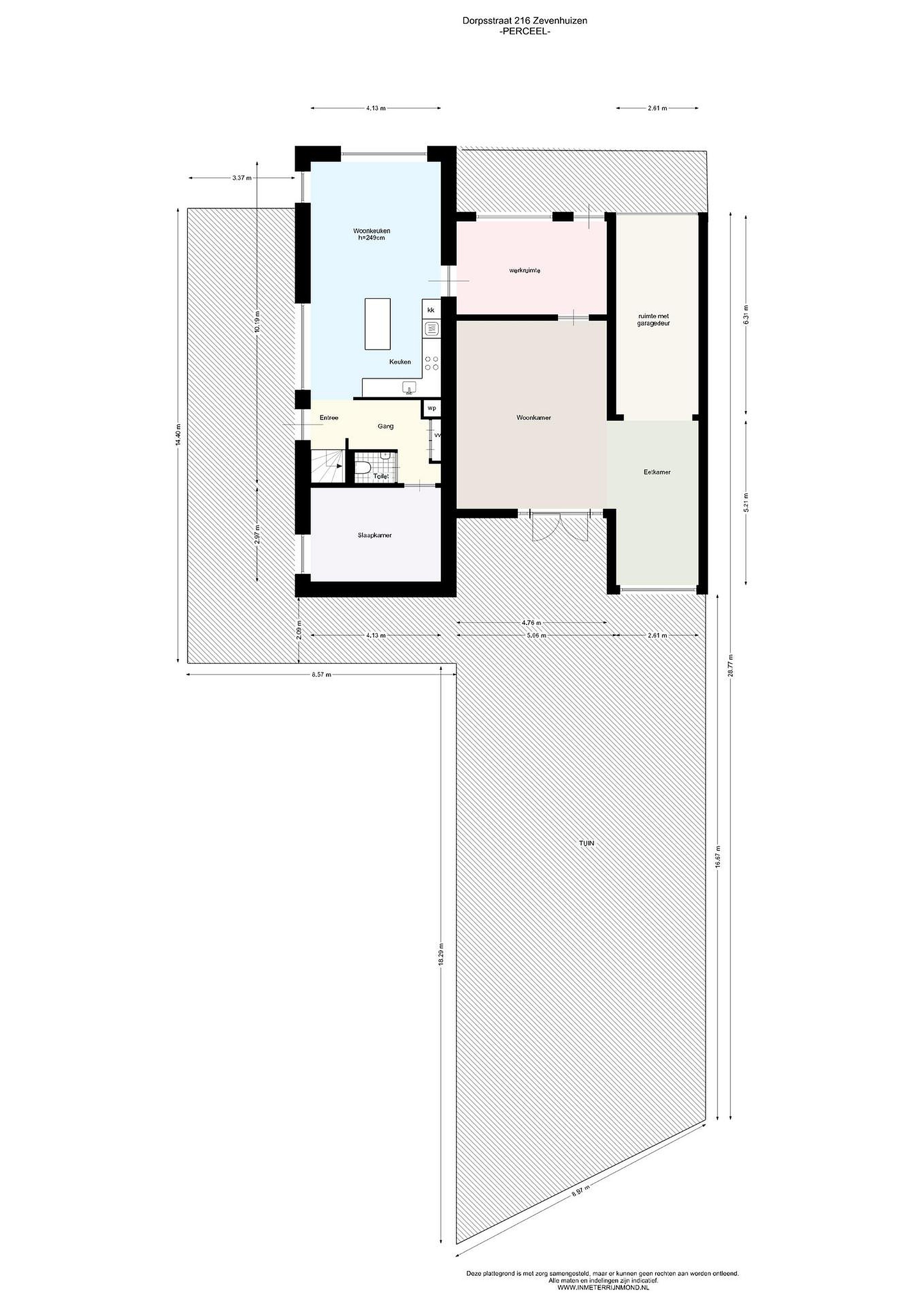
Bij binnenkomst komt u direct in de sfeervolle woonkeuken: het hart van het huis. Hier is gekozen voor een moderne zwarte keuken met alle gewenste inbouwapparatuur, waaronder een oven, koel-vriescombinatie, vaatwasser, inductie kookplaat en afzuigkap. De ruimte voelt licht en uitnodigend aan door de vele raampartijen, perfect om samen te koken en te tafelen.

Aansluitend bevindt zich een (werk)kamer met een eigen entree, ideaal te gebruiken als praktijkruimte, kantoor of gastenverblijf. De woning biedt hierdoor uitstekende mogelijkheden voor wie wonen en werken wil combineren.

Vanuit deze ruimte loopt u door naar de royale uitgebouwde woonkamer met vrij zicht op de tuin aan het water. De grote ramen en openslaande deuren naar de tuin zorgen voor een zee aan licht. In deze ruimte bevindt zich de inpandige garage, die eenvoudig kan worden omgebouwd tot kantoor, extra kamer of hobbyruimte.

Op de begane grond bevindt zich tevens een extra slaapkamer, levensloopbestendig wonen behoort dus tot de mogelijkheden. De aansluitingen voor een badkamer zijn al aanwezig. In de hal vindt u een modern toilet, de technische ruimte met warmtepomp en boiler netjes weggewerkt in een vaste kast en de vernieuwde meterkast.

De afwerking is hoogwaardig, met een visgraat PVC-vloer (door de gehele woning), hoge plinten en een strak gestuukte wandafwerking.

Eerste verdieping
Op de eerste verdieping geven twee brede dakkapellen extra ruimte en licht aan de twee ruime slaapkamers. De kamers zijn bereikbaar via de royale overloop, voorzien van de originele houten balken en de aansluiting voor de wasmachine. De luxe badkamer heeft een inloopdouche en wasmeubel met dubbele kraan en heeft ook een tweede aansluiting voor de wasmachine. Daarnaast is er een separaat toilet aanwezig. Ook de verdieping heeft een strakke afwerking door de PVC vloer en afgewerkte wanden.

Tuin
Buiten geniet u van een volledig vernieuwde tuin, met nieuwe schuttingen en aan de achterzijde een heerlijke ligging aan het water. Hier kijkt u vrij uit over groen en het water, waar u bovendien uw eigen boot kunt aanleggen. Vanaf hier vaart u rechtstreeks richting het recreatiegebied de Rotte, ideaal voor watersportliefhebbers.
Aan de voorzijde beschikt de woning over een eigen oprit met parkeerplaats.

De woning is voorzien van de modernste installaties: een nieuwe warmtepomp, vloerverwarming en -koeling, dak-, gevel- en vloerisolatie, kunststof kozijnen met triple glas en 20 zonnepanelen. De voorbereidingen voor een bekabeld camerasysteem zijn eveneens getroffen.


Details
Bijzonderheden
- Bouwjaar 1920 en volledig gerenoveerd in recente tijd, van dak tot installatie
- Woonoppervlakte 191 m2 met een perceel van 380 m2
- Energielabel A+++ en volledig geïsoleerd: dak-, gevel- en vloerisolatie
- Nieuwe kunststof kozijnen met triple glas
- Nieuwe warmtepomp en 20 zonnepanelen
- Vloerverwarming en vloerkoeling door de gehele woning
- Nieuwe elektrische installatie en leidingen (aan- en afvoer)
- De buitenzijde is volledig opnieuw gestuukt en afgewerkt met een spachtelputz laag en deels voorzien van rabatdelen.
- Vernieuwde dakgoten, regenpijp en nieuwe dakpannen.
- Praktijkruimte/kantoor met eigen entree (ook geschikt als gastenverblijf)
- Slaapkamer op de begane grond met aansluitingen voor extra badkamer
- Inpandige garage, eenvoudig om te bouwen tot extra kamer of kantoor
- Eigen oprit met parkeerplaats
- Tuin aan vaarwater op het oosten, nieuw aangelegd met schuttingen en vrij uitzicht
- Aanlegsteiger met verbinding naar de Rotte
- Gelegen in de gezellige Dorpsstraat, midden in het centrum met winkels en voorzieningen

Dorpsstraat 216 is meer dan een woning, het is een perfecte combinatie van oud en nieuw, van karakter en comfort. Instapklaar, duurzaam en met oog voor detail verbouwd, op een prachtige plek in het dorpshart van Zevenhuizen met winkels, horeca en voorzieningen op loopafstand. En met het water letterlijk in de achtertuin.

Lees meer

Kenmerken

Overdracht

Prijs per m2
€ 5.733
Aangeboden sinds
4 november 2025
Status
Beschikbaar
Aanvaarding
In overleg

Bouw

Soort woonhuis
Eengezinswoning, vrijstaande woning
Soort bouw
Bestaande bouw
Bouwjaar
1920
Soort dak
Zadeldak
Staat van onderhouden binnen
Uitstekend
Staat van onderhouden buiten
Uitstekend

Oppervlakte en inhoud

Perceeloppervlakte
380 m2
Inhoud van de woning
658 m3

Indeling

Aantal kamers
5
Aantal slaapkamers
3
Aantal woonlagen
2
Voorzieningen
Tuin

Buitenruimte

Balkon
Nee
Schuur/berging
Nee

Maandlasten berekenen

De maandlasten voor je woning bestaan uit meer dan alleen de hypotheeklasten. Hieronder vind je een overzicht van de bijkomende kosten en lasten. Zo weet je precies wat je huis per maand gaat kosten. En met de handige vergelijkers kun je ook nog eens snel de beste deals sluiten!

  • Kaart
  • Streetview