Verkocht OV

De Tribune 10 1507 BX Zaandam

105m2
Wonen
5
Kamers
133m2
Perceel
1993
Bouwjaar
Een comfortabele tussenwoning voor het hele gezin in een rustige en kindvriendelijke buurt? Dan is deze goed onderhouden eengezinswoning aan De Tribune 10 in Zaandam precies wat je zoekt! Gelegen aan een autovrije straat, is deze moderne woning voorzien van houten kozijnen met HR++ glas, een luxe open keuken, moderne badkamer en een viertal slaapkamers. Met een heerlijke achtertuin – met overkapping - op het westen is deze woning, volledig op eigen grond, klaar voor nieuwe bewoners. Wil jij dat zijn? Maak dan snel een afspraak voor een vrijblijvende bezichtiging!

Begane grond
Via de hal, met meterkast, trapopgang en moderne toiletruimte met fonteintje, stap je de lichte woonkamer in, die is voorzien van een eikenvloer. De woonkamer, met dubbele deur naar de achtertuin, biedt praktische ruimte met plaats voor een gezellige zithoek en een eethoek bij de open keuken. Deze moderne open keuken in U-opstelling is voorzien van een composiet aanrechtblad en beschikt over diverse inbouwapparatuur, waaronder een 5-pits gasfornuis, oven, vaatwasser en koel/vriescombinatie.

Eerste verdieping
Via de trap in de hal kom je op de eerste etage, waar een drietal slaapkamers te vinden is. Twee slaapkamers bevinden zich aan de achterzijde en de grootste slaapkamer is aan de voorzijde gelegen, met direct daarnaast de moderne badkamer met inloopdouche, dubbele wastafel, kastruimte en tweede toilet.

Tweede verdieping
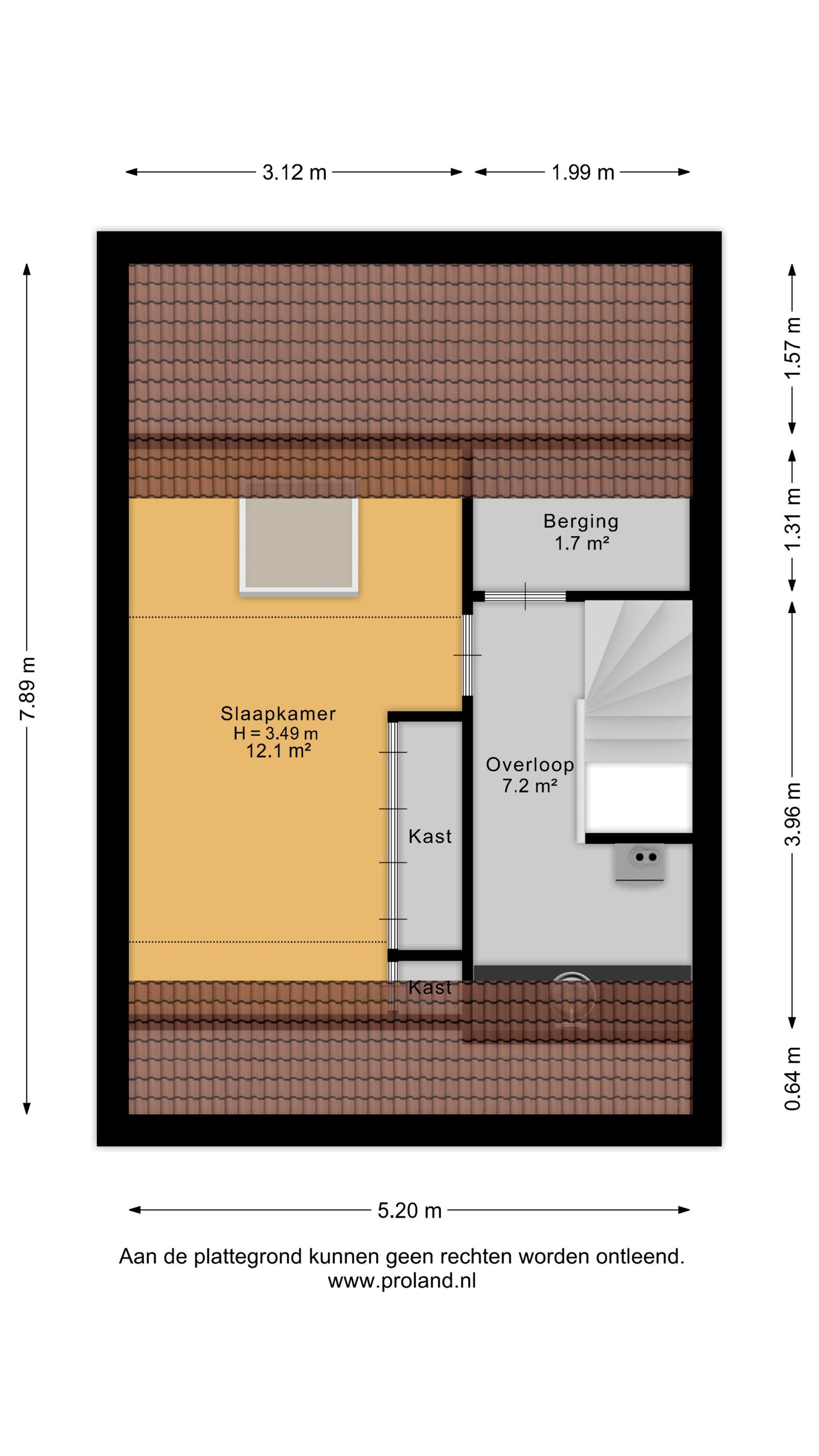
Via een vaste trap bereik je de overloop op de tweede etage. Onder de schuine kant van het dak is hier de opstelling van de wasmachine en droger gerealiseerd, inclusief een wastafel. Ook de Cv-ketel (Intergas, 2010) hangt op de overloop. Tot slot biedt deze etage nog ruimte aan een vierde slaapkamer, voorzien van een groot dakraam en inbouwkasten. Het is mogelijk deze kamer te vergroten door het plaatsen van dakkapellen.

Buiten
De voorzijde van deze tussenwoning ligt aan een wandelpad. Dat betekent rustig en kindvriendelijk wonen, zonder verkeer voor de deur. Op enkele meters loopafstand vind je een ruime parkeerplaats waar je je auto kunt parkeren. De voortuin, voorzien van groene borders in bakken, is bestraat en gelegen op het oosten. De achtertuin is gelegen op het gunstige westen en is volledig bestraat. Hier kun je tot de laatste stralen van de zon genieten. Achterin de tuin is een houten schuur, voorzien van elektra, met daaraan een overkapping, om lekker lang van het buitenleven te kunnen genieten. De achtertuin is bereikbaar via de achterliggende steeg.

Omgeving
De Tribune 10 ligt aan een wandelpad in de rustige woonwijk Westerspoor. De ligging is perfect: aan de rand van Zaandam met alle stadse voorzieningen en uitvalswegen A7/A8 en A10 binnen handbereik, maar toch omgeven door groen door de nabijheid van natuurgebied Westzijderveld waar je heerlijk kunt wandelen. Op slechts vijf fietsminuten zit je in het centrum van Zaandam, met gezellige winkels, een bioscoop, het Zaantheater en tal van horecagelegenheden. Het treinstation is maar 8 minuten lopen. Zo bereik je hartje Amsterdam in minder dan een kwartier. In de wijk zelf vind je kinderopvang, een basisschool en een buurtboerderij met allerlei kinderactiviteiten.

Ben jij op zoek naar een moderne tussenwoning waar je alleen je jas nog maar hoeft op te hangen, die gelegen is op een rustige, maar gunstige locatie? Maak dan een afspraak voor een vrijblijvende bezichtiging!

Bijzonderheden:
Moderne tussenwoning v.v. houten kozijnen met HR++ glas
A-label
Luxe open keuken en moderne badkamer
Voorzien van 4 slaapkamers
Achtertuin met veranda gelegen op gunstige westen
Rustig gelegen nabij groen en stadse voorzieningen
Geen erfpacht maar volledig eigen grond!

Algemeen
Alle zich in deze aanbieding bevindende informatie is door ons met grote zorg samengesteld. Met betrekking tot deze informatie aanvaarden wij echter geen enkele aansprakelijkheid, noch kan aan deze informatie enig recht worden ontleend.
Lees meer

Kenmerken

Overdracht

Prijs per m2
€ 5.114
Aangeboden sinds
5 december 2025
Status
Verkocht onder voorbehoud
Aanvaarding
In overleg

Bouw

Soort woonhuis
Eengezinswoning, tussen woning
Soort bouw
Bestaande bouw
Bouwjaar
1993
Soort dak
Zadeldak
Staat van onderhouden binnen
Goed
Staat van onderhouden buiten
Goed

Oppervlakte en inhoud

Perceeloppervlakte
133 m2
Inhoud van de woning
361 m3
Oppervlakte externe bergruimte
6 m2

Indeling

Aantal kamers
5
Aantal slaapkamers
4
Aantal woonlagen
3
Voorzieningen
Tuin, schuur/berging, ventilatie, kabel-tv, buitenzonwering, dakraam

Buitenruimte

Balkon
Nee
Schuur/berging
Ja

Maandlasten berekenen

De maandlasten voor je woning bestaan uit meer dan alleen de hypotheeklasten. Hieronder vind je een overzicht van de bijkomende kosten en lasten. Zo weet je precies wat je huis per maand gaat kosten. En met de handige vergelijkers kun je ook nog eens snel de beste deals sluiten!

  • Kaart
  • Streetview