Verkocht

Reuzenhoek 40 4543 NC Zaamslag

126m2
Wonen
4
Kamers
501m2
Perceel
1901
Bouwjaar
Sfeervolle woning met zonnige tuin en schitterend vrij uitzicht
Ben jij op zoek naar een charmante woning waar je kunt genieten van rust, ruimte en het bui-tenleven? Dan is deze goed onderhouden tussenwoning in buurtschap Reuzenhoek precies wat je zoekt!
Deze sfeervolle woning beschikt over een woonkeuken, drie slaapkamers, een schuur, een fraaie overkapping én een zonnige tuin op het Zuidwesten. Daarnaast beschikt de woning over 3 eigen parkeerplaatsen aan de voorzijde. Hier woon je in alle rust, met prachtig vrij uitzicht over het omliggende polderlandschap.
De woning is gelegen in het idyllische buurtschap Reuzenhoek, omgeven door de uitgestrekte Zeeuws-Vlaamse polders en toch verrassend centraal. Binnen enkele kilometers bereik je Ter-neuzen en Zaamslag, waar je terecht kunt voor alle dagelijkse voorzieningen zoals supermark-ten, scholen, huisarts en sportfaciliteiten.
Kortom: Een ideale plek voor wie landelijk wil wonen met alle voorzieningen dichtbij. Deze woning is absoluut een bezichtiging waard!
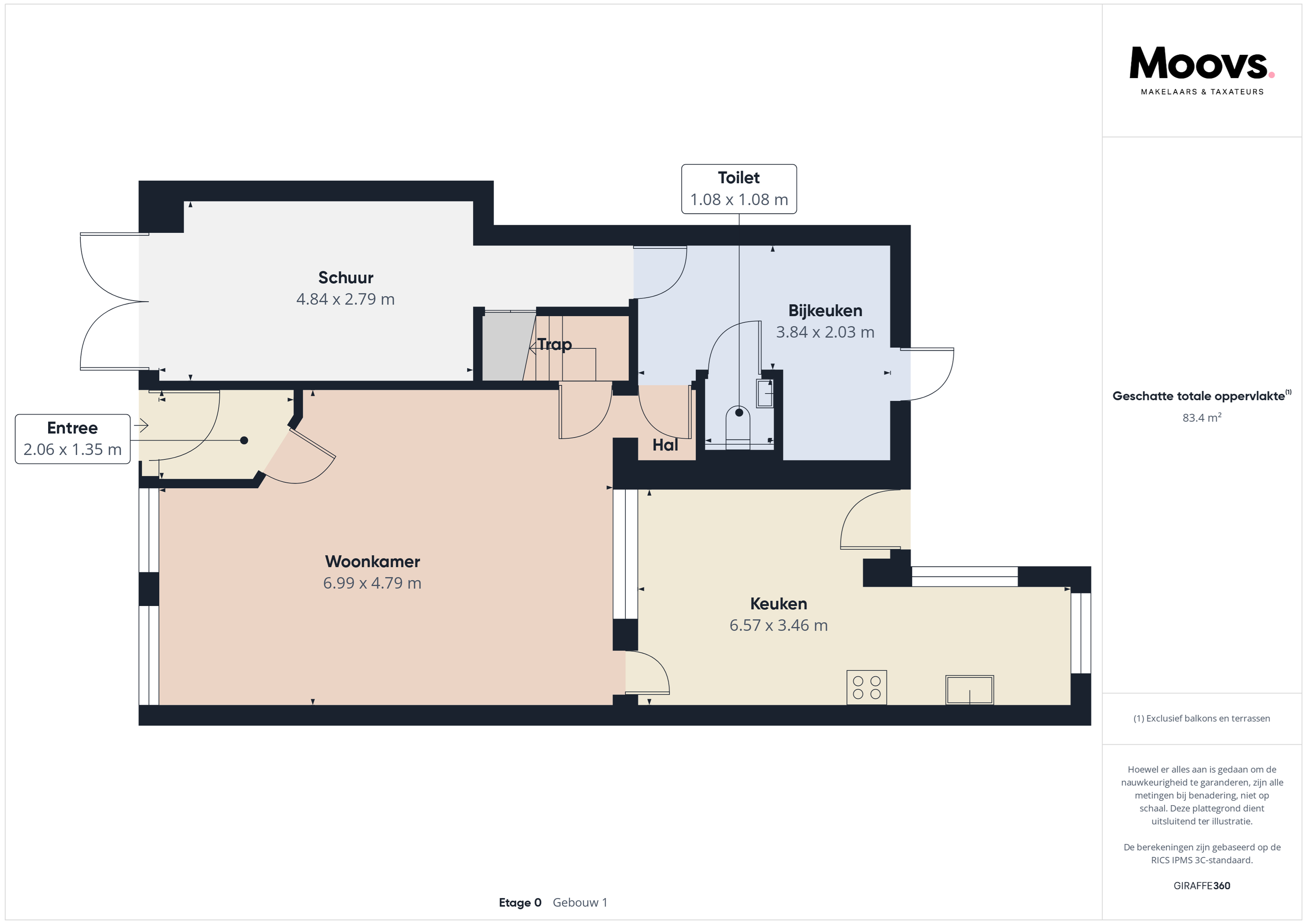
Begane grond
Via de inkomhal betreden we de gezellige woonkamer, afgewerkt met een nette laminaatvloer en gedeeltelijk voorzien van vloerverwarming. Aansluitend bevindt zich de ruime, aangebouwde woonkeuken. Dankzij de lichtkoepel is deze heerlijk licht en de keuken is uitgerust met alle benodigde inbouwapparatuur (waaronder een vernieuwde vaatwasser en kookplaat). Achter de woonkamer bevindt zich de bijkeuken met wasmachineaansluiting, bergruimte en een toiletruimte. Vanuit de bijkeuken is er toegang naar de schuur.
De schuur biedt volop ruimte voor het opbergen van fietsen en gereedschap, maar is ook geschikt als klusruimte.

Eerste verdieping
Op de eerste verdieping bevinden zich de overloop, drie slaapkamers en de badkamer. De ruime badkamer is voorzien van vloerverwarming en beschikt over een douche, ligbad, toilet en een wastafelmeubel.

Tweede verdieping
Via een vlizotrap is de bergzolder bereikbaar.

Tuin
De achtertuin is gelegen op het Zuidwesten, dus zon gegarandeerd! Onder de fraaie overkapping geniet je hier van het heerlijke buiten zijn. Vanuit de tuin is er prachtig vrij uitzicht over het omliggende polderlandschap – een heerlijke plek om te ontspannen of samen te komen met vrienden en familie. Achter de overkapping is nog een schuurtje aanwezig, ook hier is nog genoeg bergruimte voor het stallen van tuingereedschap.
Bij de woning is volop parkeerruimte aanwezig: Aan de voorzijde is een eigen parkeerstrook met plaats voor drie auto’s. Je kan dus ten alle tijden voor de deur parkeren.

Details
De woning is voorzien van houten kozijnen met dubbele beglazing (ramen aan de voorzijde recent vernieuwd)
Verwarming en warm water middels cv-ketel (november 2024)
Dak aan de voorzijde is vernieuwd in 2023

Lees meer

Verkoopgeschiedenis

Aangeboden sinds
27 mei 2025
Verkoopdatum
16 maart 2026
Looptijd
10 maanden

Kenmerken

Overdracht

Prijs per m2
€ 2.222
Aangeboden sinds
27 mei 2025
Status
Verkocht
Aanvaarding
In overleg

Bouw

Soort woonhuis
Eengezinswoning, geschakelde woning
Soort bouw
Bestaande bouw
Bouwjaar
1901
Soort dak
Mansardedak
Staat van onderhouden binnen
Goed
Staat van onderhouden buiten
Goed

Oppervlakte en inhoud

Perceeloppervlakte
501 m2
Inhoud van de woning
329 m3
Oppervlakte externe bergruimte
10 m2

Indeling

Aantal kamers
4
Aantal slaapkamers
3
Aantal woonlagen
2
Voorzieningen
Tuin, schuur/berging

Buitenruimte

Balkon
Nee
Schuur/berging
Ja

Maandlasten berekenen

De maandlasten voor je woning bestaan uit meer dan alleen de hypotheeklasten. Hieronder vind je een overzicht van de bijkomende kosten en lasten. Zo weet je precies wat je huis per maand gaat kosten. En met de handige vergelijkers kun je ook nog eens snel de beste deals sluiten!

  • Kaart
  • Streetview