Ridderhof 4 4401 JZ Yerseke

202m2
Wonen
5
Kamers
484m2
Perceel
1998
Bouwjaar
Yerseke, Ridderhof 4
Absoluut verrassend is deze vrijstaande woning met inpandige garage, serre en een royale aanbouw. Niet alleen verrassend door de ruimte en de duurzame energiebesparende voorzieningen maar ook door de vele mogelijkheden. Want dankzij de royale aanbouw is de woning uitermate geschikt voor een aan huis gebonden beroep, een hobby die veel ruimte vraagt, of eenvoudig aan te passen tot een mantelzorgwoning.
Ja mensen… deze woning heeft het allemaal!

In een rustige straat van het geliefde dorp Yerseke gelegen, op loopafstand van het schilderachtige natuurgebied Yerseke Moer, staat deze ruime vrijstaande woning uit 1998. Met een woonoppervlakte van 202 m2, een inhoud van 933 m3 en een perceel van 484 m2 eigen grond biedt dit huis volop leefruimte en mogelijkheden.

Indeling

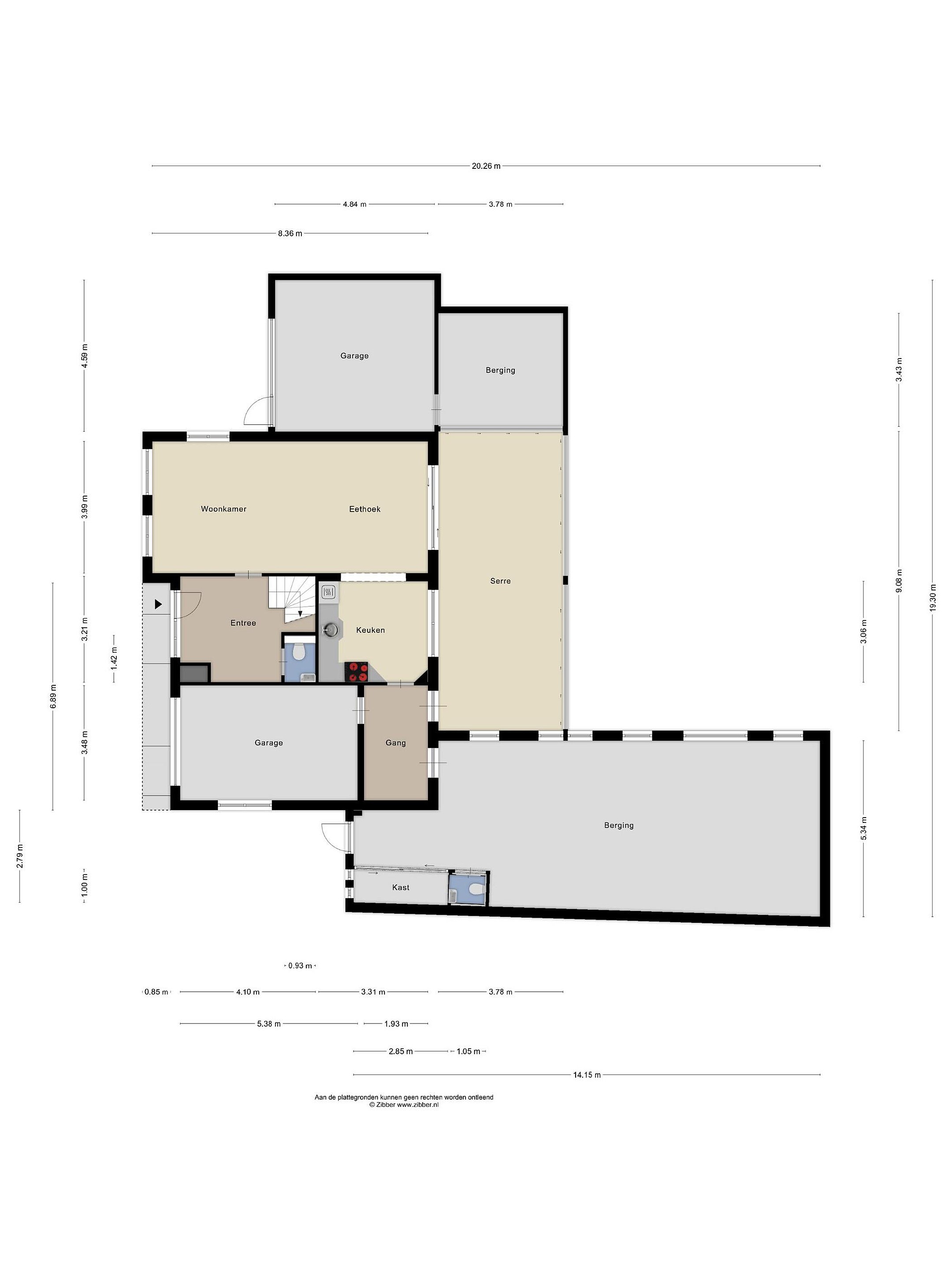
Begane grond:
entree met fraaie toiletruimte, lichte woonkamer met open keuken, praktische bijkeuken met doorloop naar de inpandige garage, serre en de royale aanbouw van maar liefst 72 m2, voorzien van een tweede toilet.

Verdieping:
vier slaapkamers en een moderne badkamer met inloopdouche, wastafelmeubel, derde toilet en urinoir.

Zolder:
een bergzolder voor extra opslagruimte.

Pluspunten:
Inpandige garage
Achtertuin op het zuidwesten, grenzend aan openbaar groen;
Duurzame investeringen: lucht-water warmtepomp, water-water warmtepomp, airco en zonnepanelen;
Kunststof kozijnen met geïntegreerde rolluiken;
Gehele begane grond voorzien van vloerverwarming;

Mogelijkheden:
Dankzij de royale aanbouw is de woning uitermate geschikt voor een aan huis gebonden beroep, een hobby die veel ruimte vraagt, of eenvoudig aan te passen tot een mantelzorgwoning.

Kortom:
Een ruime, duurzame en veelzijdige woning op een prachtige locatie in Yerseke.

Hoewel er geen foto’s beschikbaar zijn van de vertrekken, nodigen wij u van harte uit contact op te nemen voor meer informatie en/of een bezichtiging om de mogelijkheden zelf te ervaren.
Lees meer

Kenmerken

Overdracht

Prijs per m2
€ 3.094
Aangeboden sinds
10 december 2025
Status
Beschikbaar
Aanvaarding
In overleg

Bouw

Soort woonhuis
Eengezinswoning, vrijstaande woning
Soort bouw
Bestaande bouw
Bouwjaar
1998
Soort dak
Zadeldak
Staat van onderhouden binnen
Goed
Staat van onderhouden buiten
Goed

Oppervlakte en inhoud

Perceeloppervlakte
484 m2
Inhoud van de woning
933 m3
Oppervlakte externe bergruimte
13 m2
Oppervlakte gebouwgebonden buitenruimten
40 m2
Oppervlakte overige inpandige ruimten
49 m2

Indeling

Aantal kamers
5
Aantal slaapkamers
4
Aantal woonlagen
2
Voorzieningen
Tuin, rolluiken, buitenzonwering, schuifpui

Buitenruimte

Balkon
Nee
Schuur/berging
Nee

Maandlasten berekenen

De maandlasten voor je woning bestaan uit meer dan alleen de hypotheeklasten. Hieronder vind je een overzicht van de bijkomende kosten en lasten. Zo weet je precies wat je huis per maand gaat kosten. En met de handige vergelijkers kun je ook nog eens snel de beste deals sluiten!

  • Kaart
  • Streetview