Verkocht OV

Groeninx van Zoelenstraat 16 4401 KC Yerseke

97m2
Wonen
5
Kamers
109m2
Perceel
1961
Bouwjaar
Een toppertje zeg! Deze woning moet u echt zien! Koffers pakken en verhuizen maar: want hier hoeft namelijk niet veel meer gedaan te worden dan meteen genieten van dit huis.
Bij binnenkomst in de stijlvolle hal met toiletruimte wordt al meteen ervaren dat deze halfvrijstaande woning netjes onderhouden is en voorzien van vele extra’s. U mag hierbij denken aan een complete keuken uit 2024. En met een inductiekookplaat van 90 cm, met bridge functie, een tweetal vriezers, combioven, stoomoven, koelkast, cooker, vaatwasser en daarnaast nog 3500 liter kastinhoud ….. het domein van de echte keukenprinses!
Vervolgens nog een handige bijkeuken voor uw huishoudelijk apparatuur.
De woonkamer heeft veel lichtinval door de ramen in de zijgevel en de houtkachel zorgt voor extra sfeer en warmte.
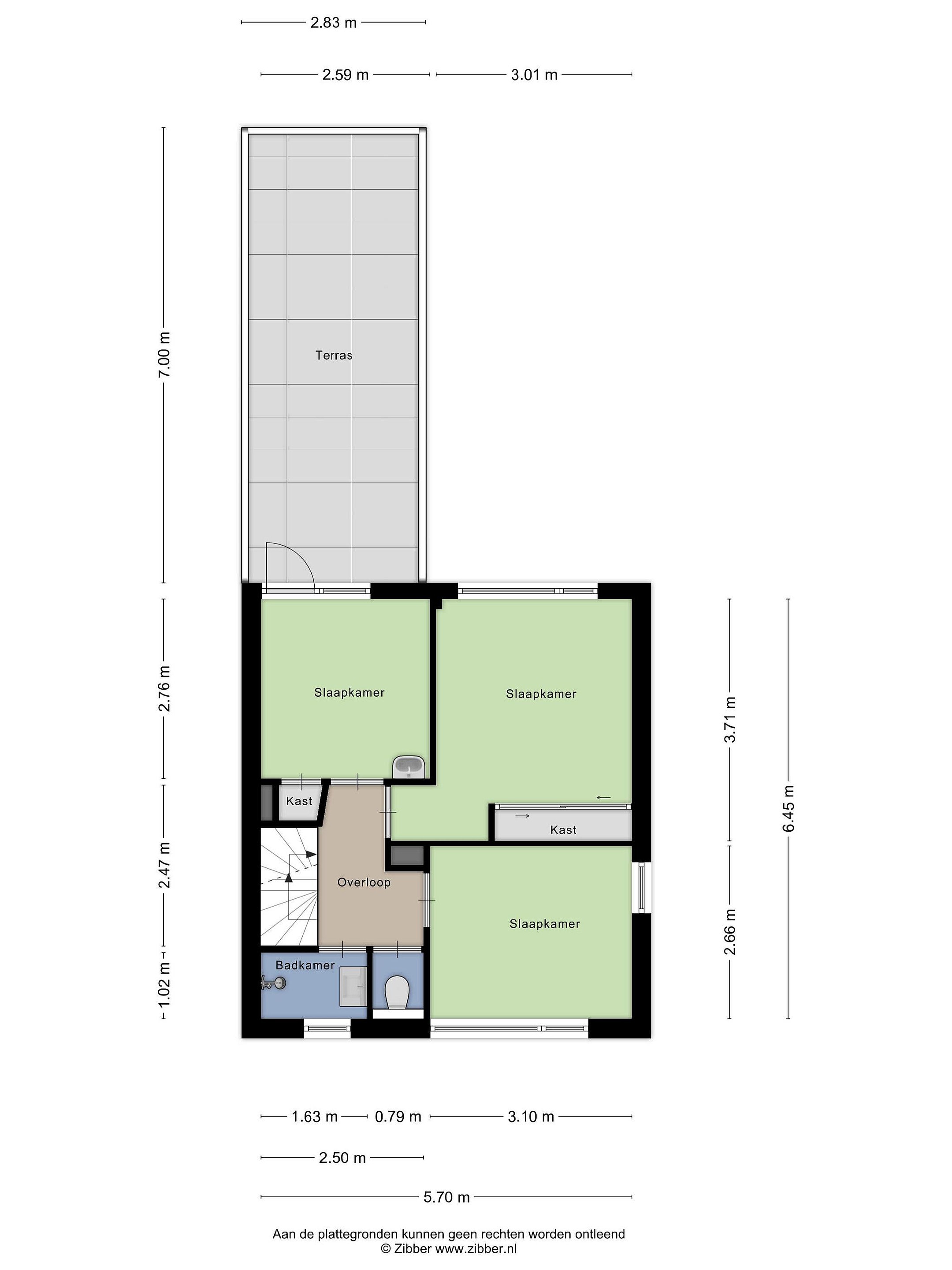
Op de eerste verdieping treft u een nette doucheruimte en een drietal slaapkamers waarvan één toegang biedt tot het dakterras. Bovendien een 2e toiletruimte en een vaste trap naar de 2e verdieping waar nog een zolderkamer is gerealiseerd.
Voor nog meer comfort en efficiënt energieverbruik is er zoneregeling op de verwarming toegepast en opgenomen in het systeem van domotica, evenals de rolluiken en de verlichting. Eenvoudig is zo alles te programmeren en te bedienen via de app op je telefoon. Kan het nog luxer?
Het is natuurlijk ook fijn dat muur-, vloer-, en dakisolatie zijn aangebracht maar ook isolerende beglazing waaronder triple glas.
Ook nog zonnepanelen geïnstalleerd die goed zijn voor een opbrengst van zo’n 3000 kWh per jaar.
Allemaal investeringen die achter de rug zijn.
Je zult begrijpen dat er nog veel meer te vertellen is en dat doen we graag tijdens de bezichtiging. Tot binnenkort!
Lees meer

Kenmerken

Overdracht

Prijs per m2
€ 2.844
Aangeboden sinds
8 oktober 2025
Status
Verkocht onder voorbehoud
Aanvaarding
In overleg

Bouw

Soort woonhuis
Eengezinswoning, hoek woning
Soort bouw
Bestaande bouw
Bouwjaar
1961
Soort dak
Zadeldak
Staat van onderhouden binnen
Goed
Staat van onderhouden buiten
Goed

Oppervlakte en inhoud

Perceeloppervlakte
109 m2
Inhoud van de woning
390 m3
Oppervlakte externe bergruimte
11 m2
Oppervlakte gebouwgebonden buitenruimten
19 m2

Indeling

Aantal kamers
5
Aantal slaapkamers
4
Aantal woonlagen
3
Voorzieningen
Tuin, schuur/berging, rolluiken, rookkanaal

Buitenruimte

Balkon
Nee
Schuur/berging
Ja

Maandlasten berekenen

De maandlasten voor je woning bestaan uit meer dan alleen de hypotheeklasten. Hieronder vind je een overzicht van de bijkomende kosten en lasten. Zo weet je precies wat je huis per maand gaat kosten. En met de handige vergelijkers kun je ook nog eens snel de beste deals sluiten!

  • Kaart
  • Streetview