Ambachtsherenlaan 26 4401 JS Yerseke

114m2
Wonen
5
Kamers
249m2
Perceel
1998
Bouwjaar
Waar beginnen we met vertellen over deze woning: de viertal slaapkamers, de keurig afgewerkte garage, de kunststof kozijnen, de royale afmetingen van de woonkamer, of de uitstekende ligging in deze toch al gewilde straat. Ja mensen… deze woning heeft het allemaal!

Bij aankomst is al meteen te zien dat er een extra brede oprit is en via de poort treffen we de ruim bemeten achtertuin aan. Gunstig gelegen op het westen met een fraaie onderhoudsarme berging en het is natuurlijk ook fijn dat aan het huis een uitvalzonnescherm is aangebracht.

Over de woning zelf valt ook genoeg te vertellen, zoals: volledig voorzien van hr++ beglazing, kunststof kozijnen, rolluiken, zonnepanelen, en een cv-ketel uit 2016.

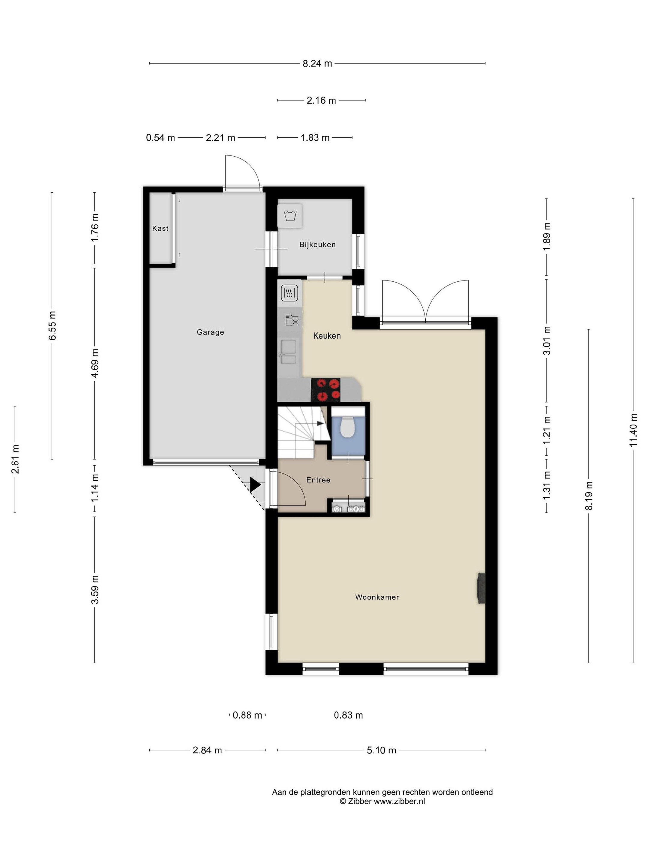
Zullen we eens naar binnen gaan? Via de hal met toilet komen we in de L-vormige woonkamer met een fraaie pvc vloer en veel lichtinval. Dit komt niet alleen door de ramen in de voor- en zijgevel maar ook de schuifpui aan de achterzijde geeft veel natuurlijk licht in huis, wat een superaangenaam woonklimaat creëert. Zo heb je ook een mooier zicht naar de zonnige tuin en je gezellige terras.

Ook de open keuken biedt extra ruimte omdat deze zich uitstrekt tot in de aanbouw met aansluitend de bijkeuken met doorloop naar de garage die ook beslist gezien mag worden.

Op de verdieping aangekomen treffen we een drietal slaapkamers aan en de badkamer met een inloopdouche, 2e toilet en wastafelmeubel.

Dan hebben we nog een vaster trap naar de 2e verdieping met opstelling cv-ketel en boiler en nog een 4e slaapkamer.

Je begrijpt natuurlijk wel dat er nog veel meer te vertellen is en dat doen we graag tijdens de bezichtiging. Zie jij jezelf hier al wonen? Dan ben je van harte welkom om te komen kijken!
Lees meer

Kenmerken

Overdracht

Prijs per m2
€ 4.042
Aangeboden sinds
5 maart 2026
Status
Beschikbaar
Aanvaarding
In overleg

Bouw

Soort woonhuis
Eengezinswoning, twee-onder-een-kap woning
Soort bouw
Bestaande bouw
Bouwjaar
1998
Soort dak
Zadeldak
Staat van onderhouden binnen
Goed
Staat van onderhouden buiten
Goed

Oppervlakte en inhoud

Perceeloppervlakte
249 m2
Inhoud van de woning
470 m3
Oppervlakte externe bergruimte
13 m2
Oppervlakte overige inpandige ruimten
18 m2

Indeling

Aantal kamers
5
Aantal slaapkamers
4
Aantal woonlagen
3
Voorzieningen
Tuin, ventilatie, rolluiken, kabel-tv, glasvezel, buitenzonwering, schuifpui, dakraam

Buitenruimte

Balkon
Nee
Schuur/berging
Nee

Maandlasten berekenen

De maandlasten voor je woning bestaan uit meer dan alleen de hypotheeklasten. Hieronder vind je een overzicht van de bijkomende kosten en lasten. Zo weet je precies wat je huis per maand gaat kosten. En met de handige vergelijkers kun je ook nog eens snel de beste deals sluiten!

  • Kaart
  • Streetview