Verkocht OV

Aak 7 1771 GA Wieringerwerf

119m2
Wonen
5
Kamers
174m2
Perceel
1974
Bouwjaar
Familiewoning met energielabel A

We hebben losse bezichtigingen door de week en een open huis op zaterdag 22 november tussen 12:00 en 13:00!

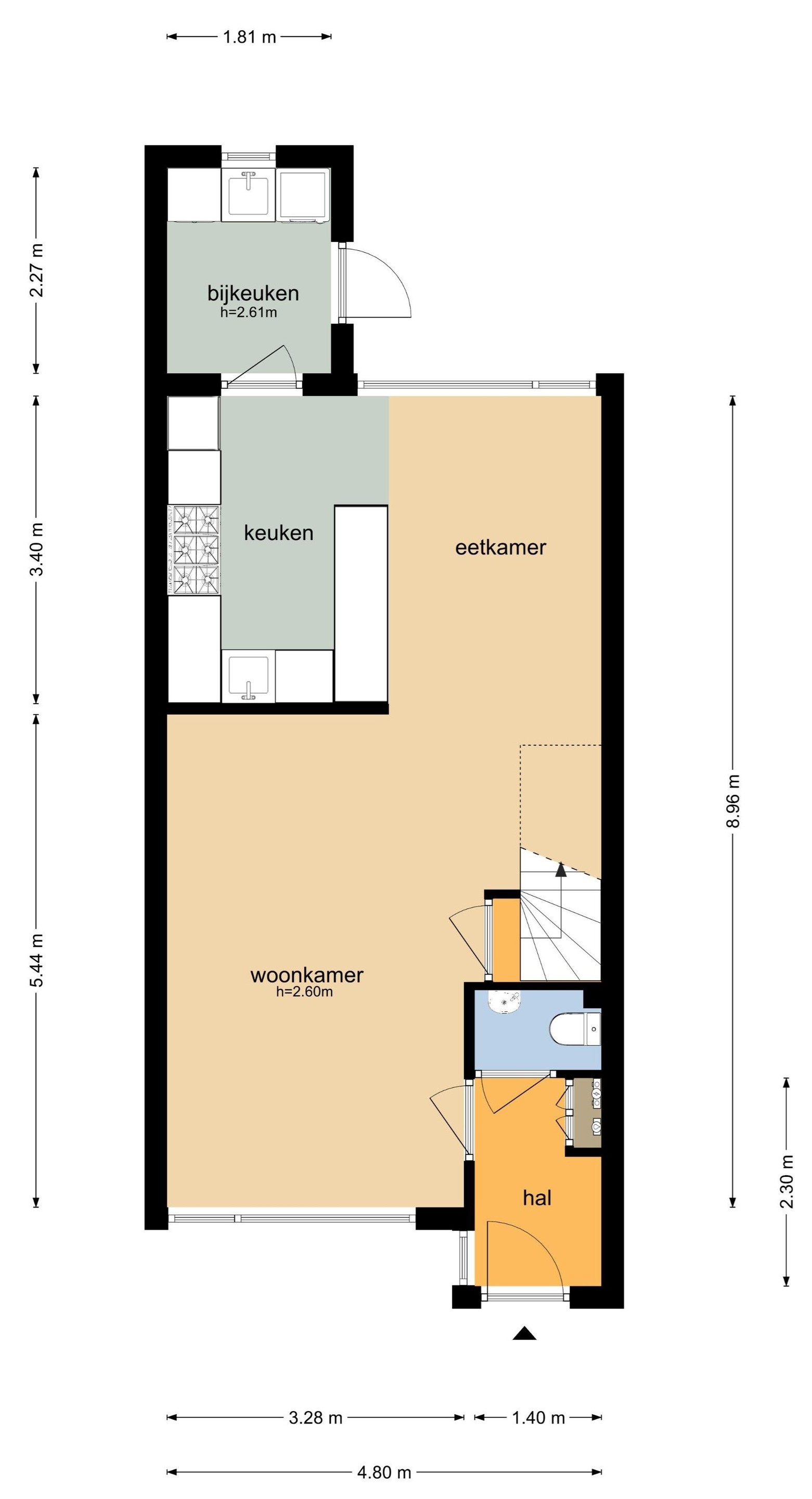
Je zoekt een familiewoning, energiezuinig, 4 goede slaapkamers en niet te hoeven klussen? Dan is dit jouw uitgelezen kans! Deze complete tussenwoning is namelijk al helemaal af. Beneden vind je een ruime woonkamer welke doorloopt naar de moderne open keuken met inbouwapparatuur. Praktische bijkeuken met ruimte voor de wasmachine en wasdroger en deur naar de achtertuin waar je heerlijk kunt zitten op het terras tussen de beplanting. Boven zijn 3 slaapkamers en een nieuwe badkamer met douche, toilet en wastafelmeubel. Op zolder is een 4e grote slaapkamer gemaakt welke vergroot is door middel van een kunststof dakkapel. Deze kamer is voorzien van een inloopkast.

Woning is gelegen aan een doorgaande weg in de woonwijk 'Schepenwijk'. Kindvriendelijke woonwijk met verschillende voorzieningen zoals scholen, sportvelden en winkels op fietsafstand in het centrum van Wieringerwerf. Wieringerwerf is een dorp direct gelegen aan de A7 die u snel naar Hoorn en door naar Amsterdam brengt.

Je komt toch ook kijken? Dit kan bij Noort Makelaars door de week en ook op zaterdag!

Loop je alvast mee door de woning?
Via de uitgebouwde voorentree komt u binnen in de hal met de meterkast en het toilet. Het toilet is in 2021 vernieuwd en heeft mechanische ventilatie. De lichte woonkamer heeft een open keuken en grote ramen voor veel lichtinval. De keuken met kookschiereiland is modern en heeft onder andere een koel-vries combinatie vaatwasser en groot 6-pits gasfornuis. Achter de keuken ligt de bijkeuken met plek voor de wasmachine en droger. De tuin is keurig ingericht met sierbestrating, een heerlijk terras en beplanting. Achter in de tuin staat een stenen berging met elektra en deur naar de steeg.

Op de eerste verdieping vind je de overloop met toegang naar de drie slaapkamers en de nieuwe badkamer (2021) voorzien van het tweede toilet, wastafelmeubel en de douche. De badkamer is eveneens voorzien van mechanische ventilatie.

Vanuit de overloop komt u via de vaste trap op de voorzolder met bergruimte en cv-opstelling. De vierde slaapkamer op zolder heeft een grote dakkapel en aan de voorzijde vind je de een fijne inloopkast.

De belangrijkste punten nog even op een rij:
- Zeer nette woning in een rustige straat
- Energielabel A
- 9 zonnepanelen (2023)
- Vier slaapkamers
- Volledig voorzien van dubbel glas
- Voortuin én achtertuin met achterom
- CV-ketel vernieuwd in 2024 (Intergas Extreme)
- Toilet vernieuwd in 2021
- Badkamer vernieuwd in 2021
- Vrij parkeren
- Eigen grond
- Oplevering in overleg
Lees meer

Kenmerken

Overdracht

Prijs per m2
€ 2.815
Aangeboden sinds
10 november 2025
Status
Verkocht onder voorbehoud
Aanvaarding
In overleg

Bouw

Soort woonhuis
Eengezinswoning, tussen woning
Soort bouw
Bestaande bouw
Bouwjaar
1974
Soort dak
Zadeldak
Staat van onderhouden binnen
Goed
Staat van onderhouden buiten
Goed

Oppervlakte en inhoud

Perceeloppervlakte
174 m2
Inhoud van de woning
401 m3
Oppervlakte externe bergruimte
10 m2

Indeling

Aantal kamers
5
Aantal slaapkamers
4
Aantal woonlagen
3
Voorzieningen
Tuin, schuur/berging, ventilatie, kabel-tv, glasvezel

Buitenruimte

Balkon
Nee
Schuur/berging
Ja

Maandlasten berekenen

De maandlasten voor je woning bestaan uit meer dan alleen de hypotheeklasten. Hieronder vind je een overzicht van de bijkomende kosten en lasten. Zo weet je precies wat je huis per maand gaat kosten. En met de handige vergelijkers kun je ook nog eens snel de beste deals sluiten!

  • Kaart
  • Streetview