Verkocht

Baron van der Heijdenln 1B 7234 SB Wichmond

214m2
Wonen
5
Kamers
1163m2
Perceel
1968
Bouwjaar
Grenzend aan de Baakse Beek aan de rand van het dorp nabij natuur en landgoederen gelegen ROYAAL VRIJSTAAND WOONHUIS MET GASTENVERBLIJF, ruime geïsoleerde garage, carport voor meerdere auto’s, grote berging en achtertuin met vrije ligging en uitzicht op bos van landgoed Hackfort en veel groen.


Indeling

Woning nummer 1 B:

Begane grond: entree, portaal met meterkast en kastenwand. Hal met trapopgang. Riante woonkamer met werkhoek, rookkanaal en panoramisch uitzicht op de achtertuin grenzend aan de Baakse Beek.

Ruime, lichte open keuken met inbouwapparatuur waaronder inductie kookplaat. Bijkeuken met aansluiting voor wassen en drogen en zij-entree. Keuken en bijkeuken voorzien van vloerverwarming. Slaapkamer op begane grond met aangrenzende badkamer voorzien van ligbad, douche, wastafel en infrarood sauna (ter overname). De moderne toiletruimte met hangend closet en fonteintje is bereikbaar zowel vanuit de badkamer alsook vanuit de hal.

1e Verdieping: overloop met bergruimte. Ruime slaapkamer met kastruimte, wastafel met warm en koud water. Groot dakkapel. Berging met CV-opstelling (Remeha, 2025).

2e Verdieping: vlizotrap naar bergzolder.

Gastenverblijf/B&B nummer 1C:

Begane grond: entree/berging, hal met trapopgang. Badkamer met douche, wastafel, toilet en aansluiting wasmachine.

1e Verdieping: Woonkamer met open keuken. Keuken voorzien van 4 pits elektrische kookplaat, afzuigkap en koelkast. Slaapkamer.


Kenmerken:

Bouwjaar 1968, uitgebouwd in 2000
De woning heeft 2 huisnummers te weten nummer 1B en 1C
Dubbele aansluiting TV en internet, KPN (aangesloten) en Delta (niet aangesloten, wel aanwezig)
Inhoud ca. 643 m3
Woonoppervlakte ca. 214 m2
Totale perceeloppervlakte 1.163 m2
Details
De woning is grotendeels geïsoleerd
Er zijn 16 zonnepanelen geïnstalleerd
Het energielabel van woning 1B is label A en van woning 1C is label B
Verwarming middels Remeha CV-ketel bouwjaar 2025. De keuken en bijkeuken zijn voorzien van een comfortabele vloerverwarming.
De keuken heeft (deels elektrisch bedienbare) zonnescreens en het kamerraam een rolluik.

Het buitenschilderwerk in 2024 uitgevoerd, alle houten kozijnen zijn gemaakt van hardhout.
Bijna de gehele woning is onderkelderd met betonnen vloer met diepte van ruim 1 meter. In deze kruipruimte is Tonzon isolatie aangebracht. De kruipruimte is altijd droog.


Riante buitenruimte, achtertuin met veel privacy en grenzend aan de beek. Het perceel biedt veel mogelijkheden voor diverse hobby’s en activiteiten.

Diverse terrassen om zowel van de zon te genieten of in de zomer de schaduw op te kunnen zoeken. Het gastenverblijf heeft een eigen terras en eigen dubbele parkeerplaats voor meerdere auto’s waardoor er optimale privacy is ten opzichte van elkaar.

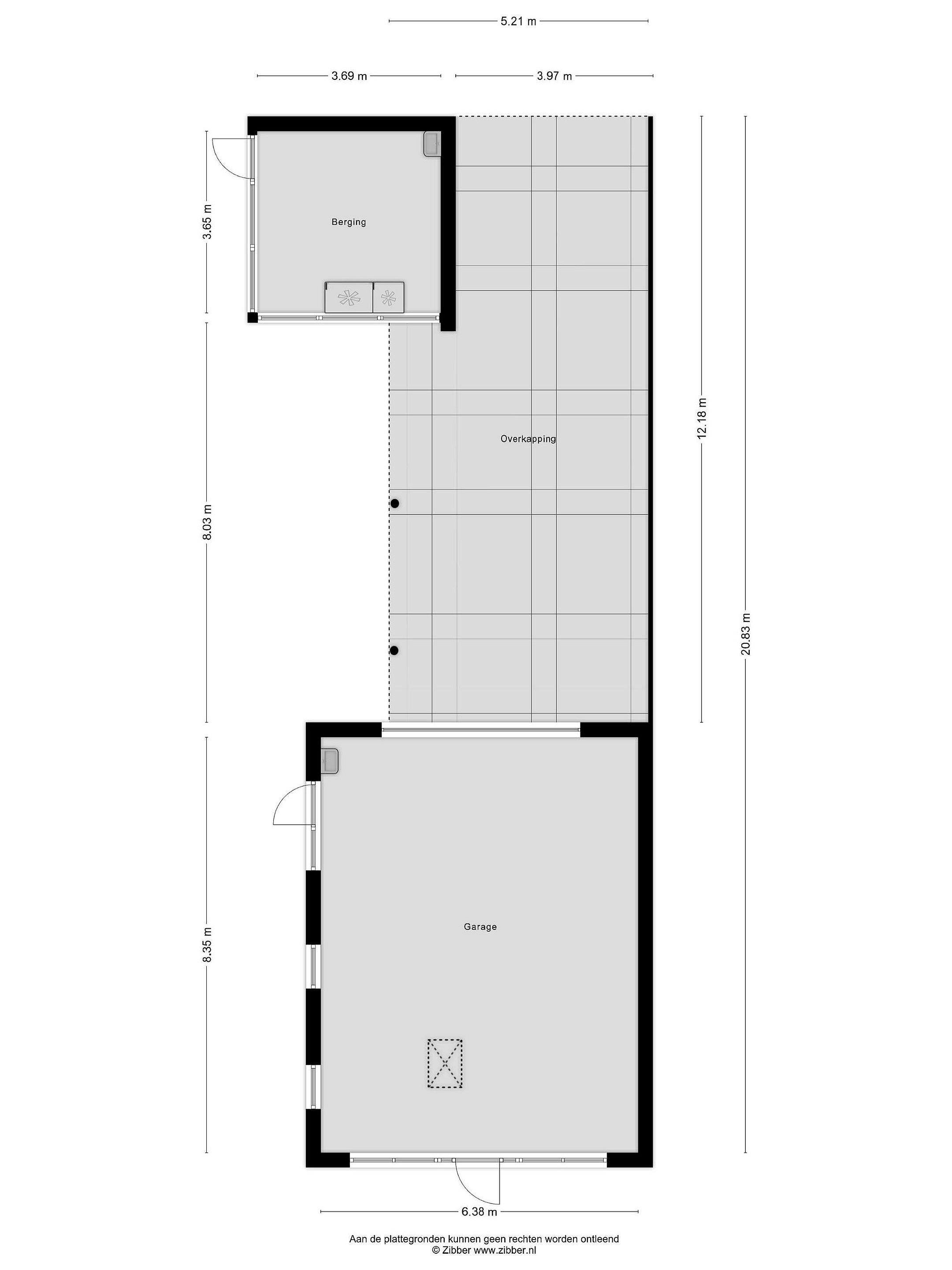
Er is een ruime overkapping/carport met plek voor wel 4 auto’s. De grote schuur/garage met ruim 50 m2 aan oppervlakte is voorzien van wateraansluiting, krachtstroom en er is een gasaansluiting.
De schuur is degelijk gebouwd met geïsoleerde spouwmuren, geïsoleerde betonvloer, geïsoleerd dak en isolerende beglazing, brede garagedeur en met volledige verdiepingsvloer waardoor er een grote bergzolder beschikbaar is.

De grote droge berging (ca. 16 m2) beschik over elektra en water en de dakbedekking is in 2020 vernieuwd.

De carport en achtertuin is af te sluiten middels een grote schuifdeur aan de voorzijde. Aan de voorkant van de woning is een dierenweide met nachthok. De kippen zorgen voor de dagelijks verse eieren.

Wichmond is een rustig en gemoedelijk dorp met voldoende activiteiten waaronder buurtverenigingen, sportclubs, basisschool en een bakker. Het sportcomplex met hal, kantine, voelbalvelden, tennisbanen etc is gelegen op ca. 1 kilometer afstand.
Voor de dagelijkse boodschappen is Vorden op enkele autominuten bereikbaar (ca. 4 kilometer). De historische Hanzestad Zutphen is op 5 kilometer afstand gelegen en biedt een ruim aanbod aan winkels, musea, cultuur en een trein- en busstation.

De buurtbus (lijn 193, Arriva) rijdt elk uur (tussen 8 en 18:30 uur) naar o.a. Zutphen. De halte is op slechts ca. 100 meter afstand van de woning.

Aanvaarding in overleg.

Lees meer

Verkoopgeschiedenis

Aangeboden sinds
28 november 2025
Verkoopdatum
13 mei 2026
Looptijd
5 maanden

Kenmerken

Overdracht

Prijs per m2
€ 3.715
Aangeboden sinds
28 november 2025
Status
Verkocht
Aanvaarding
In overleg

Bouw

Soort woonhuis
Eengezinswoning, vrijstaande woning
Soort bouw
Bestaande bouw
Bouwjaar
1968
Soort dak
Zadeldak
Staat van onderhouden binnen
Goed
Staat van onderhouden buiten
Goed

Oppervlakte en inhoud

Perceeloppervlakte
1163 m2
Inhoud van de woning
793 m3
Oppervlakte externe bergruimte
103 m2

Indeling

Aantal kamers
5
Aantal slaapkamers
3
Aantal woonlagen
2
Voorzieningen
Tuin, schuur/berging, rookkanaal

Buitenruimte

Balkon
Nee
Schuur/berging
Ja

Maandlasten berekenen

De maandlasten voor je woning bestaan uit meer dan alleen de hypotheeklasten. Hieronder vind je een overzicht van de bijkomende kosten en lasten. Zo weet je precies wat je huis per maand gaat kosten. En met de handige vergelijkers kun je ook nog eens snel de beste deals sluiten!

  • Kaart
  • Streetview