Hoofdweg 134 7676 AJ Westerhaar-Vriezenveensewijk

269m2
Wonen
8
Kamers
4749m2
Perceel
1954
Bouwjaar
Hoe is het mogelijk ……… wonen midden in Westerhaar – Vriezenveensewijk
op een kavel van maar liefst 4.749 m2 !!!

Alle voorzieningen bij de hand: school, gezondheidscentrum, winkels en sport en dit allemaal op loopafstand.

Deze statige woning uit 1954 heeft in 2015 een facelift gehad en is voorzien van alle gemakken, waarbij veel aandacht is besteed aan zichtlijnen naar de achterliggende tuin met vijverpartij. Daarnaast zijn er energiebesparende maatregelen genomen en is de woning voorzien van 17 zonnepanelen en 2 oplaadpunten voor uw elektrische auto.
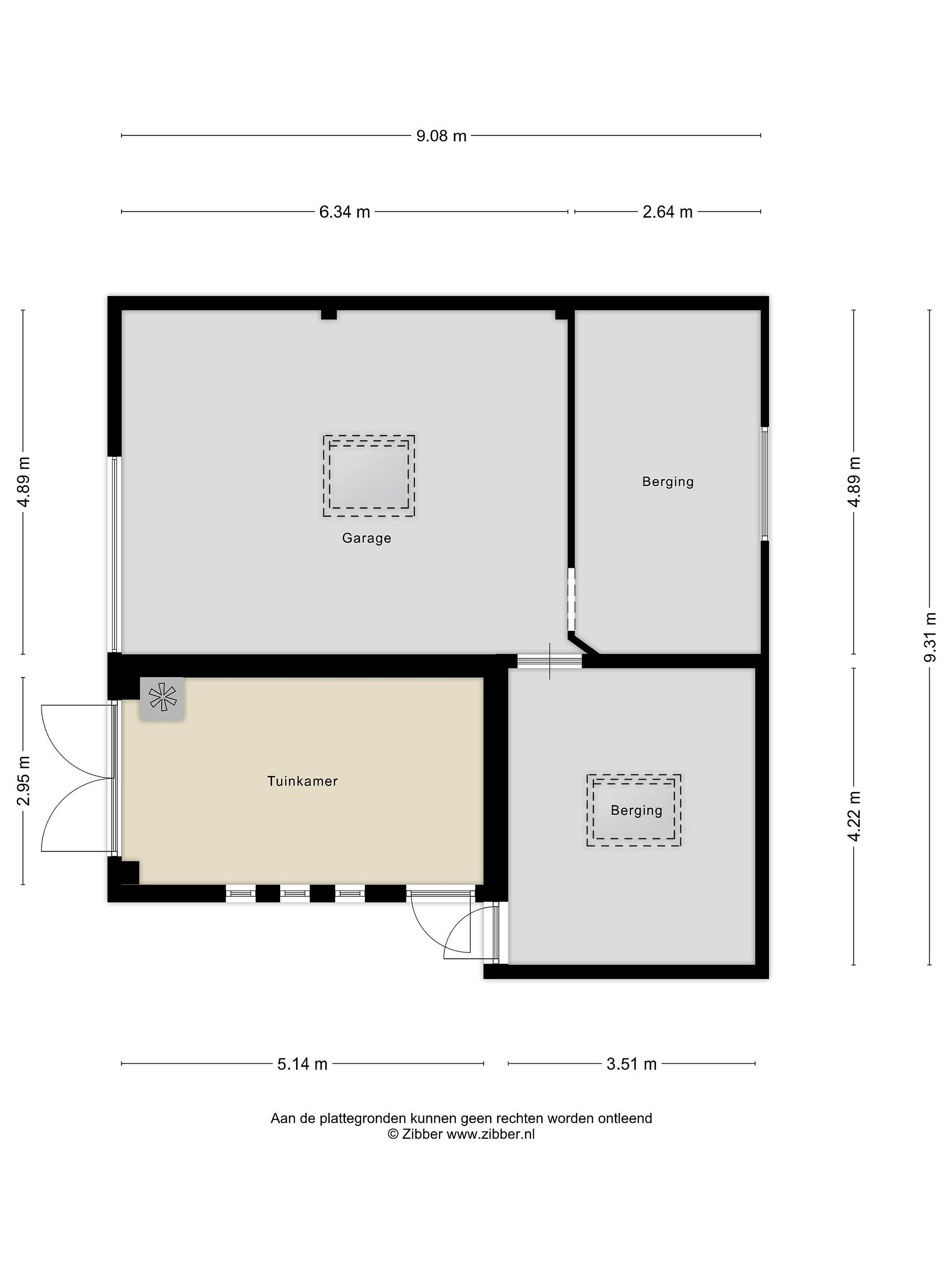
Naast de woning is nog een garage gelegen en een praktijkruimte met bergruimte, dit alles met ruime afmetingen.

Bent u op zoek naar een grote gezinswoning op een ruime kavel gelegen, met alle voorzieningen in de directe omgeving dan nodigen wij u uit om een afspraak te maken voor een bezichtiging.
Begane grond
Middels het natuurstenen pad komt u via een karaktervolle voordeur in een lichte hal waar ook het toilet is gesitueerd. Van hieruit betreedt u de woonkamer met een zee aan ruimte, verdeeld in een studiehoek, relax-ruimte met t.v. en uitzicht op de tuin, een eethoek en ook van hieruit weer uitzicht op de tuin en dit allemaal met sfeerverlichting en een haardpartij.
Vanuit de eethoek kunt u via een schuifpui naar het achterliggend terras en van daaruit door de tuin struinen om te genieten van deze onder architectuur aangelegde tuin.
Terug in de keuken met kookeiland kunt u uw kookkunsten tonen.
De keuken heeft naast de gebruikelijke inbouwapparatuur ook een quooker, stoomoven en zelfs een wijnkoeler. Vanuit de keuken krijgt u toegang tot de bijkeuken met witgoedopstelling, de meterkast en de kelder.


Eerste verdieping
Middels statige trap in de hal wordt de eerste verdieping bereikt. Ook hier een lichte overloop van waaruit de 4 slaapkamers te bereiken zijn en de luxe badkamer. U kunt hier baden in een bubbelbad, opmaken voor de spiegel met spiegelverwarming en dit allemaal onder het genot van sfeervolle muziek.
Naast deze badkamer is er een tweede badkamer met een massagejet-douche, ook hier weer muziek en telefonie.

Tweede verdieping
We gaan verder middels een vaste trap naar de tweede verdieping, hier hebben we slaapkamer 5, 6 en 7 !! Dit geeft maar aan dat deze woning geschikt is voor een groot gezin.

Tuin
Wanneer u na een drukke dag thuiskomt kunt u uw hoofd leegmaken in de riante tuin met vijverpartij waar de imposante Acacia de blikvanger is.
Sproeien hoeft u niet zelf te doen, want in de tuin is een sproei-installatie aangelegd met pup-ups, aangesloten op een eigen bron waar ook het water in de vijver mee op peil gehouden kan worden. Achterin de tuin is een kapschuur gesitueerd wat natuurlijk gemakkelijk is om uw tuinmateriaal droog te kunnen wegzetten.

Details
Bouwjaar 1954, grote verbouwing in 2015
Woonoppervlak 269 m2
Inhoud maar liefst 1.023 m3
Kavel midden in Westerhaar-Vriezenveensewijk: 4.749 m2

Luxe inbouwkeuken met kookeiland
Luxe doucheruimte
Alarmsysteem in combinatie met de meldkamer
Besproeiingssysteem in de tuin met pup-ups

Ruime garage met praktijkruimte en berging
Garage met elektrisch bedienbare overheaddeur
Twee oplaadpunten voor elektrische auto
17 Zonnepanelen
Energielabel C

Aanvaarding in overleg
Bij koop is een waarborgsom/bankgarantie vereist van 10% van de koopsom

Deze presentatie is met zorg samengesteld, echter de gegevens hebben uitsluitend een indicatief karakter. Aan eventuele onjuistheden kunnen geen rechten worden ontleend.

Lees meer

Kenmerken

Overdracht

Prijs per m2
€ 3.253
Aangeboden sinds
19 september 2025
Status
Beschikbaar
Aanvaarding
In overleg

Bouw

Soort woonhuis
Eengezinswoning, vrijstaande woning
Soort bouw
Bestaande bouw
Bouwjaar
1954
Staat van onderhouden binnen
Uitstekend
Staat van onderhouden buiten
Uitstekend

Oppervlakte en inhoud

Perceeloppervlakte
4749 m2
Inhoud van de woning
1023 m3
Oppervlakte externe bergruimte
78 m2
Oppervlakte gebouwgebonden buitenruimten
32 m2
Oppervlakte overige inpandige ruimten
7 m2

Indeling

Aantal kamers
8
Aantal slaapkamers
7
Aantal woonlagen
4
Voorzieningen
Tuin, schuur/berging, ventilatie, glasvezel

Buitenruimte

Balkon
Nee
Schuur/berging
Ja

Maandlasten berekenen

De maandlasten voor je woning bestaan uit meer dan alleen de hypotheeklasten. Hieronder vind je een overzicht van de bijkomende kosten en lasten. Zo weet je precies wat je huis per maand gaat kosten. En met de handige vergelijkers kun je ook nog eens snel de beste deals sluiten!

  • Kaart
  • Streetview