Verkocht

Spoorpad 180 2741 NJ Waddinxveen

148m2
Wonen
5
Kamers
88m2
Perceel
2022
Bouwjaar
Kom kijken bij deze verrassende split-level woning, want hier is het heel fijn wonen!
Deze royale woning, gelegen aan de rand van het winkelcentrum Gouweplein, beschikt over een woonkeuken en woonkamer met een totaal oppervlak van bijna 60m2. Er zijn drie slaapkamers en een badkamer op de tweede verdieping en een vierde slaapkamer met tweede badkamer op de begane grond. Het is bij deze woning door de slimme indeling heel goed mogelijk om een kantoor aan huis te realiseren. Door de grote en vele ramen is de hele woning heerlijk licht en door de hoge plafonds ervaar je volop leefruimte. Dit huis is energiezuinig gebouwd, heeft bovendien 10 zonnepanelen en daarmee energielabel A+++.
Verder beschik je bij dit woonhuis over een groot dakterras, eigen parkeerplek in de parkeerkelder en een aparte berging in de benedenbouw. Kinderen kunnen veilig spelen in de gezamenlijke daktuin.
Begane grond
Je komt bij deze woning binnen in een ruime gang, waarbij direct de hoogte van 3,18meter opvalt. Op alle verdiepingen is vloerverwarming en eenzelfde pvc vloer aanwezig. Aan de linkerzijde is een kastenwand gerealiseerd met ook de meterkast aan deze zijde en aan het einde van de gang bevindt zich een toiletruimte met vrij hangend closet en fontein en ook de trapopgang naar de eerste verdieping is hier. Rechts in de gang is er toegang tot een royale slaapkamer van ongeveer 14m2. Juist deze kamer zou desgewenst ook heel goed dienst kunnen doen als kantoorruimte, werkkamer of hobbyruimte. De slaapkamer beschikt over een eigen badkamer met douchecabine en wastafel.

Eerste verdieping
Op de eerste verdieping kom je aan de voorzijde eerst in de ruime woonkeuken. Het plafond met een hoogte van 3,80meter en de grote ramen geven een enorme beleving van ruimte en licht. De keuken heeft een rechte opstelling met daarin onder meer een vaatwasser, koel-/vriescombi, kokend water kraan, koffiemachine en combi-oven. In het kookeiland bevindt zich een inductiekookplaat met geïntegreerde afzuiging en wijnkoelkast. Er is veel opbergruimte in de keuken door toepassing van diverse trekladen en de aanwezigheid van een apothekerskast.
Via een korte trap kom je in het woonkamerdeel. Ook hier ervaar je weer veel leefruimte. Er zijn openslaande deuren naar het ruime terras en er is een sfeervolle schouw met sierhaard.
Een open trap geeft vanuit de woonkamer toegang tot de tweede verdieping.


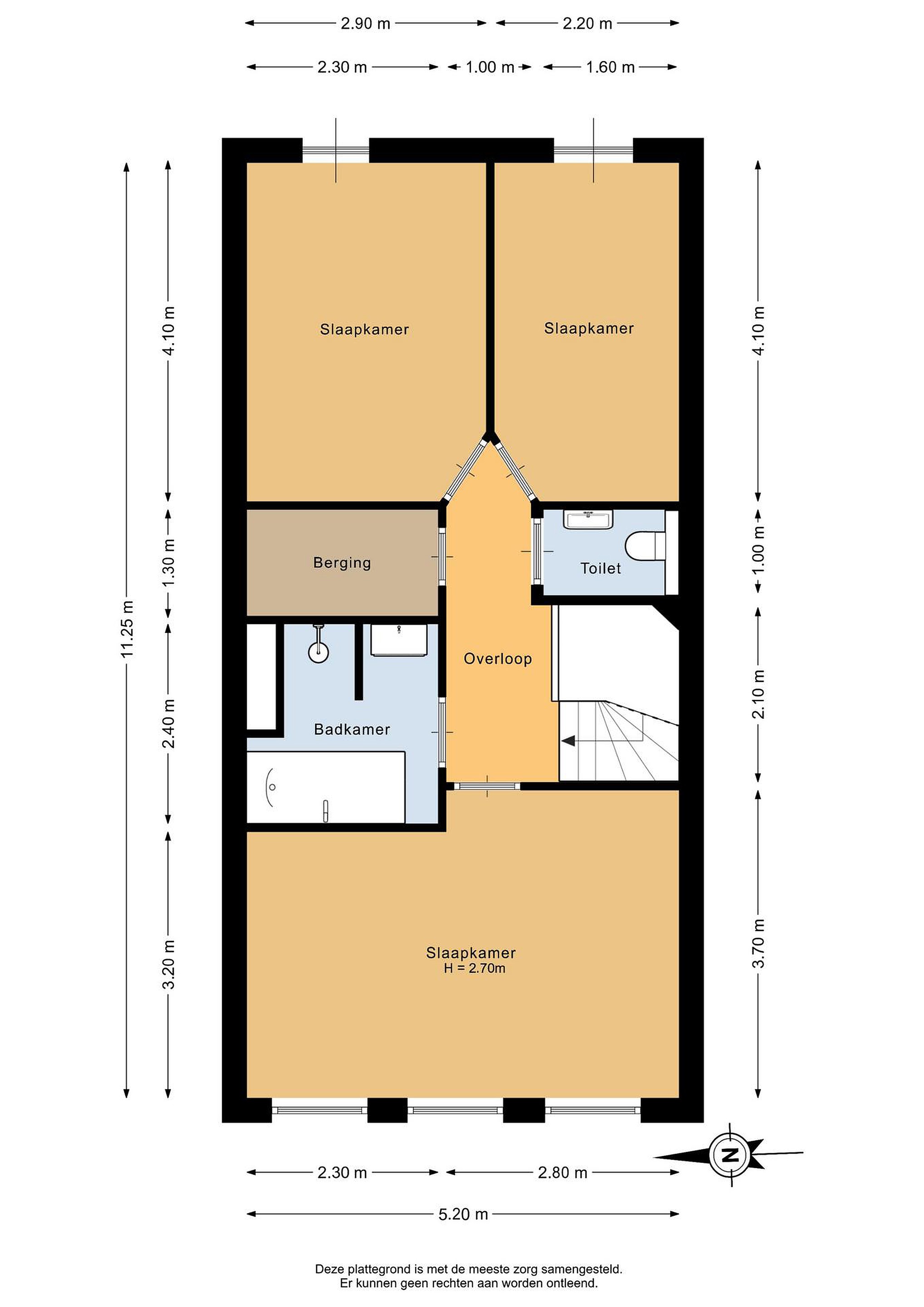
Tweede verdieping
Vanaf de centrale overloop is er toegang tot drie royale slaapkamers, de badkamer, het separate toilet en een berging. De badkamer is modern afgewerkt en voorzien van een inloopdouche, een ligbad en een wastafel met meubel. Het aparte toilet is eveneens modern betegeld en beschikt over een vrij hangend closet en fontein. De aanwezige berging is heel fijn, doordat hiermee veel spullen netjes opgeborgen kunnen worden en tegelijkertijd makkelijk bereikbaar zijn. Dit is ook de plek waar de wasmachineaansluiting is.

Details
Gebouwd in 2022, gasloos, geheel geïsoleerd, onder meer met HR ++ beglazing,
Voorzien van 10 zonnepanelen.
Energielabel A+++.
Zeer goede geluidsisolatie.
Voorzien van Warmte Koude Opslag (WKO installatie). Dit systeem zorgt op energiezuinige wijze voor een aangenaam klimaat in de zomer en de winter. Door de WKO installatie kan de vloerverwarming die op alle woonlagen aanwezig is de woning verwarmen en koelen.
Verrassend ruime woning met speelse indeling.
Mogelijkheid voor kantoor/praktijk aan huis door de aanwezigheid van een kamer op de begane grond.
Heerlijk lichte woning door de aanwezigheid van veel ramen.
Split-level woonkeuken en woonkamer met een totaal oppervlak van bijna 60m2.
Groot dakterras van 28m2.
Eigen parkeerplek in de parkeergarage.
Bijdrage VvE bewonersgarage: € 41,10 per maand
Bijdrage VvE daktuin/portieken (incl. liften): € 97,45 per maand.
De oplevering is in overleg, indicatie juni 2026.

Parkeergarage en berging:
In de kelder van het complex beschik je in het privégedeelte over een gereserveerde parkeerplek voor de auto. Deze is bereikbaar met de lift of met een trap. De parkeergarage is gescheiden van de openbare parkeerruimte. Je parkeert samen met de medebewoners in een aparte parkeergarage waar alleen bewoners kunnen parkeren. In de onderbouw beschik je eveneens over een eigen berging. De berging heeft een vloeroppervlak van 6,60m2.

Ligging:
Deze drie-laags woning ligt aan de rand van winkelcentrum Gouweplein waarbij het privéterras aansluit op de grote daktuin. Deze daktuin mag gebruikt worden door de bewoners van de aangrenzende woningen.
Het centrum van Waddinxveen is een levendig gebied om te wonen met sfeervolle straatjes en pleintjes. Op vrijdag is er de gezellige weekmarkt. Verder zijn de vele winkels letterlijk onder handbereik, zoals onder andere Hema, diverse supermarkten en diverse kleinere winkels en eetgelegenheden. Naast het winkelcentrum vind je de kinderboerderij in het Burgemeester Warnaarplantsoen. Waddinxveen is gunstig gelegen nabij de grote steden zoals Rotterdam, Den Haag, Leiden en Utrecht. De A12 en A20 zijn snel bereikbaar. Het treinstation bevindt zich op slechts 100 meter afstand en daarmee is de bereikbaarheid met OV optimaal, een gezondheidscentrum ligt op ongeveer 500 meter afstand.

Afmetingen:
Woonkamer    6,30 x 5,20m    (32,75m2)
Keuken    5,20 x 5,00m    ( 26,00m2)
Slaapkamer 1   5,20 x 3,70/3,20m  (18,00m2)
Slaapkamer 2   4,10 x 2,90m    (11,70m2)
Slaapkamer 3 4,10 x 2,20m   ( 8,70m2)
Badkamer    2,30 x 2,40m   ( 5,50m2)
Inpandige berging   2,30 x 1,30m    ( 3,00m2)
Slaapkamer 4    3,97 x 3,49m    (13,85m2)
Badkamer 2    1,89 x 2,13/1,00m  ( 2,80m2)
Dakterras   5,30 x 5,30m    (28,00m2)
Berging onderbouw 3,00 x 2,20m    ( 6,60m2)

Deze vrijblijvende objectinformatie is met de meeste zorg samengesteld, maar voor de juistheid daarvan kunnen wij geen aansprakelijkheid aanvaarden. Ook kan aan de vermelde gegevens geen enkel recht worden ontleend. Alle informatie is enkel en alleen bedoeld voor de presentatie van het object en niet meer dan een uitnodiging tot het doen van een bod. Eventueel bijgevoegde plattegronden zijn slechts indicatief.

Lees meer

Verkoopgeschiedenis

Aangeboden sinds
26 februari 2026
Verkoopdatum
1 april 2026
Looptijd
één maand

Kenmerken

Overdracht

Prijs per m2
€ 3.912
Aangeboden sinds
26 februari 2026
Status
Verkocht
Aanvaarding
In overleg

Bouw

Soort woonhuis
Eengezinswoning, tussen woning, splitlevel woning
Soort bouw
Bestaande bouw
Bouwjaar
2022
Soort dak
Plat dak
Staat van onderhouden binnen
Goed
Staat van onderhouden buiten
Goed

Oppervlakte en inhoud

Perceeloppervlakte
88 m2
Inhoud van de woning
572 m3
Oppervlakte externe bergruimte
6 m2

Indeling

Aantal kamers
5
Aantal slaapkamers
4
Aantal woonlagen
3
Voorzieningen
Tuin, schuur/berging, ventilatie, glasvezel, lift, satellietschotel, fransbalkon

Buitenruimte

Balkon
Nee
Schuur/berging
Ja

Maandlasten berekenen

De maandlasten voor je woning bestaan uit meer dan alleen de hypotheeklasten. Hieronder vind je een overzicht van de bijkomende kosten en lasten. Zo weet je precies wat je huis per maand gaat kosten. En met de handige vergelijkers kun je ook nog eens snel de beste deals sluiten!

  • Kaart
  • Streetview