Verkocht OV

Sperwerhoek 12 2743 GC Waddinxveen

133m2
Wonen
6
Kamers
140m2
Perceel
1986
Bouwjaar
Graag laten wij je kennismaken met deze gezellige en uitgebouwde eengezinswoning aan de Sperwerhoek 12 te Waddinxveen.

Dit leuke woonhuis heeft veel positieve punten, zoals vrij uitzicht aan zowel de voor- als achterzijde, een erker aan de voorzijde, een uitgebouwde woonkeuken met openslaande deuren, een keurige badkamer en daarbij ook nog een fijne tuin op het zuidoosten met veranda, berging en achterom. De woning is in 1985 gebouwd op 140 m2 eigen grond en heeft een gebruiksoppervlakte wonen van 133 m2.

De oplevering van dit woonhuis is in overleg met de verkopers en kan desgewenst snel plaatsvinden. Nieuwsgierig geworden? Bel ons dan snel voor een leuke bezichtigingsafspraak!

De woning ligt aan een voetpad, dus geen auto’s voor de deur. Wel zijn er voldoende parkeerplaatsen direct achter de woning. Daarmee is het heerlijk rustig wonen in dit centrale deel van de wijk “De Zuidplas ’80”. In de straat is een basisschool aanwezig, evenals een speelplein en een speelveld – ideaal voor gezinnen met jonge kinderen. Ook het voortgezet onderwijs is in slechts enkele minuten fietsen veilig bereikbaar. Supermarkt, apotheek en diverse winkels zijn dichtbij, zo ook diverse sportfaciliteiten zoals voetbal, korfbal, hockey, tennis, manege en het zwembad. De woning bevindt zich bovendien nabij de uitvalswegen naar de snelwegen in de Randstad. Tevens zijn er goede busverbindingen met omliggende plaatsen en bevindt het treinstation zich op circa tien minuten loopafstand.
Begane grond
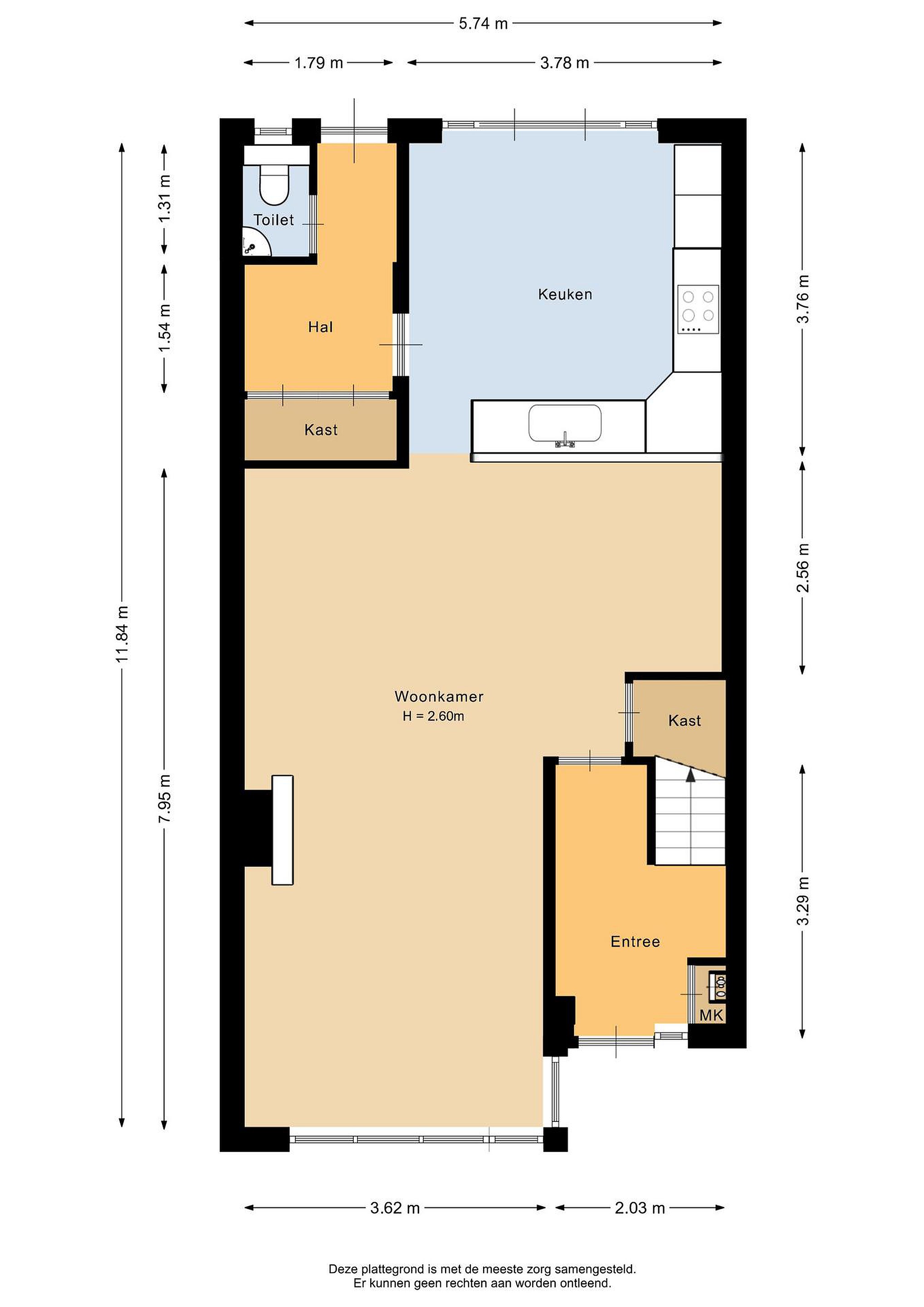
Via de verzorgde voortuin kom je in de entree/hal van het huis. Deze is voorzien van een betegelde decorvloer en een keurige wandafwerking. Onder de trap bevindt zich een kleine bergruimte, namelijk een trapkast. Oorspronkelijk was in deze hal een toilet aanwezig, maar tijdens het uitbouwen is dit toilet verplaatst naar de achterzijde. Via de houten trap is er toegang tot de verdieping, en rechtdoor loop je naar de woonkamer met halfopen keuken.

De woonkamer bevindt zich aan de voorzijde, deels in de erker die gedeeld wordt met de buren. De open haard is centraal geplaatst en staat garant voor veel gezellige avonden. De afwerking is in de loop der jaren flink aangepakt, met een houten vloer, fraaie paneeldeuren en lijsten langs de plafonds. Aan de achterzijde van de woning vind je de gezellige woonkeuken, waar je na een dag werken heerlijk kunt aanschuiven. Er is genoeg ruimte voor een flinke eettafel en in de zomer kunnen de openslaande deuren open, zodat de tuin mooi bij de keuken wordt betrokken.

De keuken zelf staat in een grote L-opstelling en heeft een landelijk karakter. De apparatuur – waaronder een vaatwasser, gaskookplaat en combimagnetron – is netjes ingebouwd. Het houten werkblad is voorzien van een gaskookplaat en een dubbele stenen spoelbak. De ruimte is afgescheiden van de woonkamer middels een wand van circa 1,5 meter hoog en een halfronde toog over de volledige breedte.
Naast de keuken bevindt zich de hal naar de tuin. Deze is nu voorzien van een toilet en veel kastruimte in een schuifdeurenkast. Ook deze hal is weer fraai afgewerkt met een tegelvloer, lambrisering en een nette plafondafwerking. Het toilet is geheel betegeld en voorzien van een hangend closet en wastafeltje.

Als je vanuit de hal doorloopt naar buiten, kom je in de mooie en zonnige tuin. De tuin is voorzien van een gezellige veranda, stenen berging en een achterom naar het parkeerterrein. Het straatwerk bestaat uit klinkers en tegels, en de erfafscheiding is uitgevoerd met zwarte potdekseldelen – helemaal passend bij deze leuke tuin. Verder is er buitenverlichting en een groot elektrisch zonnescherm aanwezig.

Eerste verdieping
Alle drie de slaapkamers, exclusief de overloop, zijn voorzien van laminaat op de vloer en wanden met behang of glad stucwerk.
De eerste slaapkamer bevindt zich aan de voorzijde, is 353 x 313 cm groot en voorzien van een kastenwand met louvredeuren. De tweede en derde slaapkamer liggen aan de achterzijde en zijn respectievelijk 332 x 391 en 234 x 291 cm groot. De grootste kamer is daarmee de master bedroom. Deze kamer heeft recent nog een opknapbeurt gehad en straalt veel warmte en karakter uit. De kamer ernaast is de kleinste van het stel, maar uitstekend geschikt als kinderkamer of thuiswerkplek.
De badkamer meet 213 x 211 cm en is voorzien van een gemetselde inloopdouche, een hangend closet en een wastafel. De ruimte is geheel betegeld en beschikt over zowel mechanische ventilatie als een openslaand raam.

Tweede verdieping
Voorzolder met ruimte en aansluitingen voor de wasmachine/droger en de opstelplaats van de cv-combiketel en mechanische afzuiging. Via een luik in het plafond is een ruime en praktische bergvliering bereikbaar. De zolder is verder ingedeeld met nog twee slaapkamers, waarmee de teller op vijf slaapkamers komt. Dit is mede mogelijk dankzij de brede beukmaat van 5,74 meter en de dakkapel aan de achterzijde van het huis. Beide kamers zijn circa 373 x 280 cm groot en afgewerkt met laminaatvloeren.

Details
Deze vrijblijvende objectinformatie is met de meeste zorg samengesteld, maar voor de juistheid daarvan kunnen wij geen aansprakelijkheid aanvaarden. Ook kunnen aan de vermelde gegevens geen rechten worden ontleend. Alle informatie is uitsluitend bedoeld voor de presentatie van het object en geldt als uitnodiging tot het doen van een bod. Eventueel bijgevoegde plattegronden zijn slechts indicatief.

Lees meer

Kenmerken

Overdracht

Prijs per m2
€ 3.677
Aangeboden sinds
10 november 2025
Status
Verkocht onder voorbehoud
Aanvaarding
In overleg

Bouw

Soort woonhuis
Eengezinswoning, tussen woning
Soort bouw
Bestaande bouw
Bouwjaar
1986
Soort dak
Zadeldak
Staat van onderhouden binnen
Goed
Staat van onderhouden buiten
Goed

Oppervlakte en inhoud

Perceeloppervlakte
140 m2
Inhoud van de woning
472 m3
Oppervlakte externe bergruimte
7 m2

Indeling

Aantal kamers
6
Aantal slaapkamers
5
Aantal woonlagen
3
Voorzieningen
Tuin, schuur/berging, ventilatie, open haard, glasvezel, buitenzonwering, rookkanaal, dakraam

Buitenruimte

Balkon
Nee
Schuur/berging
Ja

Maandlasten berekenen

De maandlasten voor je woning bestaan uit meer dan alleen de hypotheeklasten. Hieronder vind je een overzicht van de bijkomende kosten en lasten. Zo weet je precies wat je huis per maand gaat kosten. En met de handige vergelijkers kun je ook nog eens snel de beste deals sluiten!

  • Kaart
  • Streetview