Verkocht

Schuberthof 69 2742 BX Waddinxveen

110m2
Wonen
5
Kamers
149m2
Perceel
1968
Bouwjaar
Welkom aan de Schuberthof 69

Aan de Schuberthof 69 in Waddinxveen vindt u deze goed onderhouden eengezinswoning, gelegen in de geliefde en ruim opgezette Componistenwijk. Het is een plek waar rust en centraal wonen samenkomen; de wijk staat bekend om haar groene karakter en de vele speelplekken, wat het een ideale omgeving maakt voor (jonge) gezinnen. Vanuit de lichte doorzonwoonkamer kijkt u vrij uit over de rustige straat aan de voorzijde, terwijl u aan de achterzijde geniet van een royale tuin.

Met een gunstige ligging op loopafstand van het winkelcentrum en diverse voorzieningen, biedt deze woning uit 1968 een stevige basis op een perceel van 149 m2. Hoewel het huis technisch altijd keurig is bijgehouden, biedt de woonoppervlakte van 110 m2 u alle ruimte om de afwerking en modernisering geheel naar eigen smaak te realiseren.
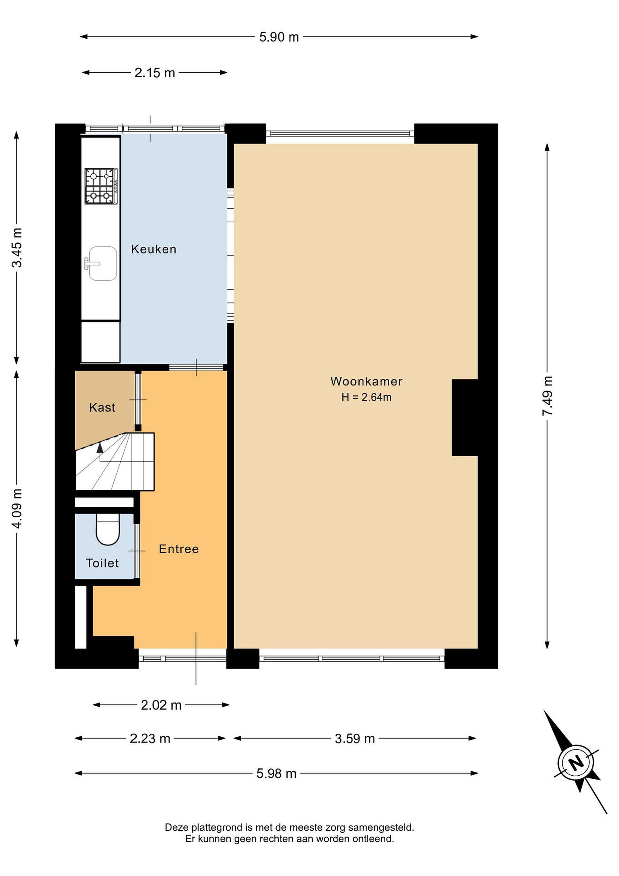
Begane grond
Bij binnenkomst via de entree bereik je de hal, die toegang biedt tot de trapopgang naar de eerste verdieping, een praktische trapkast en de toiletruimte met vrijhangend toilet. In de hal bevindt zich tevens de vernieuwde meterkast (4 groepen en 2 aardlekschakelaars), die eenvoudig verder uit te breiden is.

Vanuit de hal stap je de keuken in. Deze is uitgevoerd in een rechte opstelling en voorzien van een 4-pits gasfornuis, afzuigkap en een koel-vriescombinatie. Via de keukendeur is er direct toegang tot de achtertuin. De wand tussen de keuken en de woonkamer is opgebroken. Hierdoor is er een open keuken ontstaan wat in de toekomst extra mogelijkheden geeft bij het plaatsen van een nieuwe keuken.

De lichte doorzonwoonkamer vormt het hart van de begane grond. Een opvallend detail hier is de markante omtimmering, voorbereid voor een haard. De wanden zijn afgewerkt met spachtelputz. Wat betreft de kozijnen, aan de voorzijde onderhoudsvriendelijk kunststof, terwijl de achterzijde is voorzien van houten kozijnen met isolatieglas. Aan de voorzijde zijn markiezen aangebracht.

Eerste verdieping
De overloop, voorzien van een vaste kast, geeft toegang tot drie slaapkamers en de badkamer.

De twee grootste slaapkamers beschikken over handige inbouwkasten. Aan de voorzijde is de slaapkamer uitgerust met kunststof kozijnen en dubbel glas en aan de achterzijde is gekozen voor houten kozijnen met enkel glas in beide slaapkamers. De badkamer bevindt zich aan de voorzijde van de woning. De badkamer is geheel betegeld en voorzien van en wastafelmeubel, toilet en douche.

Tweede verdieping
Via een vaste trap bereik je de tweede verdieping. Op de voorzolder is de opstelling van de CV-ketel (Remeha, 2014) gesitueerd. Dankzij de knieschotten is er op de gehele verdieping veel bergruimte aanwezig. De zolderkamer is een volwaardige extra kamer, die door het dakraam prettig wordt verlicht.

Details
Bijzonderheden
Gelegen in de geliefde en kindvriendelijke Componistenwijk, vindt u deze ruime 5-kamer eengezinswoning. Het is een plek waar rust en centrale voorzieningen hand in hand gaan; de woning ligt namelijk aan een autoluwe straat waar enkel bestemmingsverkeer komt. Voor de deur is er meer dan voldoende parkeergelegenheid, waardoor u altijd gemakkelijk de auto kwijt kunt.

Wat Schuberthof 69 direct kenmerkt, is de ruimte en de mogelijkheden. Met vijf kamers biedt de woning een solide basis voor een gezin, een ruim thuiskantoor of een hobbyruimte. Omdat de woning naar eigen smaak te moderniseren is, krijgt u hier de unieke kans om echt uw eigen stijl en sfeer door te voeren.
Ook buiten is er volop de ruimte. De voortuin van 3 meter diep zorgt voor een fijne afstand tot de straat, terwijl de achtertuin met zijn royale afmetingen van 10,75 x 6,10 meter een heerlijke plek is om van het buitenleven te genieten. Naast de stenen berging is er een kleine houten berging aanwezig. Aan beide zijden is een schutting geplaatst.

Ligging
De ligging midden in Waddinxveen is ideaal te noemen. Voor de dagelijkse boodschappen wandelt u in enkele minuten naar winkelcentrum Groensvoorde of het nabijgelegen KW-Plein. Gezinnen met kinderen zullen de directe omgeving zeker waarderen: een leuke speeltuin ligt om de hoek en zowel basisscholen als het voortgezet onderwijs (Coenecoop College) bevinden zich op korte afstand.

Ook qua bereikbaarheid zit u hier uitstekend. Het treinstation is dichtbij en de belangrijkste uitvalswegen naar steden als Rotterdam, Utrecht en Den Haag zijn snel en eenvoudig aan te rijden.

De feiten op een rij:
- Ruimte: 5-kamer woning met veel indelingsvrijheid.
- Buitenruimte: Royale achtertuin van ruim 65 m2.
- Locatie: Rustige, centrale ligging in de populaire Componistenwijk.
- Voorzieningen: Winkels, scholen en sportfaciliteiten op loop-/fietsafstand.
- Oplevering: In overleg, waarbij een snelle overdracht mogelijk is.
Kortom: een woning die door zijn ruimte en ligging een bezichtiging meer dan waard is.

Deze vrijblijvende objectinformatie is met de meeste zorg samengesteld, maar voor de juistheid daarvan kunnen wij geen aansprakelijkheid aanvaarden. Ook kan aan de vermelde gegevens geen enkel recht worden ontleend. Alle informatie is enkel en alleen bedoeld voor de presentatie van het object en niet meer dan een uitnodiging tot het doen van een bod. Eventueel bijgevoegde plattegronden zijn slechts indicatief.

Lees meer

Verkoopgeschiedenis

Aangeboden sinds
26 februari 2026
Verkoopdatum
20 april 2026
Looptijd
2 maanden

Kenmerken

Overdracht

Prijs per m2
€ 3.900
Aangeboden sinds
26 februari 2026
Status
Verkocht
Aanvaarding
In overleg

Bouw

Soort woonhuis
Eengezinswoning, tussen woning
Soort bouw
Bestaande bouw
Bouwjaar
1968
Soort dak
Zadeldak
Staat van onderhouden binnen
Goed
Staat van onderhouden buiten
Goed

Oppervlakte en inhoud

Perceeloppervlakte
149 m2
Inhoud van de woning
386 m3
Oppervlakte externe bergruimte
8 m2

Indeling

Aantal kamers
5
Aantal slaapkamers
4
Aantal woonlagen
3
Voorzieningen
Tuin, schuur/berging, kabel-tv, rookkanaal, dakraam

Buitenruimte

Balkon
Nee
Schuur/berging
Ja

Maandlasten berekenen

De maandlasten voor je woning bestaan uit meer dan alleen de hypotheeklasten. Hieronder vind je een overzicht van de bijkomende kosten en lasten. Zo weet je precies wat je huis per maand gaat kosten. En met de handige vergelijkers kun je ook nog eens snel de beste deals sluiten!

  • Kaart
  • Streetview