Verkocht OV

Roosje Voshoeve 78 2743 HS Waddinxveen

120m2
Wonen
6
Kamers
124m2
Perceel
1988
Bouwjaar
Comfortabel wonen aan de Roosje Voshoeve 78 – tuin op het zuiden en energielabel A
In de geliefde en rustige wijk Zuidplas in Waddinxveen mogen wij deze verzorgde tussenwoning aanbieden, gelegen aan de Roosje Voshoeve 78. De woning heeft een woonoppervlakte van circa 120 m2 en beschikt over vier volwaardige slaapkamers. De ruime woonkamer biedt veel licht en comfort, en de keuken en badkamer verkeren in een goed onderhouden staat.

Daarnaast is er een balkon aan de voorzijde en een fraai aangelegde achtertuin op het zonnige zuiden. Dankzij het energielabel A en de aanwezigheid van zonnepanelen is deze woning niet alleen comfortabel, maar ook energiezuinig en toekomstbestendig. De ligging aan een autoluwe en ruim opgezette straat maakt dit een ideale plek voor gezinnen of mensen die rustig en prettig willen wonen.
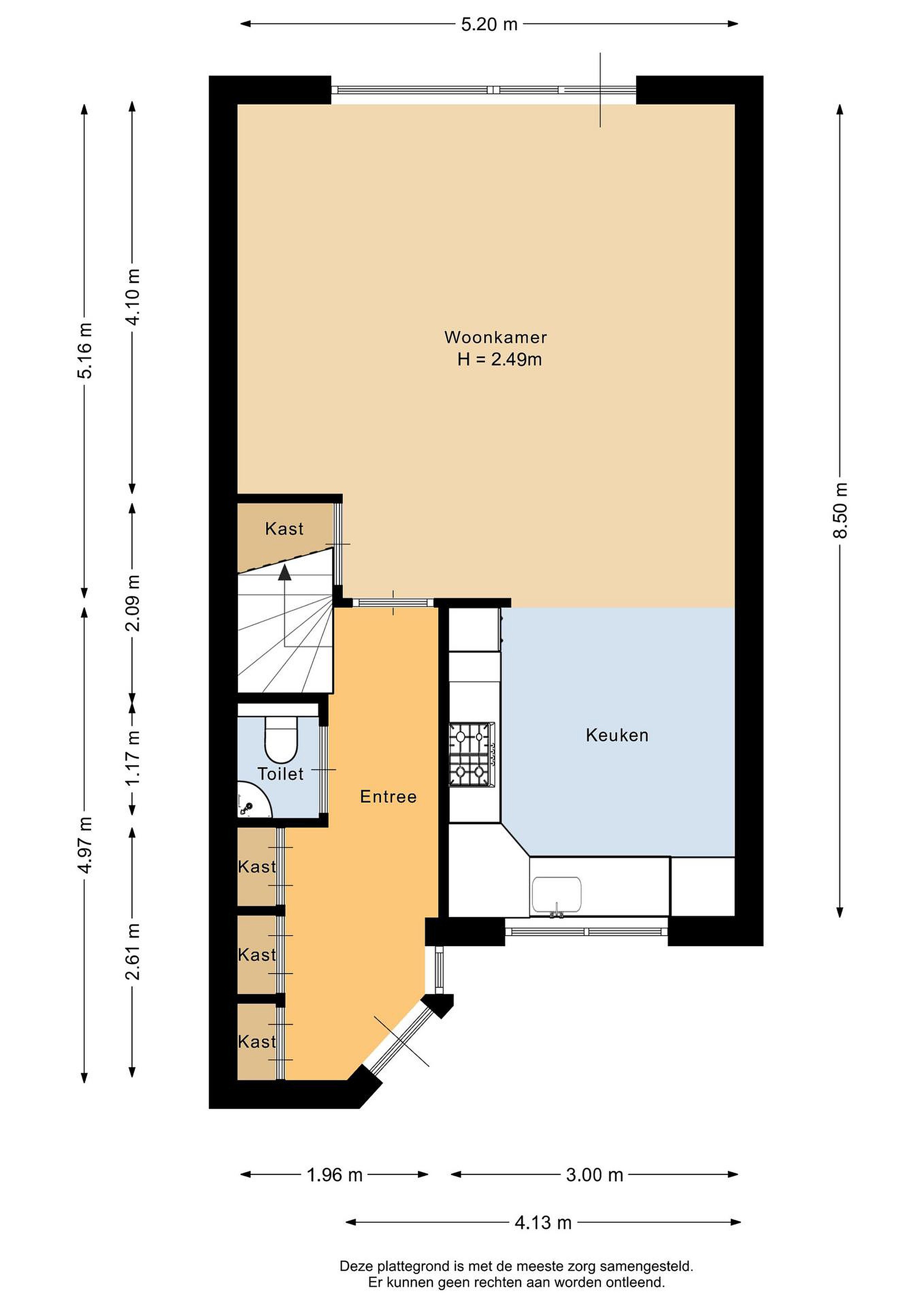
Begane grond
Je komt binnen via een nette voortuin met bestrating en groen, waarbij de afvalcontainers keurig uit het zicht zijn weggewerkt achter een houten afscheiding. In de hal bevinden zich meerdere inbouwkasten, de trapopgang en het toilet. Het toilet is volwaardig afgewerkt met een fonteintje en een zwevend closet. Vanuit de hal stap je de woonkamer in, met grote raampartijen die zorgen voor veel natuurlijk lichtinval. Aan de voorzijde ligt de keuken, geplaatst in een praktische L-opstelling en voorzien van diverse inbouwapparatuur, waaronder een gaskookplaat, oven, magnetron en koel-/vriescombinatie. De keuken is netjes onderhouden en biedt uitzicht op de rustige straat.

De gehele begane grond is afgewerkt met een lichte laminaatvloer en neutrale wandafwerking. Aan de achterzijde zijn kunststof kozijnen geplaatst, wat bijdraagt aan een frisse, isolerende en onderhoudsvriendelijke uitstraling.


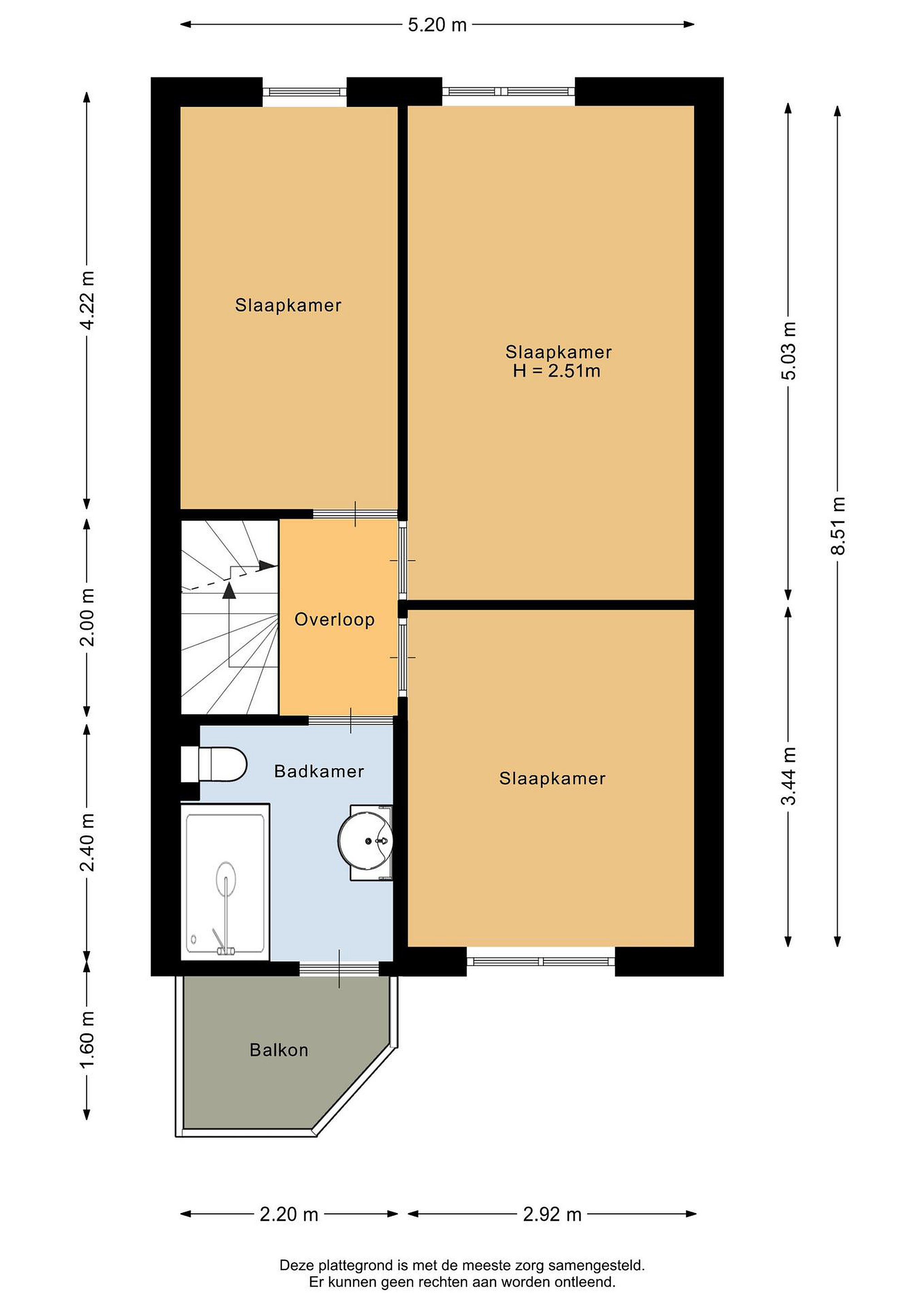
Eerste verdieping
Op de eerste verdieping bevinden zich drie slaapkamers, waarvan twee aan de achterzijde en één aan de voorzijde. De ruime hoofdslaapkamer is aan de achterzijde gesitueerd en biedt voldoende plek voor een groot bed en kledingkasten. De overige kamers zijn ideaal in te richten als kinder-, werk- of logeerkamer.

De badkamer is functioneel ingericht en voorzien van een gemoderniseerde inloopdouche met glazen wand en regendouche. Daarnaast beschikt de ruimte over een wastafelmeubel, tweede toilet en is er ventilatie via de centrale afzuiging met vochtsensor, aangevuld met natuurlijke ventilatie via de balkondeur. Vanuit de badkamer is er directe toegang tot het balkon aan de voorzijde – een prettige plek waar je ’s ochtends al van het eerste licht kunt genieten.

Tweede verdieping
De zolderverdieping is verrassend ruim en biedt een volwaardige vierde slaapkamer met dakraam, vaste kasten en praktische knieschotten. Daarnaast is er op de overloop plek voor de wasmachine, droger, de cv-opstelling en extra bergruimte. Dankzij de royale indeling is er bovendien de mogelijkheid om een vijfde slaap-, hobby-, logeer- of werkruimte te realiseren.

Tuin
De achtertuin van deze woning is een sfeervolle en zonnige buitenruimte met veel privacy. Dankzij de ligging op het zuiden geniet je hier van optimale zonligging gedurende de dag. De tuin is keurig aangelegd met sierbestrating, een buitenkraan, een vaste plantenborder met gevarieerde beplanting en meerdere zitplekken, waaronder een royale overkapping waar je heerlijk beschut kunt zitten.

Door de ligging aan een rustig speelhofje zit je bovendien vrij aan de achterzijde, zonder directe inkijk van achterburen. Via een handige achterom is de tuin ook goed bereikbaar voor bijvoorbeeld fietsen. De combinatie van groen, comfort en beschutting maakt dit tot een heerlijke plek om te ontspannen of te genieten van het buitenleven.

Details
- Gelegen aan de Roosje Voshoeve 78 in de ruim opgezette en kindvriendelijke wijk Zuidplas 90
- Bouwjaar 1988
- Woonoppervlakte ca. 120 m2 | Perceeloppervlakte ca. 124 m2
- Energielabel A, energiezuinig wonen met zonnepanelen
- Vier volwaardige slaapkamers, met mogelijkheid tot een vijfde slaap-/werk-/logeerkamer op zolder
- Badkamer met vernieuwde inloopdouche en tweede toilet
- Vaste kasten en slimme opbergruimtes door de hele woning
- Kunststof kozijnen aan de achterzijde op de begane grond
- Balkon aan de voorzijde (noordoosten)
- Drie volwaardige woonlagen met praktische indeling
- Zonnige achtertuin op het zuiden, fraai aangelegd met overkapping, sierbestrating, vaste plantenbakken, buitenkraan en achterom
- Vrij gelegen aan de achterzijde aan een rustig speelhofje

Locatie
De woning is gelegen in een kindvriendelijke en groen opgezette woonwijk in Waddinxveen-Zuidplas. In de directe omgeving vind je diverse speelvoorzieningen, basisscholen, sportverenigingen en winkelcentra zoals winkelcentrum Zuidplas. Voor een wandeling of fietstocht ben je binnen enkele minuten in het buitengebied of langs de Plasweg.

Ook qua bereikbaarheid zit je hier uitstekend: station Waddinxveen bevindt zich op korte afstand en zorgt voor een goede verbinding met onder meer Gouda en Alphen aan den Rijn. Met de auto bereik je binnen enkele minuten de A12 en A20, wat snelle routes biedt richting steden als Rotterdam, Den Haag en Utrecht. Hierdoor is de locatie ideaal voor zowel gezinnen als forenzen die centraal willen wonen in een rustige woonomgeving

Een verzorgde woning met ruimte, comfort en een fijne ligging. Maak snel een afspraak en ervaar zelf wat de woning aan de Roosje Voshoeve 78 te bieden heeft.

Deze vrijblijvende objectinformatie is met de meeste zorg samengesteld, maar voor de juistheid daarvan kunnen wij geen aansprakelijkheid aanvaarden. Ook kan aan de vermelde gegevens geen enkel recht worden ontleend. Alle informatie is enkel en alleen bedoeld voor de presentatie van het object en niet meer dan een uitnodiging tot het doen van een bod. Eventueel bijgevoegde plattegronden zijn slechts indicatief.


Lees meer

Kenmerken

Overdracht

Prijs per m2
€ 3.750
Aangeboden sinds
27 augustus 2025
Status
Verkocht onder voorbehoud
Aanvaarding
In overleg

Bouw

Soort woonhuis
Eengezinswoning, tussen woning
Soort bouw
Bestaande bouw
Bouwjaar
1988
Soort dak
Zadeldak
Staat van onderhouden binnen
Uitstekend
Staat van onderhouden buiten
Uitstekend

Oppervlakte en inhoud

Perceeloppervlakte
124 m2
Inhoud van de woning
404 m3
Oppervlakte externe bergruimte
5 m2
Oppervlakte gebouwgebonden buitenruimten
3 m2

Indeling

Aantal kamers
6
Aantal slaapkamers
5
Aantal woonlagen
3
Voorzieningen
Tuin, schuur/berging, buitenzonwering

Buitenruimte

Balkon
Nee
Schuur/berging
Ja

Maandlasten berekenen

De maandlasten voor je woning bestaan uit meer dan alleen de hypotheeklasten. Hieronder vind je een overzicht van de bijkomende kosten en lasten. Zo weet je precies wat je huis per maand gaat kosten. En met de handige vergelijkers kun je ook nog eens snel de beste deals sluiten!

  • Kaart
  • Streetview